Apartment for sale - Haaltert RBK09276
275 000 € Vous avez un projet de rénovation ?
Are you searching for Apartment for sale - Haaltert?
Receive an email as soon as there's a new property available!
Description
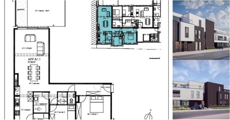
Dit stijlvolle appartement van 93m² is gelegen op de eerste verdieping van blok A. We komen binnen in dit appartement via de inkom en gaan zo naar de 2 slaapkamers, berging, badkamer, apart toilet en de leefruimte met open keuken en aansluitend terras. Mogelijkheid tot aankoop van ondergrondse berging, autostaanplaats of garagebox. Prijs excl. BTW & kosten.
(Mogelijk aan 6% BTW onder voorwaarden!)
(WgLk-Gvv-Vg-Gvkr-Gmo)
- EPB in opmaak.
- Niet gelegen in overstromingsgevoelig gebied. Show all Show less
Financial details
- Price: 275 000 €
- VAT applied?: Yes
Part of a new construction project
Residentie Zoë

Services
More information
General info
State of the property
New
Build Year
2023
Interior description
Number of bedrooms
2
Surface bedroom 1
12 m²
Surface bedroom 2
8 m²
Livable surface
93 m²
Furnished
No
Kitchen and bathrooms
Number of bathrooms
1
Surface of the bathroom(s)
5 m²
Heating and energy
Type of heating
Hot air
Heat pump
Yes
Type of glazing
Double glass
Equipment
Elevator
Yes
Outdoor description
Floor of appartment
1
Orientation of the front facade
South-east
Number of facades
2
Garden
No
Terrace
Yes
Surface terrace
16 m²
Terrace orientation
North-west
Sewer Connection
Yes
Running water
Yes
Town planning and environmental risks
Building permission granted
Yes
Planning permission granted
No
Preemption right
No
Flooding Area type
no flooding area
Demarcated flooding area
(information not available)
Immovlan.be displays the data received from the seller. If some important or obligatory data is missing it is because they were not provided to us.