Apartment for sale - Wiltz RBL42259

9554 Wiltz

385 000 €

  • 1 Bedroom(s)
  • 67
  • 1 Bathroom(s)

Description

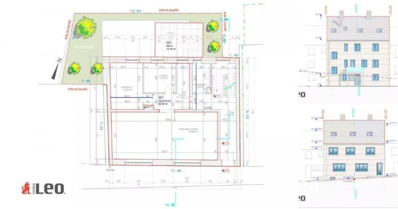
This charming apartment, listed at 385,000 €, is nestled in the quaint town of Wiltz, bearing the reference Immovlan RBL42259 and seller reference leo20221216. The property is situated on the ground floor of a small residence comprising only three units, offering a cozy and intimate living environment. With a living area of 66.88 m², this flat offers a spacious layout with an entrance hall that provides access to a balcony, an open kitchen integrated with the living and dining area, one bedroom, and a bathroom equipped with a shower and WC. Additionally, a private cellar is included for extra storage space. Wiltz is known for its convenient amenities which include numerous shops, restaurants, a hospital, pharmacies, a daycare center, primary and secondary schools, a train station, and banks, all within walking distance. This makes it an ideal location for individuals or families looking for easy accessibility to essential services and daily conveniences. The apartment is currently slated for future renovation with an expected availability in January 2024. It features communal laundry facilities and promises high-quality finishes and materials. Please note that the price does not include kitchen installations or painting, allowing the buyer the opportunity to customize these aspects to their own preferences. This is an excellent opportunity to define your own finishes and make this charming apartment your new home.

* This text was generated using an artificial intelligence.

Show all Show less

Financial details

  • Price: 385 000 €
  • VAT: No

Services


More information

General info

Currently leased

No

Interior description

Number of bedrooms

1

Livable surface

67 m²

Wash room

Yes

Kitchen and bathrooms

Kitchen equipment

Not equipped

Number of bathrooms

1

Heating and energy

Type of heating

Fuel oil

Outdoor description

Garden

No

Terrace

No

Balcony

Yes

Certificates and Compliance

EPC/PEB reference

E

Town planning and environmental risks

Flooding Area type

(information not available)

Demarcated flooding area

(information not available)

Immovlan.be displays the data received from the seller. If some important or obligatory data is missing it is because they were not provided to us.

Immovlan ref.: RBL42259 Seller's ref.: leo20221216 Report fraud

Points of interest

Preschools

Ecole Fondamentale D'Enseignement Spécialisé Libre "la Petite Ecole"

10.5 km 46' 12 km 13' 0 m 0'' 10.5 km 2º 6'

Elementary schools

Ecole Fondamentale D'Enseignement Spécialisé Libre "la Petite Ecole"

10.5 km 46' 12 km 13' 0 m 0'' 10.5 km 2º 6'

Train stations

Wilwerwiltz

6.9 km 36' 9.7 km 9' 0 m 0'' 6.9 km 1º 23'

Museums

Musée Animalaine

16.7 km 16'

Activities

Centre Houtopia - Univers De Sens

27.2 km 26'

Transports

A SNCB station ("Wilwerwiltz") is located 36 minutes away by bike, or 9 minutes by car.

Tourism

Looking for an activity? There are "Centre Houtopia - Univers De Sens" to 26 minutes by car.A15The museum "Musée Animalaine" is nearby (16 minutes drive).

Education

You can find a close preschool and elementary school: "Ecole Fondamentale D'Enseignement Spécialisé Libre "la Petite Ecole"", 13 minutes away by car.

Show all Show less