Development site for sale - Bouffioulx VBB50946

Soleimont 0 6200 Bouffioulx

30 000 €

Soleimont 0 6200 Bouffioulx

Are you searching for Development site for sale - Bouffioulx?

Receive an email as soon as there's a new property available!

Create an alert

Description

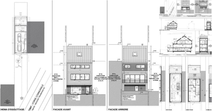
This property, listed at an attractive price of €30,000, is a prime development site located in the tranquil area of Châtelet, on the border of Chatelineau and Gilly. The plot is ideally situated on a quiet street and is within easy reach of all necessary amenities, making it a fantastic opportunity for building your future home. The envisioned house design includes a spacious ground floor with a large garage capable of accommodating two vehicles, a technical room, and a laundry room. The property also features both front and rear terraces, an additional garden space at the back, and designated parking areas or a front courtyard. The first floor is planned to encompass a living room, dining area, fully equipped kitchen, and a toilet, along with another terrace for outdoor enjoyment. Moving to the upper levels, the second floor is designed to include a flexible space suitable for an office or storage, a dressing room, a bathroom, and a large bedroom. The third floor offers another generously sized bedroom. This plot provides a versatile layout perfect for tailoring to individual needs and preferences. For more detailed information or to arrange a viewing, please contact Tel 0487.918.098 .

* This text was generated using an artificial intelligence.

Show all Show less

Financial details

  • Price: 30 000 €

Services


More information

General info

Currently leased

No

Town planning and environmental risks

Flooding Area type

(information not available)

Demarcated flooding area

(information not available)

Immovlan.be displays the data received from the seller. If some important or obligatory data is missing it is because they were not provided to us.

Immovlan ref.: VBB50946 Seller's ref.: 3678731 Report fraud

Points of interest

Nurseries

Service D'Accueillantes Du C.p.a.s.

1.1 km 4' 1.1 km 1' 7'' 590 m 12' 1 km 12'

Preschools

Ecole Communale Fondamentale Cité Germinal

359 m 2' 2'' 384 m 41'' 359 m 4' 359 m 4'

Elementary schools

Ecole Communale Fondamentale Cité Germinal

359 m 2' 2'' 384 m 41'' 359 m 4' 359 m 4'

High schools

Lycee Mixte Francois De Sales

2.7 km 10' 3.3 km 4' 2.1 km 27' 2.6 km 32'

Motorways

A54 / E420: Nivelles - Charleroi

4.6 km 5'

A15 / E42: La Louvière - Charleroi - Namur - Liège

6.5 km 5'

Bus

TEC Charleroi - 17 - Fleurus - Wanfercée-Baulet - Gilly - Châtelet

488 m 6'

TEC Charleroi - M4ab - Châtelineau (Pl. Destrée) - Gare Centrale

347 m 4'

TEC Charleroi - 710 - Fleurus - Charleroi

347 m 4'

Metros

TEC Charleroi - M4 - Gare Centrale - Gilly Soleilmont (Métro)

746 m 9'

Train stations

Lodelinsart

3.8 km 16' 4.5 km 6' 3 km 38' 3.7 km 45'

Airports

Brussels South Charleroi Airport

5.3 km 18' 9.6 km 7' 0 m 0''

Charging stations

Rivage De Boubier

4.6 km 6'

Car-sharing system

Cambio - Tumelaire

5.6 km 19' 4.7 km 34' 5.5 km 1º 6'

Supermarkets

Lidl Châtelet

1.1 km 4' 1.1 km 1' 17'' 816 m 12' 1.1 km 13'

Colruyt Gilly

2.3 km 8' 2.3 km 2' 21'' 2 km 23' 2.3 km 28'

Intermarché Gilly Vallées

3 km 12' 3.4 km 4' 2.2 km 29' 2.9 km 35'

Amusement parks

Centre De Culture Scientifique

9.2 km 6'

Museums

Musée Des Beaux-Arts De Charleroi

5.6 km 7'

Religious monuments

Abbaye D'Aulne

22 km 17'

Activities

Maison De La Poterie

6 km 7'

Boat trips

Bateaux Électriques Sur Le Canal Du Centre Historique

32.1 km 21'

Castles

Domaine Du Château De Seneffe

28.6 km 19'

Golfs

Golf La Bruyère

19.1 km 20'

Tourism

You will find the "Domaine Du Château De Seneffe" castle just 19 minutes away.It will take you approximately 7 minutes to reach the museum "Musée Des Beaux-Arts De Charleroi".The "Abbaye D'Aulne" religious monument can be reached in 17 minutes with a car.Just 7 minutes away is the "Maison De La Poterie".There is an amusement park 6 minutes away by car: "Centre De Culture Scientifique".Fancy a boat trip? There are "Bateaux Électriques Sur Le Canal Du Centre Historique" just 21 minutes away.The "Golf La Bruyère" golf course is 20 away.

Public transports

You can access these bus lines: TEC Charleroi - 710 - Fleurus - Charleroi, TEC Charleroi - M4ab - Châtelineau (Pl. Destrée) - Gare Centrale with a stand 4 minutes’ walk away, TEC Charleroi - 17 - Fleurus - Wanfercée-Baulet - Gilly - Châtelet with a stop reachable in fewer than 6 minutes as a pedestrian.This listing is served with a metro line such as TEC Charleroi - M4 - Gare Centrale - Gilly Soleilmont (Métro) with a stop 9 minutes away by foot.

Transports

You only need 5 minutes to reach the A54 / E420 (Nivelles - Charleroi) and A15 / E42 (La Louvière - Charleroi - Namur - Liège) motorways.You don’t want to own a car, but you still occasionally need one? There is the "Cambio - Tumelaire" station where you can rent a shared vehicle just 19 minutes away by bike.The nearest train station is "Lodelinsart": reachable in 6 minutes by car, or 38 minutes by public transport.For holidays or business, you can reach Brussels South Charleroi Airport in fewer than 7 minutes by car.Do you have an electric car or plan to have one? The nearest charging station ("Rivage De Boubier") is only 6 minutes’ drive away.

Nearby cities

La Louvière is only 19 minutes away by car. Mons is 36 minutes away by car. In 56 minutes you can reach Leuven. Only 23 minutes are needed to reach Namur with your car.

Education

You can find a close preschool and elementary school: "Ecole Communale Fondamentale Cité Germinal", 1 minute away by car.You can find a convienient nursery: "Service D'Accueillantes Du C.p.a.s.", 12 minutes away by foot.If you are looking for a high school, "Lycee Mixte Francois De Sales" it is 4 minutes away by car.

Shopping

For your food shopping, you have multiple options: "Lidl Châtelet" (13 minutes by foot or 1 minute by car), "Colruyt Gilly" (28 minutes by foot or 2 minutes by car), "Intermarché Gilly Vallées" (4 minutes by car).

Show all Show less