Development site for sale - Bailièvre VBA89781

Route de Salles 6460 Bailièvre

120 000 €

  • 2176 m² Land Surface
Route de Salles 6460 Bailièvre

Are you searching for Development site for sale - Bailièvre?

Receive an email as soon as there's a new property available!

Create an alert

Description

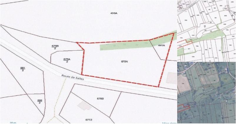
Terrain constructible d'une contenance totale de 2176 m² avec une largeur de façade à rue de +- 50 m situé au calme et avec vue arrière dégagée

* Sorry we haven’t received any English translation for this text.

Show all Show less

Financial details

  • Price: 120 000 €

Services


More information

General info

Availability

On contract

Outdoor description

Total land surface

2176 m²

Town planning and environmental risks

Building permission granted

No

Flooding Area type

(information not available)

Demarcated flooding area

(information not available)

Immovlan.be displays the data received from the seller. If some important or obligatory data is missing it is because they were not provided to us.

Immovlan ref.: VBA89781 Seller's ref.: AdId:254506 Report fraud

Points of interest

Nurseries

Les Petits Gaulois

1.3 km 5' 1.3 km 2' 14'' 1.1 km 16' 1.3 km 16'

Preschools

Groupe Scolaire Communal Arthur Masson

973 m 4' 963 m 2' 21'' 694 m 12' 973 m 12'

Elementary schools

Groupe Scolaire Communal Arthur Masson

973 m 4' 963 m 2' 21'' 694 m 12' 973 m 12'

High schools

Athenee Royal De Chimay

6.6 km 27' 6.7 km 8' 5.6 km 1º 19' 6.6 km 1º 19'

Bus

TEC Charleroi - 156a - Chimay - Momignies

453 m 5'

TEC Charleroi - 129 - Momignies Place - Mons

745 m 9'

TEC Charleroi - E109 - Express Momignies - Chimay - Gare Centrale

905 m 11'

Charging stations

Rue Chantrenne

8.1 km 9'

Supermarkets

Louis Delhaize Macon

3.4 km 12' 3.8 km 5' 2.6 km 41' 3.4 km 41'

Colruyt Chimay

5.8 km 20' 5.8 km 6' 5.1 km 1º 10' 5.8 km 1º 10'

Comarché Chimay

5.8 km 20' 5.8 km 6' 5.1 km 1º 10' 5.8 km 1º 10'

Amusement parks

Aquascope Etang De Virelles

8.8 km 9'

Museums

Musée Du Marbre

13.7 km 13'

Activities

Site Chimay Experience

13.6 km 16'

Boat trips

Crocodile Rouge

24.9 km 27'

Castles

Tour Salamandre

26.3 km 25'

Golfs

Golf Club Des Lacs

20.7 km 24'

Transports

Do you have an electric car or plan to have one? The nearest charging station ("Rue Chantrenne") is only 9 minutes’ drive away.

Education

You can find a close high school: "Athenee Royal De Chimay", in fewer than 8 minutes by car.You can find a close preschool and elementary school: "Groupe Scolaire Communal Arthur Masson", 2 minutes away by car.If you are looking for a nursery, "Les Petits Gaulois" it is 16 minutes away by foot.

Tourism

It will take you approximately 13 minutes to reach the museum "Musée Du Marbre".You can find a boat trip 27 minutes away: "Crocodile Rouge".You will find the "Tour Salamandre" castle just 25 minutes away.You will find "Aquascope Etang De Virelles" within 9 minutes by car.In 16 minutes you can reach the "Site Chimay Experience" activity."Golf Club Des Lacs" STRONG]golf can be reached in 24 minutes by car.

Public transports

This property is served with several bus lines such as TEC Charleroi - 156a - Chimay - Momignies with a stop 5 minutes away by foot, TEC Charleroi - 129 - Momignies Place - Mons with a stop reachable in fewer than 9 minutes as a pedestrian, TEC Charleroi - E109 - Express Momignies - Chimay - Gare Centrale with a stop 11 minutes away by foot.

Shopping

You have the choice between several nearby supermarkets: "Louis Delhaize Macon" (5 minutes by car), "Colruyt Chimay" (6 minutes by car), "Comarché Chimay" (6 minutes by car).

Nearby cities

It takes about 50 minutes to reach Charleville-Mézières with your car. In 59 minutes you can reach La Louvière. Charleroi is 50 minutes away by car.

Show all Show less