Terrain à bâtir à vendre - Frameries VBB41442

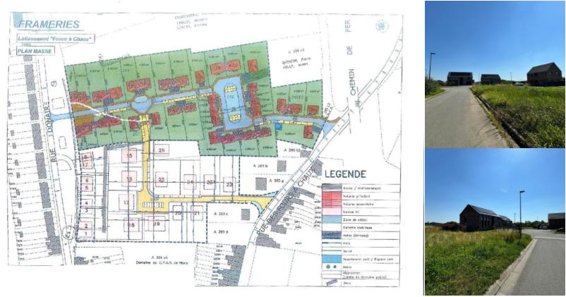
Lotissement "Fours ? Chaux" 1 7080 Frameries

50 000 €

  • 323 m² Surface totale du terrain
Lotissement "Fours ? Chaux" 1 7080 Frameries

Vous cherchez des Terrain à bâtir à vendre - Frameries ?

Recevez un email dès qu’il y a un nouveau bien disponible !

Créer une alerte email

Description

Situés dans un environnement agréable et à proximité immédiate de toutes les commodités (axes autoroutiers, écoles, commerces, transports en commun, etc.), ces magnifiques terrains à bâtir sont libres de construction et offrent diverses possibilités de construction : 2, 3 ou 4 façades.Superficie : 3,23 aresPrix : 50.000€Les parcelles, d’une superficie allant de 2 à 9 ares, sont proposées à un prix variant entre 40.000 € et 90.000 €, hors frais.Lots disponibles : - 9A - 40 000€/ 11A 50 000€/ 12A 60 000€ / 29A 45 000€ / 30A 50 000€ / 31A 50 000€ / 33B 65 000€ / 36A 62 000€ / 41A 85 000€ / 44A 85 000€ / 46A 80 000€ / 46B 75 000€ / 47A 90 000€Idéal pour les familles souhaitant construire la maison de leurs rêves ou pour les investisseurs cherchant un bon placement immobilier.Plans, cahier des charges et informations complémentaires disponibles à l’agence ou sur simple demande au0493/25.64.95 –   Contact propriétaires se réservent le droit d’apprécier la qualité et la hauteur des offres reçues.Annonce non contractuelle, ne constituant pas une offre.Les informations fournies sont données à titre indicatif.Besoin d'une estimation ou d'un conseil ? Contactez-nous sans hésiter pour une estimation gratuite et sans engagement au Tel 065/37.77.77 ou par mail à Contact . Tout voir Réduire

Détails financiers

  • Prix: 50 000 €

Services


Informations complémentaires

Données de base

Bien actuellement loué

Non

Description extérieure

Surface totale du terrain

323 m²

Urbanisme et risques environnementaux

Type de zone inondable

Information non communiquée

Zone inondable délimitée

Information non communiquée

Immovlan.be affiche à l’écran toutes les données reçues de l’annonceur. Si certaines données importantes ou obligatoires sont manquantes, c’est qu’elles ne nous ont pas été fournies.

Réf. Immovlan: VBB41442 Réf. vendeur: 3751871 Signaler une fraude

Points d'intérêt à proximité

Crèches

M. M. Du Service Service D'Accueillantes Conv. Alis

861 m 2' 52'' 925 m 1' 34'' 687 m 10' 844 m 10'

Écoles maternelles

Groupe Scolaire Communal De La Victoire

268 m 53'' 268 m 26'' 268 m 3' 268 m 3'

Écoles primaires

Groupe Scolaire Communal De La Victoire

268 m 53'' 268 m 26'' 268 m 3' 268 m 3'

Écoles secondaires

Institut Saint-Luc

1 km 3' 1 km 1' 44'' 864 m 12' 1 km 12'

Autoroutes

A7 / E19 - E42 : Halle - Nivelles - Mons - (Valenciennes, France)

7,5 km 8'

Bus

TEC Hainaut - 2 - Mons - Dour

630 m 8'

TEC Hainaut - 1 - Mons - Saint-Ghislain

630 m 8'

TEC Hainaut - 96 - Mons - Aulnois

698 m 8'

Gares

Frameries

933 m 6' 697 m 1' 21'' 797 m 10' 797 m 10'

Bornes de recharge

Mobilityplus

4,9 km 6'

Voitures en libre-service

Cambio - De Gaulle

5,5 km 25' 4,8 km 23' 5,5 km 1º 6'

Supermarchés

Delhaize Frameries

847 m 2' 49'' 847 m 1' 36'' 726 m 9' 790 m 9'

Aldi Marcinelle

1,2 km 4' 2 km 4' 953 m 14' 1,2 km 14'

Lidl Frameries

1,4 km 6' 1,4 km 2' 28'' 1 km 15' 1,2 km 15'

Parcs d'attractions

Parc D'Aventures Scientifiques Sparkoh !

3,6 km 8'

Musées

Musée Macs - Grand-Hornu

7,8 km 9'

Monuments religieux

Beffroi De Mons

11,5 km 13'

Activités

Maison Van Gogh

6,2 km 8'

Voyages en bateau

Ascenseur Funiculaire De Strépy-Thieu Et Croisière Sur Le Canal Du Centre Historique

25,4 km 19'

Châteaux

Château De Beloeil

32,4 km 25'

Golfs

Royal Golf Club Du Hainaut

16,5 km 14'

Éducation

S'installer à Frameries, c'est profiter d'un quartier bien desservi, à proximité des commodités du quotidien.Pour les parents qui déposent leurs enfants en voiture, la crèche "M. M. Du Service Service D'Accueillantes Conv. Alis" est accessible en 2 minutes.Le trajet quotidien vers l'école est facilité grâce à "Institut Saint-Luc" (école secondaire), accessible en 2 minutes en voiture.Pratique pour les familles : une école maternelle / école primaire est à 1 minute en voiture, ce qui simplifie le quotidien.

Transports

Vous avez besoin de recharger votre véhicule électrique ? La station de recharge la plus proche se trouve à 6 minutes en voiture.Besoin de prendre le train ? La gare SNCB est à 6 minutes à vélo ou 1 minute en voiture.Les automobilistes réguliers seront ravis : l'autoroute A7 / E19 - E42 (Halle - Nivelles - Mons - (Valenciennes, France)) est à 8 minutes.

Tourisme

À 25 minutes de là se trouve le château "Château De Beloeil".Un parc de loisirs est accessible en 8 minutes de route : "Parc D'Aventures Scientifiques Sparkoh !".En 8 minutes de route, vous pourrez atteindre l'activité "Maison Van Gogh".Il y a une promenade en bateau à 19 minutes de route : "Ascenseur Funiculaire De Strépy-Thieu Et Croisière Sur Le Canal Du Centre Historique".Le golf "Royal Golf Club Du Hainaut" est accessible en 14 minutes en voiture.Il faut 9 minutes pour rejoindre le musée "Musée Macs - Grand-Hornu"."Beffroi De Mons" se trouve à 13 minutes de voiture.

Magasins

Le quartier offre un bon choix de supermarchés pour vos besoins quotidiens : "Delhaize Frameries" (9 minutes à pied ou 2 minutes en voiture), "Aldi Marcinelle" (14 minutes à pied ou 4 minutes en voiture), "Lidl Frameries" (15 minutes à pied ou 2 minutes en voiture).

Villes proches

Besoin de rejoindre Valenciennes pour le travail ou les loisirs ? Comptez environ 30 minutes en voiture. Les automobilistes rejoindront Tournai en 36 minutes, pratique pour le quotidien. La Louvière reste facilement accessible en voiture, à 23 minutes de trajet.

Transports en commun

Ce quartier est bien desservi en bus, avec plusieurs lignes à proximité : TEC Hainaut - 1 - Mons - Saint-Ghislain, TEC Hainaut - 2 - Mons - Dour, TEC Hainaut - 96 - Mons - Aulnois avec un arrêt situé à moins de 8 minutes à la marche.Un emplacement pratique qui conjugue accessibilité et commodités pour le quotidien.

Tout voir Réduire