Terrain à vendre - Pepingen

8 résultats (1 - 8)
199 000 €

1670 Pepingen

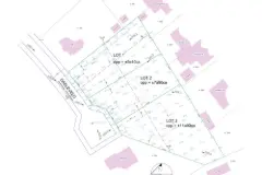
Au cœur du village rural de Bogaarden, le long de la paisible Terheugenstraat, se trouve ce terrain à bâtir destiné à une construction 3-façades. Le terrain fait partie d’un lotissement récemment approuvé (OMV 2023052538). Lot 2 dispose d’une superficie de 4a 18ca. Toutes les infrastructures et raccordements aux réseaux (électricité, eau, etc.) sont prévus dans le lotissement conformément aux conditions de Fluvius et De Watergroep. Affectation : terrain à bâtir pour une construction 3-façades: Largeur de la parcelle : 12 mètres Largeur possible de la façade : 9 mètres Bande latérale non bâtie : 3 mètres Surface constructible : 135 m² Profondeur maximale de construction : Rez-de-chaussée : 15 mètres Étage : 12 mètres Situation & environnement: Rue calme avec de belles vues sur la campagne Situation centrale dans le village de Bogaarden Accès aisé vers Pepingen, Halle et Ninove Idéal pour ceux qui recherchent le calme tout en restant bien connectés Intéressé(e) ? Contactez-nous dès aujourd’hui pour plus d’informations ou pour organiser une visite sur place. Les informations et superficies mentionnées sont fournies à titre indicatif et ne constituent aucun engagement juridique. En savoir plus ?

418 12 m Largeur du terrain
Contacter
Détails
E-mail
Appeler
345 000 €

1670 Pepingen

Immo Groot Leeuw vous propose ce terrain à bâtir situé à Bellingen. La parcelle a une superficie de 11 ares 96 centiares et permet la construction d’une maison 4 façades avec une hauteur de corniche maximale de 6.50 mètres et une profondeur de 15 mètres.Le terrain est situé dans une rue en cul-de-sac calme, entouré de nature.Le terrain est libre d’accès et tous les raccordements aux services publics sont à prévoir par l’acheteur.En cas d’intérêt, vous pouvez toujours nous contacter au ### ou par e-mail à ### . En savoir plus ?

1196 40 m Profondeur du terrain 42 m Largeur du terrain
Contacter
Détails
E-mail
Appeler
175 000 €

1670 Pepingen

Terrain à bâtir pour une construction jumelée sur 4a 25ca avec vue sur la verdure à vendre. Le terrain (lot 1) est situé dans une zone résidentielle à caractère rural et a une largeur de 10,9m permettant une largeur de façade de 7,5m. La construction se fait à 6 mètres minimum de la ligne de construction et la profondeur du bâtiment est de 15 mètres au niveau du sol et de 12 mètres pour le premier étage. La hauteur de la corniche est de 5 (+/-1) m. Pente du toit comprise entre 25° et 50° ou toit plat. Le terrain arrière a été protégé en tant que terre agricole dans le lotissement. Le règlement d'urbanisme peut être téléchargé ou demandé. Coût supplémentaire dans le lotissement de 2 500 € pour l'acheteur. Mesures inscrites au registre des mesures : non. Vous souhaitez obtenir plus d'informations ou faire une offre ? Contactez Structura au ### ou ### En savoir plus ?

425 40 m Profondeur du terrain
Contacter
Détails
E-mail
Appeler
225 000 €

1670 Pepingen

Immo Groot Leeuw vous propose ce terrain à bâtir situé à Bellingen. La parcelle a une superficie de 9 ares 09 centiares et permet la construction d’une maison 4 façades avec une hauteur de corniche maximale de 6.50 mètres et une profondeur de 15 mètres.Le terrain est situé dans une rue en cul-de-sac calme, entouré de verdure et de nature.Le terrain est libre d’occupation et toutes les raccordements aux services publics sont à prévoir par l’acheteur.En cas d’intérêt, n’hésitez pas à nous contacter au ### ou par e-mail à ### . En savoir plus ?

909 45 m Profondeur du terrain 17 m Largeur du terrain
Contacter
Détails
E-mail
Appeler
199 000 €

1670 Pepingen

Immo Groot Leeuw vous propose ce terrain à bâtir situé à Bellingen. La parcelle a une superficie de 7 ares 91 centiares et permet la construction d’une maison 4 façades avec une hauteur de corniche maximale de 6.50 mètres et une profondeur de 15 mètres.Le terrain est situé dans une rue en cul-de-sac calme, entouré de nature.Le terrain est libre d’occupation et tous les raccordements aux services publics sont à prévoir par l’acheteur.En cas d’intérêt, vous pouvez toujours nous contacter au ### ou par e-mail à ### . En savoir plus ?

791 45 m Profondeur du terrain 19 m Largeur du terrain
Contacter
Détails
E-mail
Appeler
225 000 €

1674 Bellingen

Immo Groot Leeuw vous propose ce terrain à bâtir situé à Bellingen. La parcelle a une superficie de 9 ares 09 centiares et permet la construction d’une maison 4 façades avec une hauteur de corniche maximale de 6.50 mètres et une profondeur de 15 mètres.Le terrain est situé dans une rue en cul-de-sac calme, entouré de verdure et de nature.Le terrain est libre d’occupation et toutes les raccordements aux services publics sont à prévoir par l’acheteur.En cas d’intérêt, n’hésitez pas à nous contacter au ### ou par e-mail à ### . En savoir plus ?

909 45 m Profondeur du terrain 17 m Largeur du terrain
Contacter
Détails
E-mail
Appeler
199 000 €

1674 Bellingen

Immo Groot Leeuw vous propose ce terrain à bâtir situé à Bellingen. La parcelle a une superficie de 7 ares 91 centiares et permet la construction d’une maison 4 façades avec une hauteur de corniche maximale de 6.50 mètres et une profondeur de 15 mètres.Le terrain est situé dans une rue en cul-de-sac calme, entouré de nature.Le terrain est libre d’occupation et tous les raccordements aux services publics sont à prévoir par l’acheteur.En cas d’intérêt, vous pouvez toujours nous contacter au ### ou par e-mail à ### . En savoir plus ?

791 45 m Profondeur du terrain 19 m Largeur du terrain
Contacter
Détails
E-mail
Appeler
325 000 €

1674 Bellingen

Immo Groot Leeuw vous propose ce terrain à bâtir situé à Bellingen. La parcelle a une superficie de 11 ares 96 centiares et permet la construction d’une maison 4 façades avec une hauteur de corniche maximale de 6.50 mètres et une profondeur de 15 mètres.Le terrain est situé dans une rue en cul-de-sac calme, entouré de nature.Le terrain est libre d’accès et tous les raccordements aux services publics sont à prévoir par l’acheteur.En cas d’intérêt, vous pouvez toujours nous contacter au ### ou par e-mail à ### . En savoir plus ?

1196 40 m Profondeur du terrain 42 m Largeur du terrain
Contacter
Détails
E-mail
Appeler

Également près de Pepingen (1670) + Localités

139 000 €

1540 Herfelingen

Découvrez cette opportunité unique d'acquérir un terrain à bâtir situé dans la charmante commune de Herfelingen, une localité prisée pour son cadre paisible tout en étant bien connectée aux principales voies de communication. Cette parcelle, d'une superficie totale de 6 ares 40 centiares (640 m²), offre un potentiel exceptionnel pour la construction d'une maison individuelle. Avec un prix fixé à 139 000 €, cette propriété représente une excellente opportunité pour les investisseurs ou ceux qui souhaitent réaliser leur projet résidentiel dans un environnement rural privilégié. Ce terrain, idéalement orienté sud-est, bénéficie d'une localisation calme dans une rue peu fréquentée, tout en restant proche des infrastructures essentielles. La zone est classée en zone agricole, ce qui limite la densité de constructions mais permet cependant de proposer un projet résidentiel sous réserve des autorisations nécessaires. La présence d'un système d'égouts séparatifs raccordé à la voirie garantit une conformité aux normes en vigueur, rendant le projet de construction plus simple à mettre en œuvre. La zone n'étant pas soumise à un risque d'inondation ni protégée pour d'autres motifs, elle présente un profil sécuritaire rassurant pour tout futur acquéreur ou promoteur. Une particularité notable concerne la possibilité d’acquérir une permis d’urbanisme pour la construction d’une maison unifamiliale, avec plans et dossier disponibles à l’achat pour un supplément de 5 000 euros. La dépense totale pour l’achat du terrain et la réalisation du projet immobilier, comprenant la construction selon permis, s’élève à environ 554 977,42 euros hors taxes et droits d’enregistrement. Cette somme inclut notamment le coût de la construction estimée à 410 977,42 euros hors TVA à 21 %, ainsi que les frais liés à l’achat du terrain et aux démarches administratives. La parcelle n’est pas actuellement louée et se prête parfaitement à une réalisation résidentielle clé en main dans un secteur en plein développement, tout en conservant un cadre naturel agréable. Pour toute question ou visite, n'hésitez pas à contacter notre agence au ### afin d’obtenir davantage de précisions ou organiser une visite sur place. C’est une occasion à ne pas manquer pour concrétiser votre projet immobilier dans un environnement rural alliant tranquillité et accessibilité. En savoir plus ?

640
Contacter
Détails
E-mail
Appeler
+32 2 356 00 00
825 000 €

1430 Bierghes

Libre cours à vos projets avec ce lot de 2 terrains ! Situation : Ce lot de 2 terrains est situé dans une drève à faible passage dans le quartier de standing du Bois du Strihoux. Ce superbe quartier est facilement accessible via la E429 donnant accès à Bruxelles en seulement 30 minutes. Le centre d'Enghien et ses commodités telles que les commerces, les écoles, les infrastructures sportives ainsi que sa gare sont à un jet de pierre. Description : Ce superbe lot de 2 terrains, parfaitement orienté Sud-Ouest arrière, totalise un surface de plus de 66 ares 15 centiares. Situé dans le prestigieux lotissement du Strihoux, les prescriptions très souples garantissent une zone de bâtisse large afin de pouvoir implanter votre propriété comme vous le désirez. Laissez le champ libre à vos rêves ! En savoir plus ?

6615
Contacter
Détails
E-mail
Appeler
+32 2 355 59 21
125 000 €

1502 Lembeek

Immo Pické biedt U dit perceel (3 perceelnummers) weiland aan met een oppervlakte van 1ha 56a 08ca. Dit perceel is vrij van pacht en volledig afgesloten. Onderaan grenst het perceel aan een natuurlijke waterloop. Actueel gebruik: paardenweide. En savoir plus ?

15608
Contacter
Détails
E-mail
Appeler
+32 479 20 70 16
675 000 €

1502 Lembeek

Terrain situé dans le BPA 'Lembeek Dorp' Terrain permettant une activité artisanale et pour PME Des bureaux nécessaires au fonctionnement normal de l'entreprise sont autorisés La fonction résidentielle au profit du personnel dirigeant et de surveillance est également autorisée Il existe un accord de principe de la ville de Halle pour la construction de 4 unités PME (le permis-même doit encore être obtenu) Pour plus d'informations: veuillez contacter notre agence En savoir plus ?

1996 m² Surface constructible
Contacter
Détails
E-mail
Appeler
+32 2 356 04 34
150 000 €

1502 Lembeek

Ref: 166 .Ontdek dit prachtige bouwperceel, ideaal gelegen en bestemd voor een halfopen bebouwing. Met een bouwbreedte van 7 meter en een diepte van 15 meter op het gelijkvloers en 12 meter op de verdieping, biedt dit perceel een uitstekend potentieel voor de realisatie van een moderne en lichtrijke woning. Dit terrein vormt een zeldzame opportuniteit om een bouwproject op maat te realiseren, met mooie volumes en een optimale indeling. Technische kenmerken: Het perceel beschikt reeds over een elektriciteitsaansluiting. Aansluitingen voor gas en water zijn nog niet uitgevoerd, maar de nodige leidingen voor aansluiting op het rioleringsnet zijn reeds voorzien. Twee watertanks en een septische put zijn eveneens aanwezig op het terrein. Er werd reeds een kelder gerealiseerd, wat een interessante basis vormt voor de toekomstige constructie. De eerder verkregen bouwvergunningen zijn inmiddels vervallen. Een opportuniteit die u niet mag missen voor liefhebbers van kwalitatieve vastgoedprojecten. Bieden vanaf €150.000. De verstrekte informatie is indicatief en niet contractueel. De eigenaars behouden zich het recht voor om de hoogte en de kwaliteit van de biedingen te beoordelen. Bezoek zeker onze website: ### Wij zijn voortdurend op zoek naar nieuwe panden voor onze klanten in portefeuille. Aarzel niet om ons te contacteren op het nummer ### voor een GRATIS EN VRIJBLIJVENDE SCHATTING. Wat de keuze van de koper betreft: de selectiecriteria van de eigenaar beperken zich niet uitsluitend tot de prijs. De uiteindelijke beslissing ligt volledig bij de eigenaar. En savoir plus ?

600
Contacter
Détails
E-mail
Appeler
+32 2 355 21 21
150 000 €

1502 Lembeek

Réf :: 166 Découvrez ce magnifique terrain à bâtir idéalement situé, conçu pour accueillir une maison 3 façades. Avec une largeur de construction de 7 mètres et une profondeur de 15 mètres au rez-de-chaussée et de 12 mètres à l’étage, cette parcelle offre un excellent potentiel pour la réalisation d’une habitation moderne et lumineuse. Ce terrain constitue une opportunité rare pour concrétiser un projet de construction sur mesure, avec de beaux volumes et une optimisation parfaite. Sur le plan technique, le terrain dispose déjà d’un raccordement à l’électricité. Les raccordements au gaz et à l’eau ne sont pas encore effectués, mais les conduites nécessaires sont déjà prévues pour un raccordement au réseau d’égouttage. Deux citernes d’eau ainsi qu’une fosse septique sont également présentes sur la parcelle. Une cave a déjà été réalisée, offrant une base intéressante pour la future construction. À noter que les permis de bâtir précédemment obtenus sont aujourd’hui expirés. Une opportunité à ne pas manquer pour les amateurs de projets immobiliers de qualité. Faire offre à partir de 150.000€. Informations communiquées à titre indicatif et non contractuel. Les propriétaires se réservent le droit d'apprécier la hauteur et la qualité des offres. N’hésitez pas à visiter notre site internet : ### Nous sommes constamment à la recherche de nouveaux biens pour nos clients en attente, n'hésitez pas à nous contacter au ### pour UNE ESTIMATION GRATUITE ET SANS ENGAGEMENT! Concernant le choix de l'acquéreur; les critères de sélection du propriétaire ne sont pas uniquement le prix. Le choix reste à l'appréciation de ce dernier qui seul, en décidera. En savoir plus ?

600
Contacter
Détails
E-mail
Appeler
+32 2 355 21 21
920 000 €

1500 Hal

Ce terrain à développer situé à Halle représente une opportunité rare pour les investisseurs ou entrepreneurs souhaitant concrétiser un projet immobilier dans une région dynamique. Avec une superficie totale de 2 961 m², cette parcelle de terrain offre une surface généreuse permettant la réalisation de divers projets de construction ou de développement commercial. La localisation précise au Stroppenweg, dans la ville de Halle, confère à cette propriété un emplacement stratégique, alliant accessibilité et potentiel de croissance, dans un environnement qui n'est pas soumis à des risques d'inondation ou à des zones inondables, assurant ainsi une sécurité et une stabilité pour l'investissement. Le prix de vente fixé à 920 000 € reflète la valeur de cette parcelle dans le contexte actuel du marché immobilier belge. La disponibilité immédiate à la signature de l'acte constitue un avantage pour tout acheteur sérieux souhaitant commencer rapidement les travaux ou négocier l'acquisition. La propriété ne présente pas de restrictions particulières liées aux zones inondables ou aux risques naturels, ce qui facilite le processus de planification et de développement. Que ce soit pour un projet résidentiel, commercial ou mixte, cette parcelle offre un potentiel considérable pour réaliser diverses visions entrepreneuriales dans une zone en développement. Située dans la région de Halle, cette parcelle bénéficie d’un environnement où la croissance urbaine reste soutenue, tout en conservant une proximité avec les infrastructures et les commodités locales. Halle étant une ville en pleine expansion, ce terrain représente une opportunité d’investissement à long terme avec un potentiel élevé de valorisation. Pour tout projet ambitieux ou pour toute personne souhaitant acquérir un terrain de qualité dans cette localité, cette propriété constitue une option incontournable. N’hésitez pas à contacter un professionnel pour organiser une visite ou obtenir plus d’informations afin de concrétiser votre projet immobilier dans cette région prometteuse. En savoir plus ?

2961
Contacter
Détails
E-mail
Appeler
+32 2 467 11 56
140 000 €

1500 Hal

Située à Halle, cette parcelle de terrain à bâtir représente une opportunité exceptionnelle pour les investisseurs ou futurs propriétaires souhaitant concrétiser leur projet résidentiel dans un cadre calme et accessible. Au prix de 140 000 €, cette propriété offre un espace de 213 m², idéalement dimensionné pour la construction d'une maison unifamiliale moderne. Située au 25 Sterrestraat, cette parcelle bénéficie d’une localisation stratégique, permettant de profiter à la fois d’un environnement paisible tout en étant proche des principales voies d’accès et des commodités urbaines. La superficie et le plan architectural déjà élaboré offrent une perspective claire pour la réalisation d’une habitation conforme aux besoins contemporains, avec une façade de 7 mètres pour une maison en trois niveaux. La propriété est également équipée d’une place de stationnement couverte privée, un atout précieux dans cette zone résidentielle. Le terrain, d’une largeur de 10 mètres et avec une profondeur de 21,3 mètres, est parfaitement adapté à la construction d’une habitation chaleureuse et fonctionnelle. Le permis d’urbanisme étant en cours de demande, cela permet à l’acquéreur de concrétiser rapidement ses projets sans délai supplémentaire pour l’obtention des autorisations administratives. La conception proposée prévoit une construction en trois niveaux avec une profondeur de 12 mètres, complétée par une terrasse arrière de 3 mètres, qui offrira un espace extérieur agréable pour profiter des beaux jours ou organiser des moments conviviaux en famille. La maison sera coiffée d’un toit en pente, un choix esthétique qui s’intégrera harmonieusement dans le paysage résidentiel local tout en respectant les règles d’urbanisme en vigueur. Située dans une rue tranquille, cette propriété bénéficie également d’un accès facile aux axes principaux qui relient Halle à Bruxelles ou aux autres villes environnantes. La zone est classée en secteur résidentiel, offrant un environnement paisible tout en étant bien desservie, ce qui constitue un avantage considérable pour ceux qui recherchent un équilibre entre vie urbaine et tranquillité. L’absence de risque d’inondation ou de protection particulière à l’environnement immédiat garantit une stabilité pour votre futur investissement. Si vous aspirez à bâtir votre maison idéale dans un secteur en pleine évolution, n’hésitez pas à nous contacter pour organiser une visite ou obtenir davantage d’informations. Cette parcelle constitue une opportunité rare dans la région, combinant potentiel, localisation et prix attractif, et mérite toute votre attention si vous souhaitez concrétiser votre projet immobilier dans la région de Halle. En savoir plus ?

213
Contacter
Détails
E-mail
Appeler
+32 2 356 00 00
120 000 €

1500 Hal

Ce terrain à bâtir (4a71) idéalement situé, proche du centre de Halle, Buizingen et Huizingen, est proposé à la vente. Il se trouve à proximité de nombreux commerces, écoles, de la gare, des transports en commun et bénéficie d’un bon accès aux principaux axes routiers. Le terrain est situé en zone d’habitat. Vous pouvez compter sur une profondeur de construction maximale de 15 mètres au rez-de-chaussée et de 12 mètres à partir du premier étage. La largeur de façade est +- 6,21 m. Étant donné l’emplacement favorable du terrain, il convient également à de nombreuses activités commerciales. Pour toute question ou pour consulter les prescriptions urbanistiques, appelez-nous ou prenez rendez-vous à notre bureau au ### Les informations fournies et les superficies indiquées sont purement indicatives et ne constituent aucun engagement juridique. En savoir plus ?

471
Contacter
Détails
E-mail
Appeler
+32 2 356 00 00
149 000 €

1500 Hal

Immo Pické biedt U dit mooi perceel bouwgrond aan geschikt voor een gesloten bebouwing met een prachtig zicht op de achterliggende weilanden. Deze bouwgrond heeft een mogelijke voorgevelbreedte van 8,50m. Achteruitbouwstrook van 6m. Bouwdiepte gelijkvloers 15m en verdieping 12m. Zadeldak. Kroonlijsthoogte 6,5m. Mogelijkheid om een bijgebouw te plaatsen in de achtertuin. En savoir plus ?

425 50 m Profondeur du terrain
Contacter
Détails
E-mail
Appeler
+32 479 20 70 16
175 000 €

1540 Herne

Magnifique terrain à bâtir orienté plein sud pour la construction d’une villa ou d’un bungalow spacieux, sur une parcelle de 12 ares 57. Situé sur le territoire flamand, mais également proche de la frontière avec Enghien. Largeur de terrain de pas moins de 21 m. Largeur de construction de 13 m, profondeur maximale de 18 m au rez-de-chaussée (maximum 200 m² au total au rez-de-chaussée). À l’étage : 13 m sur 12 m (maximum 156 m²). Un bâtiment annexe de 40 m² est autorisé. Hauteur de corniche entre 3 et 6 m. Garage souterrain non autorisé. Le lotissement date de plus de 15 ans, ce qui permet de demander des dérogations aux prescriptions urbanistiques proposées à l’époque. Pas d’obligation de construire ! Gare et commerces à 1 km, ainsi que les écoles primaires et secondaires. À visiter En savoir plus ?

1257 56 m Profondeur du terrain
Contacter
Détails
E-mail
Appeler
+32 54 34 34 34