Projet: SANTORIN BLOCS E & F - Barvaux-sur-Ourthe 21382-IN00001363_OM_3526

6940 Barvaux-sur-Ourthe

221 325 € - 232 875 €

de 221 325 € à 232 875 €
84 - 90
1 - 2 Chambre(s)
15 unité(s)

Description

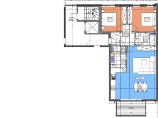
Troisième et dernière phase faisant partie d'un superbe projet d'appartements clés sur porte situé en plein coeur de Barvaux-sur-Ourthe, à proximité de toutes commodités et de Durbuy. Répartis sur 3 étages, les 18 appartements disposent d'une terrasse au sud. Les deux blocs proposent 12 appartements de 2 chambres et 6 appartements d' 1 chambre situés au rez-de-chaussée, 1er et 2ème étage. Prix HTVA avec ventilation de la valeur du terrain (droits d'enregistrement). Un garage couvert au prix de 18.000€ est à rajouter dans le prix. Vous souhaitez recevoir des informations complémentaires sur ce projet (Plans, cahier des charges...). N'hésitez pas à contacter notre bureau au Tel 086/32.36.76 ou Contact Tout voir Réduire

Biens principaux du projet

Appartement 1 Chambre

Appartement 2 Chambres


Documents

352617.031 batifer ef plans commerciaux - r_1.pdf.pdf

Télécharger

352617.031 batifer ef plans commerciaux - r_2.pdf.pdf

Télécharger

352617.031 batifer ef plans commerciaux - rdc.pdf.pdf

Télécharger

352617.031 batifer ef plans commerciaux - sous sol.pdf.pdf

Télécharger

3526cdc batifer santorin barvaux 2022 blocs e _ f.pdf.pdf

Télécharger

Immovlan.be affiche à l’écran toutes les données reçues de l’annonceur. Si certaines données importantes ou obligatoires sont manquantes, c’est qu’elles ne nous ont pas été fournies.
Dernière modification 23/05/2026