Development site for sale - Niel RBS90454

Matenstraat 52 2845 Niel

155 000 €

  • 439 m² Land Surface
  • 70 m Depth of the terrain
  • 6 m Width terrain
Matenstraat 52 2845 Niel

Are you searching for Development site for sale - Niel?

Receive an email as soon as there's a new property available!

Create an alert

Description

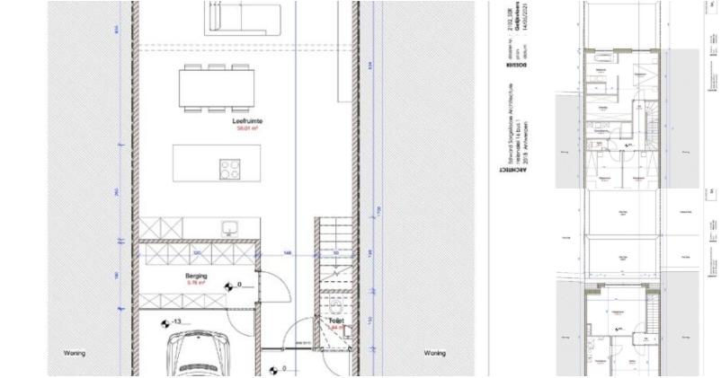
Located in the charming town of Niel, this 439 m² development site presents a rare opportunity for those looking to build their dream home. Positioned on Matenstraat 52, the property comes with an approved building plan allowing the construction of a three-story townhouse complete with a lovely garden, perfect for families or those who appreciate green spaces. With a building width of approximately 6.22 meters, the proposed design offers substantial living space across 17 meters on the ground floor, 13 meters on the first floor, and 9 meters on the second floor, totaling around 235 m² of potential living area. The site benefits from a tranquil yet accessible location, combining peace with convenience. It's in close proximity to local amenities including shops, schools, and public transportation, providing ease of access for everyday needs. The town of Niel offers a pleasant residential atmosphere, making it an ideal setting for your new home. The land is situated in a designated residential area and has received confirmation that it is not in a flood-sensitive zone. For those interested in viewing the building plans or seeking additional information, resources are available through Coenen Vastgoed. This plot is immediately available, allowing for swift commencement of construction. Priced at €155,000, it stands as an attractive option to build a customized residence tailored to individual preferences.

* This text was generated using an artificial intelligence.

Show all Show less

Financial details

  • Price: 155 000 €

Services


More information

General info

Availability

Immediately

Outdoor description

Total land surface

439 m²

Ground depth

70 m

Terrain width at the roadside

6 m

Town planning and environmental risks

Building permission granted

Yes

Urbanism affectation

Residential zone (residential, urban)

Flooding Area type

no flooding area

Demarcated flooding area

(information not available)

The property and/or its surroundings are protected.

No

Immovlan.be displays the data received from the seller. If some important or obligatory data is missing it is because they were not provided to us.

Immovlan ref.: RBS90454 Seller's ref.: TK/0932 Report fraud

Points of interest

Nurseries

'T Klein Stationneke

270 m 54'' 268 m 21'' 270 m 3' 270 m 3'

Preschools

Vrije Basisschool

925 m 3' 923 m 1' 15'' 817 m 11' 925 m 11'

Elementary schools

Go! Basisschool De Parel

887 m 3' 929 m 1' 23'' 716 m 11' 887 m 11'

High schools

Go! Atheneum Willebroek

1.5 km 6' 1.7 km 2' 31'' 1.3 km 18' 1.5 km 18'

Motorways

A12: Brussels - Boom - Antwerpen - (Bergen op Zoom, Netherlands)

4.7 km 5'

A1 / E19: Brussels - Mechelen - Antwerpen - (Breda, Netherlands)

6.7 km 8'

Bus

De Lijn - 295 - Boom - Reet - Niel - Antwerpen

111 m 1' 20''

De Lijn - 298 - Boom - Niel - Berchem

111 m 1' 20''

De Lijn - 183 - Groenplaats - Aartselaar - Niel

704 m 8'

Train stations

Niel

268 m 53'' 282 m 22'' 268 m 3' 268 m 3'

Airports

Antwerp International Airport (Deurne)

14.7 km 1º 2' 16.5 km 17' 0 m 0''

Charging stations

Nissan Belux

3.9 km 5'

Car-sharing system

Cambio - Kioskplaats

7.8 km 29' 6.9 km 39' 7.8 km 1º 34'

Bicycle-sharing system

Donkey - Niel Nmbs

310 m 4'

Supermarkets

Aldi Schelle

773 m 6' 1.2 km 1' 34'' 562 m 9' 773 m 9'

Shop & Go Delhaize Niel

717 m 2' 23'' 631 m 50'' 630 m 8' 641 m 8'

Carrefour Market Niel

970 m 3' 968 m 1' 14'' 867 m 12' 970 m 12'

Amusement parks

Atomium

28.2 km 22'

Museums

Musée Du Design Brussels

28 km 22'

Activities

Centre Sortilège.be

31.6 km 25'

Golfs

Cleydael Golf & Country Club

4.8 km 7'

Shopping

You have the choice between several nearby supermarkets: "Aldi Schelle" (9 minutes by foot or 2 minutes by car), "Shop & Go Delhaize Niel" (8 minutes by foot or 1 minute by car), "Carrefour Market Niel" (12 minutes by foot or 1 minute by car).

Public transports

The closest bus lines are De Lijn - 298 - Boom - Niel - Berchem, De Lijn - 295 - Boom - Reet - Niel - Antwerpen with a stop reachable in fewer than 1 minute as a pedestrian, De Lijn - 183 - Groenplaats - Aartselaar - Niel with a stand 8 minutes’ walk away.

Tourism

The museum "Musée Du Design Brussels" can be reached in 22 minutes.There is an amusement park 22 minutes away by car: "Atomium"."Cleydael Golf & Country Club" STRONG]golf can be reached in 7 minutes by car.An interesting activity to do in the vicinity: "Centre Sortilège.be" within 25 minutes drive.

Transports

You don’t want to own a car, but you still occasionally need one? There is the "Cambio - Kioskplaats" station where you can rent a shared vehicle just 94 minutes away by foot.Do you need to charge an electric car? The nearest charging station ("Nissan Belux") is just 5 minutes away by car.The nearest train station is "Niel": reachable in 1 minute by car, or 3 minutes by public transport.The "Donkey - Niel Nmbs" station allows you to rent a bike at 4 minutes away by foot.For holidays or business, you can reach Antwerp International Airport (Deurne) in fewer than 17 minutes by car.The A12 (Brussels - Boom - Antwerpen - (Bergen op Zoom, Netherlands)) motorway is accessible in 5 minutes and A1 / E19 (Brussels - Mechelen - Antwerpen - (Breda, Netherlands)) will take 8 minutes.

Education

The closest nursery is named "'T Klein Stationneke" and is 1 minute' away by car.If you are looking for a preschool, "Vrije Basisschool" it is 1 minute away by car.You can find a convienient elementary school: "Go! Basisschool De Parel", 11 minutes away by foot.Go! Atheneum Willebroek is the most convieniently located high school: just 6 minutes away by bike.

Nearby cities

In just 28 minutes by car you can reach Dendermonde. Only 25 minutes are needed to reach Beveren with your car. Sint-Niklaas is only 26 minutes away by car. In just 19 minutes by car you can reach Mechelen.

Show all Show less