Land for sale - Niel

2 results (1 - 2)
155 000 €

2845 Niel

Located in the charming town of Niel, this 439 m² development site presents a rare opportunity for those looking to build their dream home. Positioned on Matenstraat 52, the property comes with an approved building plan allowing the construction of a three-story townhouse complete with a lovely garden, perfect for families or those who appreciate green spaces. With a building width of approximately 6.22 meters, the proposed design offers substantial living space across 17 meters on the ground floor, 13 meters on the first floor, and 9 meters on the second floor, totaling around 235 m² of potential living area. The site benefits from a tranquil yet accessible location, combining peace with convenience. It's in close proximity to local amenities including shops, schools, and public transportation, providing ease of access for everyday needs. The town of Niel offers a pleasant residential atmosphere, making it an ideal setting for your new home. The land is situated in a designated residential area and has received confirmation that it is not in a flood-sensitive zone. For those interested in viewing the building plans or seeking additional information, resources are available through Coenen Vastgoed. This plot is immediately available, allowing for swift commencement of construction. Priced at €155,000, it stands as an attractive option to build a customized residence tailored to individual preferences. Want to know more?

439 70 m Depth of the terrain 6 m Width terrain
contact
details
Email
Call
169 000 €

2845 Niel

This exceptional development site at Matenstraat 52 in the charming town of Niel offers a unique opportunity for those looking to build a dream home. Priced at €169,000, this plot spans 439 m² and comes with approved building plans allowing for the construction of a stunning townhouse. The plans include three floors with a delightful garden, perfectly suited for families or individuals who appreciate outdoor space. The proposed home can have a width of approximately 6.22 meters, with building depths of 17 meters on the ground floor, 13 meters on the first floor, and 9 meters on the second floor, resulting in a total living area of around 235 m². The location combines tranquility with convenience, offering easy access to local amenities such as shops, schools, and public transport. This ensures that future homeowners will benefit from both a peaceful living environment and the accessibility of urban facilities. Importantly, the property is not located in a flood-prone area, which offers peace of mind regarding environmental concerns. For those interested in further details or obtaining building plans, additional information is available through the real estate office. The plot is immediately available for development, making it an attractive opportunity for those eager to start building their future home in a residential area that's both strategic and serene. For inquiries, visit ### or call ### Want to know more?

439 70 m Depth of the terrain 6 m Width terrain
contact
details
Email
Call

We only found a few results that match your criteria.

Create an e-mail alert to stay up-to-date with new properties matching your criteria!


Below you can find some more interesting places in the surroundings of Niel (2845).

130 000 €

2850 Boom

A building plot located in Boom, Nielsestraat between house numbers 225 and 237 with an area of 277 m². An environmental permit has already been delivered and there are building plans available that can be taken over. The plot is burdened with an easement relating to immovable heritage - village view whereby the following condition was linked to the environmental permit: The passageway in the form of a staircase between the proposed new building and the house Nielsestraat 237 which provides access beyond the rear façade of the house Nielsestraat 237, to parcel 1st ward section A no. 497/R must be preserved and kept open and therefore cannot be privatized under any circumstances. After all, according to the drawing on the GRB, this passage is also located on a separate plot, without a plot number. The passageway from the stairs towards the parcel 1st division section A no. 497/R must therefore also remain open at the level of the rear façade and consequently no gate can be installed; the free use of the passageway and of the easement must be maintained as stipulated in the Protection Order dated July 25, 1986. No relief changes may be made in the garden area. For more information do not hesitate to contact our office at ### or ### (Wg - Vg - Gvv - Vkr - Gmo) Flood zone : No, P-score: B, G-score: B Want to know more?

360
contact
details
Email
Call
+32 3 886 32 85
139 000 €

2830 Willebroek

Discover a fantastic opportunity to acquire a spacious building plot situated in the quiet and residential Appeldonkstraat in Willebroek. Priced at €139,000, this land offers an excellent foundation for developing a custom home or investment property in a sought-after location. The property is currently not rented and will be available upon the signing of the deed, providing a seamless transition for prospective buyers. Spanning a total area of 377 square meters, with a depth of approximately 40 meters, this plot provides ample space for various development possibilities, while the exact dimensions are indicative. The location of this land in Willebroek is particularly advantageous, combining tranquility with exceptional connectivity. The proximity to local amenities such as shops, schools, and horeca establishments ensures that daily necessities and leisure activities are easily accessible. For commuters, Willebroek station is less than one kilometer away, offering convenient travel options. Additionally, major routes like the A12 motorway are within a few minutes’ drive, providing direct access to Antwerp and Brussels — two of Belgium’s most important cities. This strategic positioning makes it ideal for those seeking a balanced lifestyle with easy access to urban centers while enjoying the peaceful surroundings of a residential neighborhood. This property represents an attractive investment opportunity in Willebroek, whether for building a family home or as part of a broader portfolio. Its generous size and prime location make it suitable for various development plans, subject to local planning regulations. For those interested in exploring this unique piece of real estate, further details and viewing arrangements can be readily discussed. Contact us today to learn more about this excellent land offering and take the next step toward securing a valuable property in Willebroek’s desirable area. Want to know more?

377 40 m Depth of the terrain
contact
details
Email
Call
+32 15 79 46 46
205 000 €

2620 Hemiksem

In het hart van Hemiksem, aan de Hoogstraat, bevindt zich deze bouwgrond van 10 meter breedte aan straatkant binnen een recent goedgekeurde verkaveling. Kenmerken van het perceel: Gevelbreedte: 10 m. Bouwdiepte: maximaal 13 m. Zuidelijk georiënteerde tuin. Bouwprofiel: 2 bouwlagen + dakverdieping. Dakvorm: zadeldak, helling 45°. Verplichte inpandige garage. Bijgebouwen zijn toegestaan achteraan de tuin (max. 30 m²). Ligging: De bouwgrond ligt op een centrale en toch rustige locatie in Hemiksem. Op wandelafstand vind je buurtwinkels, scholen, kinderopvang en park Abdij. Een bushalte bevindt zich op slechts 95 m van het perceel, met een vlotte verbinding naar Antwerpen en de omliggende gemeenten. Want to know more?

217 27 m Depth of the terrain
contact
details
Email
Call
+32 3 600 17 80
365 000 €

2830 Willebroek

Building with characterful facade in the heart of Willebroek - ideal for renovation or new construction project Discover this versatile property with numerous possibilities in the center of Willebroek. The building is currently a commercial house with a residence and warehouse but can be transformed into multiple apartments or, if desired, demolished for a completely new construction project. In renovation, the characterful facade offers a unique advantage to maintain the charming view and combine it with modern comfort. The location is absolutely central: within walking distance of shops, schools, restaurants, and public transportation. Moreover, you benefit from easy accessibility thanks to the proximity of the main access roads and highways. Whether you are looking for an interesting investment, a project with development potential, or a characterful renovation property, this building offers it all. Location: Center of Willebroek Possibilities: Renovation - multi-family housing/apartments | Demolition and new construction Nearby: Shops, public transportation, schools, restaurants, connecting roads More information or a visit on site? Contact Bjorn Marievoet ### ### Want to know more?

404 42 m Depth of the terrain 10 m Width terrain
contact
details
Email
Call
+32 3 211 06 11
185 000 €

2830 Willebroek

Are you dreaming of a new home in a peaceful environment, yet with all amenities within reach? Then this building plot for semi-detached construction in Tisselt is exactly what you are looking for! Tisselt, a charming village within the municipality of Willebroek, is known for its tranquil residential environment, good accessibility, and proximity to shops, schools, and nature reserves. Thanks to the smooth connection to the A12 and N16, you can easily reach Mechelen, Antwerp, or Brussels. Cycling and hiking routes through the surrounding nature also make it a wonderfully relaxing place to live. General building regulations (subject to change – always to be confirmed with the municipality): Building depth: - Ground floor: approx. 17 m - Floor: approx. 13 m Building height: 2 full-fledged building levels allowed, with the possibility of an attic or roof volume Roof shape: Sloping roof mandatory or allowed, depending on design – some flat roofs possible under certain conditions Environment: Peaceful environment with shops, schools, and public transport nearby Why choose Tisselt? - Peaceful living in a green environment - Near nature, recreation, and cycling networks - Easy connections to Willebroek, Puurs, and Mechelen - All amenities within a short distance Don't miss this opportunity to realize your dream home in a rural but strategically located neighborhood! More information or a visit on-site? Contact Bjorn Marievoet ### ### Want to know more?

1136 129 m Depth of the terrain 9 m Width terrain
contact
details
Email
Call
+32 3 211 06 11

FOR SALE: 2 BUILDING PLOTS IN WILLEBROEK 📍 Breendonkstraat 231, Willebroek Do you dream of custom building in a central location? Then these two beautiful plots of building land at Breendonkstraat 231 in Willebroek are just what you are looking for! PLOT CHARACTERISTICS: - Two lots available: - 1 suitable for closed construction - 1 suitable for semi-detached buildings - Plot width: 8.26 m per lot - Maximum building depth: 17 m on the ground floor, 13 m on the second floor - Building height: up to 2 full storeys + an additional storey under a pitched roof - Roof shape: gable roof up to 13 m depth, subsequent flat roof - Dormers allowed up to 2/3 of the gable width - Terrace: allowed up to a maximum of 40 m² - No underground levels allowed With a maximum cornice height of 6.50 m on 13 m depth and 3.50 m on the rear part of the house, you enjoy stylish and contemporary building possibilities. The ridge height may go up to 11 m. LOCATION These building plots are located in an excellent location in Willebroek, near stores, schools, public transport and with easy access to the A12 and surrounding cities. YOUR DREAM PROJECT STARTS HERE! Interested in a visit or want more info about the building regulations? Contact us today! Want to know more?

504 17 m Depth of the terrain
contact
details
Email
Call
+32 15 49 49 00
185 000 €

2830 Willebroek

Building land for sale of 254m2 for a semi-detached house near the center of Willebroek! What are the advantages of this building land? Possibility to build a semi-detached house with +- 250m2 of living space Possibility of a garden of +- 80m2 Behind the house is a green area with a park Very good connections to the A12 and public transport Moreover, you are centrally located between Antwerp and Brussels The building land has the following dimensions: L: 24.19m W: 10.50m Subdivision and building plans available on request. Flood-prone: No (P score = D, G score = UNKNOWN) Vg, Wg, Gmo, Vkr, Vv Interested? Contact us for more information or a viewing: ### ### Want to know more?

254 24 m Depth of the terrain 10 m Width terrain
contact
details
Email
Call
+32 3 211 06 11
375 000 €

2870 Liezele

This development site, located at Hof ter Bollen 11A in the serene village of Liezele, offers an exceptional opportunity for those looking to build their dream home. Priced at 395,000 €, this parcel spans a generous 1,277 square meters, providing ample space for an open construction. Nestled in a tranquil and green setting, the property is perfectly oriented to the west, ensuring you can enjoy the warmth of the afternoon and evening sun. This orientation makes it ideal for designing a bright and airy home with a delightful garden and unencumbered views of the surrounding greenery. The location strikes a harmonious balance between natural serenity and residential convenience. Despite its peaceful ambiance, the site ensures easy access to all necessary amenities, including shops, schools, public transport, and major roadways. This makes it a practical option for those looking to combine the tranquility of a green environment with the conveniences of modern living. Whether your vision is a contemporary villa or a classic family home, this plot provides a solid foundation to bring your residential aspirations to life. Planning permissions have already been granted, and the area is designated for residential purposes. While the site is in an effective flood-prone area, it stands as a unique opportunity for savvy buyers who wish to construct in a green and peaceful locale, away from the hustle and bustle of city life. For further details or inquiries, interested parties are encouraged to contact the office directly. Want to know more?

1277
contact
details
Email
Call
+32 495 42 66 52
140 000 €

9150 Kruibeke

Discover a prime development opportunity in the heart of Kruibeke with this exceptional building plot available for sale at a competitive price of €140,000. Located on Anneliese Andriessenstraat, this site offers a unique chance for prospective homeowners or investors to realize their vision of constructing a new residence in a highly sought-after area. Spanning approximately 298 square meters, this plot is perfectly situated near the Kruibeekse Polder and provides easy access to major roads, making it an ideal location for those seeking both tranquility and connectivity. This building land is oriented to the north, ensuring optimal sunlight exposure and a comfortable living environment. The property benefits from an already obtained urban planning permit, marking it as construction-ready and saving valuable time in the development process. According to the current building regulations, a closed construction can be erected on the site with up to two full floors plus an attic. The maximum building depth for the ground floor is 17 meters, with the first floor allowed to reach a depth of 12 meters, and the attic can be expanded into an additional floor accessible via a fixed staircase. These parameters provide significant flexibility for designing a personalized family home or investment property tailored to your needs. Kruibeke itself is renowned for its peaceful ambiance, natural beauty, and convenient location within Flanders. The plot's designation as an area with an A-score for urban planning indicates excellent planning quality, and the site is not situated within a flood-prone zone, ensuring safety and peace of mind. Its proximity to important roads facilitates easy commuting and accessibility, making it a highly desirable location for future occupants or developers. Whether you are looking to build your dream home or invest in a promising development project, this plot presents an outstanding opportunity. For further details on possibilities and building regulations, contact us today and take the first step towards transforming this promising plot into your future property. Want to know more?

250 8 m Width terrain
contact
details
Email
Call
+32 3 296 37 69
160 000 €

9150 Kruibeke

Discover an exceptional development opportunity in the charming town of Kruibeke with this prime building plot located at Anneliese Andriessenstraat 9. Priced at €160,000, this spacious 298 m² lot presents a fantastic chance for prospective homeowners or investors to bring their visions to life on a well-situated piece of land. The plot benefits from a favorable north orientation, ensuring optimal sunlight exposure throughout the day, and has already received all necessary planning permissions, making it entirely ready for construction. Its strategic location provides easy access to the Kruibeekse Polder as well as major roads, facilitating seamless commuting and connectivity to surrounding areas. This building site is zoned for a semi-detached house with specific building regulations that allow for a practical and comfortable family home. The permitted construction includes two full stories plus an attic, with a maximum building depth of 17 meters on the ground floor and 12 meters on the first floor. An attic space can be developed into an additional living area via a fixed staircase, providing flexibility for future expansion. The plot’s dimensions and zoning rules offer ample scope for designing a modern, functional residence tailored to individual needs, whether it be a contemporary family home or a bespoke residence. Its readiness for construction, combined with the straightforward building regulations, makes this property particularly attractive for those seeking a hassle-free development process. Kruibeke itself is a vibrant community renowned for its picturesque surroundings and peaceful lifestyle. The area combines rural charm with excellent accessibility, making it an appealing choice for families, professionals, or anyone looking to settle in a tranquil yet well-connected location. The absence of flood risk and any environmental protection status further add to the appeal of this property, offering peace of mind and security for future development. With all essential permits already in place and its prime position within Kruibeke’s town center, this development site presents a compelling investment opportunity or the perfect foundation for your custom-built home. Contact us today to learn more about this unique plot and start planning your future in Kruibeke. Want to know more?

298
contact
details
Email
Call
+32 3 296 37 69
140 000 €

9150 Kruibeke

Discover a prime development opportunity in the heart of Kruibeke with this exceptional building plot listed at €140,000. Located at Anneliese Andriessenstraat 11, this parcel offers a rare chance to realize your vision of a custom-built home in a highly sought-after area. Spanning 252 square meters, the plot is perfectly situated in the town center, providing convenient access to the picturesque Kruibeekse Polder and major routes. Its favorable orientation and existing urban planning permits make it an ideal choice for those looking to develop a bespoke residence in a vibrant yet peaceful setting. This plot is notably ready for construction, having already secured a building permit, and is fully prepared for immediate development. The land is north-facing, offering optimal sunlight distribution, and can accommodate a semi-closed building comprising two full stories plus an attic. According to the current building regulations, the maximum footprint for the ground floor is 17 meters in depth, with the first-floor extension limited to 12 meters. The attic space offers the potential for an additional level, accessible via a fixed staircase, providing flexibility for various residential layouts. The plot’s accessible dimensions include an 8-meter frontage, which allows for a variety of architectural designs that suit both personal preferences and functional needs. Kruibeke is renowned for its quality of life, with excellent access to local amenities, scenic natural surroundings, and good transportation links. The property benefits from a high environmental score (P-Score A) and is not located within a flood-prone zone or protected area, ensuring peace of mind for future development. Whether you are an investor seeking to capitalize on the growing demand for new homes or a future homeowner eager to design your dream residence from scratch, this land offers an outstanding foundation to bring your plans to life. Contact us today to explore this unique opportunity and take the first step towards shaping your future in Kruibeke. Want to know more?

252 8 m Width terrain
contact
details
Email
Call
+32 3 296 37 69
160 000 €

9150 Kruibeke

Develop a prime development opportunity in the charming town of Kruibeke with this exceptional building plot offered at €160,000. Situated at Anneliese Andriessenstraat 12 within the postal code 9150, this parcel of land spans 302 square meters and is positioned in a highly accessible and desirable area. With an existing urban planning permit, the site is fully ready for construction, allowing for a smooth transition from purchase to building. The terrain is ideally oriented toward the north, offering optimal sunlight and versatility for future development. This plot presents an excellent opportunity for investors or individuals eager to create a custom-built residence in a tranquil yet well-connected location. The zoning rules permit the construction of a semi-detached house with up to two full stories plus an attic. The maximum building depth allowed on the ground floor is 17 meters, with the first floor limited to 12 meters, and the attic can be converted into an additional level with a fixed staircase. These generous parameters provide ample space for a spacious family home tailored to personal preferences. The plot's buildability, combined with its prime location, makes it particularly attractive for those looking to develop in a peaceful environment that remains close to essential amenities and transportation routes. Given that the site is not situated within a flood-prone area or protected zone, it offers peace of mind regarding environmental risks and future development. Kruibeke itself is renowned for its scenic surroundings, including proximity to the Kruibeekse Polder, offering a blend of rural charm and accessibility. The area boasts a high P-Score of A, indicating excellent urban planning standards and environmental quality. Its strategic location ensures easy access to major roads and inlets, making commuting straightforward while preserving the peaceful village atmosphere. Whether you're a seasoned developer aiming to maximize this opportunity or an aspiring homeowner wanting to design your perfect residence, this plot represents a unique chance. For further details on permitted building options and to explore how this land can fit your development plans, contact us today. We look forward to helping you realize your vision in this promising setting. Want to know more?

302
contact
details
Email
Call
+32 3 296 37 69
128 500 €

2660 Hoboken

Discover a prime development opportunity in the heart of Hoboken with this centrally located building plot on Moretusstraat 88. Priced at €128,500, this spacious 181 m² parcel offers a versatile foundation for aspiring developers or those looking to build their perfect family home in a peaceful yet accessible area. Situated within a residential zone with a clear urban planning designation, this site provides a blank canvas for innovative construction while benefiting from its proximity to the vibrant center of Hoboken. The property is currently vacant and immediately available upon deed transfer, making it an attractive prospect for investors or individuals eager to customize their future residence. This plot's dimensions include a depth of 36 meters, offering ample space for various building configurations. Considering the implications of local building regulations, a single-family dwelling is most advisable for this property, given its limited size. However, there is potential for a multi-unit residence, provided all construction plans adhere to the relevant building codes and legal requirements, including accessibility, fire safety, light and sight regulations, water management, and environmental considerations. The maximum permissible building volume could involve two floors under a pitched roof, with specific depth constraints—17 meters on the ground floor, 13 meters on the first floor, and 9 meters for the roof level—ensuring compliance with municipal stipulations. Developers are encouraged to submit detailed preliminary designs to assess feasibility further, particularly regarding the possibility of constructing a multi-unit building with up to three units. The location in Hoboken offers significant benefits, combining tranquility with excellent access to local amenities. The property's proximity to schools, public transportation, and the city center makes it highly desirable for future residents or tenants. Hoboken’s well-maintained infrastructure and strategic position within the region ensure that any development here will enjoy both convenience and long-term value. Whether you are looking to create a cozy family home or explore multi-unit possibilities, this plot provides a robust foundation. To explore this opportunity further or to obtain detailed planning information, interested parties are encouraged to contact us directly. This is an exceptional chance to shape your real estate ambitions in a sought-after Belgian locale—act now and take the first step towards realizing your project. Want to know more?

181 36 m Depth of the terrain
contact
details
Email
Call
+32 3 290 30 30
345 000 €

2660 Hoboken

Title: Development Site for Sale - Hoboken Located at Schansstraat 7, 2660 Hoboken, this expansive development site offers a prime opportunity for investment. The property spans an impressive total ground area of 18,914 square meters. It is divided into two distinct zoning areas: a park area and an area designated for day recreation. The land is currently known in the cadastral registry as a sports building (5,169 m²) established in 1977, and undeveloped land (13,745 m²). The zoning for day recreation allows for facilities and activities such as tennis courts, paddle areas, and football fields, provided they meet building code regulations and other relevant legal requirements concerning accessibility, fire safety, and lighting. This portion of the property is ideally suited for the development of recreational and tourist accommodation, with strict guidelines ensuring high standards of safety and usability. The park area is to be preserved in its current state, with any form of activity requiring specific permits to ensure minimal impact on the natural environment. This preserved section of the land guarantees a serene and green backdrop, providing valuable open space within the property. Priced at €345,000, this site presents a unique blend of development potential and natural beauty, making it an attractive proposition for discerning investors or developers. Want to know more?

18914
contact
details
Email
Call
+32 3 283 83 13

Discover an exceptional development opportunity in the charming town of Temse with this prime building plot listed at €275,000. Located at Beeldstraat 1 in the peaceful and central area of Temse, this spacious plot offers a perfect foundation for constructing your dream home. The property is a versatile open building lot with an attached outbuilding, providing ample space and flexibility for your project. With a depth of 53 meters, the land spans a generous area suitable for a variety of residential designs. Currently, the site is not rented and will be available upon signing the deed, making it an ideal investment for those seeking a personalized construction project in a tranquil yet well-connected environment. This plot benefits from excellent accessibility, situated in a serene neighborhood that remains conveniently close to major transport routes. Its strategic location ensures quick access to numerous local amenities, including delicatessen shops, schools, sports facilities, and natural recreation areas—all within a few minutes. Public transportation options further enhance mobility, allowing residents to effortlessly reach other parts of Temse and beyond. The region’s natural beauty combined with its infrastructural connectivity makes this site particularly attractive for families, professionals, or investors looking to develop a bespoke residence in a thriving community. The land’s setup is ideal for those wishing to create a customized home on their terms, with support from professionals like .vr build, who can guide and realize your plans from conception to completion. Please note that the listed price excludes VAT, registration fees, and notary costs. This opportunity invites prospective buyers to envisage their future in an area that blends peaceful living with urban convenience. If you are interested in acquiring this spacious building plot or wish to explore the possibilities of development on this site, we encourage you to contact us promptly. Our team is ready to assist you through every step of the process, ensuring that your project begins smoothly and aligns perfectly with your aspirations. Take the next step toward building your ideal home in Temse by reaching out today—this exceptional offering won’t last long on the market. Want to know more?

53 m Depth of the terrain
contact
details
Email
Call
+32 3 775 58 00
295 000 €

2610 Wilrijk

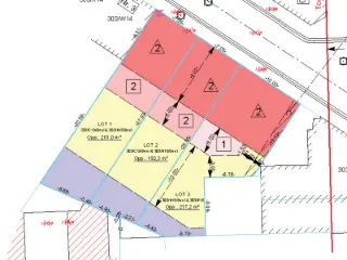
This building plot (320m²) for a new construction closed building is for sale in the sought-after Neerlandwijk at Planetariumlaan in Wilrijk. The location is extremely ideal near the center of Wilrijk and within walking distance of stores, schools and public transport. Important access roads such as A12 and E19 are also nearby. The building ground is suitable for a new construction closed building, type bell floor, of 8m facade width and 12m depth. On the street side a space should be kept free for a driveway and/or front garden. Layout - front garden and driveway - ground floor (48m²) with compulsory indoor parking - second floor (48m²) - second floor (48m²) - terrace and garden (176m²) Details - central location in Wilrijk - coveted Neerlandwijk - garden - many opportunities Lot 2 (454m²) is also for sale for 318,000 euros and is suitable for a semi-detached building with attached garage. Are you interested in this building plot suitable for a new home in Wilrijk, are you looking for other real estate or would you like to know the value of your property? Then you have come to the right place at BOLT immo! We will gladly help you. Want to know more?

106 m² Buildable surface 454 40 m Depth of the terrain
contact
details
Email
Call
+32 3 568 68 06