Ground floor for sale - Kampenhout RWC40846

Haachtsesteenweg 195 1910 Kampenhout

from 350 000 € to 365 000 €

  • 2 Bedroom(s)
  • 1 Parking place(s)
  • 1 Bathroom(s)
  • Terrace
Haachtsesteenweg 195 1910 Kampenhout

Are you searching for Ground floor for sale - Kampenhout?

Receive an email as soon as there's a new property available!

Create an alert

Description

Discover a fantastic opportunity to own a modern ground-floor property in the picturesque town of Kampenhout, located at Haachtsesteenweg 195, with a compelling asking price of €350,000. This well-appointed residence offers an excellent blend of contemporary design and practical features, making it an ideal choice for a variety of buyers, from young professionals to families. The property’s excellent condition and thoughtfully designed layout promise a comfortable and energy-efficient lifestyle, emphasizing both quality and functionality. This ground-floor unit boasts two spacious bedrooms, offering ample space for relaxation and privacy. The living area is generous and inviting, seamlessly connected to an open kitchen that is fully equipped with high-quality appliances, allowing for enjoyable cooking and entertaining experiences. The presence of a private garden and terrace enhances outdoor living possibilities, perfect for enjoying sunny days or hosting gatherings. The residence benefits from advanced energy-saving features such as solar panels, underfloor heating powered by a heat pump, double glazing, and a ventilation system with heat recovery, ensuring low running costs and a reduced environmental footprint. Additionally, the property includes an underground garage with space for one vehicle, complemented by bicycle storage and waste disposal facilities, providing practical solutions for everyday living. Situated in Kampenhout, this property is ideally located within walking or cycling distance to essential amenities such as shops, schools, and public transportation options, ensuring convenience at your doorstep. The excellent connectivity to major cities like Brussels, Mechelen, and Leuven makes commuting straightforward and hassle-free. Built in 2025, this property is part of a new development that combines quality construction with sustainable technologies. The development’s location scores high on flood safety assessments, with no risk of flooding in the area. With registration rights on the land and VAT applicable on the construction, this offer represents an attractive investment opportunity. Contact us today to arrange a viewing or to obtain further details about this exceptional property in Kampenhout—your new home awaits.

* This text was generated using an artificial intelligence.

Show all Show less

Financial details

  • VAT applied?: Yes

Part of a new construction project

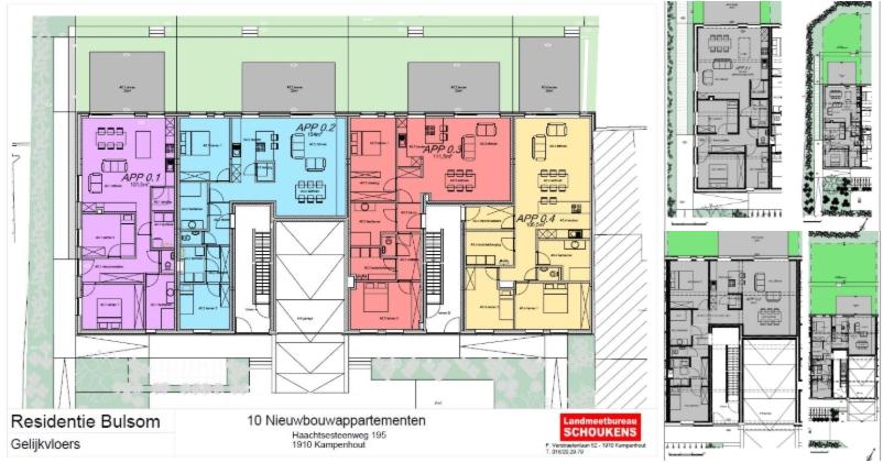
Residentie Bulsom

Residentie Bulsom

Sorry we haven’t received any English translation for this text.

Nieuwbouwproject, 6% BTW mogelijk voor eerste bewoners en investeerders/verhuurders.

Met trots presenteren we een exclusieve selectie van moderne en stijlvolle appartementen. Of je nu op zoek bent naar een appartement met terras, gelijkvloers met privétuin of duplex met weids uitzicht, Residentie Bulsom heeft het allemaal! Elk appartement is zorgvuldig ontworpen met oog voor detail en biedt een eigentijdse uitstraling die naadloos aansluit bij de omgeving. De gemeenschappelijke tuin is voorzien van een wadi.

Residentie Bulsom omvat 10 nieuwbouwappartementen in Kampenhout (Berg). Op wandel-fietsafstand van alle voorzieningen zoals winkels, scholen, openbaar vervoer. Vlotte verbinding naar Brussel – Mechelen – Leuven.

Alle appartementen beschikken over 2 slaapkamers alsook een comfortabele leefruimte met open keuken. Dankzij de variërende oppervlaktes (gaande van 94m² tot 115m²) zijn de appartementen de perfecte keuze voor starters, gezinnen en senioren die zorgeloos willen genieten en bovendien een rendabele investering.

De kwalitatieve en hedendaagse interieurafwerking gebeurt volgens uw specifieke materiaalkeuzes (tegels, badkamer, keuken), zo maakt u met de inrichting een echte thuis.

Voor elke unit is er een ondergrondse garage voorzien. Tevens is er een fietsberging alsook vuilnislokaal aanwezig in de ondergrondse verdieping. Twee bovengronds bezoekersparkings.

Uiterst energiezuinig met zonnepanelen, vloerverwarming op warmtepomp, ventilatie D, regenwaterrecuperatie.
Start van de werken najaar 2025.

Verkoop geschiedt onder registratierechten (12%) op het grondaandeel en BTW (6% of 21%) op het constructieaandeel, volgens de voorwaarden van de Wet Breyne.

Overstromingsgevoeligheid: P-score A / G-score
Price 327 000 € to 370 000 €
Livable surface 94 m² to 115 m²
Show entire project

Properties available

Seller's ref. : 3776_0.4

Price

360 000 €

Livable surface

106 m²

Surface garden

75 m²

Surface terrace

20 m²

Floor of appartment

0

Number of facades

2

Availability

Negotiable

Seller's ref. : 3776_0.2

Price

365 000 €

Livable surface

104 m²

Surface garden

143 m²

Surface terrace

20 m²

Floor of appartment

0

Number of facades

2

Availability

Negotiable

Seller's ref. : 3776_0.1

Price

350 000 €

Livable surface

102 m²

Surface garden

80 m²

Surface terrace

20 m²

Floor of appartment

0

Number of facades

3

Availability

Negotiable


Services


More information

General info

State of the property

Excellent

Build Year

2025

Availability

Negotiable

Interior description

Number of bedrooms

2

Bike storage

Yes

Garage

Yes

Number of parking spaces (indoor)

1

Motorized garage door

Yes

Kitchen and bathrooms

Kitchen equipment

Super equipped

Number of bathrooms

1

Heating and energy

Solar panels

Yes

Type of heating

Electricity

Floor heating

Yes

Heat pump

Yes

Type of glazing

Double glass

Individual electric meter

Yes

Bi-hourly counter

Yes

Individual water meter

Yes

Outdoor description

Garden

Yes

Terrace

Yes

Sewer Connection

Yes

Running water

Yes

Rain water tank

Yes

Certificates and Compliance

Certification - Electrical installation

yes, certificate in accordance

Town planning and environmental risks

G-score

A

P-Score

A

Flooding Area type

no flooding area

Demarcated flooding area

(information not available)

Water sensitive open space areas

No

Immovlan.be displays the data received from the seller. If some important or obligatory data is missing it is because they were not provided to us.

Immovlan ref.: RWC40846 Seller's ref.: 3776 Report fraud

Points of interest

Nurseries

Zonnetje Kampenhout

1.4 km 5' 1.5 km 2' 19'' 829 m 14' 1.2 km 14'

Preschools

Gemeentelijke Basisschool - De Toverberg & Het Klimtouw

714 m 2' 53'' 757 m 59'' 524 m 9' 714 m 9'

Elementary schools

Gemeentelijke Basisschool - De Toverberg & Het Klimtouw

714 m 2' 53'' 757 m 59'' 524 m 9' 714 m 9'

High schools

Veld-Veltem

8.7 km 52' 9.9 km 13' 0 m 0'' 8.5 km 1º 42'

Motorways

A1 / E19: Brussels - Mechelen - Antwerpen - (Breda, Netherlands)

8.7 km 9'

R0 Brussels ring

6.3 km 6'

Bus

De Lijn - 505 - Zaventem Atheneum - Kampenhout

537 m 6'

De Lijn - 294 - Tildonk - Haacht - Nederokkerzeel - Berg

537 m 6'

De Lijn - 505 - Kampenhout - Zaventem Atheneum

508 m 6'

Train stations

Kortenberg

5.6 km 26' 7.8 km 8' 0 m 0'' 5.6 km 1º 7'

Airports

Brussels Airport

10.1 km 44' 13.2 km 12' 0 m 0''

Charging stations

Fastned Peuti Oost

9.6 km 8'

Car-sharing system

Cambio - Parking Kerkstraat

962 m 3' 737 m 9' 736 m 9'

Supermarkets

Spar Berg

661 m 2' 32'' 531 m 47'' 539 m 6' 539 m 6'

Aldi Kampenhout

1 km 3' 1 km 57'' 930 m 11' 1 km 12'

Delhaize Kampenhout

1.9 km 7' 1.8 km 2' 31'' 1.7 km 15' 1.7 km 20'

Amusement parks

Centre Koezio Live Adventure Games

15.6 km 17'

Museums

Musée Bruxellois Du Moulin Et De L’alimentation

12.9 km 15'

Activities

Centre Sortilège.be

14.7 km 15'

Castles

Porte De Hal

22.8 km 23'

Golfs

Golfclub Kampenhout

3.7 km 5'

Nearby cities

Dendermonde is 42 minutes away by car. It takes about 38 minutes to reach Beveren with your car. Mechelen is only 17 minutes away by car. Only 19 minutes are needed to reach Leuven with your car.

Tourism

The museum "Musée Bruxellois Du Moulin Et De L’alimentation" can be reached in 15 minutes.Want to discover the castle "Porte De Hal"? It is a 23 minutes drive away.You will find "Centre Koezio Live Adventure Games" within 17 minutes by car.In 15 minutes you can reach the "Centre Sortilège.be" activity.The "Golfclub Kampenhout" golf is 5 minutes away by car.

Public transports

You can access these bus lines: De Lijn - 505 - Kampenhout - Zaventem Atheneum, De Lijn - 294 - Tildonk - Haacht - Nederokkerzeel - Berg, De Lijn - 505 - Zaventem Atheneum - Kampenhout with a stand 6 minutes’ walk away.

Education

You can find a close high school: "Veld-Veltem", in fewer than 13 minutes by car.There is a nearby preschool and elementary school: "Gemeentelijke Basisschool - De Toverberg & Het Klimtouw", 3 minutes away by bike.You can find a convienient nursery: "Zonnetje Kampenhout", 14 minutes away by foot.

Transports

The nearest airport is Brussels Airport and is reachable by car in 12 minutes.You don’t want to own a car, but you still occasionally need one? There is the "Cambio - Parking Kerkstraat" station where you can rent a shared vehicle just 9 minutes away by foot.In fewer than 8 minutes, you can find a charging station ("Fastned Peuti Oost") for your electric car.The R0 (Brussels ring) can be reached in 6 minutes, and the slip road to A1 / E19 (Brussels - Mechelen - Antwerpen - (Breda, Netherlands)) is just a 9 minute drive away.A SNCB station ("Kortenberg") is located 26 minutes away by bike, or 8 minutes by car.

Shopping

For your food shopping, you have multiple options: "Spar Berg" (6 minutes by foot or 1 minute by car), "Aldi Kampenhout" (12 minutes by foot or 1 minute by car), "Delhaize Kampenhout" (20 minutes by foot or 3 minutes by car).

Show all Show less