Land for sale - Lille RBU19731

Fazantestraat 38 2275 Lille

225 000 € Réalisez le projet de vos rêves.

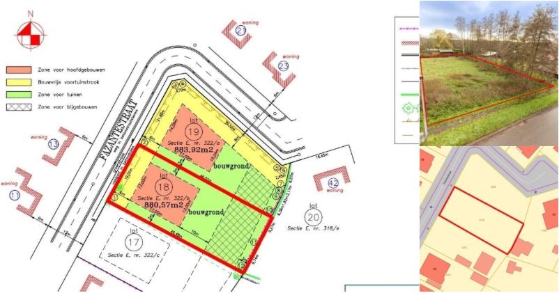
  • 880 m² Land Surface
  • 46 m Depth of the terrain
Fazantestraat 38 2275 Lille

Are you searching for Land for sale - Lille?

Receive an email as soon as there's a new property available!

Create an alert

Description

Discover an exceptional investment opportunity with this generous building plot for sale in Lille, situated at Fazantestraat 38. Priced at €225,000, this spacious parcel offers an excellent chance for those looking to develop a family home or secure a solid real estate asset. The land spans a total of 8 a 80 ca (880 m²), providing ample space for various building options. The plot’s dimensions allow for a maximum building frontage of 13 meters and a depth of 17 meters, making it suitable for an open-concept single-family residence. This property is particularly appealing as there are no building obligations attached, granting flexibility to future owners or investors interested in developing or holding as a safe investment. The location in Lille combines tranquility with convenience, nestled in a quiet, child-friendly dead-end street that offers a peaceful environment while maintaining easy access to major roads leading to surrounding municipalities and the E34 motorway. This land is classified within a residential area, specifically designated for single-family dwellings, making it ideal for those seeking to build a comfortable and private home. The plot's dimensions include a frontage of 19 meters and a depth of 46 meters, ensuring plenty of space for landscaping or additional outdoor features. It is not situated in a flood-prone zone, further enhancing its appeal for future construction. The area benefits from proximity to essential facilities and good connectivity to larger urban centers, making it suitable for families or professionals desiring a peaceful suburban lifestyle with quick access to urban amenities. The property is available immediately upon the signing of the deed, offering a straightforward process for interested buyers. In summary, this land in Lille presents an outstanding opportunity for both developers and private buyers seeking a sizeable plot within a well-connected and tranquil environment. With no current building restrictions, it provides flexibility and security for future planning. Whether you envisage building a beautiful family home or wish to reserve the lot as a long-term investment, this property offers excellent value at €225,000. Contact us today for further details or to arrange a viewing and take the next step towards realizing your real estate ambitions in this desirable location.

* This text was generated using an artificial intelligence.

Show all Show less

Financial details

  • Price: 225 000 €

Services


More information

General info

Currently leased

No

Availability

On contract

Outdoor description

Total land surface

880 m²

Ground depth

46 m

Town planning and environmental risks

Preemption right

No

Urbanism affectation

Residential zone (residential, urban)

Flooding Area type

no flooding area

Demarcated flooding area

(information not available)

Immovlan.be displays the data received from the seller. If some important or obligatory data is missing it is because they were not provided to us.

Immovlan ref.: RBU19731 Seller's ref.: 260435 Report fraud

Points of interest

Nurseries

Boelieboe

774 m 2' 52'' 774 m 1' 32'' 774 m 9' 774 m 9'

Preschools

Vrije Basisschool De Springplank

805 m 4' 1.1 km 2' 8'' 576 m 10' 805 m 10'

Elementary schools

Vrije Basisschool De Springplank

805 m 4' 1.1 km 2' 8'' 576 m 10' 805 m 10'

High schools

Arkades

6.3 km 22' 6.5 km 8' 5.3 km 1º 4' 6.3 km 1º 16'

Motorways

A21 / E34: Antwerpen - Turnhout - (Eindhoven, Netherlands)

2.4 km 3'

A13 / E313: Antwerpen - Hasselt - Liège

14.3 km 16'

Bus

De Lijn - 218 - Turnhout - Gierle - Lille - Herentals

770 m 9'

De Lijn - 218 - Herentals - Lille - Gierle - Turnhout

776 m 9'

De Lijn - 21 - Turnhout - Gierle - Lille - Vorselaar

637 m 8'

Train stations

Tielen

6.3 km 23' 7.9 km 10' 0 m 0'' 6.3 km 1º 15'

Charging stations

Bobbejaanland

11.6 km 13'

Car-sharing system

Cambio - Lille Gem. Huis

911 m 3' 754 m 11' 911 m 11'

Supermarkets

Okay Lille Poeder

1.1 km 4' 1.4 km 2' 14'' 646 m 13' 1.1 km 13'

Carrefour Market Lille

1.4 km 5' 1.4 km 2' 18'' 1 km 16' 1.4 km 16'

Aldi Lille

1.5 km 5' 1.6 km 2' 26'' 1.3 km 19' 1.5 km 19'

Golfs

Lilse Golf & Country

4.7 km 11'

Tourism

Want to play golf? You will find "Lilse Golf & Country" at 11 minutes.

Transports

You don’t want to own a car, but you still occasionally need one? There is the "Cambio - Lille Gem. Huis" station where you can rent a shared vehicle just 11 minutes away by foot.Do you need to charge an electric car? The nearest charging station ("Bobbejaanland") is just 13 minutes away by car.A SNCB station ("Tielen") is located 23 minutes away by bike, or 10 minutes by car.The A21 / E34 (Antwerpen - Turnhout - (Eindhoven, Netherlands)) motorway is accessible in 3 minutes and A13 / E313 (Antwerpen - Hasselt - Liège) will take 16 minutes.

Education

The closest high school is named "Arkades" and is 8 minutes' away by car.There is a nearby preschool and elementary school: "Vrije Basisschool De Springplank", 4 minutes away by bike.Boelieboe is the most convieniently located nursery: just 9 minutes away as a pedestrian.

Nearby cities

It takes about 34 minutes to reach Beringen with your car. Only 15 minutes are needed to reach Turnhout with your car. In 37 minutes you can reach Beveren. Waalwijk is 56 minutes away by car.

Public transports

This property is located close to a few bus lines: De Lijn - 21 - Turnhout - Gierle - Lille - Vorselaar with a stop reachable in fewer than 8 minutes as a pedestrian, De Lijn - 218 - Turnhout - Gierle - Lille - Herentals, De Lijn - 218 - Herentals - Lille - Gierle - Turnhout with a stop 9 minutes away by foot.

Shopping

For your food shopping, you have multiple options: "Okay Lille Poeder" (13 minutes by foot or 2 minutes by car), "Carrefour Market Lille" (16 minutes by foot or 2 minutes by car), "Aldi Lille" (19 minutes by foot or 2 minutes by car).

Show all Show less