Land for sale - Burmerange RBL34759

Rue Jos Kayser 5675 Burmerange

690 000 €

Rue Jos Kayser 5675 Burmerange

Description

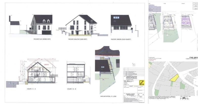
Land for sale - Burmerange For sale at 750,000 €, this plot of land is located on Rue Jos Kayser in the picturesque village of Burmerange, zip code 5675. The property is ideally suited for the construction of a house free on three sides, offering approximately 230m² of habitable space. Covering a total area of 5.35 ares, the land is situated within a Mixed Village Zone and boasts a favorable south-west orientation, ensuring ample sunlight throughout the day. This property is conveniently located near all essential amenities, making it an excellent choice for those seeking a blend of rural charm and modern convenience. The land is immediately available, allowing you to begin your construction project without delay. For further details or to schedule a viewing, please contact Mr. Rock at 621 467196 or via email at Contact . Please note that all information provided is deemed reliable but not guaranteed. A brokerage commission of 3.51% will be charged to the seller.

* This text was generated using an artificial intelligence.

Show all Show less

Financial details

  • Price: 690 000 €

Services


More information

General info

Currently leased

No

Town planning and environmental risks

Flooding Area type

(information not available)

Demarcated flooding area

(information not available)

Immovlan.be displays the data received from the seller. If some important or obligatory data is missing it is because they were not provided to us.

Immovlan ref.: RBL34759 Seller's ref.: 8248524 Report fraud

Points of interest