Grond te koop - Beert

Geen vastgoed gevonden

Er worden dagelijks nieuwe woningen toegevoegd. We laten het je weten zodra er een bij je zoekcriteria past!


Ook in de buurt van Beert (1673)

225 000 €

1674 Bellingen

Immo Groot Leeuw stelt u deze bouwgrond voor in Bellingen. Het perceel bestaat uit 9a09ca en is toegelaten om een open bebouwing te bouwen met een kroonlijsthoogte van maximum 6.50 meter en een diepte van 15 meter. De bouwgrond is gelegen in een rustige doodlopende straat, omgeven door groen en natuur.De grond is vrij toegankelijk en alle nutsvoorzieningen zijn te voorzien voor de koper.Bij interesse, kan u ons altijd bereiken op het nummer ### of via mail ### Meer weten?

909 45 m Diepte terrein 17 m Breedte terrein
Contacteer
Details
E-mail
Bellen
+32 2 378 04 44
199 000 €

1674 Bellingen

Immo Groot Leeuw stelt u deze bouwgrond voor in Bellingen. Het perceel bestaat uit 7a91ca en is toegelaten om een open bebouwing te bouwen met een kroonlijsthoogte van maximum 6.50 meter en een diepte van 15 meter. De bouwgrond is gelegen in een rustige doodlopende straat, omgeven door natuur.De grond is vrij toegankelijk en alle nutsvoorzieningen zijn te voorzien voor de koper.Bij interesse, kan u ons altijd bereiken op het nummer ### of via mail ### Meer weten?

791 45 m Diepte terrein 19 m Breedte terrein
Contacteer
Details
E-mail
Bellen
+32 2 378 04 44
325 000 €

1674 Bellingen

Immo Groot Leeuw stelt u deze bouwgrond voor in Bellingen. Het perceel bestaat uit 11a96ca en is toegelaten om een open bebouwing te bouwen met een kroonlijsthoogte van maximum 6.50 meter en een diepte van 15 meter. De bouwgrond is gelegen in een rustige doodlopende straat, omgeven door natuur.De grond is vrij toegankelijk en alle nutsvoorzieningen zijn te voorzien voor de koper.Bij interesse, kan u ons altijd bereiken op het nummer ### of via mail ### Meer weten?

1196 40 m Diepte terrein 42 m Breedte terrein
Contacteer
Details
E-mail
Bellen
+32 2 378 04 44
150 000 €

1502 Lembeek

Ref: 166 .Ontdek dit prachtige bouwperceel, ideaal gelegen en bestemd voor een halfopen bebouwing. Met een bouwbreedte van 7 meter en een diepte van 15 meter op het gelijkvloers en 12 meter op de verdieping, biedt dit perceel een uitstekend potentieel voor de realisatie van een moderne en lichtrijke woning. Dit terrein vormt een zeldzame opportuniteit om een bouwproject op maat te realiseren, met mooie volumes en een optimale indeling. Technische kenmerken: Het perceel beschikt reeds over een elektriciteitsaansluiting. Aansluitingen voor gas en water zijn nog niet uitgevoerd, maar de nodige leidingen voor aansluiting op het rioleringsnet zijn reeds voorzien. Twee watertanks en een septische put zijn eveneens aanwezig op het terrein. Er werd reeds een kelder gerealiseerd, wat een interessante basis vormt voor de toekomstige constructie. De eerder verkregen bouwvergunningen zijn inmiddels vervallen. Een opportuniteit die u niet mag missen voor liefhebbers van kwalitatieve vastgoedprojecten. Bieden vanaf €150.000. De verstrekte informatie is indicatief en niet contractueel. De eigenaars behouden zich het recht voor om de hoogte en de kwaliteit van de biedingen te beoordelen. Bezoek zeker onze website: ### Wij zijn voortdurend op zoek naar nieuwe panden voor onze klanten in portefeuille. Aarzel niet om ons te contacteren op het nummer ### voor een GRATIS EN VRIJBLIJVENDE SCHATTING. Wat de keuze van de koper betreft: de selectiecriteria van de eigenaar beperken zich niet uitsluitend tot de prijs. De uiteindelijke beslissing ligt volledig bij de eigenaar. Meer weten?

600
Contacteer
Details
E-mail
Bellen
+32 2 355 21 21
150 000 €

1502 Lembeek

Réf :: 166 Découvrez ce magnifique terrain à bâtir idéalement situé, conçu pour accueillir une maison 3 façades. Avec une largeur de construction de 7 mètres et une profondeur de 15 mètres au rez-de-chaussée et de 12 mètres à l’étage, cette parcelle offre un excellent potentiel pour la réalisation d’une habitation moderne et lumineuse. Ce terrain constitue une opportunité rare pour concrétiser un projet de construction sur mesure, avec de beaux volumes et une optimisation parfaite. Sur le plan technique, le terrain dispose déjà d’un raccordement à l’électricité. Les raccordements au gaz et à l’eau ne sont pas encore effectués, mais les conduites nécessaires sont déjà prévues pour un raccordement au réseau d’égouttage. Deux citernes d’eau ainsi qu’une fosse septique sont également présentes sur la parcelle. Une cave a déjà été réalisée, offrant une base intéressante pour la future construction. À noter que les permis de bâtir précédemment obtenus sont aujourd’hui expirés. Une opportunité à ne pas manquer pour les amateurs de projets immobiliers de qualité. Faire offre à partir de 150.000€. Informations communiquées à titre indicatif et non contractuel. Les propriétaires se réservent le droit d'apprécier la hauteur et la qualité des offres. N’hésitez pas à visiter notre site internet : ### Nous sommes constamment à la recherche de nouveaux biens pour nos clients en attente, n'hésitez pas à nous contacter au ### pour UNE ESTIMATION GRATUITE ET SANS ENGAGEMENT! Concernant le choix de l'acquéreur; les critères de sélection du propriétaire ne sont pas uniquement le prix. Le choix reste à l'appréciation de ce dernier qui seul, en décidera. Meer weten?

600
Contacteer
Details
E-mail
Bellen
+32 2 355 21 21
675 000 €

1502 Lembeek

Grond gelegen binnen het BPA 'Lembeek Dorp' Geschikt voor ambachten en KMO's Noodzakelijke kantoren zijn toegelaten Woonfunctie ten behoeve van besturend/bewakend personeel zijn ook toegelaten Er is een principe-akkoord van de stad Halle voor de bouw van 4 KMO-units (vergunning zelf nog te verkrijgen) Voor meer info: gelieve ons kantoor te contacteren Meer weten?

1996 m² Bebouwbare opp.
Contacteer
Details
E-mail
Bellen
+32 2 356 04 34
225 000 €

1670 Pepingen

Immo Groot Leeuw stelt u deze bouwgrond voor in Bellingen. Het perceel bestaat uit 9a09ca en is toegelaten om een open bebouwing te bouwen met een kroonlijsthoogte van maximum 6.50 meter en een diepte van 15 meter. De bouwgrond is gelegen in een rustige doodlopende straat, omgeven door groen en natuur.De grond is vrij toegankelijk en alle nutsvoorzieningen zijn te voorzien voor de koper.Bij interesse, kan u ons altijd bereiken op het nummer ### of via mail ### Meer weten?

909 45 m Diepte terrein 17 m Breedte terrein
Contacteer
Details
E-mail
Bellen
+32 2 378 04 44
199 000 €

1670 Pepingen

Immo Groot Leeuw stelt u deze bouwgrond voor in Bellingen. Het perceel bestaat uit 7a91ca en is toegelaten om een open bebouwing te bouwen met een kroonlijsthoogte van maximum 6.50 meter en een diepte van 15 meter. De bouwgrond is gelegen in een rustige doodlopende straat, omgeven door natuur.De grond is vrij toegankelijk en alle nutsvoorzieningen zijn te voorzien voor de koper.Bij interesse, kan u ons altijd bereiken op het nummer ### of via mail ### Meer weten?

791 45 m Diepte terrein 19 m Breedte terrein
Contacteer
Details
E-mail
Bellen
+32 2 378 04 44
175 000 €

1500 Halle

Deze ruime bouwgrond van 20 are, gelegen te Halle, biedt de perfecte kans om uw droomwoning te realiseren. De grond is geschikt voor de bouw van een 4-gevel woning.De bouwgrond bevindt zich nabij het centrum van Halle, vlakbij de grens met Lembeek. Dankzij de nabijheid van de oprit van de autosnelweg geniet u van een uitstekende verbinding naar Brussel en andere steden. Met alle nodige voorzieningen binnen handbereik, combineert deze locatie het beste van twee werelden.De bouwvoorschriften omvatten een brede gevel van 8,80m met een diepte van +-13m aan de linkerzijde en een diepte van +- 18m aan de rechterzijde op het gelijkvloers. Zowel een plat als een hellend dak is toegestaan.Stedenbouwkundig attest in aanvraag. Meer weten?

144 m² Bebouwbare opp. 2004 77 m Diepte terrein
Contacteer
Details
E-mail
Bellen
+32 2 378 04 44
199 000 €

1670 Pepingen

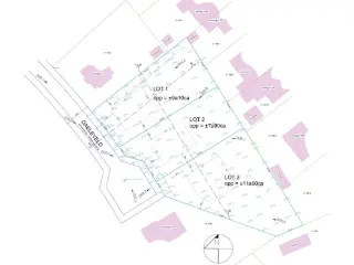
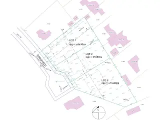
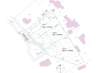
In het hart van het landelijke Bogaarden, langs de rustige Terheugenstraat, bevindt zich deze bouwgrond voor halfopen bebouwing, opgenomen in een recent goedgekeurde verkaveling (OMV 2023052538). Lot 2: met een perceeloppervlakte van 4a 18ca. Alle nutsvoorzieningen binnen de verkaveling zijn voorzien volgens de voorwaarden van Fluvius en De Watergroep. Bestemming: bouwgrond voor halfopen bebouwing: Perceelbreedte: 12 meter Mogelijke voorgevelbreedte: 9 meter Bouwvrije strook: 3 meter Bebouwbare oppervlakte: 135 m2 Maximale bouwdiepte: Gelijkvloers: 15 meter Verdieping: 12 meter Ligging & omgeving Rustige straat met landelijke zichten Centrale ligging in het dorp van Bogaarden Vlotte verbinding naar Pepingen, Halle en Ninove Ideaal voor wie rust zoekt zonder in te boeten aan bereikbaarheid Contacteer ons vandaag nog voor meer informatie of een bezoek ter plaatse. De vermelde gegevens en oppervlaktes zijn louter indicatief en vormen geen enkele juridische verbintenis. Meer weten?

418 12 m Breedte terrein
Contacteer
Details
E-mail
Bellen
+32 2 523 55 52
345 000 €

1670 Pepingen

Immo Groot Leeuw stelt u deze bouwgrond voor in Bellingen. Het perceel bestaat uit 11a96ca en is toegelaten om een open bebouwing te bouwen met een kroonlijsthoogte van maximum 6.50 meter en een diepte van 15 meter. De bouwgrond is gelegen in een rustige doodlopende straat, omgeven door natuur.De grond is vrij toegankelijk en alle nutsvoorzieningen zijn te voorzien voor de koper.Bij interesse, kan u ons altijd bereiken op het nummer ### of via mail ### Meer weten?

1196 40 m Diepte terrein 42 m Breedte terrein
Contacteer
Details
E-mail
Bellen
+32 2 378 04 44
175 000 €

1670 Pepingen

Bouwgrond voor halfopen bebouwing op 4a 25ca met groenzicht te koop. Het terrein (lot 1) ligt in woongebied met landelijk karakter en kent een breedte van 10,9m waardoor een gevelbreedte van 7,5m mogelijk is. Bebouwing op minimum 6m van de rooilijn en bouwdiepte 15m op het gelijkvloers en 12m voor de verdieping. De bovenzijde van kroonlijsthoogte bedraagt 5 (+/-1)m. Helling dakvlak tussen 25° en 50° of plat dak. De achtergelegen grond werd beschermd als agrarisch gebied in de verkaveling. Stedenbouwkundige voorschriften te downloaden of op te vragen. Bijkomende kost in de verkaveling van €2.500 voor de koper. Maatregelen opgenomen in het Maatregelenregister: nee. Wenst u meer informatie of wil u een bod uitvoeren? Contacteer Structura op ### of ### Meer weten?

425 40 m Diepte terrein
Contacteer
Details
E-mail
Bellen
+32 2 460 80 46
139 000 €

1540 Herfelingen

Deze bouwgrond voor het oprichten van een halfopen bebouwing is gelegen in het landelijke Pajottegem (Herne), biedt een Zuid-Oost georiënteerde tuin en beschikt over een oppervlakte van 6 are 40 centiare. De bouwgrond is gelegen in een rustige straat en toch ook in de nabijheid van belangrijke invalswegen en openbaar vervoer, hetgeen zorgt voor een aangename combinatie van rust en bereikbaarheid. Er werd een omgevingsvergunning voor het bouwen van een ééngezinswoning afgeleverd. Vergunning en bijhorende plannen kunnen worden aangekocht voor een meerprijs van 5.000 euro. Indien gewenst, bestaat de mogelijkheid om een nieuwbouwwoning te laten oprichten volgens de afgeleverde omgevingsvergunning. De totale kostprijs voor de aankoop van deze bouwgrond én het oprichten van de woning bedraagt 554.977,42 EUR exclusief BTW en registratierechten, onderverdeeld als volgt: * Constructie: 410.977,42 euro excl. 21% btw * Bouwgrond: 139.000 euro excl. 12% registratierechten * Aankoop vergunning, ARplannen, sondering, epb, stabiliteitsstudie: 5.000 euro Gescheiden rioleringsstelsel is aanwezig in de straat, aansluiting hierop is reeds voorzien. Bel voor meer informatie en voor een eventueel bezoek ter plaatse: ### De gegeven informatie en opgegeven oppervlaktes zijn louter indicatief en houden geen enkele juridische verbintenis in. Meer weten?

640
Contacteer
Details
E-mail
Bellen
+32 2 356 00 00
199 000 €

1480 Tubize

Le bureau YAKimmo vous propose; Un terrain à bâtir de 9a 25ca dans un lotissement, situé à proximité de toutes les commodités (écoles, commerces, gare, transports en communs, axes routiers N6, A8, E429). Il dispose d'une largeur à front de rue de +- 18 m et une profondeur de +- 55m. La parcelle se trouve en zone d'habitat à caractère rural et est raccordable à l'égout, à l'eau et électricité. Libre de constructeur, ce bien est idéal pour votre futur projet de construction. Prescriptions urbanistiques sur demande. Prix : 199.000,-€ (sous réserve d'acceptation du propriétaire). RC : 8,-€ Attention, certaines images ont été crées à l'aide de l'IA. Tout projet de construction devra faire l'objet d'une demande auprès de l'urbanisme. Pour toutes informations ou une évaluation gratuite de votre bien ### ### #estimation Rejoignez nous sur ### Vous êtes à la recherche ? N'hésitez pas à nous laisser vos critères sur notre site via ### Le bureau YAKimmo, le bureau idéale pour vendre, acheter, louer ou gérer vos biens !!! Annonce à titre indicatif et non contractuel, sous réserve d’erreurs et omissions, de changement de prix, de retrait ou de vente préalable. Les superficies et dimensions mentionnées sont données à titre indicatif. Meer weten?

925 55 m Diepte terrein
Contacteer
Details
E-mail
Bellen
+32 2 355 17 51
195 000 €

1480 Tubize

Ontdek deze unieke ontwikkelingskans in het rustige en landelijke Tubize, gelegen in een mooie omgeving nabij de pittoreske vijvers van Coeurcq en alle nodige voorzieningen. Dit prachtige bouwperceel van 13,25 are biedt een ideale gelegenheid voor wie droomt van het bouwen van een ruime villa met uitzicht op het omliggende groen. Het perceel is volledig vlak, klaar voor bouw, en meet 20,24 meter in breedte en 66 meter in diepte, waardoor u volop mogelijkheden heeft om een eigen, op maat gemaakte woning te realiseren. Het terrein is vrij van bouwrestricties, waardoor u onbezorgd uw plannen kunt ontwikkelen. De ligging is bijzonder gunstig: zonder geluidshinder, dicht bij het station, bushaltes en het centrum van Tubize, met vlotte verbindingen richting Brussel binnen minder dan tien minuten. Dit alles maakt deze locatie niet alleen ideaal voor rustzoekers, maar ook voor wie snel toegang zoekt tot de grote stad. De vraagprijs voor dit aantrekkelijke bouwperceel bedraagt 195.000 euro, een scherpe prijs voor deze locatie en omvang. Het perceel bevindt zich op een strategische plek die een perfecte balans biedt tussen landelijke rust en praktische bereikbaarheid. Of u nu een eigen woning wilt bouwen of wilt investeren in een stuk grond met veel potentieel, dit eigendom biedt tal van mogelijkheden. Het terrein is niet overstromingsgevoelig en ligt buiten het afgebakende overstromingsgebied, wat bijkomende geruststelling biedt voor toekomstige bewoners. Dankzij de ruime oppervlakte van 1325 vierkante meter is er voldoende ruimte voor een grote tuin of extra uitbreidingsmogelijkheden. Bent u geïnteresseerd in deze unieke bouwkans in Tubize? Neem contact op voor meer informatie of om een bezoek te plannen. Dit perceel biedt een uitstekende basis voor het realiseren van uw woonwensen, met alle voordelen van een rustige landelijke omgeving en toch dichtbij de stedelijke voorzieningen. Wacht niet langer en grijp deze kans om uw droomhuis te bouwen op een prachtig terrein. Onze contactgegevens staan klaar om u verder te helpen en u te begeleiden bij elke stap van het aankoopproces. U kunt nu al uw interesse kenbaar maken en de eerste stap zetten naar uw nieuwe woning in Tubize. Meer weten?

1325 66 m Diepte terrein
Contacteer
Details
E-mail
Bellen
+32 2 355 50 55
140 000 €

1500 Halle

Op zoek naar een interessante bouwopportuniteit in een vlot bereikbare en aangename omgeving? Deze bouwgrond voor het oprichten van een halfopen bebouwing is gelegen aan de Sterrestraat 25 te 1502 Lembeek (Halle) en biedt tal van mogelijkheden voor wie zijn droomwoning wil realiseren. Met een perceeloppervlakte van 2 are 13 centiare en een breedte van 10 meter, geniet u hier van een praktisch en goed in te richten perceel. De toekomstige woning voorziet een gevelbreedte van 7 meter, met een zijdelingse doorgang van 3 meter, ideaal voor extra toegankelijkheid en lichtinval. Voor deze bouwgrond zijn er reeds architecturale plannen uitgewerkt voor een moderne eengezinswoning bestaande uit 3 bouwlagen, een bouwdiepte van 12 meter en een achterliggend terras van 3 meter. Bovendien is er een overdekte, privatieve autostaanplaats voorzien vooraan de woning en wordt de woning afgewerkt met een zadeldak. De verkavelingsvergunning is momenteel in aanvraag, wat deze grond extra interessant maakt voor wie op korte termijn wil bouwen met een duidelijke visie en voorbereiding. Gelegen in een rustige straat, maar toch met een vlotte verbinding naar belangrijke invalswegen en voorzieningen, combineert deze bouwgrond rust, bereikbaarheid en potentieel. Interesse? Neem gerust contact op voor meer informatie of een bezoek ter plaatse. De gegeven informatie en opgegeven oppervlaktes zijn louter indicatief en houden geen enkele juridische verbintenis in. Meer weten?

213
Contacteer
Details
E-mail
Bellen
+32 2 356 00 00
275 000 €

1500 Halle

Immo Pické biedt U deze uiterst gunstig gelegen PROJECTGROND aan voor de bouw van een meergezinswoning volgend het gabarit van de naastliggende eigendom met nummer 25. Er werd voor deze grond een stedenbouwkundig attest afgeleverd waarin de Stad Halle bevestigt dat er een meergezinswoning kan gebouwd worden met 3 bouwlagen en een extra bouwlaag in de dakverdieping. Stedenbouwkundige verordeningen te respecteren. Voor verdere informatie, aarzel niet het kantoor te contacteren. Meer weten?

338 30 m Diepte terrein
Contacteer
Details
E-mail
Bellen
+32 479 20 70 16
120 000 €

1500 Halle

Deze gunstig gelegen bouwgrond (4a71) nabij het centrum van Halle, Buizingen en Huizingen, wordt u te koop aangeboden, nabij tal van winkels, scholen, het treinstation, openbaar vervoer en met een goede verbinding met de belangrijke invalswegen. De bouwgrond bevindt zich in woongebied, u mag rekenen op een bouwdiepte van maximum 15m op de gelijkvloers en 12 meter vanaf de eerste verdieping. De gevelbreedte bedraagt +- 6,21m. Gezien de gunstige ligging van de grond, leent deze zich eveneens voor tal van commerciële doeleinden. Voor verdere vragen of het inkijken van de bouwvoorschriften bel ons of maak een afspraak op kantoor ### De gegeven informatie en opgegeven oppervlaktes zijn louter indicatief en houden geen enkele juridische verbintenis in. Meer weten?

471
Contacteer
Details
E-mail
Bellen
+32 2 356 00 00
125 000 €

1500 Halle

- percelen weiland (+/- 1 ha 57 a) in agrarisch gebied - gelegen aan Broek te Halle, tegenover nummers 60 tot 70 - vlakbij de Nijvelsesteenweg (N28) en de autosnelweg (A8/E429) Beslaglegging: Nee / Rechterlijke of bestuurlijke maatregel: Nee / Leegstand: Nee / Stedenbouwkundig attest: Nee Meer weten?

15752 m² Bebouwbare opp.
Contacteer
Details
E-mail
Bellen
+32 2 356 04 34
130 000 €

1500 Halle

Residentieel, gunstig gelegen in nabijheid van centrum Halle bieden wij u deze verkaveling aan. De verkaveling omvat twee percelen, beide geschikt voor gesloten bebouwing. Voor beide loten geldt: Kroonlijsthoogte van maximaal 6m met hellend dak. Ruime bebouwing mogelijk met op het gelijkvloers 15m diepte en op de verdieping 12m diepte, resulterende in een bruto bewoonbare oppervlakte van maar liefst 162m². Enkel eengezinswoningen zijn toegelaten. Geen inpandige garage toegestaan - fietsenberging verplicht. De afmetingen en prijzen per lot zijn: Lot 4: 2a 03ca - 130.000,00€ Lot 5: 2a 04ca - 130.000,00€ Voor meer inlichtingen: Wendy Susilo - ### of ### Meer weten?

90 m² Bebouwbare opp. 204 34 m Diepte terrein
Contacteer
Details
E-mail
Bellen
+32 475 45 45 45