Grond te koop - Bekkevoort

2 zoekertjes (1 - 2)
139 000 €

3460 Bekkevoort

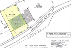
Landelijk gelegen perceel bouwgrond voor halfopen bebouwing op een terrein van 4a16ca te Bekkevoort. Geschikt voor de bouw van een ééngezinswoning met maximum 2 bouwlagen. Inplanting: Bouwdiepte op het gelijkvloers 10,41m en eveneens 10,41m op de eerste verdieping. Zijgevel op min. 3m van de links buur. Maximum bouwgevelbreedte +-13,34m. Extra troeven: Landelijke ligging voor de wandel en fietsliefhebber. Goede verbinding met E314. Achter het terrein bevindt zich agrarisch gebied. Rustige straat. Op wandelafstand van openbaar vervoer. Kijk zeker ook op ### voor meer info, bijlagen en details. Meer weten?

416
contacteer
details
E-mail
Bellen
199 000 €

3461 Molenbeek-Wersbeek

LAATSTE PERCEEL !! Zeer landelijk gelegen VILLABOUWGROND (lot 2) met een oppervlakte van 12,58 are en een wijds vergezicht op de weilanden en akkers. Met een straatbreedte van 22,83m en een zuidoost georiênteerde tuin, is deze bouwgrond een opportuniteit. Er is geen bouwverplichting! De maximale bewoonbare oppervlakte voor een nieuwbouw woning bedraagt 308m² (+ ev. zolder en kelder), de maximale bebouwde grondoppervlakte van een nieuwbouw woning is 171,15 m².Bouwvoorschriften : de woning moet ingeplant worden op 12m uit de as van de weg en op min. 3m van de zijdelingse perceelsgrenzen, de dakvorm is vrij van keuze. Complementaire bedrijvigheid is eveneens toegestaan tot max 100m². Plan in pdf vindt u op ### onder 'downloads'. VP 199.000 EUR. Voor meer informatie bel op ### of mail naar ### u ook uw woning, appartement of bouwgrond snel en aan een marktconforme prijs te verkopen, neem dan zeker even contact op voor een GRATIS SCHATTING ! Bel Anouck voor een vrijblijvende afspraak op ### Meer weten?

1258
contacteer
details
E-mail
Bellen

We hebben slechts een paar zoekertjes gevonden die overeen komen met uw zoekcriteria.

Maak een e-mail alert om op de hoogte te blijven van nieuwe zoekertjes die aan uw criteria voldoen!


Hieronder zijn nog enkele interessante adressen te vinden in de buurt van Bekkevoort (3460) + Deelgemeenten.

130 000 €

3270 Scherpenheuvel-Zichem

Danneels biedt zes bouwgronden te koop aan, vrij van bouwverplichting, in een centraal gelegen nieuwe woonwijk in het mooie dorpje Testelt bij Scherpenheuvel-Zichem.Deze bouwgronden hebben een mooie oppervlakte van 4 à 6 are en zijn bestemd voor open bebouwing. Je kiest zelf wanneer je hier gaat bouwen en met welke bouwpartner(s) je gaat samenwerken. In het landelijke Testelt geniet je volop van het groen en heb je toch alle voorzieningen bij de hand. De nieuwe woonwijk is centraal gelegen en je vindt er kinderopvang en de gemeentelijke basisschool naast de deur. Testelt is goed gelegen ten opzichte van Antwerpen, Turnhout en Hasselt en is een ideale woonlocatie voor wie op zoek is naar een betaalbare en toch goed bereikbare omgeving. Meer weten?

459
contacteer
details
E-mail
Bellen
+32 15 30 81 00
132 000 €

3270 Scherpenheuvel-Zichem

Danneels biedt zes bouwgronden te koop aan, vrij van bouwverplichting, in een centraal gelegen nieuwe woonwijk in het mooie dorpje Testelt bij Scherpenheuvel-Zichem.Deze bouwgronden hebben een mooie oppervlakte van 4 à 6 are en zijn bestemd voor open bebouwing. Je kiest zelf wanneer je hier gaat bouwen en met welke bouwpartner(s) je gaat samenwerken. In het landelijke Testelt geniet je volop van het groen en heb je toch alle voorzieningen bij de hand. De nieuwe woonwijk is centraal gelegen en je vindt er kinderopvang en de gemeentelijke basisschool naast de deur. Testelt is goed gelegen ten opzichte van Antwerpen, Turnhout en Hasselt en is een ideale woonlocatie voor wie op zoek is naar een betaalbare en toch goed bereikbare omgeving. Meer weten?

551
contacteer
details
E-mail
Bellen
+32 15 30 81 00
130 000 €

3270 Scherpenheuvel-Zichem

Danneels biedt zes bouwgronden te koop aan, vrij van bouwverplichting, in een centraal gelegen nieuwe woonwijk in het mooie dorpje Testelt bij Scherpenheuvel-Zichem.Deze bouwgronden hebben een mooie oppervlakte van 4 à 6 are en zijn bestemd voor open bebouwing. Je kiest zelf wanneer je hier gaat bouwen en met welke bouwpartner(s) je gaat samenwerken. In het landelijke Testelt geniet je volop van het groen en heb je toch alle voorzieningen bij de hand. De nieuwe woonwijk is centraal gelegen en je vindt er kinderopvang en de gemeentelijke basisschool naast de deur. Testelt is goed gelegen ten opzichte van Antwerpen, Turnhout en Hasselt en is een ideale woonlocatie voor wie op zoek is naar een betaalbare en toch goed bereikbare omgeving. Meer weten?

461
contacteer
details
E-mail
Bellen
+32 15 30 81 00
39 000 €

3390 Tielt

Perceel landbouwgrond met een totale oppervlakte van 86a 30ca te Tielt-Winge. Het perceel is gelegen in landschappelijk waardevol agrarisch gebied. Het perceel loopt evenwijdig met de Diestsesteenweg te Tielt-Winge, gelegen achter de woning met huisnummer 14. Momenteel wordt de grond verpacht. Bel snel voor meer informatie. ### of kijk op ### ! Meer weten?

8630 140 m Breedte terrein
contacteer
details
E-mail
Bellen
+32 16 64 03 21
302 500 €

3545 Loksbergen

Toegankelijk via de Oude Leuvensebaan, voorzien van de volgende kenmerken:` gesitueerd in agrarische gebieden, tegenover huisnummer 18` op korte rijtijd gelegen van belangrijke verbindingswegen richting de autosnelweg E314(Genk/Leuven/Brussel) en het verkeersknooppunt Lummen met directe aansluitingen naar Antwerpen/Luik/Aken` investeren in dit aanbod is een meerwaarde, zowel voor de eindgebruiker als voor de beleggerIndien u meer wilt weten over deze woning of een afspraak ter plaatse wenst, kunt u terecht op onze website ### of neem gerust telefonisch contact op via het nummer ### Meer weten?

30250
contacteer
details
E-mail
Bellen
+32 12 23 23 11
179 000 €

3202 Rillaar

Gunstig gelegen, zuidgerichte bouwgrond voor open bebouwing van 939m². Gelegen te Rillaar met alle faciliteiten in de onmiddellijke omgeving. De invalswegen naar de omliggende gemeenten zijn tevens vlot bereikbaar. De grond heeft een breedte van 21,89 meter vooraan en een diepte van 55 meter. U geniet de mogelijkheid tot het bouwen van een woning met een gevelbreedte van 10m en een bouwdiepte van 15m op de gelijkvloerse verdieping. Stedenbouwkundige voorschriften beschikbaar op aanvraag. Meer weten?

939 55 m Diepte terrein
contacteer
details
E-mail
Bellen
+32 15 79 33 30
129 000 €

3390 Tielt-Winge

Gunstig gelegen vlak perceel bouwgrond van 27are32ca. Mooi zicht op natuurgebied achteraan. Voor halfopen bebouwing. Woongebied met landelijk karakter en achteraan agrarisch gebied. Bestaande uit Lot 1 en Lot3. Mogelijkheid om het gedeelte agrarisch gebied (Lot 3) niet bij aan te kopen. Maximum te bebouwen: 7,7m voorgevelbreedte. 15m bouwdiepte op de gelijkvloerse verdieping en 12m bouwdiepte op de eerste verdieping. Kroonlijsthoogte en de dakhelling van de aanpalende woning moet gevolgd worden. Overstromingsrapport: P-score: A - Niet gelegen in risicozone voor overstromingen. Contacteer ons kantoor voor meer informatie en details. Meer weten?

2732
contacteer
details
E-mail
Bellen
+32 497 99 83 09
385 425 €

3390 Tielt-Winge

Beleef de ultieme combinatie van comfort en natuurlijke schoonheid met deze energiezuinige woning! De woning wordt gebouwd met het oog op een E-peil van 20 of lager en voldoet volledig aan de nieuwste energienormen, zodat je kunt genieten van een energiezuinig thuis. Het eerste ontwerp van de indeling van de woning is praktisch en functioneel. Op de begane grond bevindt zich een inkomhal met afzonderlijk toilet, leefruimte met open keuken, berging, slaapkamer/bureau. Op de verdieping tref je een nachthal, drie slaapkamers en badkamer (voorzien van bad, inloopdouche & dubbele lavabo). De woning is goed gelegen nabij tal van invalswegen en de autosnelweg! Extra info: Aanwezigheid van zolder, pannendak, driedubbele beglazing (buitenschrijnwerk: PVC), lucht/water warmtepomp (vloerverwarming op GLV en op VERDIEPING), 10 zonnepanelen (4000 Wp), ventilatiesysteem D, goede isolatiewaarden! De afwerking kies je zelf, binnen de gestelde budgetten in het lastenboek! Het hanteren van een gabarit waarvan zowel de kroonlijsthoogte als de dakhelling identiek is aan het bestaande gabarit van de woning links moet gevolgd worden. Bijgebouwen kunnen opgericht worden overeenkomstig het vrijstellingenbesluit. De totale oppervlakte blijft hier beperkt tot max. 40 m². Opsplitsing prijs bij volledige afwerking: 135.000,00 EUR op het grondaandeel (exclusief 12% registratierecht) en 260.425,00 EUR op de constructiewaarde (exclusief 21% BTW) Opsplitsing prijs bij wind- en waterdicht: 135.000,00 EUR op het grondaandeel (exclusief 12% registratierecht) en 165.425,00 EUR op de constructiewaarde (exclusief 21% BTW) Bodemattest & SBU: In aanvraag. Neem snel contact op met Kenneth ( ### ) op ### of met Melissa ( ### ) op ### Meer weten?

883
contacteer
details
E-mail
Bellen
+32 472 03 25 88
125 000 €

3390 Tielt-Winge

Ontdek deze mooie bouwgrond in Tielt-Winge, gunstig gelegen nabij de E314, geniet u hier van een uitstekende bereikbaarheid en rustige leefomgeving. Het hanteren van een gabarit waarvan zowel de kroonlijsthoogte als de dakhelling identiek is aan het bestaande gabarit van de woning links moet gevolgd worden. De materiaalkeuze is vrij te bepalen. Bouwdiepte gelijkvloers: maximaal 15 meter. Bouwdiepte verdieping: maximaal 12 meter. De voorgevel dient 8 meter te zijn. Bijgebouwen kunnen opgericht worden overeenkomstig het vrijstellingenbesluit. De totale oppervlakte blijft hier beperkt tot maximaal 40 m². De maximale hoogte is beperkt tot 3,5 meter. Droom je van een landelijke pastorijwoning of ga je voor een strakke moderne woning? We begeleiden en adviseren je maar al te graag in deze belangrijke stap van je leven. Als kers op de taart is er de diepe tuin waar er ongetwijfeld leuke & gezellige momenten beleefd kunnen worden. SBU & bodemattest in aanvraag! Meer info? Neem dan snel contact op met Kenneth ( ### ) op ### of met Melissa ( ### ) op ### Meer weten?

883
contacteer
details
E-mail
Bellen
+32 472 03 25 88
300 000 €

3390 Tielt-Winge

In het landelijke Tielt-Winge, met prachtig zicht op het achterliggend landschappelijk waardevol agrarisch gebied, bieden wij u deze zuidgeoriënteerde VILLABOUWGROND aan, lot 1 + lot 2 op het plan, met een straatbreedte van 20m en een totale oppervlakte van 11,11 are. Er geldt geen bouwverplichting ! Maximale bouwbreedte bedraagt 14m met een bouwdiepte van 15m op het gelijkvloers en 12m op de verdieping. Zowel plat dak als zadeldak zijn toegestaan.Er bestaat een mogelijkheid om het perceel op te splitsen in 2 percelen voor halfopen bebouwing (mits goedkeuring stedenbouw). In het verleden werd deze verkaveling (lot 1 + lot 2) reeds toegestaan. Plan en bouwvoorschriften in pdf vindt u op ### onder 'downloads'. Meer weten?

1110 56 m Diepte terrein 20 m Breedte terrein
contacteer
details
E-mail
Bellen
+32 16 62 01 05
159 000 €

3201 Langdorp

Bouwgrond voor open bebouwing op een strategisch hoekperceel in Langdorp. (Aarschot) Deze bouwgrond is gelegen langs de Oude Mechelsebaan, ter hoogte van nummer 302, en het Kremerspad te Langdorp (Aarschot). Het perceel beschikt nog niet over een officieel huisnummer, aangezien er nog geen bouwvergunning werd afgeleverd. Het betreft een hoekperceel met een oppervlakte van ca. 978 m², geschikt voor het bouwen van een eengezinswoning in open bebouwing. Volgens het stedenbouwkundig attest (2024) is het perceel gelegen in woongebied en werd het gunstig beoordeeld onder voorwaarden voor de oprichting van een eengezinswoning. Het perceel is niet gelegen in een verkaveling, niet opgenomen in een BPA of RUP, en bevindt zich niet in overstromingsgevoelig gebied. De bouwzone is afgebakend op plan. De maximale bouwdiepte bedraagt 15 m op het gelijkvloers en 12 m op de verdieping. Een hellend dak is verplicht en de woning mag maximaal 2 bouwlagen tellen. Langs het Kremerspad dient bij de latere omgevingsvergunning een gratis grondafstand van 5 meter uit de as van de weg te gebeuren, conform de voorwaarden van de stad Aarschot. Een perceel met duidelijke stedenbouwkundige krijtlijnen en een gunstige ligging, ideaal voor wie een kwalitatief woonproject wenst te realiseren in Langdorp. Meer weten?

978
contacteer
details
E-mail
Bellen
+32 16 15 32 10
110 000 €

3545 Zelem

STAD HALEN, derde afdeling, deelgemeente ZELEM: Een bouwgrond in half open bebouwing gelegen aan de Breedvenstraat, gekadastreerd sectie B, deel van nummer 222LP0000, met een oppervlakte volgens meting van 4a 68ca; zijnde lot 2 van de verkaveling te plaatse. Nota: er is een optie tot het bijkopen van een stuk achterliggende grond (te bespreken en overleggen met de eigenaar indien interesse). Het gedeelte in bouwzone is NIET gelegen in overstromingsgevoelig gebied, het achterliggende gedeelte is deels gelegen binnen een overstromingsgevoelig gebied door hevige neerslag met een kleine kans op overstromingen onder klimaatverandering. Aandeel kosten verkavelingsakte voor de koper. Deze uitstekende gelegen bouwgrond van 468 (469) m2 met een bouwbreedte van 8m x 17m biedt de perfecte gelegenheid voor de bouw van een halfopen bebouwing. Het perceel bevindt zich in een rustige en strategische locatie, nabij belangrijke invalswegen zoals E313 en E314, wat het tot een ideale keuze maakt voor wie op zoek is naar een vlotte bereikbaarheid en een aangename woonomgeving. De grond ligt in een recreatiezone en Tennis & Padel Zelem, sporthal, speeltuintje en kinderopvang zijn vlakblij. Met de achterliggende bos is privacy en een groen verzicht gegarandeerd. Deze bos kan ook mee aangekocht worden. Een extra troef, de grond is bouwklaar. Vandaag kopen, morgen bouwen. Vraag zeker de verkavelingsvergunning op om de bouwvoorschriften te bekijken. De bouwgrond is bestemd voor een halfopen bebouwing, wat betekent dat u de vrijheid heeft om uw droomwoning te realiseren, met respect voor de omgeving en de bestaande bebouwing. Het gedeelte in bouwzone is NIET gelegen in overstromingsgevoelig gebied, het achterliggende gedeelte is deels gelegen binnen een overstromingsgevoelig gebied door hevige neerslag met een kleine kans op overstromingen onder klimaatverandering. P score: B Meer weten?

468
contacteer
details
E-mail
Bellen
+32 13 38 00 00
110 000 €

3545 Zelem

STAD HALEN, derde afdeling, deelgemeente ZELEM: Een bouwgrond in half open bebouwing gelegen aan de Breedvenstraat, gekadastreerd sectie B, deel van nummer 222LP0000, met een oppervlakte volgens meting van 4a 69ca; zijnde lot 1 van de verkaveling te plaatse. Nota: er is een optie tot het bijkopen van een stuk achterliggende grond (te bespreken en overleggen met de eigenaar indien interesse). Het gedeelte in bouwzone is NIET gelegen in overstromingsgevoelig gebied, het achterliggende gedeelte is deels gelegen binnen een overstromingsgevoelig gebied door hevige neerslag met een kleine kans op overstromingen onder klimaatverandering. Aandeel kosten verkavelingsakte voor de koper. Deze uitstekende gelegen bouwgrond van 468 (469) m2 met een bouwbreedte van 8m x 17m biedt de perfecte gelegenheid voor de bouw van een halfopen bebouwing. Het perceel bevindt zich in een rustige en strategische locatie, nabij belangrijke invalswegen zoals E313 en E314, wat het tot een ideale keuze maakt voor wie op zoek is naar een vlotte bereikbaarheid en een aangename woonomgeving. De grond ligt in een recreatiezone en Tennis & Padel Zelem, sporthal, speeltuintje en kinderopvang zijn vlakblij. Met de achterliggende bos is privacy en een groen verzicht gegarandeerd. Deze bos kan ook mee aangekocht worden. Een extra troef, de grond is bouwklaar. Vandaag kopen, morgen bouwen. Vraag zeker de verkavelingsvergunning op om de bouwvoorschriften te bekijken. De bouwgrond is bestemd voor een halfopen bebouwing, wat betekent dat u de vrijheid heeft om uw droomwoning te realiseren, met respect voor de omgeving en de bestaande bebouwing. Het gedeelte in bouwzone is NIET gelegen in overstromingsgevoelig gebied, het achterliggende gedeelte is deels gelegen binnen een overstromingsgevoelig gebied door hevige neerslag met een kleine kans op overstromingen onder klimaatverandering. P score: B Meer weten?

469
contacteer
details
E-mail
Bellen
+32 13 38 00 00
135 000 €

3450 Geetbets

TE KOOP: Bouwgrond van 4a73ca voor halfopen bebouwing te Hulsbeek! Deze bouwgrond voor open bebouwing is gunstig gelegen in de Hulsbeekstraat 85 Geetbets op een centrale locatie vlak bij het centrum. Ligging: Het perceel ligt in een rustige, landelijke straat in Geetbets, met het centrum van Geetbets op ca. 2 km afstand, met winkels, basisschool en horeca. Natuur en groen in de directe omgeving Troeven: - Centrale ligging! - Ruim perceel voor open bebouwing! Niet gelegen in signaalgebied, afgebakende oeverzone of afgebakend overstromingsgebied. P-score: D Stedenbouwkundige inlichtingen: woongebied met landelijk karakter - verkavelingsvoorschriften - geen dagvaarding - geen voorkooprecht - geen bouwvergunning Meer weten?

contacteer
details
E-mail
Bellen
+32 11 43 58 19
139 000 €

3201 Langdorp

Perceel bouwgrond voor open bebouwing op een terrein van 4a 80ca te Langdorp. Geschikt voor de bouw van een ééngezinswoning met maximum 2 bouwlagen. Inplanting: Bouwdiepte op het gelijkvloers 15m en 12m op de verdieping, zijgevel op min. 3m van de zijdelingse perceelsgrenzen. Maximum bouwgevelbreedte circa 9m. Maximaal 135m² bebouwde oppervlakte. Extra troeven: Landelijke ligging voor de wandel en fietsliefhebber. Nabij treinstation Testelt. Op fietsafstand van centrum Aarschot. Op wandelafstand van openbaar vervoer. Kijk zeker ook op ### voor meer info en details. Meer weten?

483 15 m Breedte terrein
contacteer
details
E-mail
Bellen
+32 16 64 03 21
149 000 €

3290 Diest

Bouwgrond Open bebouwing op 7are35ca met straatbreedte van 21,42m te Deurne-Diest. Belangrijkste troeven: - Rustige doch centrale ligging - Bouwdiepte gelijkvloers maximaal 13 meter - Bouwdiepte verdieping maximaal 12 meter - Voorgevelbreedte maximaal 10,5 meter - Geen bouwverplichting - Vrijstaand bijgebouw mogelijk tot 40m² Wenst u meer info of een vrijblijvende afspraak, contacteer dan ons kantoor op het nummer ### en wij helpen u graag verder. Meer weten?

735 38 m Diepte terrein
contacteer
details
E-mail
Bellen
+32 11 85 15 15
165 000 €

3560 Linkhout

Bent u op zoek naar de perfecte locatie om uw droomhuis te bouwen? Ontdek dan deze unieke bouwgrond aan de Demerstraat 48 te Linkhout. Deze halfopen bebouwing (HOB) ligt op een royaal perceel van 6 are 49 ca dat een natuurlijke privacy en rust biedt. De ligging is ideaal: op wandelafstand bevindt zich het prachtige Schulensmeer, een gebied dat bekend staat om zijn mooie wandelroutes, watersportmogelijkheden en rijke natuur. Dit maakt het een ideale plek voor liefhebbers van buitenactiviteiten en natuurgenieters. De ruime omvang van de grond biedt talloze mogelijkheden voor het ontwerpen en bouwen van een ruime gezinswoning met voldoende tuin voor ontspanning, spel en tuinieren. Stelt u zich eens voor om wakker te worden met het gezang van vogels en een uitzicht op uw eigen bosrijk gebied – dit perceel biedt het allemaal. Daarnaast bent u met de auto snel in nabijgelegen steden en dorpen voor al uw voorzieningen, wat de locatie zowel rustig als praktisch maakt. Wacht niet langer en begin met het plannen van uw toekomst in deze serene en prachtige omgeving. Wil jij jouw droomhuis bouwen op deze prachtige bouwgrond nabij het Schulensmeer? Contacteer ons dan via ### of ### Meer weten?

150 m² Bebouwbare opp. 649 47 m Diepte terrein
contacteer
details
E-mail
Bellen
+32 488 33 81 37
129 000 €

3450 Geetbets

Bouwgrond voor open bebouwing te koop in Geetbets op perceel van 7a 02caOp Glabbeekstraat 125, in Geetbets, bevindt zich deze bouwgrond. De ligging combineert het aangename van het buitenleven met een vlotte bereikbaarheid: het centrum van Geetbets ligt op slechts 2 km, terwijl buurgemeenten zoals Kortenaken en Zoutleeuw bereikbaar zijn binnen 10 minuten rijden. In een straal van 1,5 km vind je voorzieningen zoals een frituur, tankstation en diverse wandel- en fietsroutes. Deze bouwgrond van 7a 02ca is geschikt voor open bebouwing. Het perceel heeft een straatbreedte van 15m en de diepte van het perceel bedraagt 46,02m. Bouwvoorschriften:De hoofdwoning telt maximaal 2 woonlagen. Een ondergrondse kelder is toegestaan, ondergrondse garages of toegangen onder het straatniveau zijn niet toegelaten. De bouwdiepte bedraagt maximaal 15m op het gelijkvloers en 12m op de verdieping. De bouwvrije stroken dienen vrij te blijven van bebouwing. Enkel een aanpalende carport kan worden toegestaan, mits toestemming van de aanpalende eigenaar. Het vloerpeil mag maximum 30cm boven het bestaand maaiveld zijn. De hoogte van de kroonlijst telt maximaal 6 meter bij een hellend dak en 6,5m bij een plat dak. De dakvorm is vrij te kiezen en de dakhelling moet tussen 0° en 45° gelegen zijn. Bouwvoorschriften, de verkavelingsvergunning en het grondplan zijn beschikbaar. Voor verdere stedenbouwkundige inlichtingen kan je contact opnemen met ons kantoor. Is deze bouwgrond voor een open bebouwing iets voor jou? Contacteer ons via ### voor meer info. Wij helpen jullie graag verder! Meer weten?

702
contacteer
details
E-mail
Bellen
+32 13 70 00 88