Investment property for sale - Spa VBC26573

Rue entre les Ponts 15-17 4900 Spa

105 000 € Vous avez un projet de rénovation ?

  • 8 Bedroom(s)
  • 336
  • 5 Bathroom(s)
  • 14 m² Terrace
Rue entre les Ponts 15-17 4900 Spa

Are you searching for Investment property for sale - Spa?

Receive an email as soon as there's a new property available!

Create an alert

Description

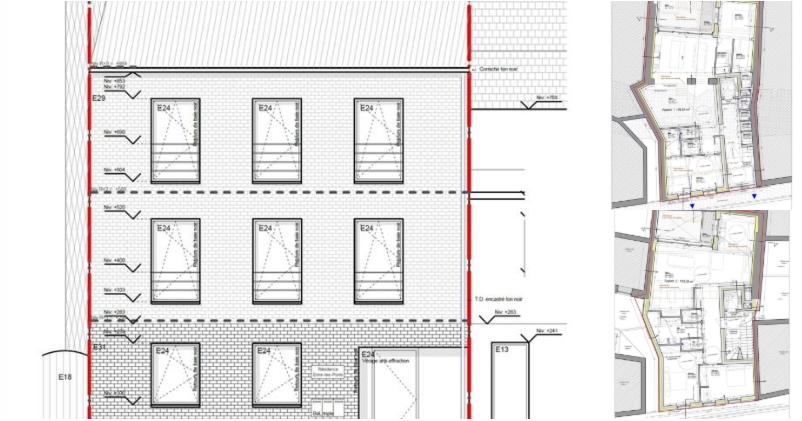
This investment property located at Rue entre les Ponts 15-17 in Spa is a unique opportunity for developers or investors. Priced at 105,000 €, the property comes with an approved urban planning permit valid until November 22, 2027, with the possibility of a two-year extension. The permit allows for the construction of three apartments over three floors, with plans and additional details available upon request. The property includes space for a total of eight bedrooms and five bathrooms, across three future apartment lots. The ground floor is designed for a 93 m² two-bedroom apartment featuring two bathrooms and a courtyard or terrace. The first floor will accommodate a two-bedroom apartment of 105 m² with a balcony. The second and third floors will house a spacious four-bedroom, two-bathroom apartment totaling 138 m², complemented by a 14 m² terrace. With a cadastral income of 957 €, this property is set on a plot of 170 m² and is classified as residential. While the building requires renovation, it offers substantial potential for those looking to capitalize on Spa's real estate market. The exterior north-west orientation provides good natural light, and there are three facades, adding to the property's appeal.

* This text was generated using an artificial intelligence.

Show all Show less

Financial details

  • Price: 105 000 €
  • Cadastral income: 957 €
  • VAT: No

Services


More information

General info

State of the property

To be renovated

Currently leased

No

Interior description

Number of bedrooms

8

Kitchen and bathrooms

Number of bathrooms

5

Number of toilets

3

Equipment

Elevator

No

Outdoor description

Orientation of the front facade

North-west

Number of facades

3

Number of floors

3

Terrace

Yes

Surface terrace

14 m²

Total land surface

170 m²

Running water

Yes

Certificates and Compliance

Certification - Electrical installation

Not applicable

Town planning and environmental risks

Flooding Area type

(information not available)

Demarcated flooding area

(information not available)

Immovlan.be displays the data received from the seller. If some important or obligatory data is missing it is because they were not provided to us.

Immovlan ref.: VBC26573 Seller's ref.: 6736 Report fraud

Points of interest

Nurseries

Badaboum

437 m 1' 27'' 437 m 43'' 297 m 4' 297 m 4'

Preschools

Ecole D'Enseignement Spécialisé Primaire De La Communauté Française

546 m 2' 41'' 569 m 1' 319 m 4' 319 m 4'

Elementary schools

Ecole D'Enseignement Spécialisé Primaire De La Communauté Française

546 m 2' 41'' 569 m 1' 319 m 4' 319 m 4'

High schools

Athenee Royal Et Ecole D'Hotellerie De Spa

570 m 2' 46'' 593 m 1' 4'' 295 m 4' 295 m 4'

Motorways

A27 / E42: Battice - Verviers - Malmedy - Sankt-Vith - (Bitburg, Germany)

5.9 km 5'

Bus

TEC Liège - Verviers - 362 - Aywaille - Banneux - Theux - Spa

57 m 41''

TEC Liège - Verviers - 388 - Verviers - Theux - Spa

57 m 41''

TEC Liège - Verviers - 488 - Spa (Service urbain)

57 m 41''

Train stations

Spa-Géronstère

682 m 4' 693 m 1' 20'' 538 m 6' 538 m 6'

Charging stations

Radisson Blu Palace Hotel Spa

477 m 43''

Supermarkets

Intermarché Spa

407 m 1' 22'' 407 m 35'' 407 m 5' 407 m 5'

Carrefour Express Spa

537 m 2' 37'' 576 m 48'' 510 m 6' 510 m 6'

Shop & Go Delhaize Reine Astrid (Spa) III

1.2 km 4' 1.2 km 1' 46'' 1.1 km 8' 1.2 km 14'

Amusement parks

Thermes De Spa

2.1 km 2' 36''

Museums

Site Pouhon Pierre Le Grand

182 m 14''

Religious monuments

Abbaye De Stavelot

16.1 km 16'

Activities

Grottes De Remouchamps

14.7 km 14'

Kayaks

Site De Kayak Les Remous

30.5 km 32'

Castles

Château De Franchimont

10 km 12'

Golfs

Royal Golf Club Des Fagnes

3.3 km 4'

Education

There is a nearby preschool and elementary school: "Ecole D'Enseignement Spécialisé Primaire De La Communauté Française", 3 minutes away by bike.The nearest high school is called "Athenee Royal Et Ecole D'Hotellerie De Spa" and is 4 minutes' walk away.Badaboum is the most convieniently located nursery: just 4 minutes away as a pedestrian.

Transports

The nearest train station is "Spa-Géronstère": reachable in 1 minute by car, or 6 minutes by public transport.Do you need to charge an electric car? The nearest charging station ("Radisson Blu Palace Hotel Spa") is just 1 minute away by car.The motorway A27 / E42 (Battice - Verviers - Malmedy - Sankt-Vith - (Bitburg, Germany)) can be reached in 5 minutes.

Public transports

You can access these bus lines: TEC Liège - Verviers - 488 - Spa (Service urbain), TEC Liège - Verviers - 362 - Aywaille - Banneux - Theux - Spa, TEC Liège - Verviers - 388 - Verviers - Theux - Spa with a stop reachable in fewer than 1 minute as a pedestrian.

Shopping

You have the choice between several nearby supermarkets: "Intermarché Spa" (5 minutes by foot or 1 minute by car), "Carrefour Express Spa" (6 minutes by foot or 1 minute by car), "Shop & Go Delhaize Reine Astrid (Spa) III" (14 minutes by foot or 2 minutes by car).

Nearby cities

Alsdorf is 44 minutes away by car. It takes about 45 minutes to reach Herzogenrath with your car. In 46 minutes you can reach Kerkrade. Verviers is only 14 minutes away by car.

Tourism

The "Royal Golf Club Des Fagnes" golf course is 4 away.Want to go kayaking? There is "Site De Kayak Les Remous" just 32 minutes away.A religious monument can be visited in the vicinity: "Abbaye De Stavelot" at 16 minutes drive.You will find "Thermes De Spa" within 3 minutes by car.Looking for an activity? There are "Grottes De Remouchamps" to 14 minutes by car.A15A {minuteCar} minutes drive away is the "Château De Franchimont" castle.The museum "Site Pouhon Pierre Le Grand" can be reached in 1 minute.

Show all Show less