Description

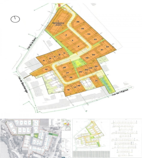
Discover an exceptional opportunity to acquire a spacious building plot in the charming town of Hautcharage, located within the municipality of Käerjeng in the Capellen canton. Priced at €476,775, this generous terrain spans 4.89 ares, providing an ideal canvas for building your dream home or investment property. The lot (Lot 9) offers clear space on all four sides, allowing for flexible architectural designs and personal customization. This land is offered without a construction contract, giving you full freedom to plan and develop according to your preferences. Situated in a tranquil yet well-connected area, Hautcharage combines the serenity of countryside living with proximity to essential amenities, making it a compelling choice for families and individuals seeking quality living environments. The location of this land enhances its appeal, as Hautcharage belongs to the municipality of Käerjeng, situated near the Belgian border in southwestern Luxembourg. The region is renowned for its natural beauty, particularly the "Redrock Region," which features numerous natural reserves, scenic walking and cycling trails. In the heart of Hautcharage, residents can enjoy a variety of local amenities including a 18th-century baroque church, several restaurants, and vibrant cafés. For outdoor recreation, there is the "Um Päsche" playground offering a range of activities for children, from swings and slides to water games. Just 1.5 km away in Bascharage, residents find larger supermarkets, additional dining options, and sports facilities such as the "Käerjenger Dribbel" complex with soccer fields and a small pool. The nearby "Käerjenger Treff" cultural center regularly hosts concerts and events, enriching the community lifestyle. Transportation options are excellent, with Hautcharage easily accessible by road and public transport. The area is approximately 17 km from Luxembourg City, reachable via the A13 motorway in about half an hour. Public transportation is well-developed; the bus stop "Hautcharage Crèche," just 100 meters from the property, connects residents to several bus lines, including routes to Esch-sur-Alzette and Luxembourg City. The Bascharage-Sanem railway station is only 3.5 km away and offers convenient rail links to Belgium and beyond through the CFL network. Numerous nearby amenities include sports centers, shopping malls such as Belval Plaza (14 km), and leisure facilities like the Aquasud aquatic center (8.5 km). This prime land opportunity combines idyllic surroundings with excellent accessibility, making it a highly desirable investment or residence option in Luxembourg. Contact us today for more information or to arrange a visit to explore this unique plot in Hautcharage.

* This text was generated using an artificial intelligence.

Show all Show less

Financial details

  • Price: 476 775 €

Services


More information

General info

Currently leased

No

Town planning and environmental risks

Flooding Area type

(information not available)

Demarcated flooding area

(information not available)

Immovlan.be displays the data received from the seller. If some important or obligatory data is missing it is because they were not provided to us.

Immovlan ref.: RBU43932 Seller's ref.: Lot 9 (Terrain G.-D. Jean) SD Report fraud

Points of interest

Nurseries

Les Poussins

6.7 km 22' 6.9 km 8' 0 m 0'' 6.4 km 1º 17'

Preschools

Ecole Fondamentale Annexée Athus II

6.7 km 45' 7.7 km 9' 0 m 0'' 6.4 km 1º 17'

Elementary schools

Ecole Fondamentale Annexée Athus II

6.7 km 45' 7.7 km 9' 0 m 0'' 6.4 km 1º 17'

High schools

Athenee Royal Athus

6.4 km 21' 6.6 km 7' 0 m 0'' 6.3 km 1º 16'

Motorways

A28 / E411: Aubange - Athus - (Longwy, France)

7.7 km 9'

A4 / E411 - E25: Brussels - Namur - Arlon - (Luxembourg (city), Luxembourg)

10.1 km 10'

Bus

TEC Namur - Luxembourg - 722 - Bascharage - Differt

959 m 12'

Train stations

Bascharage-Sanem

2.7 km 10' 3 km 4' 0 m 0'' 2.7 km 32'

Charging stations

Ikea Arlon

10.1 km 11'

Supermarkets

Lidl Aubange

6.1 km 20' 6.3 km 7' 0 m 0'' 6 km 1º 12'

Trafic Athus

6.4 km 21' 6.7 km 7' 0 m 0'' 6.3 km 1º 16'

Aldi Athus

6.4 km 22' 6.7 km 7' 0 m 0'' 6.3 km 1º 16'

Museums

Musée Gaspar

20.8 km 20'

Tourism

The museum "Musée Gaspar" can be reached in 20 minutes.

Shopping

There are a variety of supermarkets nearby: "Lidl Aubange" (7 minutes by car), "Trafic Athus" (7 minutes by car), "Aldi Athus" (7 minutes by car).

Public transports

You can access this bus line: TEC Namur - Luxembourg - 722 - Bascharage - Differt with a stand 12 minutes’ walk away.

Education

You can find a close preschool and elementary school: "Ecole Fondamentale Annexée Athus II", 9 minutes away by car.If you are looking for a high school, "Athenee Royal Athus" it is 7 minutes away by car.Les Poussins is the most convieniently located nursery: just 22 minutes away by bike.

Transports

A SNCB station ("Bascharage-Sanem") is located 10 minutes away by bike, or 4 minutes by car.In fewer than 11 minutes, you can find a charging station ("Ikea Arlon") for your electric car.The A28 / E411 (Aubange - Athus - (Longwy, France)) can be reached in 9 minutes, and the slip road to A4 / E411 - E25 (Brussels - Namur - Arlon - (Luxembourg (city), Luxembourg)) is just a 10 minute drive away.

Show all Show less