Garage for sale - Marnach (Luxemburg)

1 results (1 - 1)
21 500 €

9763 Marnach

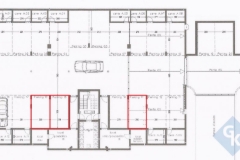
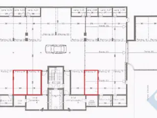
Discover a practical investment opportunity with this spacious garage for sale in Marnach, perfectly suited for those seeking secure parking solutions or additional real estate assets. Located at 5 Dosberstrooss within the picturesque town of Marnach, this garage is offered at an attractive price of €21,500, making it an accessible entry point for investors or private individuals looking to expand their property portfolio. This property features three interior parking spaces, all situated within the residential complex "Belle-Vue," providing convenience and peace of mind in a secure environment. The absence of VAT on this transaction simplifies the buying process, and the garage is currently not rented, offering flexibility for future use or leasing. For additional details or to discuss financing options, interested buyers are encouraged to contact the seller via email at ### or by phone at 26 811 911. The seller also offers competitive credit solutions through Luxembourg-based banks, managing the entire process to secure the best possible loan terms, which is an added benefit for potential buyers. Situated in Marnach, a lovely town known for its tranquility and community charm, this garage provides both practical advantages and investment potential. Whether you are looking for a secure parking space close to your residence or an asset to diversify your property holdings, this offering combines affordability with strategic location benefits. It's an excellent opportunity to acquire multiple parking spaces in a well-maintained complex, with the added reassurance of professional financial guidance and comprehensive service support. To seize this opportunity, contact us today and take the next step towards enhancing your real estate portfolio with this functional and valuable property. Want to know more?

contact
details
Email
Call

We only found a few results that match your criteria.