Land for sale - Hamme

3 results (1 - 3)
144 000 €

9220 Hamme

Discover a fantastic opportunity to build your ideal home on this well-located plot of land in Hamme. Priced at €144,000, this spacious parcel offers a total area of 516 square meters, providing ample space for a single-family residence in a peaceful and verdant setting. The property’s dimensions include a frontage of approximately 9 meters, making it an attractive choice for those seeking a manageable yet generous plot to develop. The land is particularly suitable for a closed or terraced housing project, offering potential homeowners the chance to design and realize their perfect residence in a tranquil environment. Situated in the charming town of Hamme, this land benefits from a quiet, green surroundings that foster a relaxed lifestyle away from the hustle and bustle of urban centers. Hamme is known for its peaceful ambiance and natural beauty, making it an appealing location for families, retirees, or anyone looking to enjoy the serenity of rural Belgium while remaining accessible to nearby amenities. The site’s favorable urban planning classification, with an A-score in terms of sustainability and development potential, ensures that construction plans are supported by local regulations. Importantly, the property is not situated within an area prone to flooding, offering peace of mind regarding environmental risks. Moreover, it is not part of a protected area, which simplifies the development process and provides flexibility for future plans. This land parcel displays excellent potential for those eager to build their dream home in a welcoming community. With its spacious size, advantageous location, and attractive price point of €144,000, it presents a rare opportunity to invest in quality real estate in Hamme. Interested buyers are encouraged to act swiftly and contact us today for further information or to arrange a visit. Whether you are planning a family residence or seeking a prime piece of land for future development, this property offers a perfect foundation to bring your vision to life in one of Belgium’s most charming regions. Want to know more?

516 9 m Width terrain
contact
details
Email
Call
469 000 €

9220 Hamme

Discover a remarkable opportunity to acquire a spacious plot of land in Hamme, perfectly suited for those seeking a serene environment with excellent development potential. Located at Polderstraat 3, this expansive parcel spans approximately 2,800 square meters, offering ample space for various building projects. Priced at €469,000, this property presents an attractive investment in a tranquil setting that balances privacy and accessibility. The land is situated at the edge of the natural reserve De Bunt, providing a peaceful backdrop of greenery and nature, ideal for anyone longing for a countryside lifestyle without sacrificing proximity to local amenities. The plot features a generous depth of 153 meters and is zoned for residential construction, with specific building regulations to consider. Lot 2 and Lot 3 are sold together, offering substantial possibilities for open-concept housing or other residential developments. Notably, only Lot 2 can be subdivided, providing flexibility for different types of projects. The building guidelines specify a front setback of 10 meters from the street, a maximum building depth of 15 meters (with an allowance of 12 meters per floor), and side yard setbacks of 3 meters on the left and 4 meters on the right. The minimum frontage width is set at 9 meters, ensuring ample space for an elegant and functional home design. Importantly, the area is classified as class A in terms of flood risk, indicating that it is not prone to flooding, which adds to the property's appeal for prospective buyers. Situated in a location that balances rural tranquility with proximity to essential services, this land offers a compelling opportunity for investors and private individuals alike. Local amenities such as shops, schools, and horeca establishments are conveniently nearby, ensuring that daily needs are easily met. The property is currently not rented and will be available upon the signing of the deed, providing a straightforward process for new owners to realize their development plans. For more information or to schedule a visit, interested parties are encouraged to contact Heylen Vastgoed via email at ### or by phone at ### This exclusive offer invites you to explore the potential of this beautiful plot in Hamme and take the first step toward creating your ideal home or investment project in this scenic Belgian setting. Want to know more?

2800 153 m Depth of the terrain
contact
details
Email
Call
220 000 €

9220 Hamme

Discover a unique opportunity to acquire a substantial piece of natural landscape in the charming town of Hamme with this expansive land offering. Priced at €220,000, this property encompasses an impressive 34,268 square meters of pristine woodland, nestled within the protected natural area known as "Noubroek." This land is perfectly suited for those seeking a peaceful retreat or contemplating development within a natural setting, as it is classified as a bosgebied (forest area) and benefits from the existing pre-emptive right, ensuring a secure investment. The property’s prime location in Hamme offers a tranquil environment, ideal for nature lovers and eco-conscious buyers. Its vast expanse provides ample space for outdoor activities, conservation projects, or even specific land management pursuits. The area is characterized by its lush greenery and peaceful surroundings, making it a perfect refuge away from urban hustle, yet still easily accessible. The land is currently not leased and will be available upon signing the deed, providing flexibility for prospective buyers to plan their future use or development projects accordingly. Situated in a region renowned for its natural beauty, this land offers significant potential for those interested in forestry, conservation, or private estate development. The property is situated within a zone designated for natural purposes, emphasizing its ecological value. Interested buyers are encouraged to contact us for more information or to submit an offer. This is an exceptional opportunity to secure a sizable natural haven in Hamme at a competitive price, with the added benefit of a secure legal framework, including the right of pre-emption. Reach out today to explore this unique parcel of Belgian countryside and discover how it can meet your personal or professional objectives. Want to know more?

34268
contact
details
Email
Call

We only found a few results that match your criteria.

Create an e-mail alert to stay up-to-date with new properties matching your criteria!


Below you can find some more interesting places in the surroundings of Hamme (1785).

169 000 €

1785 Brussegem

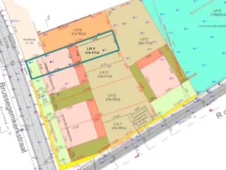
Discover a prime development opportunity in the charming village of Brussegem with this exceptional building plot listed at €169,000. Located in the heart of this picturesque community, this spacious parcel covers 241 square meters and is situated within an approved subdivision comprising six lots along the Brussegemkerkstraat – Romeinse Baan. The site offers a unique chance to craft a custom family home tailored to your preferences, in a location that balances rural tranquility with excellent connectivity. Its strategic positioning allows easy access to major roads such as the A12 and RING, ensuring seamless commuting to nearby cities and beyond, all while enjoying a peaceful environment characterized by expansive green landscapes, active farms, fruit orchards, and traditional farms that define the authentic charm of Brussegem. This building site is governed by specific construction regulations designed to support a comfortable and functional family residence. The permitted construction includes a two-story, single-family home with a street-facing façade. The maximum building depth permitted on the ground floor is 15 meters, with a slightly reduced depth of 12 meters for the first floor, ensuring ample living space while maintaining harmonious proportions within the neighborhood. The plan allows for up to two above-ground floors, accommodating either flat or pitched roofs. An underground level is also permissible within the same maximum footprint as the ground floor, providing additional space for storage or utility rooms. Development guidelines specify that extensions are only feasible within the designated building zone shown on the plan, and at least two parking spaces must be provided on-site to meet local standards. The plot’s location in a residential zone with no flood risk further emphasizes its suitability for future development. Brussegem offers an ideal blend of rural charm and modern accessibility, making this site highly desirable for those seeking a tranquil yet well-connected setting. With no preemption rights and an availability confirmed upon deed transfer, this property is ready for development. Whether you are a self-builder or an investor looking for a rare opportunity in this well-preserved village center, this parcel provides a blank canvas to realize your residential ambitions. To explore the full building regulations or obtain further details about this exclusive lot, interested buyers are encouraged to contact us by email at ### or call ### Take advantage of this unique chance to develop in one of Brussegem’s most sought-after locations and create your dream home in a scenic yet accessible setting. Want to know more?

241
contact
details
Email
Call
+32 2 460 80 46
174 000 €

1730 Mollem

Discover a prime development opportunity in the picturesque Mollem, a charming village that offers the perfect blend of tranquility and accessibility just outside Brussels. For those seeking to create their ideal home in a serene environment, this building plot presents an exceptional chance to realize your vision. Located at Voorstehoeve 112 A, this spacious 759 m² plot is available for €174,000, offering ample space to construct a custom-designed residence tailored to your needs and preferences. The site is designated for a semi-detached house, with specific building guidelines ensuring harmonious integration into the surrounding landscape. The buildable area allows for a maximum footprint of 7 meters in width and 15 meters in depth on the ground floor, with an option to include an attic with a maximum height of 6.4 meters, following the roofline and gable design of neighboring properties. The zoning permits the construction of a house featuring pitched roofs, dormer windows, and a basement if desired, providing flexibility for imaginative architecture. Additionally, the possibility of erecting auxiliary structures such as a garden shed, greenhouse, or storage unit up to 15 m² further enhances the versatility of this plot. The surrounding environment boasts open meadows, woodlands, and well-maintained green spaces, ideal for outdoor activities like walking, cycling, or simply unwinding amidst nature. With easy access to sports facilities, cultural centres, local shops, and public transportation, Mollem combines rural charm with urban convenience. The location of this development site offers numerous practical advantages for future residents. Positioned just minutes from local amenities—such as bakeries, butchers, and newsagents—daily errands are easily managed within a short drive or walk. For larger shopping requirements, nearby towns like Merchtem and Asse provide supermarkets and other retail outlets. Education facilities are also conveniently close, with a primary school available within the village, making it an excellent choice for families seeking a peaceful yet connected lifestyle. Commuters will appreciate the proximity to the Mollem train station on the Brussels-Dendermonde line, enabling quick and reliable travel to Brussels and beyond. The area benefits from good road connectivity and public transport options, ensuring mobility is straightforward and efficient. Importantly, the plot is situated outside any flood-prone zones and is not subject to any building obligations, providing prospective buyers with flexibility and peace of mind. Whether you’re an investor keen on developing a bespoke residence or an individual looking to settle in a scenic setting close to Brussels’ vibrant capital, this development site represents a compelling opportunity to craft your future home in one of Belgium’s most peaceful regions. If you are interested in exploring this unique plot and taking the next step towards building your dream property in Mollem, contact us today for more information or to arrange a viewing. This is a rare chance to acquire a sizeable piece of land in an idyllic Belgian village with excellent development potential. Act swiftly to secure this exceptional opportunity at Voorstehoeve 112 A and start turning your real estate ambitions into reality in a location renowned for its natural beauty and convenient proximity to major urban centres. Want to know more?

759
contact
details
Email
Call
+32 478 69 30 78
365 000 €

1785 Brussegem

This development site is situated in the peaceful and green neighborhood of Brussegem, located at Bollestraat L31, zip code 1785. The property comprises a spacious 615 square meter plot of land, oriented to the south, offering ample opportunity for building a single-family home. The surrounding area is known for its tranquility, being a quiet street that is ideal for those seeking a serene environment close to nature. The plot is suitable for constructing an open-plan house with two full stories. The design allows flexibility with the roof shape and features a facade width of 9.40 meters. The building can have a maximum height of 6 meters at the front, with specific dimensions for the ground and first floors—15 meters depth on the ground floor and 12 meters on the first floor—making it suitable for a spacious residence. Additionally, there is allowance for a terrace of up to 50 square meters behind the house, and parking or access pathways can occupy up to half of the paved area between the building and street. Located in a desirable area with beautiful views of greenery, this site offers good potential for customization and development. The property is currently available for sale and can be acquired with immediate availability upon signing the deed. For further details or to arrange a visit, interested buyers are encouraged to contact us via phone at ### or email at ### . Want to know more?

615
contact
details
Email
Call
+32 2 460 80 46
179 000 €

1785 Merchtem

Commune de MERCHTEM - Deuxième division: un terrain à bâtir destiné à un immeuble fermé situé Alfons Bursensstraat, cadastré selon l'extrait cadastral récent section K, numéros 140R et 141S, d'une superficie selon mesure de 3a are 02 centiare et d'une largeur de façade selon plan de 7m 70cm. Le bien est situé dans le RUP sous-zone 2 - zone pour rues résidentielles: - maison unifamiliale, bifamiliale ou projet de cohabitation - profondeur du bâtiment: max. 17m au rez-de-chaussée et 12m au premier étage - hauteur du bâtiment: max. 7 m pour les toits plats - 12 m pour les toits en pente - les toits plats, les toits en pente et les toits en décrochement sont autorisés - maximum 2 couches de construction complètes et un volume de toiture Caractéristiques particulières * Entrepreneur et architecte libres * Rue à sens unique * Emplacement central * Orientation sud-est Besoin de plus d'informations? Contactez-nous au ### ou ### Want to know more?

302 39 m Depth of the terrain
contact
details
Email
Call
+32 2 460 80 46
210 000 €

1785 Merchtem

Discover a unique opportunity to develop a spacious and comfortable home in the serene surroundings of Merchtem. This development site, listed at €228,000, is situated on Appelkotlaan LOT 8, offering a generous plot of approximately 11a85ca (1,185 m²). Perfectly suited for building a single-family home, this land provides ample space for a modern, open-concept residence that aligns with your personal vision. The property benefits from a strategic location that combines tranquility with excellent accessibility, making it ideal for families or those seeking a peaceful lifestyle close to local amenities. Its position in a quiet, residential neighborhood ensures privacy and peace, while still maintaining convenient access to the center of Merchtem, schools, shops, and public transportation, with a Mobiscore rating of 7.7/10 reflecting ease of mobility and connectivity. The planning restrictions for this land are designed to foster thoughtful development while respecting the environment and existing structures. The maximum building depth on the ground floor is limited to 20 meters, providing ample space for a comfortable family home. The design of the roof is flexible, allowing for creative architectural expression within the guidelines that the ridgeline height and roof slope of the front facade must remain consistent across the block. At least one parking space must be incorporated into the main or auxiliary building, ensuring practicality for future residents. The site offers stunning views over the surrounding fields at the rear, adding to its appeal as an idyllic setting for your new home. Please note that measurement by a surveyor is required, with associated costs to be borne by the purchaser; the listed surface area is provisional until official measurements are completed. Located in a peaceful, residential area of Merchtem, this development site presents a rare chance to realize your dream home in an environment that balances nature and accessibility. The plot’s size and zoning are ideal for constructing a bespoke residence that suits your needs, whether you envision a spacious family house or a custom-designed estate. The property benefits from essential utilities such as electricity and water connections already in place, simplifying the building process. With no preemptive rights and a straightforward availability upon signing the deed, this site offers a practical and promising foundation for your future. Don’t miss this exceptional opportunity—contact us today to learn more about this prime development site and take the first step toward creating your ideal home in Merchtem. Want to know more?

784 56 m Depth of the terrain
contact
details
Email
Call
+32 2 460 80 46
400 000 €

1780 Wemmel

CONTACT: Quentin ### - ### - By The Way is pleased to present an opportunity to purchase two plots of land located on Avenue Reine Astrid in Wemmel (nos. 10 and 12). With a total surface area of +/- 7 are, the plots are +/-12m wide and +/- 59m deep. Existing situation: The 12 garages are let on these plots, providing immediate rental income. Property development: The plots offer the possibility of property development, with the capacity to build a small flat block of 4 to 5 units or 2 single-family homes (subject to local approvals and regulations). CONTACT: Quentin ### - ### Want to know more?

156 m² Buildable surface 702 59 m Depth of the terrain
contact
details
Email
Call
+32 2 648 01 20
149 000 €

1780 Wemmel

This development site is located at P. Vertongenstraat 89 in Wemmel, offering a prime opportunity for building a new home. The plot measures 145 square meters, with a street frontage of approximately 5.70 meters and a depth of 24.50 meters. The site is suitable for constructing a two-storey residence with the possibility of integrating a garage. Its strategic location provides easy access to local amenities, including the Wemmel market, public transportation, and nearby schools. The property is situated in a residential area that is not prone to flooding or other environmental risks. It benefits from an existing building permit and a zoning designation as a residential zone, making it ready for development. There is also a pre-emption right in place, and a building permit has been issued, facilitating a smooth process for future construction. Wemmel’s neighborhood offers a peaceful environment while still being close to the town center and natural surroundings, such as the Beverbos, which is ideal for walking and outdoor activities. The plot's legal status is clear, with no current judicial or administrative measures affecting the property, making it an attractive option for prospective buyers looking to develop a personal residence in a convenient and well-established area. Want to know more?

145 25 m Depth of the terrain
contact
details
Email
Call
+32 2 478 14 07
185 000 €

1730 Bekkerzeel

Terrain à bâtir situé au calme à Bekkerzeel. immo David vous présente ce magnifique terrain à bâtir orienté sud-ouest de 5a75ca pour la construction d’une maison trois façades à Bekkerzeel. Directement construire selon les dernières normes énergétiques et jouir insouciant pendant des années de votre maison avec vue sur les champs valloneés de Bekkerzeel? Votre rêve peut se réaliser dans la Noterlaarsstraat. Le terrain en pente garantie une vue grandiose sur les champs et un bon drainage autour de la maison. La rue est situé dans la paix mais ne se trouve pas loin des axes routiers, le ring et le cœur dynamique de Asse qui vous offre une vaste gamme en termes de magasins, restaurants et écoles. Vous préférez savourer un peu de la culture locale? Cela peut se faire parfaitement au Centre Culturel ou lors des festivités pour le Hopduvel. Pour toute information complémentaire et les prescriptions urbanistiques, nous vous invitons de nous contacter. Want to know more?

575
contact
details
Email
Call
+32 2 305 51 33
249 000 €

1853 Strombeek-Bever

***Vous voulez plus d'informations ou un rendez-vous? Nathan est heureux de vous aider : ### *** Découvrez ce terrain à bâtir unique, situé dans une rue calme et conviviale en cul-de-sac — l’endroit idéal pour concrétiser votre projet de vie ou de travail. Prescriptions urbanistiques : - 15 m au rez-de-chaussée - 12 m aux étages - maximum 2 niveaux + toiture - 7 m pour la corniche Les possibilités sont particulièrement variées : d’une maison unifamiliale à un projet de cohabitation, une habitation kangourou ou une maison de soins. Ce terrain convient également parfaitement à ceux qui recherchent une combinaison de logement et de travail, avec la possibilité d’y établir un bureau, une activité de services ou une profession libérale. Vous souhaitez en savoir plus sur les prescriptions urbanistiques ou les possibilités concrètes ? N’hésitez pas à contacter notre bureau pour fixer un rendez-vous. Nous serons ravis de vous aider. Want to know more?

946 64 m Depth of the terrain
contact
details
Email
Call
+32 2 267 15 55
375 000 €

1702 Groot-Bijgaarden

Discover a prime development opportunity in the tranquil and highly sought-after area of Groot-Bijgaarden with this exceptional building plot for sale at Isidoor Van Beverenstraat 37. Priced at €375,000, this spacious parcel offers an attractive investment in a peaceful neighborhood perfect for constructing a family home or multiple residences, as there are no building obligations attached. The land spans a generous total area of 16a 76ca, equivalent to approximately 1,676 square meters, providing ample space for a variety of architectural designs and landscaping options. The plot features a frontage of 17.58 meters along the street and extends 95 meters in depth, with a southwest orientation that promises plenty of natural sunlight and picturesque views of the surrounding countryside. This land parcel is distinguished by its excellent connectivity and accessibility. It is conveniently located within walking distance of local amenities including bus stops, shopping facilities, schools, train stations, and tram stops, making it ideal for families or professionals seeking a balance of rural tranquility and urban convenience. The property benefits from all necessary utilities being already connected—namely sewage, gas, water, and electricity—facilitating a smooth development process. Situated in a non-flood-prone zone, this land offers peace of mind for future planning and construction, ensuring resilience against natural risks. The strategic location of this development site in Groot-Bijgaarden combines serenity with practicality, making it an excellent choice for those looking to build their dream home or invest in land with significant potential for future growth. The area’s attractive mix of countryside views and urban amenities makes it particularly appealing for families and developers alike. If you are interested in exploring this exceptional opportunity further, don't hesitate to contact us to arrange a visit or to discuss the possibilities offered by this versatile land plot. This is a rare chance to secure a substantial piece of real estate in one of the region’s most promising locations—act now to make this land yours. Want to know more?

1676 95 m Depth of the terrain 17 m Width terrain
contact
details
Email
Call
+32 499 92 22 02
169 000 €

1702 Groot-Bijgaarden

Discover a prime development opportunity in the vibrant area of Groot-Bijgaarden with this exceptional piece of land offered at €169,000. This sizable plot spans a total surface area of 281 square meters, providing ample space for innovative building projects. The property is categorized as Lot 1 within an existing subdivision, ensuring a smooth legal and procedural process for potential buyers. The lot features a buildable footprint of 91 square meters on the ground floor, with a façade measuring 7 meters wide and a depth of 13 meters, offering flexible possibilities for constructing a residential or mixed-use building. Notably, there is a non-buildable lateral zone of 4 meters on the left side, preserving space around the property for aesthetic or functional purposes. The southeastern backyard, oriented toward the south, guarantees abundant sunlight, making it an attractive outdoor space once developed. The entire lot benefits from a valid planning permit, reinforcing its readiness for development and investment. Interested parties are encouraged to consult the relevant authorities for the full set of building regulations to ensure compliance with local planning guidelines. Situated in a highly accessible location, this property benefits from excellent connectivity to Brussels and beyond. The area boasts convenient access to public transportation options, major highways, local shops, and various amenities, making it ideal for both investors and families seeking a strategic residential site. Its central position within Groot-Bijgaarden ensures residents can enjoy the harmony of suburban tranquility paired with urban convenience. The site’s classification as a P-Score A indicates its optimal environmental and urban planning status, and it is not situated within a flood-prone zone, which adds to its desirability from a safety perspective. Furthermore, there are no restrictions related to protected areas that might hinder development plans, simplifying the process for prospective buyers. This opportunity invites forward-thinking investors or visionary homeowners to capitalize on a well-located, permit-ready site with versatile development potential. Whether considering the construction of two apartments as suggested by the possibilities of building on the lot or other innovative uses, this land provides a compelling foundation for future growth. To explore this promising project further and obtain detailed legal and technical documents, interested parties are encouraged to contact the relevant offices or visit the dedicated webpage. Don’t miss this chance to secure a valuable parcel in Groot-Bijgaarden—reach out today to discuss your plans and discover how this prime development site can meet your ambitions. Want to know more?

281
contact
details
Email
Call
+32 2 523 55 52
370 000 €

1730 Asse

immo David vous présente ce magnifique terrain à bâtir orienté sud-ouest de 11a20ca pour la construction d’une maison quatre façades à Bekkerzeel. Directement construire selon les dernières normes énergétiques et jouir insouciant pendant des années de votre maison avec vue sur les champs valloneés de Bekkerzeel? Votre rêve peut se réaliser dans la Noterlaarsstraat. Le terrain en pente garantie une vue grandiose sur les champs et un bon drainage autour de la maison. La rue est situé dans la paix mais ne se trouve pas loin des axes routiers, le ring et le cœur dynamique de Asse qui vous offre une vaste gamme en termes de magasins, restaurants et écoles. Vous préférez savourer un peu de la culture locale? Cela peut se faire parfaitement au Centre Culturel ou lors des festivités pour le Hopduvel. Pour toute information complémentaire et les prescriptions urbanistiques, nous vous invitons de nous contacter. Want to know more?

1120 55 m Depth of the terrain
contact
details
Email
Call
+32 2 305 51 33
310 000 €

1861 Wolvertem

Discover a fantastic development opportunity in the picturesque town of Wolvertem with this prime plot of land available for sale at an attractive price of €310,000. Situated on the Drijpikkelstraat, this expansive site spans approximately 10 ares (1,000 m²) and offers a unique chance for prospective buyers to develop a single-family home in a tranquil, rural setting while still being conveniently close to key connectivity routes. The property is currently undeveloped, providing a blank canvas for your architectural vision within the framework of local building regulations. This development site is designated for open-building construction, allowing for a modern, standalone residence that can harmonize with the scenic surroundings. The zoning specifications permit a maximum façade width of 12 meters—an exceptional feature in lot 5 with a width of 22.33 meters—along with a ground floor building depth of 15 meters and an overall building height capped at 6.50 meters for flat roofs or 6 meters for pitched roofs. The roof design options include flat or pitched options, providing flexibility to suit personal preferences. The maximum ridge height is set at 11 meters, with provisions for an underground cellar—though no driveway access to the cellar is permitted—and an obligation for the garage to be incorporated within the building footprint. Construction can be limited to two above-ground levels, ensuring an intimate, well-proportioned residence that integrates seamlessly with its rural environment. Located within the charming area of Imde, near Wolvertem, this site benefits from proximity to both the town centers of Londerzeel and Wolvertem, where all essential amenities can be easily accessed. The region is renowned for its peaceful landscape, offering excellent opportunities for outdoor activities such as walking or cycling amidst nature. Additionally, the site’s strategic position near major connecting roads ensures swift access to larger cities like Brussels and Antwerp, making it ideal for commuters seeking a serene countryside lifestyle without sacrificing connectivity. Whether you are an investor looking to develop a bespoke home or a family seeking a peaceful haven in Belgium’s scenic landscape, this plot offers immense potential. To explore this unique opportunity further or to arrange a free valuation of your existing property, contact VMV-Vastgoed at ### or via email at ### . Don’t miss the chance to secure this exceptional land parcel in Wolvertem—your future project awaits! Want to know more?

1000
contact
details
Email
Call
+32 52 50 35 03
375 000 €

1861 Wolvertem

This development site is situated in Wolvertem, a charming rural suburb with a peaceful ambiance. The property, located on Barbierstraat 111, offers a spacious plot of approximately 5,140 square meters, providing ample space for a single-family home in open building style. The land enjoys a southwest orientation, which allows for optimal sunlight exposure and outdoor living possibilities. The lot is designated for residential construction with specific building regulations outlined in the approved urban planning certificate issued on February 4, 2025. The maximum building width allowed is 12.24 meters, with a maximum ground floor depth of 14.70 meters. A small detached outbuilding of up to 12 square meters is permitted, offering flexibility for additional storage or leisure space. The site benefits from good connectivity, being only 180 meters from a bus stop and approximately 2.4 kilometers from the nearest highway access. The location is not prone to flooding and is classified with an excellent P-Score A for water management. The property is available immediately upon signing the deed, making it an attractive opportunity for those looking to build a custom home in a serene setting with convenient transport links. For further details on building regulations, interested buyers can request additional information via email. Want to know more?

5140
contact
details
Email
Call
+32 477 97 12 85
259 000 €

1861 Wolvertem

This development site is located in the picturesque area of Westrode, Wolvertem, situated between the vibrant center of Londerzeel and the charming Kapelle-op-den-Bos. The plot offers a generous total land area of 735 m², providing ample space for building a family home or a care residence. The site benefits from a building permit and is situated in a quiet, accessible neighborhood with easy access to major cities like Antwerp, Brussels, and Mechelen via the A12 and E19 motorways. The specific lot available for sale measures approximately 7a 35ca and is designated for the construction of a semi-detached house (HOB) with a potential buildable surface of around 307.50 m². Building regulations specify a façade width of 7.5 meters, a ground floor depth of 17 meters, and a second floor depth of 12 meters, with the possibility to include a swimming pool. The property allows for two stories plus a pitched roof, offering flexibility for various residential configurations, including family homes or care dwellings. Surrounding amenities include nearby shopping options such as Carrefour (850 meters away) and other supermarkets like Colruyt, Aldi, and Gamma within 1.4 kilometers. Educational facilities are conveniently close, with primary schools just 650 meters away and secondary schools within 1.6 to 4 kilometers. Public transportation options include nearby train stations in Londerzeel (2.6 km) and Kapelle-op-den-Bos (4.2 km), making commuting straightforward. The site is situated in an area not prone to flooding, ensuring peace of mind for future development. Want to know more?

735
contact
details
Email
Call
+32 52 50 35 03
267 000 €

1861 Wolvertem

This development site is located in the picturesque area of Westrode, Wolvertem, situated between the vibrant center of Londerzeel and the charming Kapelle-op-den-Bos. The property comprises a spacious plot of approximately 935 square meters, with a granted building permit to develop a single-family home or care residence. The lot offers a buildable surface of around 307.50 square meters, with specific building regulations including a maximum facade width of 7.5 meters, ground floor depth of 17 meters, and a height of two stories plus an attic with a pitched roof. The location provides convenient access to essential amenities and transportation options. Nearby shopping centers include Carrefour (850 meters away), as well as Colruyt, Aldi, and Gamma within 1.4 kilometers. Educational facilities are also close by, with an elementary school just 650 meters from the site and secondary schools within a few kilometers. Transportation links are excellent, with Londerzeel train station 2.6 kilometers away and Kapelle-op-den-Bos station at 4.2 kilometers. Major routes such as the A12 and E19 facilitate easy connections to Antwerp, Brussels, and Mechelen, all within approximately 25 to 27 minutes by car. The property is ready for development with all necessary permits in place. There are no flood risks associated with the site, ensuring peace of mind for future construction. The price for this fully approved lot is €267,000, with additional costs for fencing and boundary demarcation payable by the buyer. This offers an excellent opportunity for those looking to build a customized home in a well-connected and attractive setting. Want to know more?

935
contact
details
Email
Call
+32 52 50 35 03