Appartement à vendre - Rocourt VBC04401

Chaussée de Tongres 52 4000 Rocourt

295 260 €

  • 2 Chambre(s)
  • 100
  • 1 Salle(s) de bain
  • 6 m² Terrasse
Chaussée de Tongres 52 4000 Rocourt

Vous cherchez des Appartement à vendre - Rocourt ?

Recevez un email dès qu’il y a un nouveau bien disponible !

Créer une alerte email

Description

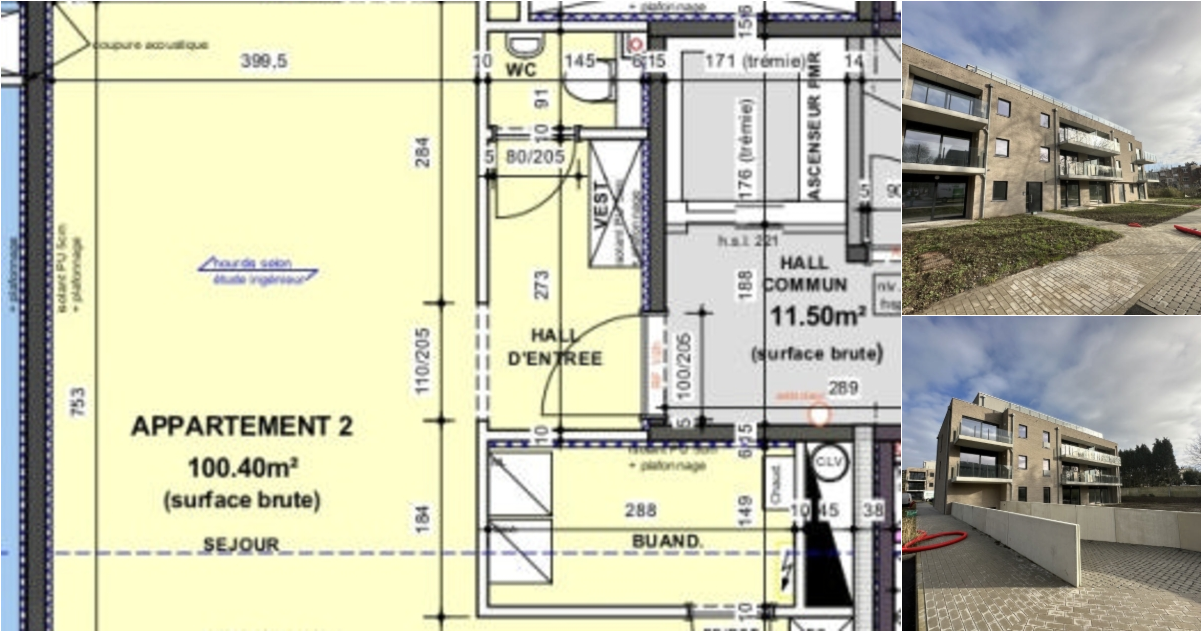
Situé au premier étage du premier immeuble du Clos du Parc, l'appartement "A2" (+/-100,40 m² brut hors terrasse selon plan) est composé d'un hall d'entrée, d'un lumineux séjour avec un espace cuisine ouvert et accès direct vers la terrasse à rue orientée sud-ouest, wc indépendant, buanderie, salle de douches et deux chambres. Isolés aux normes actuelles, thermiques et acoustiques, les bâtiments vous offrent un confort optimal et une économie d'énergie. Les appartements sont vendus hors peinture et cuisine. Chaudière à condensation au gaz ou pompe à chaleur, compteurs séparés, double vitrage PVC, ascenseurs. Référence PEB: RWPEB-073129. Prix hors frais (TVA 21%, frais de raccordement, honoraires notariaux et frais d'acte de base). Contactez-nous pour visiter votre futur investissement ! Plus d'informations disponibles sur demande à Contact . Informations données à titre indicatif et non contractuelles. www.waucomont.be Tout voir Réduire

Détails financiers

  • Prix: 295 260 €
  • TVA: Non

Services


Informations complémentaires

Données de base

Bien actuellement loué

Non

Aménagement intérieur

Nombre de chambres à coucher

2

Surface habitable

100 m²

Cuisine et sanitaires

Nombre de salles de bain

1

Chauffage et énergie

Type de chauffage

Gaz

Description extérieure

Étage de l'appartement

1

Nombre de façades

2

Jardin

Non

Terrasse aménagée

Oui

Surface de la terrasse

6 m²

Urbanisme et risques environnementaux

Type de zone inondable

Information non communiquée

Zone inondable délimitée

Information non communiquée

Immovlan.be affiche à l’écran toutes les données reçues de l’annonceur. Si certaines données importantes ou obligatoires sont manquantes, c’est qu’elles ne nous ont pas été fournies.

Réf. Immovlan: VBC04401 Réf. vendeur: W6143 - IMM1.A2 Signaler une fraude

Points d'intérêt à proximité

Crèches

G. Z. Du Service Sac Accueil Des Tout-Petits

347 m 1' 10'' 347 m 47'' 347 m 4' 347 m 4'

Écoles maternelles

Groupe Scolaire Communal "justin Bloom - Yvan Meys"

962 m 3' 2,1 km 4' 0 m 0'' 962 m 12'

Écoles primaires

Groupe Scolaire Communal "justin Bloom - Yvan Meys"

1,2 km 4' 1,3 km 2' 4'' 0 m 0'' 1,2 km 14'

Écoles secondaires

Ecole Fondamentale Et Secondaire Communale Spécialisée Type 5 Léopold Mottet I

1,2 km 4' 1,3 km 2' 4'' 0 m 0'' 1,2 km 14'

Autoroutes

A3 / E25 - E40 - E42 : Bruxelles - Louvain - Liège - Eupen - (Aix-la-Chapelle, Allemagne)

987 m 1' 20''

A602 / E25: A3 <-> A26

3,1 km 4'

Bus

TEC Liège - Verviers - 73 - Liège - Rocourt - Liers - Slins - Glons

85 m 1' 1''

TEC Liège - Verviers - 11 - Bressoux - St-Lambert - Rocourt

85 m 1' 1''

TEC Liège - Verviers - 174 - Liège - Rocourt - Paifve - Wihogne

85 m 1' 1''

Gares

Liège-Saint-Lambert / Luik-Sint-Lambertus / Lüttich-St.-Lambert

2,7 km 14' 3,7 km 6' 0 m 0'' 2,7 km 32'

Aéroports

Liège Airport

8,6 km 30' 10,4 km 8' 0 m 0''

Bornes de recharge

Tesla Supercharger Liège

1,7 km 2' 42''

Voitures en libre-service

Cambio - Campine

1,5 km 5' 0 m 0'' 1,5 km 18'

Supermarchés

Delhaize Rocourt

76 m 16'' 76 m 8'' 76 m 55'' 76 m 55''

Carrefour Market Rocourt

124 m 25'' 124 m 11'' 124 m 1' 29'' 124 m 1' 29''

Lidl Lüttich

262 m 54'' 262 m 23'' 262 m 3' 262 m 3'

Parcs d'attractions

Archéoforum

3,7 km 6'

Musées

Musée De La VIe Wallonne

4,9 km 8'

Activités

Maison De La Science

5 km 7'

Châteaux

Fort De Lantin

4,5 km 5'

Golfs

Golf Du Bernalmont

4,7 km 8'

Tourisme

Il faut 8 minutes pour rejoindre le musée "Musée De La VIe Wallonne".À la recherche d'une activité ? Il y a "Maison De La Science" à 7 minutes en voiture.À 8 minutes de là se trouve le golf "Golf Du Bernalmont".À 5 minutes de là se trouve le château "Fort De Lantin".Il y a un parc d'attractions à 6 minutes de route : "Archéoforum".

Éducation

Si vous cherchez une crèche, vous trouverez "G. Z. Du Service Sac Accueil Des Tout-Petits" à 1 minute en voiture.À proximité, vous pourrez trouver une école maternelle / école primaire : "Groupe Scolaire Communal "justin Bloom - Yvan Meys"", à 4 minutes en voiture."Ecole Fondamentale Et Secondaire Communale Spécialisée Type 5 Léopold Mottet I" est l'école secondaire la mieux située : il suffit de 14 minutes à pied pour la rejoindre.

Magasins

Vous aurez le choix entre plusieurs supermarchés à proximité : "Delhaize Rocourt" (1 minute à pied ou 1 minute en voiture), "Carrefour Market Rocourt" (1 minute à pied ou 1 minute en voiture), "Lidl Lüttich" (3 minutes à pied ou 1 minute en voiture).

Transports

L'autoroute A3 / E25 - E40 - E42 (Bruxelles - Louvain - Liège - Eupen - (Aix-la-Chapelle, Allemagne)) peut être rejointe en 1 minute et la bretelle d'accès vers A602 / E25 (A3 <-> A26) est à seulement 4 minutes en voiture.Une gare SNCB ("Liège-Saint-Lambert / Luik-Sint-Lambertus / Lüttich-St.-Lambert") est située à 14 minutes à vélo ou 6 minutes en voiture.L'aéroport le plus proche est Liège Airport et est accessibe en voiture en 8 minutes.Vous conduisez un véhicule électrique ou l'envisagez ? La station de recharge la plus proche ("Tesla Supercharger Liège") est à seulement 3 minutes en voiture.À environ 18 minutes à pied, vous pourrez trouver la station "Cambio - Campine".

Villes proches

Herzogenrath se trouve à 44 minutes en voiture. Environ 40 minutes sont nécessaires pour atteindre Sittard avec votre voiture. En 42 minutes en voiture vous pouvez rejoindre Kerkrade. Seulement 21 minutes sont nécessaires pour atteindre Verviers avec votre voiture.

Transports en commun

Il y a plusieurs lignes de bus à proximité de ce bien : TEC Liège - Verviers - 174 - Liège - Rocourt - Paifve - Wihogne, TEC Liège - Verviers - 73 - Liège - Rocourt - Liers - Slins - Glons, TEC Liège - Verviers - 11 - Bressoux - St-Lambert - Rocourt avec une station située à 1 minute à pied.

Tout voir Réduire