Terrain à vendre - Westerlo RBU16241

Stippelberg 169 2260 Westerlo

219 000 €

  • 1413 m² Surface totale du terrain
Stippelberg 169 2260 Westerlo

Vous cherchez des Terrain à vendre - Westerlo ?

Recevez un email dès qu’il y a un nouveau bien disponible !

Créer une alerte email

Description

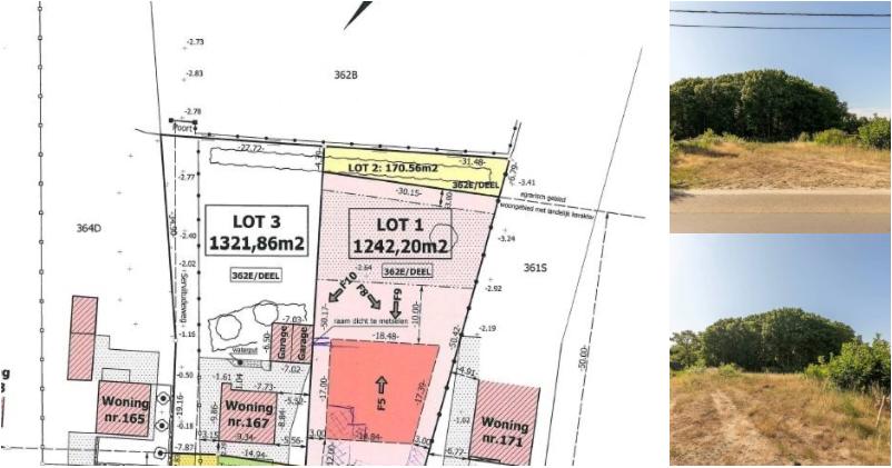
Ce terrain à bâtir, situé à Westerlo, offre une superficie de 1413 m², idéalement placé entre Heultje et Zoerle-Parwijs. La parcelle présente une profondeur de 50 mètres, avec une largeur de façade de 19,53 mètres à l'avant et 31,48 mètres à l'arrière, ce qui permet diverses options de construction. La configuration naturelle du terrain doit être respectée lors du projet de construction, bien qu'une légère élévation est autorisée pour optimiser l'aménagement. L'emplacement bénéficie d'excellentes connexions routières vers les facilités locales et la région environnante. La parcelle est adaptée à la construction d'une maison individuelle de plain-pied ou à étage, avec une façade pouvant atteindre 14,84 mètres de large et une profondeur maximale de 17 mètres. La zone n'est pas soumise à des risques d'inondation, ce qui sécurise le projet immobilier. Ce terrain est disponible à la vente pour 219 000 €, avec un droit de préemption en vigueur. La propriété n'est pas actuellement louée et sera disponible immédiatement après la signature de l'acte notarié. Pour plus d'informations sur les réglementations spécifiques et les possibilités de construction, il est conseillé de contacter directement l'agence immobilière.

* Ce texte est généré à partir d’une intelligence artificielle.

Tout voir Réduire

Détails financiers

  • Prix: 219 000 €

Services


Informations complémentaires

Données de base

Bien actuellement loué

Non

Disponibilité du bien

A l’acte

Description extérieure

Surface totale du terrain

1413 m²

Urbanisme et risques environnementaux

Le bien fait l'objet d'un droit de préemption

Oui

Attestation « As-built »

Non

Type de zone inondable

Pas de risque d’inondation

Zone inondable délimitée

Information non communiquée

Immovlan.be affiche à l’écran toutes les données reçues de l’annonceur. Si certaines données importantes ou obligatoires sont manquantes, c’est qu’elles ne nous ont pas été fournies.

Réf. Immovlan: RBU16241 Réf. vendeur: 259153 Signaler une fraude

Points d'intérêt à proximité

Crèches

Kribbelkrab

2,5 km 8' 2,5 km 3' 1,5 km 27' 2,5 km 30'

Écoles maternelles

Gemeentelijke Basisschool - De Klimboom Heultje

2,1 km 7' 2,7 km 4' 1,7 km 25' 2,1 km 26'

Écoles primaires

Gemeentelijke Basisschool - De Klimboom Heultje

2,1 km 7' 2,7 km 4' 1,7 km 25' 2,1 km 26'

Écoles secondaires

Go! Atheneum Westerlo

4,2 km 14' 4,7 km 6' 3,8 km 13' 4,2 km 50'

Autoroutes

A13 / E313 : Anvers - Hasselt - Liège

9,2 km 10'

Bus

De Lijn - 568 - Hulshout - Booischot - Westmeerbeek - Westerlo Scholen

2,5 km 30'

De Lijn - 223 - Hulshout - Heultje - Voortkapel - Olen - Herentals

2,5 km 30'

De Lijn - 51a - Mechelen - Heist-op-den-Berg - Hulshout - Westerlo - Geel

2,5 km 30'

Gares

Begijnendijk

8,7 km 38' 9,2 km 10' 0 m 0'' 8,7 km 1º 44'

Bornes de recharge

Vrijetijdscentrum "de Mixx"

4,2 km 5'

Voitures en libre-service

Cambio - De Zoerla

2,1 km 7' 1,7 km 18' 2,1 km 25'

Supermarchés

Carrefour Express Zoerle Parwijs

2,1 km 7' 2,5 km 2' 58'' 1,7 km 18' 2,1 km 25'

Spar Heultje

2,5 km 9' 2,7 km 4' 1,9 km 24' 2,5 km 30'

Delhaize Heultje

3 km 11' 3,3 km 4' 0 m 0'' 3 km 36'

Golfs

Golfclub Witbos

7,5 km 10'

Transports en commun

Ce bien est desservi par plusieurs lignes de bus telles que De Lijn - 51a - Mechelen - Heist-op-den-Berg - Hulshout - Westerlo - Geel, De Lijn - 223 - Hulshout - Heultje - Voortkapel - Olen - Herentals, De Lijn - 568 - Hulshout - Booischot - Westmeerbeek - Westerlo Scholen avec une station située à 30 minutes à pied.

Magasins

Pour vos courses, plusieurs options s'offrent à vous : "Carrefour Express Zoerle Parwijs" (25 minutes à pied ou 3 minutes en voiture), "Spar Heultje" (30 minutes à pied ou 4 minutes en voiture), "Delhaize Heultje" (4 minutes en voiture).

Transports

Vous conduisez un véhicule électrique ou l'envisagez ? La station de recharge la plus proche ("Vrijetijdscentrum "de Mixx"") est à seulement 5 minutes en voiture.L'autoroute A13 / E313 (Anvers - Hasselt - Liège) est accessible en 10 minutes.Vous ne souhaitez pas posséder de voiture, mais vous en avez encore occasionnellement besoin ? Il y a la station "Cambio - De Zoerla" où vous pouvez louer un véhicule partagé à seulement 7 minutes à vélo.Une gare SNCB ("Begijnendijk") est située à 38 minutes à vélo ou 10 minutes en voiture.

Tourisme

Le golf "Golfclub Witbos" se situe à 10 minutes de route.

Éducation

Vous trouverez une crèche : "Kribbelkrab", à 3 minutes en voiture.Si vous cherchez une école secondaire, vous trouverez "Go! Atheneum Westerlo" à 6 minutes en voiture.À proximité, vous pourrez trouver une école maternelle / école primaire : "Gemeentelijke Basisschool - De Klimboom Heultje", à 4 minutes en voiture.

Villes proches

Seulement 28 minutes sont nécessaires pour atteindre Beringen avec votre voiture. Environ 35 minutes sont nécessaires pour atteindre Turnhout avec votre voiture. Beveren se trouve à 45 minutes en voiture. Environ 36 minutes sont nécessaires pour atteindre Malines avec votre voiture.

Tout voir Réduire