Terrain à vendre - Westerlo RBU71933

Stippelberg 169 2260 Westerlo

219 000 €

  • 1413 m² Surface totale du terrain
Stippelberg 169 2260 Westerlo

Vous cherchez des Terrain à vendre - Westerlo ?

Recevez un email dès qu’il y a un nouveau bien disponible !

Créer une alerte email

Description

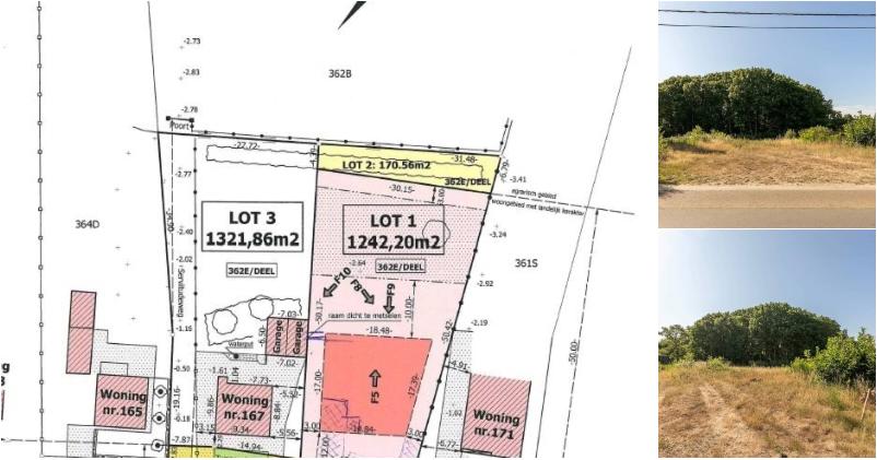
Découvrez cette opportunité exceptionnelle d'acquérir un terrain constructible idéalement situé à Westerlo, une commune qui allie charme rural et accessibilité. Avec une superficie totale de 1413 m², ce terrain offre de multiples possibilités de développement résidentiel dans un environnement paisible et pratique. La parcelle bénéficie d'une localisation stratégique, permettant des connexions rapides vers toutes les commodités essentielles, ce qui en fait un choix idéal pour ceux qui recherchent un cadre de vie harmonieux tout en restant à proximité des infrastructures urbaines. Ce terrain se distingue par ses dimensions généreuses, avec une profondeur de 50 mètres et une largeur de façade de 19,53 mètres, s'élargissant à 31,48 mètres à l'arrière. La configuration permet la construction d'une maison individuelle, notamment une villa ouverte, avec une profondeur maximale de 17 mètres. La façade avant, mesurant 14,84 mètres, et la façade arrière, de 18,48 mètres, offrent une grande liberté architecturale pour concevoir un logement personnalisé selon vos préférences. La nature du terrain présente une légère pente naturelle, qui doit être conservée lors du processus de construction, permettant ainsi d’intégrer l’environnement naturel dans le design final. Une élévation fonctionnelle est également envisageable, sous réserve de respecter les réglementations locales. Le prix demandé pour cette parcelle est de 219 000 €, une offre compétitive pour une telle superficie dans cette région prisée. La disponibilité immédiate au moment de la signature de l’acte de vente facilite la planification de votre projet immobilier. La propriété n’est actuellement pas louée, ce qui vous offre une flexibilité totale pour démarrer la construction ou pour envisager d’autres projets selon vos besoins. Pour plus d’informations sur les règlements urbanistiques ou pour obtenir le certificat "as-built", vous pouvez contacter directement l’agence via l’adresse email fournie. Ne laissez pas passer cette occasion unique d’investir dans un terrain d’exception à Westerlo, où nature et accessibilité se conjuguent pour créer le lieu idéal à bâtir votre futur chez-vous. Contactez-nous dès aujourd’hui pour organiser une visite ou pour toute demande complémentaire.

* Ce texte est généré à partir d’une intelligence artificielle.

Tout voir Réduire

Détails financiers

  • Prix: 219 000 €

Services


Informations complémentaires

Données de base

Bien actuellement loué

Non

Disponibilité du bien

A l’acte

Description extérieure

Surface totale du terrain

1413 m²

Urbanisme et risques environnementaux

Le bien fait l'objet d'un droit de préemption

Oui

Attestation « As-built »

Non

Type de zone inondable

Pas de risque d’inondation

Zone inondable délimitée

Information non communiquée

Immovlan.be affiche à l’écran toutes les données reçues de l’annonceur. Si certaines données importantes ou obligatoires sont manquantes, c’est qu’elles ne nous ont pas été fournies.

Réf. Immovlan: RBU71933 Réf. vendeur: 275062 Signaler une fraude

Points d'intérêt à proximité

Crèches

Kribbelkrab

2,5 km 8' 2,5 km 3' 1,5 km 27' 2,5 km 30'

Écoles maternelles

Gemeentelijke Basisschool - De Klimboom Heultje

2,1 km 7' 2,7 km 4' 1,7 km 25' 2,1 km 26'

Écoles primaires

Gemeentelijke Basisschool - De Klimboom Heultje

2,1 km 7' 2,7 km 4' 1,7 km 25' 2,1 km 26'

Écoles secondaires

Go! Atheneum Westerlo

4,2 km 14' 4,7 km 6' 3,8 km 13' 4,2 km 50'

Autoroutes

A13 / E313 : Anvers - Hasselt - Liège

9,2 km 10'

Bus

De Lijn - 568 - Hulshout - Booischot - Westmeerbeek - Westerlo Scholen

2,5 km 30'

De Lijn - 223 - Hulshout - Heultje - Voortkapel - Olen - Herentals

2,5 km 30'

De Lijn - 51a - Mechelen - Heist-op-den-Berg - Hulshout - Westerlo - Geel

2,5 km 30'

Gares

Begijnendijk

8,7 km 38' 9,2 km 10' 0 m 0'' 8,7 km 1º 44'

Bornes de recharge

Vrijetijdscentrum "de Mixx"

4,2 km 5'

Voitures en libre-service

Cambio - De Zoerla

2,1 km 7' 1,7 km 18' 2,1 km 25'

Supermarchés

Carrefour Express Zoerle Parwijs

2,1 km 7' 2,5 km 2' 58'' 1,7 km 18' 2,1 km 25'

Spar Heultje

2,5 km 9' 2,7 km 4' 1,9 km 24' 2,5 km 30'

Delhaize Heultje

3 km 11' 3,3 km 4' 0 m 0'' 3 km 36'

Golfs

Golfclub Witbos

7,5 km 10'

Transports en commun

Ce bien est desservi par plusieurs lignes de bus telles que De Lijn - 223 - Hulshout - Heultje - Voortkapel - Olen - Herentals, De Lijn - 51a - Mechelen - Heist-op-den-Berg - Hulshout - Westerlo - Geel, De Lijn - 568 - Hulshout - Booischot - Westmeerbeek - Westerlo Scholen avec une station située à 30 minutes à pied.

Éducation

Si vous cherchez une crèche, vous trouverez "Kribbelkrab" à 3 minutes en voiture.Vous trouverez une école secondaire : "Go! Atheneum Westerlo", à 6 minutes en voiture.À proximité, vous pourrez trouver une école maternelle / école primaire : "Gemeentelijke Basisschool - De Klimboom Heultje", à 4 minutes en voiture.

Villes proches

En juste 28 minutes en voiture vous pouvez rejoindre Beringen. Turnhout se trouve à 35 minutes en voiture. Environ 45 minutes sont nécessaires pour atteindre Beveren avec votre voiture. En 36 minutes en voiture vous pouvez rejoindre Malines.

Tourisme

À 10 minutes de là se trouve le golf "Golfclub Witbos".

Magasins

Vous trouverez divers supermarchés à proximité : "Carrefour Express Zoerle Parwijs" (25 minutes à pied ou 3 minutes en voiture), "Spar Heultje" (30 minutes à pied ou 4 minutes en voiture), "Delhaize Heultje" (4 minutes en voiture).

Transports

Vous ne possédez pas de voiture mais souhaitez en louer une occasionnellement ? Vous trouverez une station "Cambio - De Zoerla" où vous pourrez louer un véhicule partagé à seulement 25 minutes à pied.Vous conduisez un véhicule électrique ou l'envisagez ? La station de recharge la plus proche ("Vrijetijdscentrum "de Mixx"") est à seulement 5 minutes en voiture.Une gare SNCB ("Begijnendijk") est située à 38 minutes à vélo ou 10 minutes en voiture.Il vous suffit de 10 minutes pour rejoindre l'autoroute A13 / E313 (Anvers - Hasselt - Liège).

Tout voir Réduire