Grond te koop - Kampenhout

5 zoekertjes (1 - 5)
340 000 €

1910 Kampenhout

Aanbod van 2 zuid-oost georiënteerde bouwgronden voor een villawoning. Rustig gelegen in de residentiële woonomgeving ‘Ter Bronnen’, een domein met een prachtige uitstraling. Met de wagen op een boogscheut van de belangrijkste verbindingswegen (Leuven, Mechelen, Brussel) en winkels. Op wandelafstand van het natuurreservaat Torfbroek. De perfecte combinatie tussen rust en centrale ligging. Oppervlaktes: perceel 185z=16a35ca, 185a2=17a83ca. Prijs per grond: 375.000 euro. Bouwvoorschriften volgens de geldende verkaveling: Maximale voorgevelbreedte bedraagt 21m, de maximale bouwdiepte bedraagt 15m. Maximum te bebouwen oppervlakte is 250m². De garage dient in het hoofdgebouw geïncorporeerd te worden. Kroonlijst : max 6m bij dakhelling van max 50° Een individuele behandeling van afvalwater is te voorzien op eigen perceel met infiltratie (na behandeling). Het niet bebouwbare gedeelte moet aangelegd worden met hoogstammig groen (het bestaande is maximaal te bewaren). Het groen moet aangebracht worden langs de zijden van het perceel, min de nodige toegangen. Slechts 10% van de perceelsoppervlakte mag ingenomen worden voor het aanleggen van grasperken, speelruimten en dergelijke. De voorschriften kunnen opgevraagd worden via ### . Watertoets: P-score C De kosten voor opmeten en afpalen van het bouwlot bedragen 900 Euro excl btw en zijn ten laste van de koper. Meer weten?

1783
contacteer
details
E-mail
Bellen
205 000 €

1910 Kampenhout

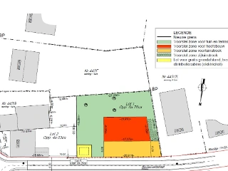
Op een goede locatie te Kampenhout bevindt zich deze bouwgrond van 710 m² voor een open bebouwing. U bevindt zich hier in een groene omgeving, toch in de nabijheid van winkels, scholen en het openbaar vervoer.Plaatsing van de gebouwen en bijgebouwen (zie plan)1. Op minimum 21m uit de wegas2. Minimumafstand van de constructies tot de perceelsgrens: 3m3. Bijgebouwen: max. 30m²; kroonlijst max. 3m; dakhelling 0°-45°; min. 1m uit perceelsgrens4. Bouwvrije strook achter woning min. 8mWelstand van de gebouwen en bijgebouwen1. Dakvorm: plat of schuin dak (0°-45°)2. Materialen: vrij te kiezen (conform andere kavels)3. Bedekking van de schuine daken: vrij te kiezen4. Kelder toegelatenAfmetingen van de gebouwen1. Gevelbreedte: max. 8,60m vooraan en max. 7,50m achteraan (3m van perceelsgrenzen) 2. Bouwdiepte: max 15m gelijkvloers, max 12m verdieping3. Bouwhoogte: maximale kroonlijst van 6m plat dak, 6,30m schuin dak; Nokhoogte ifv. dakhellingDit is een uitstekende opportuniteit als u op zoek bent naar een bouwgrond voor open bebouwing op een goede locatie. Contacteer ons voor meer informatie op ### of neem een kijkje op ### :- Open bebouwing- Groene omgeving- Verschillende bouwmogelijkheden Meer weten?

710
contacteer
details
E-mail
Bellen
220 000 €

1910 Nederokkerzeel

Rustige ligging in een éénrichtingsstraat, openbaar vervoer en scholen op wandelafstand, winkels binnen de 5km. Bouwvoorschriften Maximale voorgevelbreedte bedraagt 17m37, de maximale bouwdiepte bedraagt 9m12 Maximum bebouwbare oppervlakte bedraagt 143m². Kroonlijst : max 6m bij een hellend dak, 6,5m bij plat dak. Nokhoogte maximum 10,27m. Verharding tot 40m² toegelaten, bijgebouwen toegestaan tot 40m². Complementaire bedrijvigheid toegestaan onder voorwaarden. De voorschriften kunnen opgevraagd worden via mail ### . Metingskosten ten laste van de koper: 900 Euro excl btw, aandeel in de verkavelingsakte ten laste van de koper. Informatieplicht watergevoeligheid: perceelscore D: enkel aan de straat. Meer weten?

676
contacteer
details
E-mail
Bellen
375 000 €

1910 Kampenhout

TE KOOP: Exclusieve bouwgrond met vergunning gelegen in de prestigieuze Sparrendreef – Kampenhout Adres: Sparrendreef 7, 1910 Kampenhout Perceeloppervlakte: 1.958 m² | Vraagprijs: €375.000 In een van de meest begeerde en residentiële lanen van Kampenhout – de Sparrendreef – presenteren wij u met trots deze uitzonderlijke achterliggende bouwgrond op nummer 7. Een zeldzame kans voor wie op zoek is naar ruimte, luxe en absolute privacy, verscholen in het groen. Dit royaal perceel, omgeven door prachtige volwassen bomen, creëert een uniek gevoel van rust en beschutting. De natuurlijke begroeiing waarborgt een uitzonderlijke mate van privacy en vormt het ideale decor voor het bouwen van een exclusieve villa met een gevelbreedte van 22,75 meter en een bouwdiepte van 14,78 meter, gespreid over twee verdiepingen. De potentiële woning biedt een indrukwekkende bewoonbare oppervlakte van +- 500 m², perfect voor grote gezinnen of voor vrije beroepers zoals advocaten, notarissen, artsen, boekhouders, enz. Troeven van deze bouwgrond: • Prachtige, groene locatie in een exclusieve wijk • Uitzonderlijke privacy door de volwassen bomen rondom het perceel • Ruime bouwmogelijkheden met een bewoonbare oppervlakte van +- 500 m² • Reeds opgemaakte architectenplannen, de helft van de architectkosten zijn reeds voldaan. De architect is bereid om verder te werken en biedt volledige opvolging van A tot Z. U heeft echter altijd de vrijheid om met een andere architect in zee te gaan, mocht u dat wensen. • Direct beschikbaar bij akte • Vraagprijs: €375.000 Deze bouwgrond biedt de ideale combinatie van luxe, rust en privacy, op een toplocatie in Kampenhout. Dichtbij belangrijke verbindingswegen en voorzieningen, maar toch volledig omgeven door natuur. Zin om deze unieke locatie zelf te ontdekken? Neem vandaag nog contact op met Home Consult voor meer informatie of om een persoonlijke bezichtiging in te plannen. Wij helpen u graag verder! Meer weten?

1958
contacteer
details
E-mail
Bellen
389 000 €

1910 Kampenhout

Zeer rustig gelegen in een doodlopende straat in Kampenhout, vinden we deze ruime bouwgrond van 881m² met een oud koetshuis op. In de jaren '90 werd er een verkavelingsvergunning aangevraagd om een groter stuk grond (1731m²) te splitsen in 2 loten (881m² en 850m²). Deze is nog geldig en kan dus nog worden uitgevoerd. Hier gaat het om het linkse perceel van de twee. Er ook de mogelijkheid om beide percelen aan te kopen, alsook een overname van de aandelen van de vennootschap die eigenaar is van beide percelen. Op de grond bevindt zich een koetshuis uit 1766 dat werd opgenomen op de inventaris van onroerend erfgoed (maakt deel uit van "Kasteel Defaille", dat achtergelegen is). Er kan een mooie open bebouwing gebouwd worden worden, alsook een herbestemming van het koetshuis uitgevoerd worden, uiteraard rekening houdend met het erfgoedkarakter van het koetshuis (advies in te winnen bij dienst onroerend erfgoed). Bouwvoorschriften zijn beschikbaar op aanvraag. Contacteer Lars vandaag voor meer informatie via ### of ### Meer weten?

881 45 m Diepte terrein 20 m Breedte terrein
contacteer
details
E-mail
Bellen

We hebben slechts een paar zoekertjes gevonden die overeen komen met uw zoekcriteria.

Maak een e-mail alert om op de hoogte te blijven van nieuwe zoekertjes die aan uw criteria voldoen!


Hieronder zijn nog enkele interessante adressen te vinden in de buurt van Kampenhout (1910) + Deelgemeenten.

175 000 €

3190 Boortmeerbeek

Voor meer informatie, extra foto’s of om een bezoek in te plannen, contacteer Gil via ### of ### . Droomt u van een woning die volledig aansluit bij uw levensstijl? Deze bouwgrond van 477 m² in de Bieststraat te Boortmeerbeek biedt u de perfecte combinatie van rustig wonen, ruimte en uitstekende bereikbaarheid. Gelegen in een aangename en rustige woonstraat, geniet u hier van een vlotte verbinding naar het centrum van Boortmeerbeek én van een uitstekende bereikbaarheid richting E19 (Brussel–Antwerpen). Belangrijke steden zoals Mechelen, Leuven en Brussel zijn snel en gemakkelijk bereikbaar. Ook scholen, winkels en openbaar vervoer bevinden zich in de nabije omgeving. De grond is bestemd voor open bebouwing en beschikt over een gunstige perceeloppervlakte van 477 m², ideaal om een droomwoning op maat te realiseren met voldoende ruimte voor tuin, terras en privacy. Troeven op een rij: - Bouwgrond voor open bebouwing - Oppervlakte: 477 m² - Rustige en residentiële ligging - Uitstekende bereikbaarheid via E19 en invalswegen - Nabij winkels, scholen en openbaar vervoer - Ideaal voor comfortabel en toekomstgericht bouwen Een unieke kans voor wie op zoek is naar een kwalitatieve bouwgrond op een strategische locatie in Boortmeerbeek. Meer weten?

477 32 m Diepte terrein
contacteer
details
E-mail
Bellen
+32 16 84 96 84
239 000 €

3071 Erps-Kwerps

Deze strategisch gelegen bouwgrond is geschikt voor een halfopen bebouwing en bevindt zich tussen de winkelcentra van Kortenberg en Steenokkerzeel. Het perceel heeft een straatbreedte van 11,32 meter en een toegelaten bouwdiepte van 15 meter op het gelijkvloers en 12 meter op de eerste verdieping. Verder zijn er 2 woonlagen mogelijk alsook een kelder onder het natuurlijke maaiveld, ideaal voor extra bergruimte. Deze locatie combineert een centrale ligging met een uitstekende bereikbaarheid. Het station van Kortenberg bevindt zich op korte afstand, waardoor Brussel en Leuven vlot bereikbaar zijn met de trein. Met de wagen bent u in enkele minuten op de E40, wat ideaal is voor woon-werkverkeer richting Brussel, Zaventem of Leuven. In de directe omgeving vindt u tal van voorzieningen zoals winkels, scholen en sportfaciliteiten, wat het een praktische en comfortabele plek maakt om te wonen. Watertoets : perceelscore A. Niet gelegen in een risicozone voor overstromingen. Stedenbouwkundige inlichtingen zijn in aanvraag. Gelegen in woongebied. Geen voorkooprecht van toepassing. Een unieke kans om uw toekomstig thuis te bouwen op een goed bereikbare locatie. Interesse? Neem contact op voor meer informatie en de bouwvoorschriften via ### en ### Meer weten?

752 m² Bebouwbare opp.
contacteer
details
E-mail
Bellen
+32 471 47 14 81
287 000 €

3190 Boortmeerbeek

Ben je op zoek naar een unieke locatie om jouw droomwoning te bouwen? Deze bouwgrond van maar liefst 2.010 m², gelegen in de rustige Vogelzangwijk in Boortmeerbeek, biedt je de ideale kans om een vrijstaande woning te realiseren in een groene en kindvriendelijke omgeving. Belangrijkste troeven: - Geschikt voor open bebouwing ontwerp jouw vrijstaande woning met maximale vrijheid en privacy - Royaal perceel van 2.010 m² veel ruimte voor tuin, bijgebouwen of andere plannen - Zuidwestgerichte oriëntatie ideaal voor natuurlijke lichtinval en zonnige avonden - Rustige, residentiële wijk zonder doorgaand verkeer, perfect voor gezinnen - Uitstekende bereikbaarheid vlot naar Mechelen, Leuven en Brussel, en op wandelafstand van het station van Boortmeerbeek - Alle voorzieningen dichtbij scholen, winkels, sportclubs en openbaar vervoer Deze bouwgrond biedt een zeldzame combinatie van ruimte, rust en bereikbaarheid. Een plek waar je in alle vrijheid jouw ideale thuis kan bouwen. Meer weten of ter plaatse gaan kijken? Contacteer ons vandaag nog voor extra info of een bezichtiging. Gronden van deze omvang en ligging komen zelden op de markt! Meer weten?

2010 107 m Diepte terrein
contacteer
details
E-mail
Bellen
+32 16 15 32 10
185 000 €

3150 Haacht

In onze nieuw gerealiseerde woonwijk in Wespelaar biedt Danneels één perceel bouwgrond te koop aan.Het lot bevindt zich in de Weggevoerdenstraat, achteraan de verkeersluwe buurtPerceel 10b is 679 m² groot, heeft een ideale zuid oriëntatie en is bestemd voor open bebouwing. Bouwgrond te koop zonder bouwverplichting. Je kan dus vrij kiezen wanneer én met welke bouwpartner(s) je samenwerkt. Deze goed gelegen woonlocatie in het centrum van Wespelaar is een ideale plek om jouw droomhuis te bouwen.Mis deze kans niet en contacteer ons voor meer informatie. Meer weten?

679
contacteer
details
E-mail
Bellen
+32 15 30 81 00
175 000 €

3191 Hever

Voor meer informatie, extra foto’s of om een bezoek in te plannen, contacteer Gil via ### of ### . Droomt u van een woning die volledig aansluit bij uw levensstijl? Deze bouwgrond van 477 m² in de Bieststraat te Boortmeerbeek biedt u de perfecte combinatie van rustig wonen, ruimte en uitstekende bereikbaarheid. Gelegen in een aangename en rustige woonstraat, geniet u hier van een vlotte verbinding naar het centrum van Boortmeerbeek én van een uitstekende bereikbaarheid richting E19 (Brussel–Antwerpen). Belangrijke steden zoals Mechelen, Leuven en Brussel zijn snel en gemakkelijk bereikbaar. Ook scholen, winkels en openbaar vervoer bevinden zich in de nabije omgeving. De grond is bestemd voor open bebouwing en beschikt over een gunstige perceeloppervlakte van 477 m², ideaal om een droomwoning op maat te realiseren met voldoende ruimte voor tuin, terras en privacy. Troeven op een rij: - Bouwgrond voor open bebouwing - Oppervlakte: 477 m² - Rustige en residentiële ligging - Uitstekende bereikbaarheid via E19 en invalswegen - Nabij winkels, scholen en openbaar vervoer - Ideaal voor comfortabel en toekomstgericht bouwen Een unieke kans voor wie op zoek is naar een kwalitatieve bouwgrond op een strategische locatie in Boortmeerbeek. Meer weten?

477 32 m Diepte terrein
contacteer
details
E-mail
Bellen
+32 16 84 96 84
250 000 €

3071 Erps-Kwerps

Zuidelijk georiënteerde bouwgrond voor een ééngezinswoning in halfopen bebouwing (8a92ca) Gelegen in de landelijke deelgemeente Erps-Kwerps naast huisnummer 120, in de onmiddellijke nabijheid van een busverbinding en de gewestweg N2 Brusselsesesteenweg en op 1,5km van het station. Bouwvoorschriften volgens het stedenbouwkundig attest afgeleverd op 04/06/2025 Afmetingen woningen: Bouwbreedte: max. voorgevelbreedte: 8,64m Max. bouwdiepte op het gelijkvloers: 15m, op 1e verdieping: 12m OF 13m bouwdiepte op beide niveaus. Bouwhoogte: Max. kroonlijsthoogte 6m, bij een hellend dak van 45°. Vrijstaand bijgebouw toegelaten achter de woning. De voorschriften kunnen opgevraagd worden via ### . Watertoets: P-score B Kosten voor opmeting en afpaling ten laste van de koper: € 975 (incl. BTW) Meer weten?

130 m² Bebouwbare opp. 892
contacteer
details
E-mail
Bellen
+32 477 97 12 85
249 000 €

3071 Erps-Kwerps

Gelegen in een rustige en groene straat te Erps-Kwerps, biedt deze prachtige bouwgrond tal van mogelijkheden voor wie droomt van een ruime woning in een aangename omgeving. De grond, bestemd voor halfopen bebouwing, heeft een indrukwekkende breedte van 16,97 meter aan de straatkant, waardoor er voldoende mogelijkheden zijn om een mooie woning te realiseren die aan uw wensen voldoet. De bouwdiepte bedraagt 12 meter op het gelijkvloers en het verdiep, met de mogelijkheid om een kelder onder het natuurlijke maaiveld aan te leggen voor extra ruimte. De locatie biedt enerzijds een rustig, landelijk karakter en anderzijds een uitstekende bereikbaarheid voor woon-werkverkeer. De nabijgelegen verbindingswegen zorgen voor een vlotte toegang tot de omliggende steden, waardoor u snel op uw werkplek of in het centrum van grotere steden bent. Op wandelafstand van enkele bushaltes. Watertoets : perceelscore A. Niet gelegen in een risicozone voor overstromingen. Stedenbouwkundige inlichtingen zijn in aanvraag. Gelegen in woongebied. Geen voorkooprecht van toepassing. Voor meer informatie en de bouwvoorschriften kan u ons bereiken op ### en ### ! Meer weten?

510 m² Bebouwbare opp.
contacteer
details
E-mail
Bellen
+32 471 47 14 81
270 000 €

3071 Erps-Kwerps

Dit perceel is gelegen in een rustig straat, deels woongebied met landelijk karakter. Tussen Brussel, Leuven en Zaventem, ideaal maakt voor pendelaars, terwijl je tegelijkertijd geniet van de rust van een gemoedelijke buurt. Dichtbij het centrum, winkels en scholen. Niet ver van een bushalte en het station van Kortenberg. Stedenbouwkundige inlichtingen zijn in aanvraag. Contact per mail of bel + 32 475 52 24 25 Meer weten?

613
contacteer
details
E-mail
Bellen
+32 475 52 24 25
199 000 €

3150 Haacht

Voor meer informatie of inzage in de verkavelingsvoorschriften, neem contact op via ### of via ### . Bent u op zoek naar een bouwgrond voor een halfopen bebouwing in een rustige straat in Haacht? Dan is deze bouwgrond een uitstekende opportuniteit! De bouwgrond is gelegen in een rustig straatje, maar wel op wandelafstand van het centrum van Haacht. Naast deze bouwgrond staat er nog een bouwgrond van dezelfde grootte te koop. De P-score is voor beide bouwgronden A (niet-overstromingsgevoelig). Achteraan beide bouwgronden bevindt zich nog - indien gewenst - een aangrenzend stuk landbouwgrond van 333 m² (20.000 euro). Bent u benieuwd naar deze bouwgrond? Neem dan snel contact op! Meer weten?

611 50 m Diepte terrein
contacteer
details
E-mail
Bellen
+32 16 84 96 84
199 000 €

3150 Haacht

Voor meer informatie of inzage in de verkavelingsvoorschriften, neem contact op via ### of via ### . Bent u op zoek naar een bouwgrond voor een halfopen bebouwing in een rustige straat in Haacht? Dan is deze bouwgrond een uitstekende opportuniteit! De bouwgrond is gelegen in een rustig straatje, maar wel op wandelafstand van het centrum van Haacht. Naast deze bouwgrond staat er nog een bouwgrond van dezelfde grootte te koop. De P-score is voor beide bouwgronden A (niet-overstromingsgevoelig). Achteraan beide bouwgronden bevindt zich nog - indien gewenst - een aangrenzend stuk landbouwgrond van 333 m² (20.000 euro). Bent u benieuwd naar deze bouwgrond? Neem dan snel contact op! Meer weten?

611 50 m Diepte terrein
contacteer
details
E-mail
Bellen
+32 16 84 96 84
295 000 €

3078 Everberg

Perceel bouwgrond voor half-open bebouwing gelegen centrum Everberg, Annonciadenstraat links naast huisnummer 11A, oppervlakte 699 m², gelegen in het beschermd dorpsgezicht tegenover de Sint-Martinuskerk, vlakbij bushalte en basisschool “de negensprong”. Wordt verkocht zonder bouwverplichting. - Vraagprijs 295.000€ Lot 4 van verkavelingsvergunning 4/3/2020 referte omv_V_EV_2019_12 , Lot 3 (zoals vermeld op het plan) hoort bij Bouwvoorschriften : 110m² op gelijkvloers, inpandige garage, 2 woonlagen eventueel 3e woonlaag binnen gabarit van het dak, eengezinswoning, geen nevenactiviteiten, kelder toegelaten. Vg, Wg, Gmo, Gvkr, Vv Info: Abric.be / ### Meer weten?

699 m² Bebouwbare opp.
contacteer
details
E-mail
Bellen
+32 460 94 42 34
249 000 €

3070 Kortenberg

Kristof Jonckers - ### - ### Exclusieve ontwikkelingskans aan de Populierenlaan en Wespelaarbroek - Kortenberg. Ontdek dit unieke aanbod bouwgronden in een volledig vergunde verkaveling, gelegen aan de rustige en groene Populierenlaan en de doodlopende straat Wespelaarbroek te Kortenberg. Ideaal voor projectontwikkelaars die hoogwaardige nieuwbouwwoningen willen realiseren in een gewilde omgeving. VERGUNDE VERKAVELING: 15 loten in totaal, waarvan enkelen gereserveerd werden. Bouwvoorschriften LOT 1-8: (halfopen bebouwing) - 2 woonlagen, eventueel een derde woonlaag binnen het gabarit van een hellend dak (25°-45°), - maximale bouwdiepte (+0: 15m en +1: 12m OF +0: 13m en +1: 13m) voor een eengezinswoning. Bouwvoorschriften LOT 9-13: (open bebouwing) - 2 woonlagen, eventueel een derde woonlaag binnen het gabarit van een hellend dak (25°-45°), - maximale bouwdiepte (+0: 15m en +1: 12m OF +0: 13m en +1: 13m) voor een eengezinswoning. Kelders: niet toegelaten. Indien u graag meer informatie wenst - contacteer Kristof Jonckers - ### - ### Meer weten?

113 m² Bebouwbare opp. 582 58 m Diepte terrein
contacteer
details
E-mail
Bellen
+32 2 648 01 20
249 000 €

3070 Kortenberg

Kristof Jonckers - ### - ### Exclusieve ontwikkelingskans aan de Populierenlaan en Wespelaarbroek - Kortenberg. Ontdek dit unieke aanbod bouwgronden in een volledig vergunde verkaveling, gelegen aan de rustige en groene Populierenlaan en de doodlopende straat Wespelaarbroek te Kortenberg. Ideaal voor projectontwikkelaars die hoogwaardige nieuwbouwwoningen willen realiseren in een gewilde omgeving. VERGUNDE VERKAVELING: 15 loten in totaal, waarvan enkelen gereserveerd werden. Bouwvoorschriften LOT 1-8: (halfopen bebouwing) - 2 woonlagen, eventueel een derde woonlaag binnen het gabarit van een hellend dak (25°-45°), - maximale bouwdiepte (+0: 15m en +1: 12m OF +0: 13m en +1: 13m) voor een eengezinswoning. Bouwvoorschriften LOT 9-13: (open bebouwing) - 2 woonlagen, eventueel een derde woonlaag binnen het gabarit van een hellend dak (25°-45°), - maximale bouwdiepte (+0: 15m en +1: 12m OF +0: 13m en +1: 13m) voor een eengezinswoning. Kelders: niet toegelaten. Indien u graag meer informatie wenst - contacteer Kristof Jonckers - ### - ### Meer weten?

113 m² Bebouwbare opp. 648 58 m Diepte terrein
contacteer
details
E-mail
Bellen
+32 2 648 01 20
315 000 €

3070 Kortenberg

Kristof Jonckers - ### - ### Exclusieve ontwikkelingskans aan de Populierenlaan en Wespelaarbroek - Kortenberg. Ontdek dit unieke aanbod bouwgronden in een volledig vergunde verkaveling, gelegen aan de rustige en groene Populierenlaan en de doodlopende straat Wespelaarbroek te Kortenberg. Ideaal voor projectontwikkelaars die hoogwaardige nieuwbouwwoningen willen realiseren in een gewilde omgeving. VERGUNDE VERKAVELING: 15 loten in totaal, waarvan enkelen gereserveerd werden. Bouwvoorschriften LOT 1-8: (halfopen bebouwing) - 2 woonlagen, eventueel een derde woonlaag binnen het gabarit van een hellend dak (25°-45°), - maximale bouwdiepte (+0: 15m en +1: 12m OF +0: 13m en +1: 13m) voor een eengezinswoning. Bouwvoorschriften LOT 9-13: (open bebouwing) - 2 woonlagen, eventueel een derde woonlaag binnen het gabarit van een hellend dak (25°-45°), - maximale bouwdiepte (+0: 15m en +1: 12m OF +0: 13m en +1: 13m) voor een eengezinswoning. Kelders: niet toegelaten. Indien u graag meer informatie wenst - contacteer Kristof Jonckers - ### - ### Meer weten?

113 m² Bebouwbare opp. 877 62 m Diepte terrein
contacteer
details
E-mail
Bellen
+32 2 648 01 20
325 000 €

3070 Kortenberg

Kristof Jonckers - ### - ### Exclusieve ontwikkelingskans aan de Populierenlaan en Wespelaarbroek - Kortenberg. Ontdek dit unieke aanbod bouwgronden in een volledig vergunde verkaveling, gelegen aan de rustige en groene Populierenlaan en de doodlopende straat Wespelaarbroek te Kortenberg. Ideaal voor projectontwikkelaars die hoogwaardige nieuwbouwwoningen willen realiseren in een gewilde omgeving. VERGUNDE VERKAVELING: 15 loten in totaal, waarvan enkelen gereserveerd werden. Bouwvoorschriften LOT 1-8: (halfopen bebouwing) - 2 woonlagen, eventueel een derde woonlaag binnen het gabarit van een hellend dak (25°-45°), - maximale bouwdiepte (+0: 15m en +1: 12m OF +0: 13m en +1: 13m) voor een eengezinswoning. Bouwvoorschriften LOT 9-13: (open bebouwing) - 2 woonlagen, eventueel een derde woonlaag binnen het gabarit van een hellend dak (25°-45°), - maximale bouwdiepte (+0: 15m en +1: 12m OF +0: 13m en +1: 13m) voor een eengezinswoning. Kelders: niet toegelaten. Indien u graag meer informatie wenst - contacteer Kristof Jonckers - ### - ### Meer weten?

113 m² Bebouwbare opp. 881 62 m Diepte terrein
contacteer
details
E-mail
Bellen
+32 2 648 01 20