Grond te koop - Noduwez

3 zoekertjes (1 - 3)
175 000 €

1350 Noduwez

Magnifique terrain à bâtir de 10 ares 88 centiares situé à Noduwez, commune d’Orp-Jauche (Brabant wallon). Il se situe dans une rue calme à faible passage, dans un environnement paisible avec une vue dégagée sur les campagnes, mais reste proche de l'autoroute E40 et de toutes les commodités (commerces, écoles, transports, etc.). Le terrain a une façade de 22 mètres et une profondeur de 49 mètres. A l'arrière, l'orientation Sud-Ouest permet de profiter pleinement de la lumière naturelle en fin de journée. Le terrain est libre de constructeur et entièrement équipé à rue. Il bénéficie de nombreux travaux préparatoires déjà réalisés (semelles de fondations, ferraillage presque finalisé, essais de sol réalisés). Il peut être fourni avec des plans d'architecte et un permis de bâtir déjà approuvé par les autorités, ce qui permet de démarrer rapidement la construction en évitant des démarches et délais fastidieux. Le projet existant peut toutefois être adapté afin de correspondre à vos besoins. Une opportunité rare pour concrétiser rapidement et sereinement votre projet de construction dans un cadre exceptionnel! Contactez-moi: ### - ### ***** Pour recevoir d'autres opportunités en exclusivité, nous vous invitons à nous contacter directement. Nous sommes disponibles pour vous accompagner dans votre recherche d'achat ou d'investissement ainsi que dans votre projet de vente. Pour toute demande d'évaluation GRATUITE et SANS ENGAGEMENT ***** Meer weten?

130 m² Bebouwbare opp. 1088 49 m Diepte terrein
contacteer
details
E-mail
Bellen
125 000 €

1350 Noduwez

Prachtig perceel, dicht bij alle voorzieningen. Het heeft een oppervlakte van +/- 16 are en een prachtige straatgevel van +/-30m (mogelijkheid voor twee woningen mits bouwvergunning). Het is gelegen aan een weg met weinig verkeer, in een landelijke woonwijk aan de rand van het platteland. De weg is voorzien van riolering, elektriciteit, water, etc. Aanvullende informatie en specificaties zijn beschikbaar op aanvraag. Ref: sectie A n° 224M taart. - Bieden vanaf € 125.000 onder voorbehoud van aanvaarding door de verkopers - Zeldzame kans op talrijke bouwmogelijkheden! Vrij te bewonen. Meer weten?

1620
contacteer
details
E-mail
Bellen
397 000 €

1350 Noduwez

Prachtig perceel, dicht bij alle voorzieningen. Het heeft een oppervlakte van +/- 16 are en een prachtige straatgevel van +/-30m (mogelijkheid voor twee woningen mits bouwvergunning). Het is gelegen aan een weg met weinig verkeer, in een landelijke woonwijk aan de rand van het platteland. De weg is voorzien van riolering, elektriciteit, water, etc. Aanvullende informatie en specificaties zijn beschikbaar op aanvraag. Ref: sectie A n° 224M taart. - Bieden vanaf € 125.000 onder voorbehoud van aanvaarding door de verkopers - Zeldzame kans op talrijke bouwmogelijkheden! Vrij te bewonen. Meer weten?

1620
contacteer
details
E-mail
Bellen

We hebben slechts een paar zoekertjes gevonden die overeen komen met uw zoekcriteria.

Maak een e-mail alert om op de hoogte te blijven van nieuwe zoekertjes die aan uw criteria voldoen!


Hieronder zijn nog enkele interessante adressen te vinden in de buurt van Noduwez (1350).

Voorstel vanaf 85 000 €

1357 Opheylissem

Dans le charmant et prisé village d’Hélécine, découvrez cette superbe parcelle de 1.504 m² offrant la possibilité d’accueillir jusqu’à trois habitations (sous réserve d’acceptation par la commune). Le terrain bénéficie d’une large façade de 42 mètres et d’une profondeur de 43 mètres, avec une orientation Nord-Ouest à l’arrière. Les équipements sont disponibles à rue et la parcelle est libre de constructeur, ce qui vous laisse une totale liberté pour concrétiser votre projet immobilier. Situé dans un environnement verdoyant et recherché, à proximité de la E40, ce terrain constitue une opportunité rare tant pour un projet résidentiel que pour un investissement. La commune se tient disponible pour examiner un avant-projet et confirmer la faisabilité de votre projet. Faire offre à partir de 85.000€ par terrain... (Sous réserve d'acceptation des propriétaires). +/- 14m en façade et +/- 43 de profondeur. Vente en une seule parcelle Faire offre à partir de 255.000€... (Sous réserve d'acceptation des propriétaires). Façade totale 42m et 43 de profondeur. Avis de la commune : Division possible en maximum trois terrains à bâtir d’une largeur d’environ 14 mètres chacun, avec construction dans le bas, rue Hubert Vollon. Pas de construction du côté de la N279. Pour plus d’informations ou organiser une visite, n’hésitez pas à me contacter. L’agent immobilier ne pratique aucune enchère, monopole des notaires. Il ne s’arroge aucunement le droit de vendre ou de déterminer un prix minimum requis dans les offres d’acquisition reçues. Ces deux actions appartiennent exclusivement au propriétaire, lequel, s’il décide de vendre, ne sera donc jamais automatiquement tenu par l’offre la plus élevée recueillie, mais par celle qui répond le plus à ses propres exigences (délai pour signer, condition suspensive, prix proposé, etc.). Le prix mentionné ne constitue qu’un prix de départ. Contactez-moi: ### - ### Meer weten?

1504 43 m Diepte terrein
contacteer
details
E-mail
Bellen
+32 19 86 06 06
Voorstel vanaf 255 000 €

1357 Opheylissem

Dans le charmant et prisé village d’Hélécine, découvrez cette superbe parcelle de 1.504 m² offrant la possibilité d’accueillir jusqu’à trois habitations (sous réserve d’acceptation par la commune). Le terrain bénéficie d’une large façade de 42 mètres et d’une profondeur de 43 mètres, avec une orientation Nord-Ouest à l’arrière. Les équipements sont disponibles à rue et la parcelle est libre de constructeur, ce qui vous laisse une totale liberté pour concrétiser votre projet immobilier. Situé dans un environnement verdoyant et recherché, à proximité de la E40, ce terrain constitue une opportunité rare tant pour un projet résidentiel que pour un investissement. La commune se tient disponible pour examiner un avant-projet et confirmer la faisabilité de votre projet. Faire offre à partir de 85.000€ par terrain... (Sous réserve d'acceptation des propriétaires). +/- 14m en façade et +/- 43 de profondeur. Vente en une seule parcelle Faire offre à partir de 255.000€... (Sous réserve d'acceptation des propriétaires). Façade totale 42m et 43 de profondeur. Avis de la commune : Division possible en maximum trois terrains à bâtir d’une largeur d’environ 14 mètres chacun, avec construction dans le bas, rue Hubert Vollon. Pas de construction du côté de la N279. Pour plus d’informations ou organiser une visite, n’hésitez pas à me contacter. L’agent immobilier ne pratique aucune enchère, monopole des notaires. Il ne s’arroge aucunement le droit de vendre ou de déterminer un prix minimum requis dans les offres d’acquisition reçues. Ces deux actions appartiennent exclusivement au propriétaire, lequel, s’il décide de vendre, ne sera donc jamais automatiquement tenu par l’offre la plus élevée recueillie, mais par celle qui répond le plus à ses propres exigences (délai pour signer, condition suspensive, prix proposé, etc.). Le prix mentionné ne constitue qu’un prix de départ. Contactez-moi: ### - ### Meer weten?

1504 43 m Diepte terrein
contacteer
details
E-mail
Bellen
+32 19 86 06 06
140 000 €

1350 Marilles

Zeer aantrekkelijk perceel met een oppervlakte van 31a 12 ca, gelegen op het noordwesten en met een aantrekkelijke voorgevel van 18 meter. Ideaal gelegen in een kleine, rustige doodlopende straat, op 5' van de E40 en tal van voorzieningen. Het perceel ligt iets hoger dan de weg en loopt schuin omhoog. Mogelijkheid voor een huis met 4 voorgevels (perceel niet op een volkstuin). Geweldige kans Meer weten?

3112 86 m Diepte terrein
contacteer
details
E-mail
Bellen
+32 10 87 20 87
130 000 €

1350 Marilles

Te koop: prachtig ontwikkelingsperceel in het pittoreske dorp Marilles, onderdeel van de gemeente Orp-Jauche. Dit unieke perceel biedt een totale oppervlakte van ongeveer 12 are en is perfect gelegen met een zuidwestelijke oriëntatie, waardoor u kunt genieten van optimale lichtinval en zonneschijn. De grond maakt deel uit van een groter terrein van ongeveer 40 are en beschikt over een voorgevel van ongeveer 21 meter. Hierdoor biedt het ruime mogelijkheden voor de bouw van uw droomvilla of zelfs twee geschakelde woningen, afhankelijk van de goedkeuring door de stedenbouwkundige instanties. Dit bouwperceel ligt niet in een verkaveling en er zijn geen specifieke stedenbouwkundige voorschriften van toepassing, wat u de vrijheid geeft om uw toekomstige woning naar eigen wens en creativiteit vorm te geven. Houd er rekening mee dat de kosten voor het afpalen, opmeten en opdelen van het perceel, evenals de aansluitkosten, ten laste van de koper zijn. Deze factoren maken het perceel tot een uitstekende kans voor wie op zoek is naar een flexibele en gepersonaliseerde bouwmogelijkheid. Het perceel is direct beschikbaar en biedt veel potentieel voor wie op zoek is naar een investering of een persoonlijke woonruimte in een rustige en aantrekkelijke omgeving. Voor meer informatie over dit unieke aanbod kunt u contact opnemen met Gilmont Immobilier via telefoonnummer ### of per e-mail op ### . Aarzel niet om uw belangstelling kenbaar te maken voor dit uitzonderlijke stuk land in Marilles! Meer weten?

1200 50 m Diepte terrein
contacteer
details
E-mail
Bellen
+32 10 65 01 65
99 000 €

1350 Orp-le-Grand

Gelegen in het dorp Orp, met snelle toegang tot de hoofdwegen en dicht bij alle voorzieningen, biedt Cap'Houses u deze 2 percelen van respectievelijk +/- 25a70 (+/-16,40m voorgevel) en +/- 24a50ca (+/- 16m voorgevel) op +/- 145m diep. Riolering, water, elektriciteit en gas zijn beschikbaar in de straat. Geen bouwverplichting en vrij van bouwvakkers. Vlak land iets lager dan de weg. Laag overstromingsrisico door een beek onderaan het perceel. Kosten voor splitsing en afbakening te verwachten. Land maakt geen deel uit van een woonwijk (geen specifieke vereisten). Snelle en gemakkelijke toegang tot de E40 en E411. Meer weten?

2500 145 m Diepte terrein
contacteer
details
E-mail
Bellen
+32 10 87 20 87
91 520 €

1350 Orp-le-Grand

In een rustige, landelijke omgeving, deel uitmakend van een nieuwbouwwijk gelegen op de hoogten van Orp-le Grand, op wandelafstand van tal van voorzieningen. Dit perceel heeft een oppervlakte van 7a 40ca met een voorgevel van 25m² en een ZUID aan de achterzijde. Mogelijkheid om een 4-front villa te bouwen. Het perceel is vrij van aannemers en uitgerust voor impetranten. Project en voorschriften te respecteren. Prijs exclusief kosten 91.520€ Meer weten?

740 32 m Diepte terrein
contacteer
details
E-mail
Bellen
+32 10 87 20 87
Voorstel vanaf 145 000 €

1370 Piétrain

Ontdek dit prachtige bouwperceel te koop in het schilderachtige Piétrain, gelegen in een landelijke omgeving die rust en ruimte uitstraalt. Dit perceel, met een totale oppervlakte van 1556 m² volgens het kadaster, biedt een unieke kans voor wie op zoek is naar een rustige locatie voor het realiseren van een eigen woning of project. Gelegen in een gebied dat gekwalificeerd wordt als wijk met een landelijk karakter volgens het plan van sector, vormt deze locatie een ideale basis voor liefhebbers van het buitenleven en authentieke Brabantse charme. Het perceel wordt momenteel niet verhuurd en is onmiddellijk beschikbaar, waardoor u snel uw plannen kunt uitvoeren. De prijs voor dit indrukwekkende stuk grond bedraagt €145.000, een investering die zich onderscheidt door zijn potentieel en ligging. De aankoopprijs omvat geen bijkomende kosten voor grensbepaling of meting, aangezien deze voor rekening van de koper zijn. Het terrein is vrij van overstromingsgevaar en bevindt zich niet in een afgebakend overstromingsgebied, wat extra zekerheid biedt voor bouwplannen en toekomstige ontwikkeling. Bezoeken aan het perceel zijn vrij te regelen, en u kunt het exacte ligging en de grenzen bekijken via het kadasterplan, dat de locatie duidelijk aanduidt. Deze locatie in Piétrain combineert de charme van het platteland met praktische nabijheid tot voorzieningen en infrastructuur, waardoor het een aantrekkelijke optie is voor wie binnen een landelijke setting wil bouwen. Of u nu een privéwoning wenst of een ontwikkelingsproject plant, deze grond biedt u de ruimte en de rust die u zoekt. Neem contact met ons op voor meer informatie of om een vrijblijvende bezichtiging in te plannen. Laat deze gelegenheid niet aan u voorbijgaan en zet vandaag nog de eerste stap naar uw toekomstige eigendom in Piétrain! Meer weten?

1556
contacteer
details
E-mail
Bellen
+32 10 84 44 54
186 100 €

1370 Piétrain

Deze bouwgrond is gelegen achter de woning Rue Longue 118 te Piétrain, gelegen straat Rue Notre Dame. De oppervlakte bedraagt 18a61ca met langs de straatkant een breedte van 27,98 meter, diepte ongeveer 70 meter. Vooraan heeft u een zeer mooi en weids zicht op landbouwgronden, wat betekent dat daarop nooit gebouwd kan worden. Electriciteit, gas en water zijn nog niet voorzien en dienen dus zelf te worden doorgetrokken door de koper. Gezien er 2 naast elkaar gelegen bouwgronden worden verkocht kan er een mogelijkheid zijn om de kost hiervoor te delen. Op het plan is dit het gele stuk. Meer weten?

1861
contacteer
details
E-mail
Bellen
+32 495 62 60 23
40 000 €

1350 Énines

Ensemble de plusieurs parcelles de terres de cultures réparties en 4 blocs distincts, pour une superficie totale de 1 ha 4 a 6 ca. Elles sont situées à route. Elles sont occupées suivant bail à ferme (oral & écrit). Chaque parcelle peut être vendue séparément … Meer weten?

10406
contacteer
details
E-mail
Bellen
+32 475 47 10 53
550 000 €

1350 Jauche

WAALS BRABANT (Jauche): Potentiële residentiële ontwikkeling (#1X+4_DXDE_WBR) • Op een perceel van 1.150m² • 3 aangrenzende huizen te renoveren of af te breken • Bebouwde oppervlakte van +/- 300m² • Prijs: 550.000€ (aandelen) Omwille van de vertrouwelijkheid worden authentieke foto’s slechts gestuurd bij opvraging van het dossier. We zijn geen makelaar maar een bedrijf gespecialiseerd in de verkoop van professionele off-market vastgoedprojecten. Meer weten?

1150
contacteer
details
E-mail
Bellen
+32 2 550 36 87
110 000 €

1350 Orp-Jauche

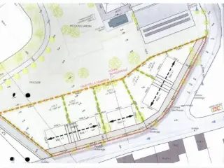
SOUS COMPROMIS... PLUS DE VISITE POSSIBLE !! Projet immobilier à construire à Libertange avec possibilité de rachat de société ! Situé dans le très agréable village de Libertange, à deux pas de la E40, ce terrain à bâtir représente une opportunité rare pour tout porteur de projet immobilier. Fait exceptionnel : le rachat de la société détenant le bien est également possible, ce qui peut représenter un avantage stratégique et fiscal non négligeable pour l'acquéreur. Cette double opportunité acquisition du terrain et rachat de la société ouvre la voie à un montage de projet optimisé, idéal pour investisseurs ou promoteurs à la recherche de flexibilité. La commune à d’ores et déjà donné un accord de principe écrit pour la construction de jusqu’à trois maisons, ce qui en fait un bien particulièrement intéressant, que ce soit pour un promoteur, un investisseur ou un particulier souhaitant développer un petit projet résidentiel dans un environnement paisible. Le terrain bénéficie d’un emplacement stratégique, combinant la tranquillité d’un charmant village à la proximité immédiate des grands axes routiers. Libertange offre un cadre de vie verdoyant, convivial et bien desservi, parfait pour des familles en quête de confort, de calme et d’accessibilité. En résumé, ce bien offre un fort potentiel : terrain constructible avec accord de principe pour 3 habitations, environnement calme, accès rapide à la E40, et surtout la possibilité de racheter la société propriétaire du terrain, une option rare et avantageuse à ne pas négliger. Pour plus d’informations ou pour planifier une visite, n’hésitez pas à nous contacter dès maintenant -> ### email: ### **** Pour recevoir d’autres opportunités en exclusivité, nous vous invitons à nous contacter directement. Nous sommes disponibles pour vous accompagner dans votre recherche d’achat ou d’investissement ainsi que dans votre projet de vente : Évaluation gratuite et sans engagement. **** Meer weten?

350 m² Bebouwbare opp. 550 30 m Diepte terrein
contacteer
details
E-mail
Bellen
+32 19 86 06 06
249 000 €

1370 Geldenaken

Crescendimmo biedt u dit prachtige perceel van 39 are 73 aan, zeer goed gelegen op het platteland van Geldenaken. Gelegen in een rustige straat, heeft het een gevelbreedte van ongeveer 20 meter en loopt het in het midden breder uit. De diepte is ongeveer 170 meter, wat vele ontwikkelings- en gebruiksmogelijkheden biedt. Rust en stilte gegarandeerd. Voor uw projecten... Info en contact: ### - www.CRE.be Meer weten?

3973 170 m Diepte terrein
contacteer
details
E-mail
Bellen
+32 2 660 50 50
150 000 €

1370 Geldenaken

Deze locatie betreft een perceel grond van circa 2.281 m², gelegen aan de Rue Saint-Laurent in het rustige dorpje Dongelberg, tussen Incourt en Jodoigne. Het perceel heeft een breedte van 29 meter aan de straatkant en een diepte van ongeveer 76 meter, waardoor er voldoende ruimte is voor verschillende bouwmogelijkheden. De locatie ligt in een gebied dat gekenmerkt wordt door een landelijk karakter, met zowel woon- als landbouwbestemming, zonder risico op overstromingen. Het perceel ligt in een zone die bestemd is voor wonen met een landelijke uitstraling en wordt niet beïnvloed door overstromingsrisico’s of andere natuurlijke gevaren. De ligging biedt een mooie groene omgeving, ideaal voor wie op zoek is naar een rustige en natuurlijke woonomgeving. Het perceel is beschikbaar vanaf de akte en wordt momenteel niet verhuurd, wat de overdracht eenvoudige maakt. De verkoopprijs bedraagt €180.000. Potentiële kopers kunnen het perceel bezichtigen op afspraak via de makelaar. Dit stuk grond biedt mogelijkheden voor het realiseren van een woning in een landelijke setting, met voldoende ruimte voor tuin en buitenleven. Neem contact op met de makelaar voor meer informatie of om een bezichtiging te plannen. Meer weten?

2281 76 m Diepte terrein
contacteer
details
E-mail
Bellen
+32 81 34 13 55
115 000 €

4280 Petit-Hallet

Zie ook het filmpje op YouTube : ### Lot 1 van een verkaveling in het prachtige Petit-Hallet. Dit dorp is ideaal gelegen, dichtbij de E40 richting Leuven en Brussel. Lot 1 heeft een oppervlakte van 10a 7ca, voorzien voor HOB, zie plan. Meer weten?

1007
contacteer
details
E-mail
Bellen
+32 495 62 60 23
90 000 €

4280 Petit-Hallet

Zie ook het filmpje op YouTube : ### Lot 2 van een verkaveling in het prachtige Petit-Hallet. Dit dorp is ideaal gelegen, dichtbij de E40 richting Leuven en Brussel. Lot 2 heeft een oppervlakte van 7a, voorzien voor open bebouwing, zie plan. Meer weten?

700
contacteer
details
E-mail
Bellen
+32 495 62 60 23
249 000 €

1350 Jandrain-Jandrenouille

Ontdek deze unieke investeringskans in Jandrain-Jandrenouille met dit omvangrijke bouwgrond van maar liefst 9.165 m², aangeboden voor €249.000. Dit perceel bevindt zich in een rustige, residentiële omgeving en biedt volop potentieel voor toekomstige ontwikkeling. Met een recent verkregen stedenbouwkundig attest (certificat d'urbanisme) is het mogelijk om twee woningen te bouwen, evenals een hangar, wat deze locatie bijzonder aantrekkelijk maakt voor wie op zoek is naar een project met groeipotentieel. Het terrein ligt niet in een overstromingsgebied, wat extra zekerheid biedt voor de ontwikkeling en het gebruik ervan. De ligging van dit stuk grond is uitstekend, in een aangename buurt die zowel rust als bereikbaarheid combineert. Het ligt nabij belangrijke verkeersaders, waardoor eenvoudige toegang tot omliggende steden en voorzieningen gewaarborgd is. Dit maakt het een ideale locatie voor zowel investeerders die willen inspelen op de groei van de regio als voor particulieren die hun eigen project willen realiseren op een ruime, rustige locatie. De afwezigheid van overstromingsrisico's draagt bij aan de waarde en stabiliteit van de investering. Verder is het perceel momenteel niet verhuurd, waardoor er meteen actie ondernomen kan worden, en de beschikbaarheid vastligt bij de akte. Heeft u interesse in deze unieke grond of wenst u meer informatie over de mogelijkheden? Aarzel niet om contact met ons op te nemen. Wij begeleiden u graag bij uw volgende vastgoedproject en voorzien u van alle nodige details om een weloverwogen beslissing te nemen. Bezoek onze website of neem direct contact met ons op via telefoon of e-mail om een afspraak te plannen. Dit is een zeldzame kans om te investeren in een volop ontwikkelende regio met veel potentieel voor de toekomst. Wij kijken uit naar uw contact! Meer weten?

9165
contacteer
details
E-mail
Bellen
+32 499 19 93 93
120 000 €

1350 Jandrain-Jandrenouille

We zijn verliefd geworden op dit zeer aantrekkelijke vlakke perceel van 17a 33 ca op het zuidoosten in een rustige zijstraat. Het perceel, omzoomd door een mooie muur, ligt gelijk met de weg en heeft een voorgevel van 22,2 meter breed. Geweldige kans voor een gebouw met 4 gevels. Bediening. Meer weten?

1733 80 m Diepte terrein
contacteer
details
E-mail
Bellen
+32 10 87 20 87