Description

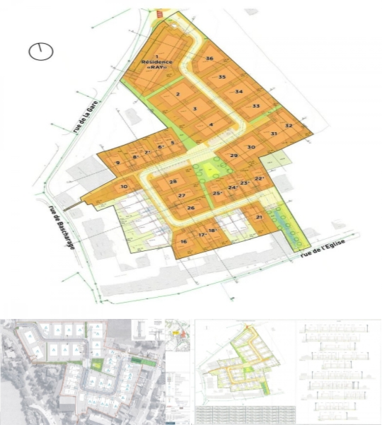
Discover a prime opportunity to acquire a spacious plot of land in the charming area of Hautcharage, situated within the municipality of Käerjeng in the canton of Capellen. Priced at €476,775, this generous parcel spans approximately 4.89 ares and offers an exceptional chance for those looking to build a detached house in a serene yet well-connected location. This plot is offered without a construction contract, providing maximum flexibility for future project planning, whether you prefer to design your home independently or engage in a custom build process. The land's ample space and surrounding open environment make it ideal for creating a personalized residence that aligns with your lifestyle needs. Hautcharage, located at the southwestern border of Belgium, is renowned for its picturesque setting within the Redrock Region, an area celebrated for its natural reserves and scenic walking and cycling trails. The town boasts a peaceful ambiance complemented by local amenities, including a historic baroque church from the 18th century, several restaurants and cafes, and a delightful playground called "Um Päsche," which features a variety of outdoor equipment and water play areas. For everyday shopping and services, Bascharage is conveniently situated just 1.5 kilometers away, offering numerous supermarkets, retail stores, and gastronomic options. The locality also benefits from a well-developed infrastructure, with bus stops within 100 meters and the Bascharage-Sanem railway station just 3.5 kilometers from the property, providing easy access to Luxembourg City and beyond. The surrounding area offers a wealth of recreational and educational facilities, making Hautcharage an excellent choice for families or those seeking an active lifestyle. Sports enthusiasts can enjoy facilities like the "Käerjenger Dribbel" sports center and the "Op Acker" complex, which includes a soccer field and swimming pool. There are also cultural venues such as the "Käerjenger Treff" house for concerts and performances. Educational institutions are nearby, including the "Op Acker" primary school in Bascharage and a technical college specializing in health professions, ensuring quality education options within close proximity. Transportation is robust, with direct bus lines connecting Hautcharage to major urban centers such as Esch-sur-Alzette (13 km) and Luxembourg City (17 km), achievable in approximately half an hour via the A13 motorway. This accessibility underscores Hautcharage’s appeal as a tranquil residential area with excellent links to the broader region, perfect for those seeking both peace and convenience. If this land aligns with your future plans or investment interests, contact us today to arrange a viewing or receive further details tailored to your requirements.

* This text was generated using an artificial intelligence.

Show all Show less

Financial details

  • Price: 476 775 €

Services


More information

General info

Currently leased

No

Town planning and environmental risks

Flooding Area type

(information not available)

Demarcated flooding area

(information not available)

Immovlan.be displays the data received from the seller. If some important or obligatory data is missing it is because they were not provided to us.

Immovlan ref.: RBU45450 Seller's ref.: Lot 9 (Terrain G.-D. Jean) SD Report fraud

Points of interest

Nurseries

Les Poussins

6.7 km 22' 6.9 km 8' 0 m 0'' 6.4 km 1º 17'

Preschools

Ecole Fondamentale Annexée Athus II

6.7 km 45' 7.7 km 9' 0 m 0'' 6.4 km 1º 17'

Elementary schools

Ecole Fondamentale Annexée Athus II

6.7 km 45' 7.7 km 9' 0 m 0'' 6.4 km 1º 17'

High schools

Athenee Royal Athus

6.4 km 21' 6.6 km 7' 0 m 0'' 6.3 km 1º 16'

Motorways

A28 / E411: Aubange - Athus - (Longwy, France)

7.7 km 9'

A4 / E411 - E25: Brussels - Namur - Arlon - (Luxembourg (city), Luxembourg)

10.1 km 10'

Bus

TEC Namur - Luxembourg - 722 - Bascharage - Differt

959 m 12'

Train stations

Bascharage-Sanem

2.7 km 10' 3 km 4' 0 m 0'' 2.7 km 32'

Charging stations

Ikea Arlon

10.1 km 11'

Supermarkets

Lidl Aubange

6.1 km 20' 6.3 km 7' 0 m 0'' 6 km 1º 12'

Trafic Athus

6.4 km 21' 6.7 km 7' 0 m 0'' 6.3 km 1º 16'

Aldi Athus

6.4 km 22' 6.7 km 7' 0 m 0'' 6.3 km 1º 16'

Museums

Musée Gaspar

20.8 km 20'

Tourism

The museum "Musée Gaspar" is nearby (20 minutes drive).

Public transports

The closest bus line is TEC Namur - Luxembourg - 722 - Bascharage - Differt with a stand 12 minutes’ walk away.

Transports

Do you need to charge an electric car? The nearest charging station ("Ikea Arlon") is just 11 minutes away by car.To reach A28 / E411 (Aubange - Athus - (Longwy, France)) you only need 9 minutes and A4 / E411 - E25 (Brussels - Namur - Arlon - (Luxembourg (city), Luxembourg)) is reachable in 10 minutes.In fewer than 4 minutes, by car, you can be at "Bascharage-Sanem" train station.

Shopping

You have the choice between several nearby supermarkets: "Lidl Aubange" (7 minutes by car), "Trafic Athus" (7 minutes by car), "Aldi Athus" (7 minutes by car).

Education

If you are looking for a nursery, "Les Poussins" it is 8 minutes away by car.You can find a close high school: "Athenee Royal Athus", in fewer than 7 minutes by car.There is a nearby preschool and elementary school: "Ecole Fondamentale Annexée Athus II", 45 minutes away by bike.

Show all Show less