• 2 Chambre(s)
  • 103
  • 1 Salle(s) de bain
  • 36 m² Terrasse
Route de Balmoral 5 4900 Spa

Vous cherchez des Appartement à vendre - Spa ?

Recevez un email dès qu’il y a un nouveau bien disponible !

Créer une alerte email

Description

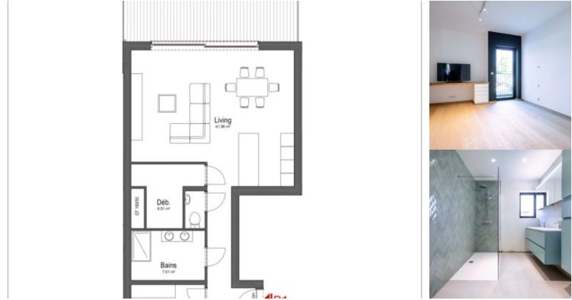
L’appartement « B1 » (102.75 m² selon plan) est composé : hall d’entrée, séjour ouvert comprenant l’espace cuisine et l’accès terrasse orientée sud d’une superficie de 36 m², buanderie, salle de bains, wc séparé et deux chambres (13 m² et 9,5 m²). L’appartement bénéficie d’un emplacement de parking en sous-sol, d’un parking extérieur et d’une cave pour un supplément total de 35.000 € hors frais et hors TVA. Jouissant d’un chauffage sol, l’appartement est carrelé. Possibilité d’un parquet dans les chambres (compris dans le prix de vente). Châssis Alu, vitrage acoustique et protection solaire, ventilation double-flux, chaudière gaz à condensation individuelle. Compteurs séparés (eau-gaz-électricité). L’appartement est livré peint en double couche blanche. Les prix affichés sont hors frais et hors TVA (TVA 21% ou 6% sous conditions, frais de raccordements, honoraires notariaux et quote-part d’acte de base). Référence PEB : RWPEB-090205. Livraison prévue vers juin 2025. Plus d'informations disponibles sur demande à Contact . Informations données à titre indicatif et non contractuelles. www.waucomont.be Tout voir Réduire

Détails financiers

  • Prix: 340 000 €
  • TVA: Non

Services


Informations complémentaires

Données de base

Bien actuellement loué

Non

Aménagement intérieur

Nombre de chambres à coucher

2

Surface habitable

103 m²

Cuisine et sanitaires

Nombre de salles de bain

1

Chauffage et énergie

Type de chauffage

Gaz

Description extérieure

Étage de l'appartement

0

Orientation de la façade du bien

Sud

Nombre de façades

2

Jardin

Non

Terrasse aménagée

Oui

Surface de la terrasse

36 m²

Urbanisme et risques environnementaux

Type de zone inondable

Information non communiquée

Zone inondable délimitée

Information non communiquée

Immovlan.be affiche à l’écran toutes les données reçues de l’annonceur. Si certaines données importantes ou obligatoires sont manquantes, c’est qu’elles ne nous ont pas été fournies.

Réf. Immovlan: VBC15136 Réf. vendeur: W6174 - B1 Signaler une fraude

Points d'intérêt à proximité

Crèches

Crèche Les P'Tites Abeilles

1,1 km 4' 1,2 km 1' 30'' 845 m 13' 1,1 km 13'

Écoles maternelles

Ecole Communale De Tiège

975 m 4' 1 km 1' 13'' 810 m 12' 975 m 12'

Écoles primaires

Ecole Communale De Tiège

975 m 4' 1 km 1' 13'' 810 m 12' 975 m 12'

Écoles secondaires

Athenee Royal Et Ecole D'Hotellerie De Spa

4,4 km 19' 4,9 km 5' 3,9 km 51' 4,2 km 51'

Autoroutes

A27 / E42 : Battice - Verviers - Malmedy - Saint-Vith - (Bitburg, Allemagne)

1,5 km 1' 11''

Bus

TEC Liège - Verviers - 295 - Verviers - Tiège - Spa

78 m 56''

TEC Liège - Verviers - 294 - Verviers - Stavelot - Trois-Ponts

802 m 10'

TEC Liège - Verviers - 395 - Verviers - Malmedy - Reuland

802 m 10'

Gares

Spa-Géronstère

4,5 km 20' 5 km 6' 4 km 53' 4,5 km 53'

Bornes de recharge

Radisson Blu Palace Hotel Spa

4,8 km 5'

Voitures en libre-service

Cambio - Palais De Justice

11,1 km 47' 9,1 km 1º 15' 10,6 km 2º 8'

Supermarchés

Colruyt Sart-Jalhay

270 m 54'' 270 m 14'' 270 m 3' 270 m 3'

Proxy Delhaize Tiege (Jalhay)

983 m 4' 1,1 km 1' 4'' 837 m 12' 983 m 12'

Intermarché Spa

3,9 km 16' 4,1 km 4' 3,5 km 47' 3,9 km 47'

Parcs d'attractions

Thermes De Spa

3,9 km 5'

Musées

Site Pouhon Pierre Le Grand

4,5 km 4'

Monuments religieux

Abbaye De Stavelot

22,6 km 15'

Activités

Centre Touristique De La Laine Et De La Mode

14,3 km 9'

Châteaux

Château De Franchimont

13,9 km 11'

Golfs

Royal Golf Club Des Fagnes

3 km 3'

Éducation

Si vous cherchez une école secondaire, vous trouverez "Athenee Royal Et Ecole D'Hotellerie De Spa" à 5 minutes en voiture.Vous trouverez une crèche : "Crèche Les P'Tites Abeilles", à 2 minutes en voiture.À proximité, vous pourrez trouver une école maternelle / école primaire : "Ecole Communale De Tiège", à 1 minute en voiture.

Magasins

Pour vos courses, plusieurs options s'offrent à vous : "Colruyt Sart-Jalhay" (3 minutes à pied ou 1 minute en voiture), "Proxy Delhaize Tiege (Jalhay)" (12 minutes à pied ou 1 minute en voiture), "Intermarché Spa" (4 minutes en voiture).

Transports

Vous avez besoin de recharger votre véhicule électrique ? La station de recharge la plus proche ("Radisson Blu Palace Hotel Spa") se trouve à 5 minutes en voiture.L'autoroute A27 / E42 (Battice - Verviers - Malmedy - Saint-Vith - (Bitburg, Allemagne)) est accessible en 1 minute.La gare de train la plus proche est "Spa-Géronstère" : accessible en 6 minutes en voiture, ou 53 minutes en transport en commun.Vous ne possédez pas de voiture mais souhaitez en louer une occasionnellement ? Vous trouverez une station "Cambio - Palais De Justice" où vous pourrez louer un véhicule partagé à seulement 128 minutes à pied.

Transports en commun

Les lignes de bus les plus proches sont TEC Liège - Verviers - 295 - Verviers - Tiège - Spa avec un arrêt situé à moins de 1 minute à la marche, TEC Liège - Verviers - 294 - Verviers - Stavelot - Trois-Ponts, TEC Liège - Verviers - 395 - Verviers - Malmedy - Reuland avec une station située à 10 minutes à pied.

Villes proches

Alsdorf se trouve à 39 minutes en voiture. Environ 41 minutes sont nécessaires pour atteindre Herzogenrath avec votre voiture. Kerkrade se trouve à 42 minutes en voiture. Seulement 9 minutes sont nécessaires pour atteindre Verviers avec votre voiture.

Tourisme

Une activité intéressante à faire dans les environs : "Centre Touristique De La Laine Et De La Mode" à 9 minutes de route.À 11 minutes de route, vous pourrez découvrir le château "Château De Franchimont".Le monument religieux "Abbaye De Stavelot" est accessible en 15 minutes avec une voiture.Le golf "Royal Golf Club Des Fagnes" se situe à 3 minutes de route.4 minutes sont nécessaires pour atteindre le musée "Site Pouhon Pierre Le Grand".Vous trouverez "Thermes De Spa" à 5 minutes en voiture.

Tout voir Réduire