Appartement à vendre - Mondorf-les-Bains RBQ17954
7-9 Rue Dicks
5615 Mondorf-les-Bains
658 000 €
Description
***EN CONSTRUCTION***
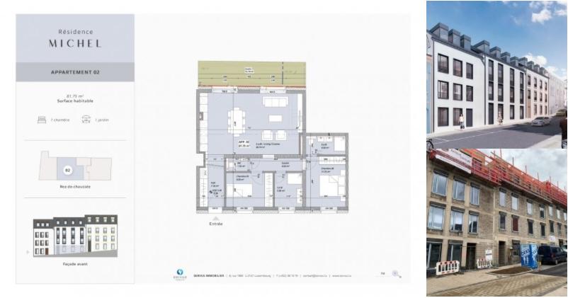
NOUVEAU PROJET « MICHEL » A MONDORF-LES-BAINS AVEC 10 APPARTEMENTS ET 11 PARKINGS
Appartement no. 02 au rez-de-chaussée avec ACCÈS PRIVATIF d'une surface cadastrale de ±81,98m² qui se répartit comme suit :
Hall d'entrée avec garderobe, un grand salon/ salle à manger avec cuisine ouverte et accès au jardin (±15,85m²), deux chambres à coucher (±9,33m² / ±11,75m² ) ainsi que deux salles de bains.
L'agencement des pièces peut encore être modifié selon les souhaits du client.
Les prix de vente sont comme suit :
Prix de vente avec TVA de 3% : 608.259,18 EUR (Particulier)*
Prix de vente avec TVA de 17% : 658.259,18 EUR (Investisseur)
La cave privative no. 01 au sous-sol d'une surface de ±8,51m² ainsi qu'un emplacement de parking sont inclus dans le prix.
*Le prix de vente est exprimé en TVA de 3% sous réserve de l'acceptation auprès de la Direction de l'Enregistrement, des Domaines et de la TVA (AED) et vaut uniquement en cas d'acquisition en tant que résidence principale.
Pour toutes autres informations et questions, veuillez svp contacter l'agence au Tel +352 48 10 19 ou par e-mail : Contact .
Tous droits réservés, toutes données sans garantie et sous réserve de modifications.
DETAILS TECHNIQUES
-Classe de performance énergétique : A
-Classe d'isolation thermique : B
-Classe de performance environnementale : A
-Chaudière à condensation au gaz/ chauffage au sol
-Panneaux solaires pour production d'eau chaude
-Toiture charpente et couverture en zinc
-Ascenseur
-Ventilation mécanique décentralisée (VMC) à double flux
-Fenêtre en PVC blanc (intérieur) avec habillage extérieur en aluminium
-Triple vitrage isolant
-Stores électriques à lamelles en aluminium
LE QUARTIER
Mondorf-les-Bains, une charmante ville en pleine évolution avec quelques 5500 habitants situé à deux pas de la Moselle vous accueille avec ses
- 109 ha de verdure
- 42 ha de parc thermal
- 8 circuits de randonnées pédestres et cyclistes
- 30 restaurants
- 13 hôtels
- 12 aires de jeux
- 75 bancs publics de récréation
-ainsi que plus de 200 commerces et entreprises
La Ville de Mondorf offre tous les atouts pour vivre et se détendre dans un cadre à patrimoine historique, contemporain et culturel. Des chemins/ parcours de randonné / excursions organisées par le Syndicat d'Initiative Mondorf-les-Bains,
DISTANCES:
-Centre de Mondorf-les-Bains : ±500 mètres à pied
-Complexe scolaire à ±300 mètres à pied
-Centre de Luxembourg-ville : ±20km
-Aéroport (Findel) de Luxembourg : ±24km
-Moselle Remich - Schengen: ±10km
-A ±10 km de la frontière allemande
-A ±500 mètres de la frontière française
ACCÈS DIRECTE AUX AUTOROUTES:
A13 : ± 2km (vers Allemagne direction Perl, Saarbrücken)
A13 : ±3km (vers direction Luxembourg-Centre, Metz)
TRANSPORTS PUBLICS:
-CFL (bus) Ligne 175: Luxembourg - Mondorf-les-Bains
-RGTR (bus)Ligne 177: Luxembourg - Mondorf-les-Bains - Erpeldange ? Remich
-RGTR (bus) Ligne 180: Mondorf-les-Bains - Dalheim-Remich
-RGTR (bus) Ligne 185: Mondorf-les-Bains - Schengen ? Remich
-RGTR (bus) Ligne 303 : Manom (F) - Cattenom (F) - Mondorf-les-Bains - Kirchberg
-RGTR (bus) Ligne 304: Bettembourg - Mondorf-les-Bains - Ellange
-RGTR (bus) LIGNE 309: Esch/Belval - Remich - Mondorf-les-Bains
-Bus « Mondibus » (bus local)
-Late Night Bus
-Night Rider
A PROXIMITÉ:
Toutes infrastructures et tous commerces pour les besoins quotidiens
ÉCOLES:
-Complexe scolaire (précoce, maternel et primaire)
-Diverses Crèches
-École de musique à Altwies
-Maison relais
-Lycée (en projet de réalisation)
SPORTS:
-Centre sportif « Roll Delles »
-Boulodrome
-Jugendstuff
-Stade de football « John Grün »
-Terrain de Volleyball
-Terrain de mini-golf « Easy Golf » (Domaine Thermal de Mondorf-les-Bains)
-Terrains de tennis (Domaine Thermal de Mondorf-les-Bains)
-Location de vélos et pédalos
-Centre de cures, fitness, Wellness et Spa au Domaine Thermal
-Vélodrome (en projet de réalisation)
-Piscine (en projet de réalisation)
LOISIRS:
- Centre culturel
- Domaine Thermal de Mondorf-les-Bains avec son jardin français, son labyrinthe, son amphithéâtre, l'Orangerie, la Roseraie, ses restaurants etc.
- Parc Thermal de Mondorf
- Musée aéronautique
- Cinéma « Waasserhaus » (en été ciné en plein air)
- Casino de jeux et de divertissements avec spectacles, concerts et restaurants gastronomiques (Casino 2000)
- Vignerons et Caves à vin dans les alentours Tout voir Réduire
NOUVEAU PROJET « MICHEL » A MONDORF-LES-BAINS AVEC 10 APPARTEMENTS ET 11 PARKINGS
Appartement no. 02 au rez-de-chaussée avec ACCÈS PRIVATIF d'une surface cadastrale de ±81,98m² qui se répartit comme suit :
Hall d'entrée avec garderobe, un grand salon/ salle à manger avec cuisine ouverte et accès au jardin (±15,85m²), deux chambres à coucher (±9,33m² / ±11,75m² ) ainsi que deux salles de bains.
L'agencement des pièces peut encore être modifié selon les souhaits du client.
Les prix de vente sont comme suit :
Prix de vente avec TVA de 3% : 608.259,18 EUR (Particulier)*
Prix de vente avec TVA de 17% : 658.259,18 EUR (Investisseur)
La cave privative no. 01 au sous-sol d'une surface de ±8,51m² ainsi qu'un emplacement de parking sont inclus dans le prix.
*Le prix de vente est exprimé en TVA de 3% sous réserve de l'acceptation auprès de la Direction de l'Enregistrement, des Domaines et de la TVA (AED) et vaut uniquement en cas d'acquisition en tant que résidence principale.
Pour toutes autres informations et questions, veuillez svp contacter l'agence au Tel +352 48 10 19 ou par e-mail : Contact .
Tous droits réservés, toutes données sans garantie et sous réserve de modifications.
DETAILS TECHNIQUES
-Classe de performance énergétique : A
-Classe d'isolation thermique : B
-Classe de performance environnementale : A
-Chaudière à condensation au gaz/ chauffage au sol
-Panneaux solaires pour production d'eau chaude
-Toiture charpente et couverture en zinc
-Ascenseur
-Ventilation mécanique décentralisée (VMC) à double flux
-Fenêtre en PVC blanc (intérieur) avec habillage extérieur en aluminium
-Triple vitrage isolant
-Stores électriques à lamelles en aluminium
LE QUARTIER
Mondorf-les-Bains, une charmante ville en pleine évolution avec quelques 5500 habitants situé à deux pas de la Moselle vous accueille avec ses
- 109 ha de verdure
- 42 ha de parc thermal
- 8 circuits de randonnées pédestres et cyclistes
- 30 restaurants
- 13 hôtels
- 12 aires de jeux
- 75 bancs publics de récréation
-ainsi que plus de 200 commerces et entreprises
La Ville de Mondorf offre tous les atouts pour vivre et se détendre dans un cadre à patrimoine historique, contemporain et culturel. Des chemins/ parcours de randonné / excursions organisées par le Syndicat d'Initiative Mondorf-les-Bains,
DISTANCES:
-Centre de Mondorf-les-Bains : ±500 mètres à pied
-Complexe scolaire à ±300 mètres à pied
-Centre de Luxembourg-ville : ±20km
-Aéroport (Findel) de Luxembourg : ±24km
-Moselle Remich - Schengen: ±10km
-A ±10 km de la frontière allemande
-A ±500 mètres de la frontière française
ACCÈS DIRECTE AUX AUTOROUTES:
A13 : ± 2km (vers Allemagne direction Perl, Saarbrücken)
A13 : ±3km (vers direction Luxembourg-Centre, Metz)
TRANSPORTS PUBLICS:
-CFL (bus) Ligne 175: Luxembourg - Mondorf-les-Bains
-RGTR (bus)Ligne 177: Luxembourg - Mondorf-les-Bains - Erpeldange ? Remich
-RGTR (bus) Ligne 180: Mondorf-les-Bains - Dalheim-Remich
-RGTR (bus) Ligne 185: Mondorf-les-Bains - Schengen ? Remich
-RGTR (bus) Ligne 303 : Manom (F) - Cattenom (F) - Mondorf-les-Bains - Kirchberg
-RGTR (bus) Ligne 304: Bettembourg - Mondorf-les-Bains - Ellange
-RGTR (bus) LIGNE 309: Esch/Belval - Remich - Mondorf-les-Bains
-Bus « Mondibus » (bus local)
-Late Night Bus
-Night Rider
A PROXIMITÉ:
Toutes infrastructures et tous commerces pour les besoins quotidiens
ÉCOLES:
-Complexe scolaire (précoce, maternel et primaire)
-Diverses Crèches
-École de musique à Altwies
-Maison relais
-Lycée (en projet de réalisation)
SPORTS:
-Centre sportif « Roll Delles »
-Boulodrome
-Jugendstuff
-Stade de football « John Grün »
-Terrain de Volleyball
-Terrain de mini-golf « Easy Golf » (Domaine Thermal de Mondorf-les-Bains)
-Terrains de tennis (Domaine Thermal de Mondorf-les-Bains)
-Location de vélos et pédalos
-Centre de cures, fitness, Wellness et Spa au Domaine Thermal
-Vélodrome (en projet de réalisation)
-Piscine (en projet de réalisation)
LOISIRS:
- Centre culturel
- Domaine Thermal de Mondorf-les-Bains avec son jardin français, son labyrinthe, son amphithéâtre, l'Orangerie, la Roseraie, ses restaurants etc.
- Parc Thermal de Mondorf
- Musée aéronautique
- Cinéma « Waasserhaus » (en été ciné en plein air)
- Casino de jeux et de divertissements avec spectacles, concerts et restaurants gastronomiques (Casino 2000)
- Vignerons et Caves à vin dans les alentours Tout voir Réduire
Détails financiers
- Prix: 658 000 €
- Soumis au régime de TVA?: Oui
Services
Informations complémentaires
Données de base
Bien actuellement loué
Non
Aménagement intérieur
Nombre de chambres à coucher
2
Cave(s)
Non
Grenier
Non
Véranda
Non
Salle à manger
Non
Dressing
Non
Buanderie
Non
Local vélo
Non
Garage
Oui
Cuisine et sanitaires
Équipement de la cuisine
Non équipée
Nombre de salles de bain
2
Chauffage et énergie
Panneaux solaires
Oui
Type de chauffage
Gaz
Description extérieure
Jardin
Oui
Surface du jardin
15 m²
Certificats et attestations de conformité
Référence PEB
A
Urbanisme et risques environnementaux
Type de zone inondable
Information non communiquée
Zone inondable délimitée
Information non communiquée
Immovlan.be affiche à l’écran toutes les données reçues de l’annonceur. Si certaines données importantes ou obligatoires sont manquantes, c’est qu’elles ne nous ont pas été fournies.