Fonds de commerce à louer - Appelterre-Eichem RBP64211

Neerstraat 103 9400 Appelterre-Eichem

8 716 €

  • 1457
  • 2 Salle(s) de bain
Neerstraat 103 9400 Appelterre-Eichem

Vous cherchez des Fonds de commerce à louer - Appelterre-Eichem ?

Recevez un email dès qu’il y a un nouveau bien disponible !

Créer une alerte email

Description

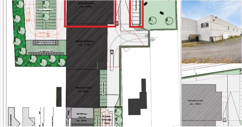
Dans un parc industriel spacieux et bientôt entièrement rénové, situé à Appelterre, à proximité des voies d'accès vers Geraardsbergen, Brakel et Ninove, on vous propose un bâtiment industriel spacieux et entièrement équipé avec des bureaux.

Le rez-de-chaussée de 1.096 m² peut être utilisé comme entrepôt de stockage ou comme atelier/fabrication. Cet espace dispose d'un grand portail d'entrée automatique de 4,3 mètres de large et de 4,5 mètres de haut, adapté aux livraisons et aux grands véhicules. Une zone d'entrée supplémentaire est prévue.

Au premier étage se trouvent les espaces de bureaux dE 361m², actuellement aménagés en bureaux, salles de réunion, cafétéria/réfectoire, installations sanitaires et entrepôts.

Le bâtiment est équipé de toutes sortes d'installations techniques modernes, telles que
Installation électrique lourde
Contrôle de l'humidité
Ventilation
Détection d'incendie
Système d'alarme

Il y a 13 places de parking pour les visiteurs et/ou le personnel.
Possibilité pour parking supplémentaires équipées de bornes de recharge.

Il est également possible de louer des espaces de stockage/entrepôts supplémentaires.

Des permis environnementaux de classe 3 ont été accordés pour l'ancienne usine de tabac. Tout voir Réduire

Détails financiers

  • Loyer: 8 716 €
  • Largeur de la vitrine: 32 m

Services


Informations complémentaires

Données de base

Etat du bien

Normal

Année de construction

2012

Aménagement intérieur

Nombre de chambres à coucher

0

Cave(s)

Non

Véranda

Non

Cuisine et sanitaires

Nombre de salles de bain

2

Chauffage et énergie

Type de chauffage

Mazout

Type de vitrage

Double vitrage

Équipement

Alarme antieffraction

Oui

Ascenseur

Non

Accessible aux moins valides

Oui

Description extérieure

Surface totale du terrain

1096 m²

Surface constructible

1096 m²

Certificats et attestations de conformité

Attestation - Installation électrique

non, pas d'attestation

Urbanisme et risques environnementaux

Immovlan.be affiche à l’écran toutes les données reçues de l’annonceur. Si certaines données importantes ou obligatoires sont manquantes, c’est qu’elles ne nous ont pas été fournies.

Réf. Immovlan: RBP64211 Réf. vendeur: 1297920 Signaler une fraude

Points d'intérêt à proximité

Crèches

Lindekindjes

3 km 11' 3,7 km 5' 2,6 km 27' 3 km 36'

Écoles maternelles

Go! Basisschool Klim Op Zandbergen

1 km 3' 1 km 1' 28'' 566 m 12' 1 km 12'

Écoles primaires

Go! Basisschool Klim Op Zandbergen

1 km 3' 1 km 1' 28'' 566 m 12' 1 km 12'

Écoles secondaires

Freinetschool Keerpunt

3,7 km 16' 4 km 6' 3,1 km 17' 3,7 km 44'

Bus

De Lijn - 70 - Lessines - Geraardsbergen - Onkerzele - Ninove

347 m 4'

De Lijn - 70 - Ninove - Onkerzele - Geraardsbergen - Lessines

363 m 4'

De Lijn - 395 - Brakel - Lierde - Ophasselt - Voorde - Ninove

1,6 km 19'

Gares

Appelterre

1 km 5' 752 m 1' 30'' 621 m 12' 1 km 12'

Bornes de recharge

Renault Valckenier Ninove

3,3 km 5'

Voitures en libre-service

Cambio - Bevrijdingslaan

5,1 km 42' 4,6 km 33' 5,1 km 1º 2'

Supermarchés

Spar Appelterre-Eichem

1,4 km 5' 1,6 km 2' 22'' 1 km 17' 1,4 km 17'

Jumbo Ninove

4,2 km 21' 5,1 km 6' 3,5 km 32' 4,1 km 50'

Lidl Ninove

4,1 km 20' 4,9 km 6' 3,5 km 33' 4,1 km 49'

Parcs d'attractions

Maison Des Géants

28,9 km 29'

Musées

Espace Gallo-Romain

28,8 km 29'

Monuments religieux

Hôpital Notre-Dame À La Rose

18,5 km 20'

Golfs

Golf Club Enghien

19,5 km 24'

Éducation

Vous trouverez une crèche : "Lindekindjes", à 5 minutes en voiture.À proximité, vous pourrez trouver une école maternelle / école primaire : "Go! Basisschool Klim Op Zandbergen", à 1 minute en voiture.L'école secondaire la plus proche est "Freinetschool Keerpunt" et se situe à 6 minutes en voiture.

Tourisme

Un parc de loisirs est accessible en 29 minutes de route : "Maison Des Géants"."Hôpital Notre-Dame À La Rose" est accessible en 20 minutes avec votre voiture.Envie de jouer au golf ? Vous trouverez "Golf Club Enghien" à 24 minutes de route.Le musée "Espace Gallo-Romain" se trouve à proximité (29 minutes de route).

Magasins

Pour vos courses, plusieurs options s'offrent à vous : "Spar Appelterre-Eichem" (17 minutes à pied ou 2 minutes en voiture), "Jumbo Ninove" (6 minutes en voiture), "Lidl Ninove" (6 minutes en voiture).

Villes proches

En 35 minutes en voiture vous pouvez rejoindre Termonde. Beveren se trouve à 58 minutes en voiture. En 46 minutes en voiture vous pouvez rejoindre La Louvière. Seulement 19 minutes sont nécessaires pour atteindre Alost avec votre voiture.

Transports en commun

Les lignes de bus les plus proches sont De Lijn - 70 - Ninove - Onkerzele - Geraardsbergen - Lessines, De Lijn - 70 - Lessines - Geraardsbergen - Onkerzele - Ninove avec un arrêt situé à moins de 4 minutes à la marche, De Lijn - 395 - Brakel - Lierde - Ophasselt - Voorde - Ninove avec un arrêt situé à 19 minutes à pied.

Transports

La gare de train la plus proche est "Appelterre" : accessible en 2 minutes en voiture, ou 12 minutes en transport en commun.Vous conduisez un véhicule électrique ou l'envisagez ? La station de recharge la plus proche ("Renault Valckenier Ninove") est à seulement 5 minutes en voiture.À environ 42 minutes à vélo, vous trouverez la station "Cambio - Bevrijdingslaan".

Tout voir Réduire