Terrain à vendre - Wortel

1 résultats (1 - 1)
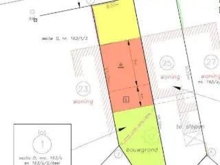
199 000 €

2323 Wortel

Bent u op zoek naar een bouwgrond voor een halfopen bebouwing op een gunstige locatie? Dit perceel, gelegen in Wortel (Hoogstraten), biedt uitstekende bouwmogelijkheden binnen de geldende stedenbouwkundige voorschriften. Kenmerken: Bestemd voor een eengezinswoning (halfopen bebouwing) Maximale nokhoogte: 11,5 m Kroonlijsthoogte voorgevel: tussen 6,5 m en 7 m Toegelaten dakvorm: zadeldak (45° helling) tot een diepte van 9 m, daarna plat dak Bouwdiepte: maximaal 13 m Vrijstaande zijgevel op minimaal 3 m van de perceelgrens Mogelijkheid tot kantoorfunctie, vrij beroep of dienstverlening, mits de woonfunctie behouden blijft Gevelmaterialen: baksteen (eventueel geschilderd), sierpleister in lichte kleuren, natuursteen, hout of zink (max. 25% van de gevel) Parkeervoorzieningen en opritten conform gemeentelijke richtlijnen Dit perceel biedt veel architecturale vrijheid en is ideaal voor wie een moderne, energiezuinige woning wil bouwen in een aangename omgeving. Mis deze kans niet! Plan snel je bezoek en ontdek deze ruime woning zelf. ### ### ### Bij Albert kom je thuis! En savoir plus ?

554 48 m Profondeur du terrain
contacter
détails
E-mail
Appeler

Nous n'avons trouvé que peu de résultats correspondant à vos critères.

Créer une email alerte pour être informé lorsqu'un nouveau bien correspondant à vos critères de recherche est publié !


Ci-dessous, vous pouvez trouver quelques adresses intéressantes en plus dans les alentours de Wortel (2323).

169 000 €

2322 Minderhout

Découvrez cette opportunité exceptionnelle d'acquérir un terrain à bâtir situé à Minderhout, une localité privilégiée offrant un cadre de vie paisible et bucolique. Avec une superficie de 541 m², cette parcelle de terrain constructible est idéale pour ceux qui recherchent un environnement calme tout en étant à proximité des commodités essentielles. La localisation en zone rurale, avec une vue imprenable sur les champs environnants, confère un charme authentique et une tranquillité absolue, tout en restant à une courte distance du centre de Minderhout et de Hoogstraten. Ces deux communes offrent une gamme complète de services, comprenant plusieurs écoles (maternelle, élémentaire et secondaire), des commerces variés, ainsi que des infrastructures essentielles pour une vie pratique et confortable. La proximité immédiate de l’autoroute E19 facilite également l’accès rapide vers Anvers, la Belgique ou encore la frontière néerlandaise, faisant de cette parcelle un choix stratégique pour ceux qui souhaitent allier vie rurale et accessibilité urbaine. Le terrain est parfaitement adapté pour la construction d’une habitation individuelle ou semi-individuelle, selon les réglementations en vigueur. Les règles de construction précisent une hauteur maximale de 11,5 mètres pour la toiture, ainsi qu’une hauteur de crête limitée à 7 mètres. La profondeur minimale de 8 mètres et maximale de 17 mètres offre une flexibilité dans le projet architectural, avec une largeur maximale autorisée de 6,37 mètres. La ligne de façade doit se situer à 8 mètres de la limite de propriété, garantissant une harmonie dans le développement du voisinage. En outre, le terrain bénéficie d’un raccordement complet aux réseaux essentiels : gaz, électricité et eau, ce qui facilite considérablement la mise en place du projet de construction. La zone n’est pas soumise à des risques d’inondation, assurant ainsi une sécurité supplémentaire pour l’avenir du projet immobilier. Ce bien représente une occasion rare d’investir dans un secteur en pleine croissance, avec une forte valeur ajoutée due à sa localisation stratégique et à ses caractéristiques constructibles. Son prix de 169 000 € est compétitif pour ce type de terrain dans la région, offrant un excellent rapport qualité/prix pour une parcelle prête à bâtir. Que vous soyez un promoteur ou un particulier souhaitant construire la maison de vos rêves dans un environnement serein, cette offre mérite toute votre attention. N’hésitez pas à contacter notre agence pour organiser une visite ou pour obtenir plus d’informations détaillées. Ce terrain à Minderhout pourrait bien devenir le point de départ de votre nouveau projet immobilier dans un cadre idyllique. En savoir plus ?

541 59 m Profondeur du terrain
contacter
détails
E-mail
Appeler
+32 3 689 27 99
295 000 €

2310 Rijkevorsel

Découvrez cette opportunité exceptionnelle à Rijkevorsel : un terrain à bâtir idéalement situé, offrant une surface totale de 1.690 m² avec une orientation sud-est, parfait pour construire la maison de vos rêves ou un projet immobilier personnalisé. Ce terrain, référencé sous le numéro RBU97074, est proposé au prix attractif de 295 000 € et bénéficie d’un emplacement privilégié près du centre-ville, tout en étant entouré d’un cadre verdoyant et calme. La parcelle possède une largeur de 22,82 mètres, permettant une certaine flexibilité dans la conception de votre future habitation ou structure attenante. Ce terrain bénéficie de nombreuses possibilités de construction, conformément aux réglementations urbanistiques en vigueur. Vous pouvez envisager la construction d’une maison individuelle avec un éventuel bâtiment annexe de maximum 75 m², doté d’un toit plat et d'une hauteur maximale de 3 mètres. La hauteur maximale de la toiture est fixée à 12 mètres, avec une distance minimale de 8 mètres entre la façade avant et la voirie, assurant une intégration harmonieuse dans le voisinage. La profondeur maximale de construction est limitée à 13 mètres derrière la ligne de façade, avec une marge minimale de 3 mètres par rapport aux limites latérales du terrain. La parcelle bénéficie d’une belle vue dégagée à l’arrière sur le jardin voisin, ainsi qu’une orientation optimale qui favorise une luminosité naturelle abondante. Situé à Rijkevorsel, ce terrain se trouve dans une zone non soumise à des risques d'inondation, ce qui garantit la sécurité et la stabilité pour votre futur projet immobilier. La proximité des zones agricoles adjacentes offre un environnement paisible et bucolique, idéal pour ceux qui recherchent un cadre de vie calme tout en restant à proximité des commodités locales. La disponibilité immédiate à la signature de l’acte notarié vous permet d’avancer rapidement dans votre projet. Pour plus d’informations sur les conditions urbanistiques ou pour télécharger le plan détaillé, n’hésitez pas à consulter notre site web ou à contacter notre agence. Ne laissez pas passer cette chance unique d’acquérir un terrain d’exception à Rijkevorsel au prix de 295 000 €, une occasion idéale pour concrétiser votre projet immobilier dans un environnement privilégié. En savoir plus ?

1690 78 m Profondeur du terrain
contacter
détails
E-mail
Appeler
+32 3 689 27 99
260 000 €

2310 Rijkevorsel

Situé dans la charmante commune de Rijkevorsel, ce terrain à bâtir représente une opportunité rare pour les investisseurs et particuliers souhaitant construire dans un environnement résidentiel paisible. À vendre au prix de 260 000 €, ce vaste terrain d'une superficie totale de 930 m², avec une profondeur de 31 mètres, offre un cadre idéal pour une construction individuelle ou un projet combiné comprenant une maison principale et une ou deux résidences de soins, conformément aux règlements en vigueur. La largeur du terrain de 30 mètres facilite la conception d’un projet personnalisé, tout en respectant les contraintes liées à la surface habitable limitée à 100 m² par unité. Son emplacement stratégique, à proximité de zones boisées et de pâturages, assure un cadre de vie serein et proche de la nature, tout en étant accessible. Ce terrain bénéficie d’un raccordement à toutes les infrastructures essentielles : gaz, électricité et eau, garantissant une implantation aisée pour tout futur projet résidentiel ou professionnel. La zone est particulièrement adaptée aux familles grâce à son caractère résidentiel très calme et à son environnement naturel privilégié. Les possibilités offertes incluent non seulement la construction d'une maison individuelle, mais aussi l’aménagement d’une résidence avec potentialité pour une activité professionnelle ou artisanale, sous réserve du respect des conditions spécifiques mentionnées dans les règlements locaux. La constructibilité étant encadrée par des règles précises, il est conseillé de télécharger les règlements de construction sur le site internet ### pour préparer efficacement votre projet. Rijkevorsel, située dans une région paisible, offre un cadre de vie agréable tout en étant proche des commodités locales. La disponibilité immédiate du terrain, qui n’est actuellement pas loué et n’est pas situé dans une zone inondable, constitue un avantage supplémentaire pour les acheteurs potentiels. Que vous envisagiez de bâtir votre future résidence principale ou un investissement immobilier réfléchi, cette parcelle présente un potentiel significatif dans un environnement résidentiel recherché. N’hésitez pas à contacter notre agence pour obtenir plus d’informations ou organiser une visite afin de découvrir tout le potentiel qu’offre ce terrain exceptionnel. En savoir plus ?

930 31 m Profondeur du terrain
contacter
détails
E-mail
Appeler
+32 3 689 27 99
189 000 €

2340 Vlimmeren

Découvrez cette opportunité rare à Vlimmeren, une véritable pépite pour ceux qui recherchent un terrain à bâtir dans un environnement paisible avec vue dégagée. Situé au Zilvereind 33, cette parcelle de terrain de 729 m² offre un potentiel exceptionnel pour réaliser votre projet résidentiel dans un cadre privilégié. La propriété est idéale pour une construction en maison individuelle, bénéficiant d’un environnement calme, à proximité du centre-ville, avec une orientation sud-est qui garantit une luminosité optimale et un cadre de vie agréable. La zone bénéficie d’un accès pratique à la E 34, menant rapidement vers Eindhoven ou Anvers, ce qui facilite vos déplacements quotidiens. La configuration du terrain, avec une largeur de 23,59 mètres et une profondeur de 50 mètres, permet une grande liberté de conception tout en respectant les réglementations en vigueur. La possibilité d’y construire un bâtiment annexe de 75 m² offre encore plus de flexibilité pour aménager votre espace selon vos souhaits. Ce terrain, situé dans une zone approuvée et non sujette à des risques d’inondation, bénéficie d’un cadre privilégié offrant à la fois calme et intimité. La tranquillité est assurée par un environnement rural, avec une vue dégagée sur les champs environnants à l’arrière, garantissant ainsi un sentiment de sérénité inégalé. Les raccordements aux services essentiels tels que le gaz, l'électricité et l’eau sont déjà en place, simplifiant ainsi les démarches pour concrétiser votre projet immobilier. La proximité immédiate du centre-ville, combinée à la proximité d’une école primaire, en fait un lieu parfaitement adapté aux familles ou aux investisseurs souhaitant construire une résidence dans un secteur résidentiel bien planifié. La vente inclut également la possibilité d’acquérir le terrain voisin de 860 m², offrant encore plus de flexibilité pour élaborer un projet sur mesure. Ce terrain en vente pour 189 000 € représente une opportunité unique d’investir dans un secteur en plein développement, alliant tranquillité, praticité et potentiel de valorisation. La zone bénéficie de toutes les certifications urbanistiques nécessaires, avec les règlements accessibles via notre site web pour vous assurer une transparence totale sur les possibilités de construction et les éventuelles restrictions. Si vous souhaitez concrétiser votre projet résidentiel dans un environnement serein avec une vue imprenable et un excellent accès aux grands axes routiers, n’hésitez pas à prendre contact avec nous. Nous serons ravis de vous accompagner dans cette démarche et de vous fournir toutes les informations complémentaires pour faire de cette parcelle votre futur chez-vous ou votre investissement immobilier de choix. En savoir plus ?

729 50 m Profondeur du terrain
contacter
détails
E-mail
Appeler
+32 3 689 27 99
239 000 €

2340 Vlimmeren

Découvrez cette opportunité exceptionnelle à Vlimmeren avec ce terrain à bâtir situé au Zilvereind 33/1, offrant un cadre de vie paisible et une vue imprenable sur les champs environnants. Proposée au prix de 239 000 €, cette parcelle de terrain d'une superficie de 860 m² représente une occasion rare pour construire votre résidence dans un environnement privilégié, tout en bénéficiant de la proximité du centre-ville, des écoles, et de l'accès facile à l'autoroute E34 reliant Eindhoven et Anvers. La localisation stratégique et le charme naturel de cet endroit en font un choix idéal pour ceux qui recherchent à la fois tranquillité et praticité. Le terrain, d'une largeur de 23,60 mètres et une profondeur de 50 mètres, possède une orientation sud-est, garantissant un ensoleillement optimal pour la future construction. La zone est en conformité avec le plan d'urbanisme en vigueur, sans encombrement ni restrictions particulières en matière de surélévation ou d'extension. La réglementation locale autorise la construction d’un bâtiment principal avec une emprise au sol maximum de 15,85 mètres, ainsi qu’un éventuel bâtiment annexe de 75 m², conforme au permis d’urbanisme en vigueur. La propriété bénéficie également des raccordements essentiels tels que l'électricité, l’eau et le gaz, facilitant ainsi le projet de construction. La proximité immédiate de la nature assure un cadre reposant, avec la garantie de calme et d’intimité à l’arrière du terrain. Ce terrain constitue une opportunité unique pour ceux qui souhaitent bâtir dans un environnement serein tout en profitant d’un emplacement pratique. La parcelle est située dans une petite subdivision approuvée et ne fait pas partie d’un périmètre soumis à une réglementation particulière concernant les inondations ou autres risques naturels. La vente inclut également la possibilité d’acquérir une parcelle adjacente de 729 m² pour un prix de 189 000 €, offrant ainsi la possibilité d’agrandir votre futur projet résidentiel. N’attendez plus pour concrétiser votre rêve immobilier dans cette région prisée de Vlimmeren. Contactez-nous dès aujourd’hui pour organiser une visite ou obtenir davantage d’informations sur cette propriété exceptionnelle. En savoir plus ?

860 50 m Profondeur du terrain
contacter
détails
E-mail
Appeler
+32 3 689 27 99

À vendre : terrain de développement situé à Vogelsanck 22, à Malle, au prix compétitif de 255 000 €. Ce site offre une opportunité unique de construire la maison de vos rêves sur une parcelle spacieuse de 645 m², sans aucune obligation de construction immédiate. Profitez de la liberté de choisir vos partenaires de construction et le moment idéal pour commencer votre projet. Le terrain bénéficie d'un emplacement stratégique dans un cadre paisible et rural, à proximité du centre du village d'Oostmalle. Cette localisation vous permet de profiter d'une orientation parfaite sud-ouest, idéale pour une maison lumineuse avec un jardin généreux. Malgré son cadre serein, le site ne compromet pas l'accessibilité aux commodités nécessaires et aux grands axes routiers tels que l'E19 et l'E34. Les raccordements à l'électricité et à l'eau sont déjà disponibles, facilitant ainsi le début de votre projet de construction. Situé dans un environnement agréable, ce terrain représente une excellente opportunité pour ceux qui recherchent un équilibre entre tranquillité rurale et commodité urbaine. Ne manquez pas cette occasion d'investir dans un site prometteur à Malle. En savoir plus ?

645
contacter
détails
E-mail
Appeler
+32 15 30 81 00

Située à Vogelsanck 22, dans la paisible commune de Malle, cette parcelle de terrain offre une excellente opportunité de développement pour ceux qui souhaitent construire leur maison idéale. Le terrain, d'une superficie totale de 645 m², est orienté sud-ouest, ce qui garantit une luminosité optimale tout au long de la journée et une magnifique vue sur un jardin spacieux. Une des caractéristiques attrayantes est la liberté de choisir vos propres partenaires de construction et de décider du moment où vous souhaitez débuter les travaux, car il n'y a pas d'obligation de construction attachée à la vente. Le cadre environnant est résolument rural et tranquille, parfait pour ceux en quête de calme sans pour autant sacrifier l'accessibilité. La proximité des axes routiers E19 et E34 assure un accès aisé aux commodités essentielles et facilite les déplacements vers les villes voisines. Ainsi, vous profiterez d'un environnement serein tout en étant à proximité immédiate des infrastructures nécessaires au quotidien. Pour un prix de 255 000 €, cette propriété représente un investissement intéressant pour réaliser un projet immobilier sur mesure dans une région appréciée pour sa qualité de vie. Les raccordements à l'électricité et à l'eau sont déjà prévus, ce qui simplifie le processus de construction. N'attendez plus pour concrétiser votre rêve de vivre dans un cadre harmonieux où confort et tranquillité se rencontrent. En savoir plus ?

645
contacter
détails
E-mail
Appeler
+32 15 30 81 00
279 900 €

2390 Malle

Découvrez cette opportunité rare à Malle : un terrain à bâtir idéalement situé, offrant un potentiel exceptionnel pour réaliser votre projet résidentiel. Ce terrain, référencé sous le numéro RBV04643, se trouve au 11A Vogelsanck, dans la commune de Malle, une localité reconnue pour son cadre de vie paisible et ses possibilités de développement. Avec un prix attractif fixé à 279 900 €, cette parcelle de 1040 m² constitue une base solide pour concrétiser votre projet immobilier dans un environnement résidentiel privilégié. Elle bénéficie d’une orientation stratégique, en étant parfaitement adaptée à des constructions de type individuel ou collectif, et offre une grande flexibilité pour répondre aux exigences urbanistiques. Ce terrain est doté d’une largeur de façade de 21 mètres, ce qui permet une implantation architecturale optimale. La constructibilité est parfaitement encadrée, avec une largeur de construction autorisée de 15 mètres et une profondeur jusqu’à 17 mètres, offrant ainsi la possibilité de concevoir une habitation spacieuse tout en respectant les normes en vigueur. La possibilité d’ériger des annexes ou bâtiments accessoires jusqu’à 75 m² ajoute une dimension supplémentaire à votre projet. Bien que le terrain soit actuellement vacant, il n’est pas loué, ce qui facilite une transaction rapide et sans contraintes. En outre, la zone ne présente pas de risques d’inondation ni d’autres contraintes environnementales, garantissant ainsi une tranquillité d’esprit pour les futurs acquéreurs. Situé dans un quartier résidentiel, ce terrain bénéficie d’un environnement calme tout en étant à proximité des commodités essentielles. La zone ne bénéficie pas du droit de préemption, ce qui simplifie grandement le processus d’achat. La classification urbanistique en « zone résidentielle » offre un cadre idéal pour bâtir une maison individuelle ou envisager un projet de petite résidence. Si vous recherchez un terrain à bâtir dans la région de Malle, cette opportunité mérite toute votre attention. N’hésitez pas à nous contacter pour organiser une visite ou obtenir plus d’informations afin de concrétiser ce projet immobilier prometteur. En savoir plus ?

1040
contacter
détails
E-mail
Appeler
+32 3 689 27 99
249 900 €

2390 Malle

Située à Malle, cette parcelle de terrain représente une opportunité idéale pour les investisseurs ou les particuliers souhaitant construire dans un environnement résidentiel calme et agréable. Proposée au prix de 249 900 €, cette parcelle de 1077 m² offre un potentiel constructible dans un secteur en pleine expansion. La propriété est actuellement non louée et sera disponible immédiatement après acte, ce qui permet une transaction rapide et sans complication. Le terrain bénéficie d’une superficie généreuse, avec une largeur de 16 mètres et une profondeur de 66 mètres, offrant une flexibilité optimale pour réaliser un projet immobilier sur mesure. La zone est désignée comme un secteur résidentiel (urbain ou rural), sans risque d’inondation ni contraintes particulières liées aux zones inondables. Des possibilités de construction sont possibles, avec notamment la possibilité d’élever des annexes ou bâtiments accessoires représentant jusqu’à 10 % de la surface du terrain, sous réserve des règlements d’urbanisme en vigueur. Les règles de construction, telles que la hauteur maximale ou les distances par rapport aux limites du terrain, peuvent être consultées auprès de l’administration locale pour assurer la conformité du projet. L’emplacement de cette parcelle est idéal pour ceux qui recherchent à bâtir dans un cadre paisible tout en étant proche des commodités de Malle. La proximité des infrastructures routières facilite l’accès aux principales voies de communication, rendant cette offre particulièrement attractive pour les futurs propriétaires ou promoteurs immobiliers souhaitant investir dans une zone à fort potentiel. Ne manquez pas cette opportunité unique d’acquérir un terrain dans un environnement en pleine croissance. Contactez-nous dès aujourd’hui pour obtenir plus d’informations et planifier une visite afin de concrétiser votre projet immobilier en toute sérénité. En savoir plus ?

1077 66 m Profondeur du terrain
contacter
détails
E-mail
Appeler
+32 3 689 27 99
245 000 €

2390 Oostmalle

À Oostmalle, situé au 48 Begonialaan, cette parcelle de terrain à bâtir représente une opportunité unique pour les investisseurs ou promoteurs souhaitant développer un nouveau projet immobilier dans une région en plein essor. Avec une superficie totale de 771 m², cette parcelle offre un espace généreux, permettant la conception de projets résidentiels ou commerciaux selon vos besoins. La largeur du terrain de 20 mètres ainsi que sa profondeur de 40 mètres offrent une flexibilité appréciable pour diverses configurations architecturales. La localisation précise dans une zone non sujette aux risques d’inondation rassure quant à la sécurité du site, tandis que la proximité des infrastructures saines telles que la connexion au réseau d’égouts, au gaz, à l’électricité et à l’eau facilite grandement la viabilisation du projet. Ce terrain bénéficie d’un raccordement complet aux réseaux essentiels, ce qui représente un avantage certain pour accélérer le processus de construction. La facilité d’accès aux services publics garantit également une mise en œuvre efficace et sans souci. La propriété est idéale pour ceux qui recherchent un emplacement stratégique pour réaliser un projet résidentiel de qualité ou pour tout projet immobilier nécessitant une grande superficie avec des connexions prêtes à l’emploi. La proximité de Oostmalle, une commune appréciée pour son environnement calme et ses espaces verts, ajoute à la valeur de cette offre. La parcelle est proposée au prix attractif de 245 000 €, une opportunité à ne pas manquer pour investir dans un secteur en développement. Si vous souhaitez explorer cette possibilité de développement ou obtenir plus d’informations, n’hésitez pas à nous contacter. Notre équipe spécialisée se tient à votre disposition pour vous accompagner dans toutes les démarches liées à l’acquisition de cette parcelle d’exception. Ce terrain à Oostmalle constitue une base solide pour réaliser votre projet immobilier dans un environnement paisible tout en bénéficiant d’un accès facile aux infrastructures essentielles. Contactez-nous dès aujourd’hui pour organiser une visite ou pour plus de détails sur cette opportunité rare sur le marché immobilier local. En savoir plus ?

771 40 m Profondeur du terrain 20 m Largeur du terrain
contacter
détails
E-mail
275 000 €

2960 Brecht

Découvrez cette opportunité exceptionnelle à Brecht : une parcelle de terrain à bâtir située au 9a Framalaan, offrant un potentiel considérable pour la construction d'une maison individuelle dans un cadre résidentiel privilégié. Avec un prix fixé à 275 000 €, cette propriété représente une occasion rare pour ceux qui souhaitent réaliser leur projet immobilier dans une zone calme, tout en bénéficiant d’un accès facile aux principales voies de communication. La superficie totale de la parcelle s’étend sur 1 060 m², avec une profondeur de 43 mètres, permettant une conception flexible et adaptée à vos besoins. La localisation bénéficie d’un environnement résidentiel, proche du centre de Brecht et parfaitement connecté aux principales infrastructures routières, notamment les grandes voies d’accès et autoroutes, facilitant ainsi les déplacements vers les environs. La parcelle est actuellement non louée, disponible dès la signature de l’acte notarié, ce qui en fait une option idéale pour un projet clé en main ou pour un investissement futur. Ce terrain, orienté au nord-est avec sa façade arrière, offre des opportunités de construction conformes aux réglementations locales. Les règles urbanistiques permettent l’érection d’une maison individuelle avec une hauteur maximale en toiture de 11 mètres et une hauteur de gouttière limitée à 6 mètres. La forme du toit peut être libre, offrant ainsi une grande latitude dans le design architectural selon vos préférences. La profondeur de construction maximale autorisée est de 17 mètres, avec un recul minimum de 3 mètres par rapport aux limites latérales du terrain, garantissant une implantation harmonieuse et conforme aux normes urbanistiques en vigueur. La zone est classée en secteur résidentiel, adaptée à une habitation individuelle, sans risques d’inondation ni restriction particulière liée à des zones inondables. Si vous cherchez à bâtir dans un environnement paisible tout en étant proche des commodités, cette parcelle représente une option idéale pour concrétiser votre projet immobilier. N’hésitez pas à nous contacter pour plus d’informations ou pour organiser une visite. Ce terrain à bâtir à Brecht offre un potentiel exceptionnel pour réaliser la maison de vos rêves ou pour investir dans un secteur en plein développement. Avec ses caractéristiques avantageuses et son emplacement stratégique, cette propriété constitue une opportunité à saisir rapidement. Faites le pas vers la concrétisation de votre projet immobilier en nous contactant dès aujourd’hui pour découvrir tous les avantages qu’offre cette parcelle de terrain rare sur le marché. En savoir plus ?

1060 43 m Profondeur du terrain
contacter
détails
E-mail
Appeler
+32 3 304 72 30
180 000 €

2381 Weelde

Située dans la charmante ville de Weelde, cette parcelle de terrain à bâtir représente une opportunité unique pour ceux qui souhaitent concrétiser leur projet résidentiel dans un environnement paisible et convivial. Avec un prix attractif de 180 000 €, cette propriété offre un potentiel exceptionnel pour construire la maison de vos rêves, en harmonie avec votre mode de vie. La superficie totale du terrain s’étend sur 565 m², avec une profondeur de 50 mètres et une largeur à l’avant de 11 mètres, ce qui laisse place à d’innombrables possibilités d’aménagement. La position du terrain dans la Nieuwe Stationsstraat confère un équilibre idéal entre tranquillité et praticité, étant niché dans une rue calme qui privilégie la qualité de vie tout en restant proche des commodités essentielles. La configuration du terrain, orientée au sud, garantit un ensoleillement optimal pour profiter pleinement de la luminosité naturelle dans votre futur jardin, un atout précieux pour ceux qui aiment cultiver ou simplement profiter d’un espace extérieur lumineux. La zone d’affectation est destinée à la construction d’une habitation semi-ouverte (sous réserve d’obtention du permis), permettant ainsi de créer un habitat privé tout en conservant un sentiment d’ouverture et de proximité avec le voisinage. Le secteur environnant est très apprécié pour son ambiance familiale et sécurisante, notamment pour les jeunes familles ou ceux cherchant un cadre de vie serein. La proximité des écoles et des transports publics (à seulement 500 mètres) facilite la vie quotidienne en offrant un accès pratique aux infrastructures essentielles. Les commerçants locaux se trouvent à 4 km, tandis que les principales voies d’accès routiers sont situées à 13 km, ce qui assure une connectivité aisée avec le reste de la région. La parcelle se trouve en zone résidentielle, non soumise à des risques d’inondation ni à des restrictions particulières en matière de protection du site ou de l’environnement. La disponibilité immédiate au moment de la signature de l’acte permet à ses futurs propriétaires d’initier rapidement leur projet de construction sans délai supplémentaire. Si vous souhaitez ériger votre résidence dans un cadre calme, pratique et verdoyant, cette opportunité à Weelde mérite toute votre attention. N’hésitez pas à nous contacter pour organiser une visite ou obtenir plus d’informations sur cette belle parcelle, véritable havre de paix prêt à accueillir votre futur chez-vous. En savoir plus ?

565 50 m Profondeur du terrain 11 m Largeur du terrain
contacter
détails
E-mail
Appeler
+32 11 25 51 55

Situé à Vogelsanck 22, dans la charmante commune de Malle, ce terrain de développement offre une opportunité unique d'investissement. Avec une superficie totale de 645 m², cette parcelle spacieuse est parfaite pour la construction d'une villa de rêve. L'emplacement est idéal pour ceux qui recherchent la tranquillité d'une vie rurale tout en restant à proximité des commodités essentielles. La parcelle est libre de constructeur, vous laissant la possibilité de choisir vos partenaires de construction et de déterminer le moment idéal pour commencer votre projet. Le terrain se distingue par sa belle largeur de rue et sa profondeur considérable, permettant la construction d'une habitation bien orientée au sud-ouest, bénéficiant ainsi d'une lumière naturelle abondante tout au long de la journée. De plus, l'absence de contrainte de construction vous offre une flexibilité totale en termes de conception et de calendrier. Les raccordements à l'électricité et à l'eau sont déjà présents, facilitant ainsi le démarrage des travaux. La localisation stratégique du terrain assure un accès facile aux grands axes routiers, notamment l'E19 et l'E34, vous connectant rapidement aux villes voisines et aux principales infrastructures. Les environs offrent un cadre de vie paisible sans compromettre la commodité, avec toutes les commodités nécessaires à proximité. À un prix compétitif de 255 000 €, cette propriété représente une excellente opportunité pour quiconque souhaite construire dans un cadre rural attrayant en Belgique. En savoir plus ?

645
contacter
détails
E-mail
Appeler
+32 15 30 81 00