Appartement à vendre - Beiler RBU72944

9944 Beiler

550 000 €

  • 1 Chambre(s)
  • 66
  • 1 Garage

Description

Découvrez cet appartement moderne et élégant situé dans la résidence « BERBERIS » récemment construite à Beiler, un village calme mais très bien desservi de la commune de Weiswampach. Grâce à son emplacement idéal, vous bénéficiez d'un accès rapide à toutes les commodités importantes de la vie quotidienne telles que les écoles, les crèches, les cabinets médicaux et les commerces – parfait pour vivre confortablement dans un environnement agréable.

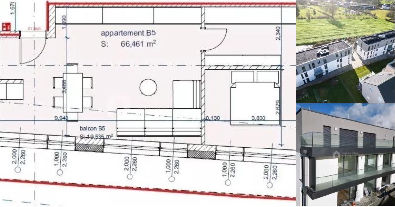
Détails de l'appartement B5 :

Prêt à emménager : décembre 2025
Surface habitable : 66,46 m²
Étage : 1er étage
Terrasse : 18,06 m²

Répartition des pièces :

Salon et salle à manger ouverts : 36,04 m²
Chambre : 10,33 m²
Grand dressing : 7,77 m²
Salle de bains moderne : 7,77 m²
Toilettes séparées : 2,36 m²
Avantages supplémentaires :
Cave privée (2,01 m²) – comprise dans le prix
Deux places de parking intérieures – comprises dans le prix
Matériaux de haute qualité et design moderne
Plan d'étage bien pensé avec des pièces spacieuses et lumineuses
Terrasse pour des moments de détente en plein air

Idéal pour les célibataires, les couples ou les investisseurs

Pour plus d'informations ou pour une visite, n'hésitez pas à nous contacter au Tel +352 26 95 71 11 .

Saisissez cette excellente opportunité dès maintenant ! Tout voir Réduire

Détails financiers

  • Prix: 550 000 €
  • Soumis au régime de TVA?: Oui

Services


Informations complémentaires

Données de base

Bien actuellement loué

Non

Aménagement intérieur

Nombre de chambres à coucher

1

Surface habitable

66 m²

Garage

Oui

Nombre de Garages

1

Cuisine et sanitaires

Nombre de douches

1

Nombre de toilettes

1

Chauffage et énergie

Type de chauffage

Non specifié

Équipement

Ascenseur

Oui

Description extérieure

Étage de l'appartement

1

Nombre d'étages de l'immeuble

1

Jardin

Non

Terrasse aménagée

Oui

Certificats et attestations de conformité

Référence PEB

A

Urbanisme et risques environnementaux

Type de zone inondable

Information non communiquée

Zone inondable délimitée

Information non communiquée

Immovlan.be affiche à l’écran toutes les données reçues de l’annonceur. Si certaines données importantes ou obligatoires sont manquantes, c’est qu’elles ne nous ont pas été fournies.

Réf. Immovlan: RBU72944 Réf. vendeur: LU_BEILER_B5_18112025_LA Signaler une fraude

Points d'intérêt à proximité

Crèches

S. A. Du Service Sae P'Tits Soleils

11,2 km 51' 12,6 km 14' 9,3 km 2º 42' 11,2 km 2º 14'

Écoles maternelles

Ecole Fondamentale Communale De Gouvy

10 km 47' 11,4 km 13' 8 km 2º 27' 9,6 km 1º 56'

Écoles primaires

Ecole Fondamentale Communale De Gouvy

10 km 47' 11,4 km 13' 8 km 2º 27' 9,6 km 1º 56'

Bus

TEC Liège - Verviers - 496 - St-Vith - Wemperhardt - Ouren - Reuland

1,9 km 22'

Gares

Troisvierges

8,8 km 29' 8,8 km 10' 0 m 0'' 8,8 km 1º 46'

Bornes de recharge

Eastbelgium Action, Fun And Karting Center

11,6 km 13'

Supermarchés

Trafic Gouvy

6,9 km 33' 7,8 km 9' 5,4 km 1º 49' 6,9 km 1º 22'

Spar Gouvy

12,1 km 54' 13,4 km 15' 10,1 km 2º 52' 12 km 2º 24'

Parcs d'attractions

Center Parcs Aqua Mundo Les Ardennes

0 m 0''

Musées

Maison Du Pays De Salm

24,3 km 23'

Activités

Ardoisière De Recht

27,3 km 28'

Golfs

The Green House Golf

18,2 km 19'

Transports

En moins de 10 minutes en voiture, vous pourrez rejoindre la gare "Troisvierges".Vous conduisez un véhicule électrique ou l'envisagez ? La station de recharge la plus proche ("Eastbelgium Action, Fun And Karting Center") est à seulement 13 minutes en voiture.

Éducation

"S. A. Du Service Sae P'Tits Soleils" est la crèche la mieux située : il suffit de 51 minutes à vélo.À proximité, vous pourrez trouver une école maternelle / école primaire : "Ecole Fondamentale Communale De Gouvy", à 13 minutes en voiture.

Magasins

Vous trouverez divers supermarchés à proximité : "Trafic Gouvy" (9 minutes en voiture), "Spar Gouvy" (15 minutes en voiture).

Transports en commun

Vous pourrez accéder à la ligne de bus TEC Liège - Verviers - 496 - St-Vith - Wemperhardt - Ouren - Reuland avec un arrêt situé à moins de 22 minutes à la marche.

Tourisme

Il y a un parc d'attractions à 1 minute de route : "Center Parcs Aqua Mundo Les Ardennes".Le golf "The Green House Golf" se situe à 19 minutes de route.Le musée "Maison Du Pays De Salm" se trouve à proximité (23 minutes de route).Une activité intéressante à faire dans les environs : "Ardoisière De Recht" à 28 minutes de route.

Tout voir Réduire