Terrain à vendre - Hellange RBU58645

3337 Hellange

392 445 €

Description

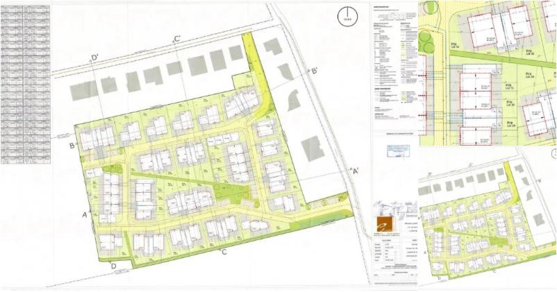
Nouveau lotissement Hellange "Iwwert der Sauerwiss".

Terrain (LOT 31) de 3,23 ares

----

Je reste à votre disposition pour tout renseignement complémentaire. (documentations/informations):

Daniel VAZ
Conseiller en Immobilier

GSM: 621 757 809 / Tél: 45 71 31 35

Email: Contact
(lux, fr, de, eng, pt)

---- Tout voir Réduire

Détails financiers

  • Prix: 392 445 €

Services


Informations complémentaires

Données de base

Bien actuellement loué

Non

Urbanisme et risques environnementaux

Type de zone inondable

Information non communiquée

Zone inondable délimitée

Information non communiquée

Immovlan.be affiche à l’écran toutes les données reçues de l’annonceur. Si certaines données importantes ou obligatoires sont manquantes, c’est qu’elles ne nous ont pas été fournies.

Réf. Immovlan: RBU58645 Réf. vendeur: Lot 31 VAZ Signaler une fraude

Points d'intérêt à proximité

Gares

Hollerich

12,4 km 41' 15,3 km 11' 0 m 0'' 12,4 km 2º 29'

Supermarchés

Gasperich (Bio-Planet)

11,1 km 37' 14,1 km 10' 0 m 0'' 11,1 km 2º 13'

Magasins

Pour vos courses, vous disposez de : "Gasperich (Bio-Planet)" (10 minutes en voiture).

Transports

En moins de 11 minutes en voiture, vous pourrez rejoindre la gare "Hollerich".

Tout voir Réduire