Terrain à vendre - Nothum RBT91377
9678 Nothum
213 180 €
Description
En partenariat avec la COMMUNE DU LAC DE LA HAUTE SÛRE, nous vous proposons ce nouveau lotissement situé à NOTHUM, en plein cœur du Parc naturel de la Haute Sûre.
Ce projet offre un cadre de vie idéal pour ceux qui recherchent la tranquillité de la campagne tout en restant proche des services urbains, garantissant ainsi une qualité de vie exceptionnelle.
Il comprend une trentaine de terrains à bâtir pour des maisons unifamiliales, individuelles et jumelées.
ATOUTS:
* Ce projet bénéficie d’un emplacement idéal, à savoir un CENTRE MEDICAL regroupant divers médecins généralistes et spécialistes, ainsi qu'une PHARMACIE sont prévus directement dans le lotissement!
* Le client est libre de choisir son entreprise de construction!
* Les lots 6 à 9 sont destinés à la création de logements à coût modéré. Le candidat-acquéreur doit fournir un certificat d’éligibilité pour un logement abordable ou à coût modéré, délivré par le Ministère du Logement.
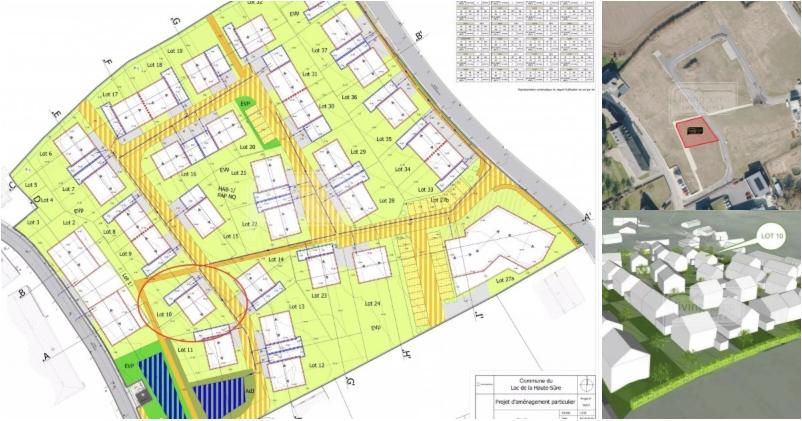
LOT: 10
SUPERFICIE TERRAIN: 5,61 ares
PRIX: 213.180 €
CONDITIONS:
Tout candidat-acquéreur doit entre-autres:
* être une personne physique
* avoir l'intention d'utiliser ledit terrain pour construire une maison unifamiliale
* faire de cette maison son habitation personnelle
* Les lots 6 à 9 sont destinés à la création de logements à coût modéré. Le candidat-acquéreur doit fournir un certificat d’éligibilité pour un logement abordable ou à coût modéré, délivré par le Ministère du Logement.
NOTHUM se trouve dans une région, proche du Lac, qui par sa beauté de ses paysages propose une multitudes d'attractions sportives pendant la saison estivale, comme p.ex. la baignade, la pêche, la voile, la plongée, le canotage ou bien encore de magnifiques randonnées pédestres, à cheval ou VTT.
De plus, toutes les commodités (commerces, banques, restaurants...) se trouvent également à proximité et sont facilement accessibles par les TRANSPORTS PUBLICS:
TRANSPORTS PUBLICS:
- Arrêt de bus à 2 minutes
- Ligne ferroviaire de Wiltz à 5 KM
- Ligne ferroviaire de Kautenbach à 15 minutes
- Kirchberg-Paffenthal-pôle d'échange : 50 minutes en train
- Accès N15 vers Bastogne/Ettelbruck à 2 minutes en voiture
COMMODITES:
- Nothum: centre médical, pharmacie, restaurant,
- Harlange: Ecole fondamentale, crèche, maison relais,
- Pommerloch: commerces
- Wiltz: Lycée LN, Hôpital, commerces, cinéma, piscine,...
DISTANCES:
- Pommerloch: 5 minutes
- Wiltz: 5 Km
- Harlange: 10 minutes
- Bastogne: 20 minutes
- Ettelbruck: 20 minutes
- Diekirch: 30 minutes
- Luxembourg-centre 55 minutes
N'hésitez pas à nous contacter pour de plus amples informations ou documentation!
CONTACTS:
- Contact
- Tel +352 27 80 83 56 Tout voir Réduire
Ce projet offre un cadre de vie idéal pour ceux qui recherchent la tranquillité de la campagne tout en restant proche des services urbains, garantissant ainsi une qualité de vie exceptionnelle.
Il comprend une trentaine de terrains à bâtir pour des maisons unifamiliales, individuelles et jumelées.
ATOUTS:
* Ce projet bénéficie d’un emplacement idéal, à savoir un CENTRE MEDICAL regroupant divers médecins généralistes et spécialistes, ainsi qu'une PHARMACIE sont prévus directement dans le lotissement!
* Le client est libre de choisir son entreprise de construction!
* Les lots 6 à 9 sont destinés à la création de logements à coût modéré. Le candidat-acquéreur doit fournir un certificat d’éligibilité pour un logement abordable ou à coût modéré, délivré par le Ministère du Logement.
LOT: 10
SUPERFICIE TERRAIN: 5,61 ares
PRIX: 213.180 €
CONDITIONS:
Tout candidat-acquéreur doit entre-autres:
* être une personne physique
* avoir l'intention d'utiliser ledit terrain pour construire une maison unifamiliale
* faire de cette maison son habitation personnelle
* Les lots 6 à 9 sont destinés à la création de logements à coût modéré. Le candidat-acquéreur doit fournir un certificat d’éligibilité pour un logement abordable ou à coût modéré, délivré par le Ministère du Logement.
NOTHUM se trouve dans une région, proche du Lac, qui par sa beauté de ses paysages propose une multitudes d'attractions sportives pendant la saison estivale, comme p.ex. la baignade, la pêche, la voile, la plongée, le canotage ou bien encore de magnifiques randonnées pédestres, à cheval ou VTT.
De plus, toutes les commodités (commerces, banques, restaurants...) se trouvent également à proximité et sont facilement accessibles par les TRANSPORTS PUBLICS:
TRANSPORTS PUBLICS:
- Arrêt de bus à 2 minutes
- Ligne ferroviaire de Wiltz à 5 KM
- Ligne ferroviaire de Kautenbach à 15 minutes
- Kirchberg-Paffenthal-pôle d'échange : 50 minutes en train
- Accès N15 vers Bastogne/Ettelbruck à 2 minutes en voiture
COMMODITES:
- Nothum: centre médical, pharmacie, restaurant,
- Harlange: Ecole fondamentale, crèche, maison relais,
- Pommerloch: commerces
- Wiltz: Lycée LN, Hôpital, commerces, cinéma, piscine,...
DISTANCES:
- Pommerloch: 5 minutes
- Wiltz: 5 Km
- Harlange: 10 minutes
- Bastogne: 20 minutes
- Ettelbruck: 20 minutes
- Diekirch: 30 minutes
- Luxembourg-centre 55 minutes
N'hésitez pas à nous contacter pour de plus amples informations ou documentation!
CONTACTS:
- Contact
- Tel +352 27 80 83 56 Tout voir Réduire
Détails financiers
- Prix: 213 180 €
Services
Informations complémentaires
Données de base
Bien actuellement loué
Non
Urbanisme et risques environnementaux
Type de zone inondable
Information non communiquée
Zone inondable délimitée
Information non communiquée
Immovlan.be affiche à l’écran toutes les données reçues de l’annonceur. Si certaines données importantes ou obligatoires sont manquantes, c’est qu’elles ne nous ont pas été fournies.