Maison à vendre - Esch-sur-Alzette RBU22661

4260 Esch-sur-Alzette

590 000 €

  • 5 Chambre(s)
  • 150
  • 1 Salle(s) de bain

Description

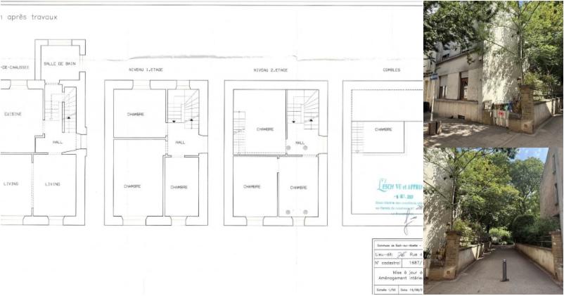
À VENDRE – MAISON À RÉNOVER INTÉGRALEMENT – ESCH-SUR-ALZETTE – 590.000 €
3 façades – Face au parc Laval – Fort potentiel – Louée 1.800 €/mois

Situation privilégiée à Esch-sur-Alzette, directement en face du parc Laval, offrant un cadre verdoyant et paisible tout en étant proche de toutes les commodités : commerces, écoles, transports, centre-ville à pied.

Description du bien :

Environ 195 m² bruts répartis sur 3 niveaux d’environ 65 m² chacun

Maison jumelée d’un seul côté : vous bénéficiez de 3 façades libres pour un maximum de lumière naturelle

Petit extérieur privatif à l’arrière

Pas de garage, mais stationnement disponible dans la rue

Le bien nécessite une rénovation complète, ce qui en fait une opportunité idéale pour les amateurs de projets ou les investisseurs à la recherche d’un bien à fort potentiel dans un quartier recherché.

Actuellement louée à 1.800 € / mois, la maison offre un rendement immédiat pour les investisseurs souhaitant anticiper un futur projet de transformation.

Contactez-nous au Tel +352 661 34 99 34 pour en savoir plus ou organiser une visite.
Un bien à fort potentiel dans l’un des meilleurs emplacements d’Esch-sur-Alzette. Tout voir Réduire

Détails financiers

  • Prix: 590 000 €
  • TVA: Non

Services


Informations complémentaires

Données de base

Bien actuellement loué

Non

Aménagement intérieur

Nombre de chambres à coucher

5

Surface habitable

150 m²

Cuisine et sanitaires

Nombre de salles de bain

1

Nombre de douches

1

Chauffage et énergie

Type de chauffage

Gaz

Description extérieure

Jardin

Non

Terrasse aménagée

Non

Certificats et attestations de conformité

Référence PEB

NC

Urbanisme et risques environnementaux

Type de zone inondable

Information non communiquée

Zone inondable délimitée

Information non communiquée

Immovlan.be affiche à l’écran toutes les données reçues de l’annonceur. Si certaines données importantes ou obligatoires sont manquantes, c’est qu’elles ne nous ont pas été fournies.

Réf. Immovlan: RBU22661 Réf. vendeur: 85982212D Signaler une fraude

Points d'intérêt à proximité

Gares

Bascharage-Sanem

8,6 km 30' 10,9 km 11' 0 m 0'' 8,6 km 1º 43'

Supermarchés

Cora Foetz

5,1 km 25' 5,2 km 6' 0 m 0'' 5,1 km 1º 1'

Musées

Musée Gaspar

32,1 km 29'

Tourisme

Ce bien, situé près de la Rue du Nord, profite d'un cadre de vie connecté aux commodités et aux transports du quartier.Le musée "Musée Gaspar" est accessible en 29 minutes.

Transports

Un week-end improvisé ou un déplacement professionnel ? La gare "Bascharage-Sanem" est à moins de 11 minutes en voiture.

Magasins

Pratique pour le quotidien, un supermarché se trouve dans le voisinage : "Cora Foetz" (6 minutes en voiture).

Villes proches

Luxembourg-Kirchberg est tout proche : seulement 19 minutes en voiture suffisent. Avec Dudelange à seulement 12 minutes en voiture, les commerces et services de la ville sont à portée de main. Besoin de rejoindre Thionville pour le travail ou les loisirs ? Comptez environ 24 minutes en voiture.L'ensemble de ces services à proximité contribue à un cadre de vie pratique et bien desservi.

Tout voir Réduire