Bien immobilier à vendre - Péruwelz

55 résultats (1 - 20)

7600 Péruwelz

299 999 € - 370 000 €

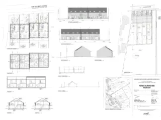
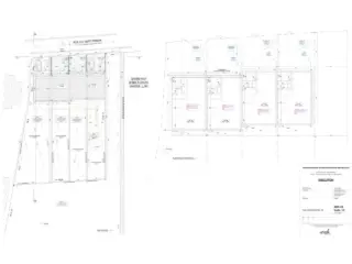
En exclusivité avec la société immobilière GSC Patrimonium, nous vous présentons le projet résidentiel de 11 habitations "clé sur porte" basse énergie (PEB A). Situées dans l'entité de Péruwelz, dans le charmant village de Baugnies, rue de Mortagne (proche du n°60), ces habitations allient à la perfection le confort moderne et un cadre de vie exceptionnel. L'emplacement est stratégique, à proximité de Tournai, Péruwelz et Leuze, avec un accès facile aux grands axes routiers et autoroutiers. Les terrains seront soumis aux droits d'enregistrement (au taux de 3 % pour les primos-acquéreurs ou 12,5 %), tandis que les constructions seront soumises à la TVA (21 %). La quote-part terrain s'élèvera à 100 000 € pour chaque parcelle. Ce projet se compose de 11 habitations à l'architecture soignée, offrant une diversité pour chaque ensemble bâti. Les maisons 3 façades (141 m²) - 7 unités à 310 000€* hors frais et 1 unité à 299 999€ hors frais (vendue). Façades : 3 Chambres : 3 Particularités : Passage latéral sans carport (habitation avec option carport possible moyennant 12 500€ HTVA supplémentaires). Composition : Rez-de-chaussée : Hall d'entrée, buanderie, toilette avec lave-mains, ainsi qu'un salon et une salle à manger ouverts sur une cuisine avec cellier. Étage : Hall de nuit avec un espace bureau, une salle de bain et trois chambres. Les 2 maisons 3 façades (208 m²) - LES 2 LOTS SONT DEJA VENDUS !! Façades : 3 Chambres : 3 à 4 selon le client Dressing/buanderie : 1 Particularités : Garage et passage latéral Composition : Rez-de-chaussée : Hall d'entrée, buanderie, garage, toilette avec lave-mains, ainsi qu'un salon et une grande salle à manger ouverts sur une cuisine avec cellier. Étage : Hall de nuit avec un espace bureau, une salle de bain et quatre à cinq chambres. La maison 2 façades (208 m²) - 1 unité à 360 000€ hors frais. VENDUE Façades : 2 Chambres : 3 à 4 selon le client Dressing/buanderie : 1 Particularités : Grand garage avec accès direct au jardin. Composition : Rez-de-chaussée : Hall d'entrée, buanderie, grand garage avec accès direct au jardin, toilette avec lave-mains, ainsi qu'un salon et une salle à manger ouverts sur une cuisine avec cellier. Étage : Hall de nuit avec un espace bureau, une salle de bain et quatre à cinq chambres. De plus, les futurs acquéreurs auront la possibilité de personnaliser le carrelage et la cuisine (modèle IXINA) parmi notre sélection ! Ce prix comprend également : Aménagements extérieurs : haies de séparation en façade, terrasse en pavés gris anthracite, clôtures châtaigniers pour les séparations arrière, gravier beige et ponts d'accès en pavés pour le passage du fossé. Frais de viabilisation et de raccordements : égouttage, micro-station d'épuration, raccordements à la SWDE (eau), Primagaz (gaz) et à l'électricité. Frais professionnels : honoraires du géomètre et de l'architecte. Certifications : test d'étanchéité à l'air (Blower Door), agréation électrique, agréation gaz, certification Certibeau (pour l'eau) et le certificat PEB A (système de ventilation simple flux). En résumé , il restera aux futurs acquéreurs le travail du peintre pour avoir un rendu optimal. Le projet commencera en juillet 2026, fin de travaux prévue pour fin 2027/début 2028, ne manquez pas cette belle occasion de réserver une maison GSC Patrimonium ! *Prix hors frais d'agence. Publicité à caractère non contractuel et ne constituant pas une offre. Les propriétaires se réservent le droit de décision, d'acceptation ou non, sur toute(s) offre(s) soumise(s) pour leur bien. En savoir plus ?

3 Chambre(s) 141 - 208 1 Salle(s) de bain
Contacter
Détails
E-mail
Appeler
Faire offre à partir de 279 000 €

7600 Péruwelz

Imaginez-vous dans une maison récente baignée de lumière, nichée dans un quartier calme, où chaque pièce respire confort et sérénité. L'agence Leclercq vous propose cette maison idéale pour profiter pleinement de chaque instant, à l’intérieur comme à l’extérieur. Le rez-de-chaussée offre un hall d'entrée avec WC séparé, cellier et un living, ouvert sur le jardin, baigné de lumière avec cuisine ouverte full équipée. À l’étage, trois chambres lumineuses ainsi qu'une salle de bain sont de véritables cocons pour se ressourcer. À l’arrière, le jardin avec terrasse prolonge naturellement la maison, un écrin de verdure où se mêlent détente et moments conviviaux. Tout a été pensé pour offrir confort et sérénité. Coté techniques: Pompe à chaleur, chassis DV, tout est prévu pour votre confort. PEB "B" - soit 103 kWh/m².an - consommation théorique totale d'énergie primaire 11543 kWh/an - N°20260317502922. Bien référencé: 7638440. Vous avez besoin d’une estimation de votre maison ou appartement avant d’envisager un achat ? Nos estimations sont offertes, honnêtes et sans engagement ! Nous sommes à votre disposition du lundi au samedi. Publicité à caractère non contractuel et ne constituant pas une offre. Les propriétaires se réservent le droit de décision, d’acceptation ou non sur toute(s) offre(s) soumise(s) pour leur bien. En savoir plus ?

3 Chambre(s) 113 1 Salle(s) de bain
Contacter
Détails
E-mail
Appeler
932 250 €

7600 Péruwelz

HENRO-IMMO propose ce terrain industriel. Opportunité exceptionnelle à Péruwelz ! Idéalement situé le long de la Rue Neuve Chaussée à Péruwelz, au coeur du parc d'activités économiques POLARIS, ce terrain industriel de 3.729 m² offre un emplacement stratégique pour le développement de votre bâtiment industriel ou commercial. Terrain libre de constructeur. Prêt à l'emploi. Excellente visibilité et accessibilité. Environnement dynamique et en plein essor économique. Ce terrain constitue une opportunité idéale pour concrétiser votre projet professionnel dans une zone attractive et parfaitement adaptée aux activités économiques. Investissez dans un emplacement stratégique et donnez vie à votre projet dès aujourd'hui ! Faire offre à partir de 932.250€ Toutes les données sont fournies à titre informatif et non contractuel. En savoir plus ?

3729
Contacter
Détails
E-mail
Appeler
110 000 €

7600 Péruwelz

Maison d’habitation 3 façades plain-pied avec un garage de 21,15 m² située sur les hauteurs de Péruwelz sur un terrain de 6 ares 40 centiares. Le bien offrant une superficie habitable de +/- 85 m² comprend un living de 36 m², une cuisine de 14,90 m², 2 chambres (10 et 11,45 m²) et une salle de bains de 10m². A l'extérieur , une terrasse de 15,50 m² orientée sud-est à l’arrière, jardin fermé et passage latéral aisé. Bien actuellement loué 600€/mois. Prix indicatif : 110.000€ (Faire offre). RC : 377€. Caractéristiques techniques : Toiture en tuiles mécaniques + plateforme en derbigum, Eternit sur le garage. Châssis en bois double vitrage. Electricité bi-horaire (compteur communicant). Chauffage : foyer appartenant au locataire. Production d’eau chaude sur un boiler électrique. Châssis en bois double vitrage. Zone d’assainissement collectif. Publicité à caractère non contractuel et ne constituant pas une offre. Les propriétaires se réservent le droit de décision, d'acceptation ou non, sur toute(s) offre(s) soumise(s) pour leur bien. En savoir plus ?

2 Chambre(s) 85 1 Salle(s) de bain
Contacter
Détails
E-mail
Appeler
105 000 €

7600 Péruwelz

Bonne maison d'habitation 3 chambres sise sur 1 are 50 centiares à deux pas de la forêt domaniale de Bon-Secours. Cette maison est composée d'un hall d'entrée, un living, un coin cuisine à aménager et une petite véranda avec salle de bain. L'étage comprend une grande chambre et une chambre passante ou bureau donnant accès à la troisième chambre au deuxième. En extérieur, petit jardin emmuré avec remise. Idéal investisseur ! Prix indicatif : 105.000€ RC actuel : 301€ Caractéristiques techniques : - PEB D. - Électricité bi-horaire conforme. - Châssis PVC double vitrage. - Tout à l'égout. - Système de chauffage : un feu mazout + cuve aérienne de 1200l. - Production d'eau chaude: boiler électrique 150l. - Superficie totale intra-muros: 110m2. Dimensions : hall d'entrée: 5m²; living: 15,10m²; véranda: 6m²; sdb: 3m²; chambres: 22m²; 15m²; 10m²; remise: 11m²; cave: 11m². Publicité à caractère non contractuel et ne constituant pas une offre. Les propriétaires se réservent le droit de décision, d'acceptation ou non, sur toute(s) offre(s) soumise(s) pour leur bien. En savoir plus ?

3 Chambre(s) 110 1 Salle(s) de bain
Contacter
Détails
E-mail
Appeler
145 000 €

7600 Péruwelz

Bonne maison d’habitation 4 chambres, avec jardin, sise dans une rue paisible de Péruwelz. Le bien, à moderniser, comprend au rez-de-chaussée : un hall d’entrée, un salon, une salle à manger, une cuisine et une toilette. Le 1er étage accueille un hall, 3 chambres, une salle de bains à rénover et un dressing. Au second étage, une chambre mansardée. Jardin clôturé. A voir ! Prix indicatif : 145 000€. RC : 276€. Superficie de la parcelle : 4 ares 20 centiares. Caractéristiques techniques : Chauffage central au mazout. Châssis pvc double vitrage et bois simple vitrage. Tout à l’égout. Electricité à mettre en conformité (compteur communiquant). 10 panneaux photovoltaïques. Dimensions : Hall d’entrée : 3m². Wc : 2m². Salon : 22m². Salle à manger: 22m². Cuisine : 11.5m².Hall de nuit : 6m². Chambre 1 : 13m². Ch 2 : 16.5m². Ch 3 : 10m². Ch 4 : 11m². Dressing : 3m². Salle de bains: 5m². Publicité à caractère non contractuel et ne constituant pas une offre. Les propriétaires se réservent le droit de décision, d'acceptation ou non, sur toute(s) offre(s) soumise(s) pour leur bien. En savoir plus ?

4 Chambre(s) 125 1 Salle(s) de bain
Contacter
Détails
E-mail
Appeler
275 000 €

7600 Péruwelz

Très bel immeuble en bon état d'entretien à vocation commerciale et résidentielle sur 9 ares 40 centiares. Le bien comprend 3 entités : - Une partie commerciale actuellement exploitée comme boucherie de renommée (pièce d'accueil de 29 m², cuisine à l'arrière de 18 m² + chambres froides,). - Une habitation 5 chambres offrant une superficie habitable de +/- 175 m², actuellement occupée par le propriétaire. - Une habitation plain-pied une chambre actuellement louée 450€/mois. Prix indicatif : 275 000€ + 35 000€ de fonds de commerce. RC : 1.086€. Renseignements complémentaires en agence. Caractéristiques techniques : - 3 adresses pour ce bien. - 3 compteurs électriques, 3 compteurs d'eau. - Toiture en tuiles mécaniques avec sous-toiture + plateforme en zinc. - Chauffage central mazout (chaudière "Wolf" avec nouveau brûleur). Poêle à pellets dans l'habitation à l'arrière. - Production d'eau chaude sur la chaudière et boilers électriques. - Tout à l'égout. - Châssis en PVC double vitrage. Publicité à caractère non contractuel et ne constituant pas une offre. Les propriétaires se réservent le droit de décision, d'acceptation ou non, sur toute(s) offre(s) soumise(s) pour leur bien. En savoir plus ?

940
Contacter
Détails
E-mail
Appeler
275 000 €

7600 Péruwelz

Très bel immeuble en bon état d'entretien à vocation commerciale et résidentielle sur 9 ares 40 centiares. Le bien comprend 3 entités : - Une partie commerciale actuellement exploitée comme boucherie de renommée (pièce d'accueil de 29 m², cuisine à l'arrière de 18 m² + chambres froides,). - Une habitation 5 chambres offrant une superficie habitable de +/- 175 m², actuellement occupée par le propriétaire. - Une habitation plain-pied une chambre actuellement louée 450€/mois. Prix indicatif : 275 000€ + 35 000€ de fonds de commerce. RC : 1.086€. Renseignements complémentaires en agence. Caractéristiques techniques : - 3 adresses pour ce bien. - 3 compteurs électriques, 3 compteurs d'eau. - Toiture en tuiles mécaniques avec sous-toiture + plateforme en zinc. - Chauffage central mazout (chaudière "Wolf" avec nouveau brûleur). Poêle à pellets dans l'habitation à l'arrière. - Production d'eau chaude sur la chaudière et boilers électriques. - Tout à l'égout. - Châssis en PVC double vitrage. Publicité à caractère non contractuel et ne constituant pas une offre. Les propriétaires se réservent le droit de décision, d'acceptation ou non, sur toute(s) offre(s) soumise(s) pour leur bien. En savoir plus ?

6 Chambre(s) 300 2 Salle(s) de bain
Contacter
Détails
E-mail
Appeler
239 000 €

7600 Péruwelz

🏠 Immeuble de rapport comprenant deux appartements – idéal pour investisseur Situé dans un environnement calme et proche des commodités, cet immeuble se compose de deux logements entièrement indépendants, chacun avec son entrée privative (aucun espace commun). Composition : 👉 Rez-de-chaussée : appartement d’environ 55m² comprenant un lumineux séjour, une cuisine séparée, une buanderie, une salle de douche, un WC individuel, une chambre de ±14m² et une cave. 👉 Premier étage : appartement deux chambres d’environ 63m², disposant d’une agréable cour de ±50m², pouvant également servir d’emplacement de parking sécurisé. Caractéristiques techniques : Chauffage via pompes à chaleur; Châssis bois et PVC double vitrage ; Compteurs individuels ; Électricité conforme Entrées individuelles pour chaque unité Les deux appartements sont actuellement loués : -Rez-de-chaussée : 550€/mois (non indexé) - 1er étage : 700€/mois Bonne rentabilité : 4,5% 💡 Idéal pour investissement : bon rendement locatif, immeuble entretenu et sans charges communes. En savoir plus ?

3 Chambre(s) 117 2 Salle(s) de bain
Contacter
Détails
E-mail
Appeler
150 000 €

7600 Péruwelz

Bonne maison d’habitation mitoyenne à moderniser avec garage et jardin située sur 3 ares 62 centiares à moins de 2 km de la gare de Péruwelz. Le bien offrant une superficie habitable de +/- 174 m², comprend un living de 38,50 m², une cuisine de 14 m², un hall avec w-c, une salle de douche de 3,25 m², une véranda de 18 m², un grand garage de 44 m². A l’étage : un hall de nuit, 2 chambres (14,25 et 20,50 m²). Jardin fermé avec une remise de 21 m². Prix indicatif : 150.000€ (Faire offre). RC : 233€. Caractéristiques techniques : Toiture en tuiles mécaniques avec une sous-toiture basique. Electricité simple horaire. Châssis en bois double vitrage, pas de volets. Tout à l’égout + fosse septique (à vérifier). Chauffage central mazout (chaudière SIME). Production d’eau chaude via un boiler au gaz sur bonbonne. Orientation : nord à l’arrière. Equipements de la cuisine : double évier, taque au gaz sur bonbonne et hotte. Citerne d’eau de pluie + groupe hydrophore. Publicité à caractère non contractuel et ne constituant pas une offre. Les propriétaires se réservent le droit de décision, d'acceptation ou non, sur toute(s) offre(s) soumise(s) pour leur bien. En savoir plus ?

2 Chambre(s) 174
Contacter
Détails
E-mail
Appeler
Faire offre à partir de 150 000 €

7600 Péruwelz

MAISON D’HABITATION Comprenant : Rez-de-chaussée : un salon, une cuisine, une salle de bains avec douche. Etage : deux chambres. Extérieur : un jardin. RC : 180,00€ Contenance : 7ares 74centiares En savoir plus ?

2 Chambre(s)
Contacter
Détails
E-mail
Appeler
259 000 €

7600 Péruwelz

Découvrez cette élégante maison bourgeoise de 5 chambres, idéalement située face à la gare de Péruwelz. Elle s’ouvre sur un hall d’entrée accueillant menant à un vaste séjour et une salle à manger lumineuse. Vous y trouverez également une grande cuisine ainsi qu’une spacieuse véranda avec WC séparé. Au premier étage, trois belles chambres et une salle de bain avec WC complètent l’espace nuit. Le deuxième étage offre une quatrième chambre ainsi qu’un grenier aménageable, permettant la création d’une cinquième chambre selon vos besoins. Le bien dispose aussi d’un garage motorisé et d’une cave entièrement excavée. À l’extérieur, vous profiterez d’un jardin entièrement clôturé, agrémenté d’un cabanon de rangement et d’une agréable terrasse. Sur le plan technique : PEB E, châssis en bois à double vitrage, façade récemment repeinte et toiture neuve. Lien pour la visite virtuelle : ### Intéressé(e) ? N’attendez plus et planifiez votre visite dès maintenant ! En savoir plus ?

5 Chambre(s) 305 1 Salle(s) de bain
Contacter
Détails
E-mail
Appeler
130 000 €

7600 Péruwelz

Agréable maison mitoyenne 2 chambres et jardin sur +/- 5 a 20 ca. Ce bien offre une superficie habitable (hors grenier) de +/- 130 m². Il comprend : - Au RDC : hall d'entrée, salon (14 m²), salle à manger (11 m²), cuisine équipée avec coin repas (17 m²), salle d'eau avec toilettes (17 m²) et véranda (11 m²). - Au 1er étage : hall nuit et 2 chambres (12 m² ; 19 m²). - Au 2ème étage : grenier aménageable (30 m²). Le bien est agrémenté d'une cave saine, un jardin , un verger et une terrasse. OFFRE EN COURS AU PRIX DE 130.000€. RC : 336€. Bien loué Caractéristiques techniques : Électricité bi-horaire - non conforme. Châssis en bois double vitrage (volets rez avant). Châssis pvc récent à la salle d'eau. Toiture en tuiles - pas de sous-toiture, pas d'isolation. Chauffage : feux mazout. Production d'eau chaude via boiler électrique neuf. Tout à l'égout. Publicité à caractère non contractuel et ne constituant pas une offre. Les propriétaires se réservent le droit de décision, d'acceptation ou non, sur toute(s) offre(s) soumise(s) pour leur bien. En savoir plus ?

2 Chambre(s) 130
Contacter
Détails
E-mail
Appeler
259 000 €

7600 Péruwelz

Voici Mady, et ce n’est pas un nom donné au hasard. Située en plein centre de Péruwelz, cette maison bourgeoise de caractère, imaginée par son architecte et baptisée sur sa façade, développe 305 m² habitables. Un bien rare, porté par des volumes impressionnants, une belle luminosité et une architecture intemporelle. ➔ Rez-de-chaussée Vaste hall d’entrée avec accès à la cave et magnifique escalier apparent, véritable pièce maîtresse de la maison. Grand living lumineux avec cheminée, ouvert par une double porte vitrée sur la salle à manger. La salle à manger se prolonge vers la véranda et le jardin, offrant une circulation fluide des espaces. Cuisine séparée et garage complètent ce niveau. ➔ Premier étage Hall de nuit desservant trois grandes chambres et une salle de douche. ➔ Second étage Deux chambres supplémentaires nécessitant quelques travaux pour être rendues pleinement confortables. ➔ Extérieurs Jardin agréable en cœur de ville, accessible depuis la véranda. ➔ État & technique Façade récemment rénovée et repeinte. Châssis bois double vitrage rénovés. Toiture neuve. Chauffage central au mazout. ➔ On aime Les volumes rares, la luminosité, la signature architecturale et le potentiel exceptionnel qu’offre cette maison à rafraîchir. Une base saine pour créer une demeure bourgeoise spectaculaire. (Publicité non contractuelle – Sous réserve d’acceptation du propriétaire) En savoir plus ?

5 Chambre(s) 305 1 Salle(s) de bain
Contacter
Détails
E-mail
Appeler
160 000 €

7600 Péruwelz

Bonne maison d'habitation avec garage et jardinet sis à moins d'un kilomètre de la gare de Péruwelz et du centre-ville. Bonne maison à rafraîchir d'une superficie totale de 165m² composée comme suit : Au rez-de-chaussée : hall d'entrée, grand living, coin repas près de la cuisine, salle de douche et WC. À l'étage on retrouve un hall de nuit, 3 chambres et un grand grenier aménageable au second. En extérieur : petite cour et jardinet avec accès au garage. Cave sèche au sous-sol. À visiter sans tarder ! Prix indicatif : 160.000€. RC : 490€ Caractéristiques techniques : Toiture en ardoise avec charpente en bon état. Châssis bois principalement double vitrage. Tout à l'égout. Production d'eau chaude sur boiler électrique. Pas de système de chauffage (2 cheminées disponibles). Électricité bi-horaire à rénover. Dimensions : Hall d'entrée :9m²; living : 29m²; sàm : 14m²; cuisine : 8m²; sdd : 5,3m²; wc :1m²; chambres : 13m², 12m² et 8m²; grenier :41m² ; garage: 20m². Publicité à caractère non contractuel et ne constituant pas une offre. Les propriétaires se réservent le droit de décision, d'acceptation ou non, sur toute(s) offre(s) soumise(s) pour leur bien. En savoir plus ?

3 Chambre(s) 165
Contacter
Détails
E-mail
Appeler
350 000 €

7600 Péruwelz

Terrain de +/- 7940 m² à bâtir en zone d'habitat plein centre de Péruwelz. Traversant sur deux rues: - Rue de Sondeville => Site Paroisse numéro 133/135 -> Front à rue de +/- 27 mètres - Rue de Sondeville =>Site Cheron numéro 121/123 -> Front à rue de +/- 21 mètres - Rue du Berceau => Site Berceau numéro 30 ->Front à rue de +/- 30 mètres Péruwelz est en pleine expansion: Parc d'activité économique Polaris - Péruwelz/Beloeil | IDETA Publicité à caractère non contractuel et ne constituant pas une offre. Les propriétaires se réservent le droit de décision, d'acceptation ou non sur toute(s) offre(s) soumise(s) pour leur bien. En savoir plus ?

7940
Contacter
Détails
E-mail
Appeler
260 000 €

7600 Péruwelz

BIEN SOUS OPTION Jolie fermette semi-plain-pied située sur 7 ares 20 centiares dans un agréable quartier de Péruwelz, à moins de 5 minutes du centre, des commerces et des accès autoroutiers. Le bien offrant une surface habitable de +/- 189 m² avec un jardin fermé, comprend un hall d’accueil, un living chaleureux de +/-43 m² avec feu cassette à bois double face, une cuisine équipée avec espace repas de 20 m², une salle de bains de 10,70 m² entièrement rénovée, un bureau de 11 m², une chambre de 19 m², une cave de 6,85 m², une pièce chaufferie de 22 m². A l’étage : 2 chambres en enfilade. Un garage de 14 m² + carport de 40 m². RC : 552€ Caractéristiques techniques : Toiture en tuiles mécaniques en bon état + menuiserite. Électricité conforme jusqu’en 2045. 14 panneaux solaires installés en 2023. Citerne d’eau de pluie de 3.000L avec groupe hydrophore. Chaudière à pellets de 2020 de marque « KEPO ». Production d’eau chaude sur un boiler de 200 L. Châssis en pvc double vitrage. Équipements cuisine : double-évier, taques induction, cuisinière électrique Smeg et hotte. Équipements SDB : baignoire, cabine de douche, meuble vasque, emplacement machine à laver et second WC. Publicité à caractère non contractuel et ne constituant pas une offre. Les propriétaires se réservent le droit de décision, d'acceptation ou non, sur toute(s) offre(s) soumise(s) pour leur bien. En savoir plus ?

3 Chambre(s) 189 1 Salle(s) de bain
Contacter
Détails
E-mail
Appeler
100 000 €

7600 Péruwelz

Bonne maison d’habitation 2 chambres, avec cour, sise à Péruwelz. Le bien, à rénover, comprend au rez-de-chaussée : un hall d’entrée, un salon, une salle à manger, une cuisine, une salle de bains et un wc. L’étage accueille un hall de nuit, 2 chambres et un dressing. Cave, grenier de rangement et cour. A voir ! Superficie de la parcelle : 1 are 13ca. RC : 218€. Prix indicatif : 100 000€. Caractéristiques techniques : Châssis pvc double vitrage. Foyer au mazout et au bois. Electricité à mettre en conformité. Plateforme à rénover. Fosse septique. Dimensions : Hall d’entrée : 11m². Salon : 15m². Salle à manger : 15m². Cuisine : 16m². Salle de bains : 8.5m². Cour : 13m². Cave : 4.5m². Chambre 1 : 15m². Ch 2 : 14.5m². Dressing : 5m². Publicité à caractère non contractuel et ne constituant pas une offre. Les propriétaires se réservent le droit de décision, d'acceptation ou non, sur toute(s) offre(s) soumise(s) pour leur bien. En savoir plus ?

2 Chambre(s) 105 1 Salle(s) de bain
Contacter
Détails
E-mail
Appeler
155 000 €

7600 Péruwelz

Bonne maison d’habitation mitoyenne située sur 2 ares 57 centiares dans une impasse à moins d’1 km du centre-ville de Péruwelz. Ce bien habitable de suite, offrant une superficie habitable de +/- 126 m², comprend un hall d’accueil avec un w-c séparé, un living ouvert sur la cuisine équipée ( 36 m²). A l’étage, sur 2 niveaux : un hall de nuit, 3 chambres ( 8,50 ;12,30 ;22,60 m²), un débarras de 9 m². Un jardin clôturé et un emplacement parking privatif sur la gauche avant d’arriver à la maison. Note : le bien est grevé d’une servitude de passage au profit de l’habitation du fond et pour l’accès à la prairie à l’arrière. OFFRE EN COURS AU PRIX DE 155 000€. RC : 183€ Libre d’occupation. Caractéristiques techniques : Toiture en tuiles mécaniques avec une sous-toiture en plastique + isolation laine de verre dans le gitage. Tout à l’égout. Électricité conforme jusqu’en 2042. Châssis en bois double vitrage. Chauffage : poêle à pellets + radiateurs électriques. Production d’eau chaude sur un boiler électrique (fonctionnement à vérifier). Équipements de la cuisine : double évier, taque électrique, lave-vaisselle, four, hotte. Équipements de la salle de bains à l’étage : double lavabo, baignoire, douche et w-c. Publicité à caractère non contractuel et ne constituant pas une offre. Les propriétaires se réservent le droit de décision, d'acceptation ou non, sur toute(s) offre(s) soumise(s) pour leur bien. En savoir plus ?

3 Chambre(s) 126 1 Salle(s) de bain
Contacter
Détails
E-mail
Appeler