Appartement te huur - Bressoux VBD35278

Boulevard Saucy 4020 Bressoux

750 € Realiseer uw droomproject.

Boulevard Saucy 4020 Bressoux

Ben je op zoek naar Appartement te huur - Bressoux?

Ontvang een e-mail wanneer er een nieuw zoekertje wordt gevonden!

Maak een alert aan

Beschrijving

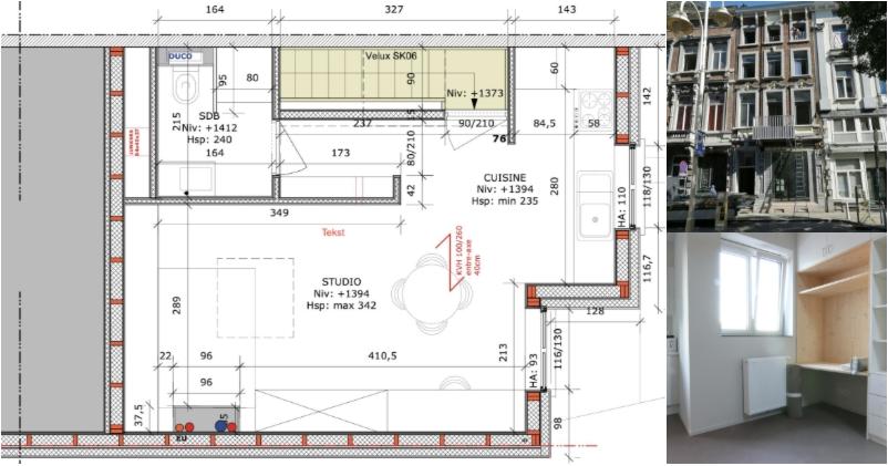
Deze charmante appartement te huur in Bressoux biedt een uitstekende gelegenheid om te wonen in een recente, gerenoveerde woning op een toplocatie. Het appartement bevindt zich in een voormalig historisch gebouw dat in 2021-22 volledig is gemoderniseerd volgens hedendaagse standaarden. Gelegen aan de Boulevard Saucy, ligt het op een strategische plek vlakbij de voetgangersbrug over de Maas bij het Grand Post-gebouw, een bekend symbool van het oude stadscentrum en een belangrijk punt binnen het nieuwe creatieve district van de Leopoldwijk. De ligging biedt gemakkelijke toegang tot de centrale universiteitsgebouwen en het nieuwe tramnetwerk, waardoor het verblijf zowel comfortabel als praktisch is. De buurt kenmerkt zich door haar levendige sfeer met talrijke winkels en restaurants in de directe omgeving, wat bijdraagt aan een dynamisch stadsleven. Het appartement zelf wordt volledig gemeubeld aangeboden en is ideaal voor wie op zoek is naar een comfortabele woonruimte zonder gedoe. Het biedt een praktische indeling zonder tuin, terras of balkon, maar met alle nodige voorzieningen voor een aangenaam verblijf. De huurprijs bedraagt €750 per maand, inclusief de kosten, en de waarborg bedraagt eveneens €750. Het appartement is momenteel niet verhuurd en zal beschikbaar zijn vanaf 1 januari 2026. Hoewel er geen airconditioning aanwezig is, maakt de moderne renovatie het verblijf nog aantrekkelijker. Huisdieren zijn niet toegestaan, wat bijdraagt aan een rustige leefomgeving. Het gebouw telt vier appartementen, waarvan het onderste verdiep wordt ingenomen door een Japanse lifestyle shop, wat bijdraagt aan de culinaire en culturele diversiteit van de buurt. Deze locatie vertegenwoordigt een unieke combinatie van historische charme en modern comfort in een bruisende omgeving. Of u nu werkt, studeert of gewoon wilt genieten van het stadsleven in Bressoux, dit appartement biedt een uitstekende uitvalsbasis. Voor wie op zoek is naar een centrale, goed gelegen woonruimte met gemakkelijke toegang tot openbaar vervoer en voorzieningen, is dit een ideale keuze. Neem vandaag nog contact op voor meer informatie of om een bezichtiging te plannen en ontdek waarom dit appartement de perfecte match kan zijn voor uw woonwensen.

* Deze tekst werd gegenereerd door artificiële intelligentie.

Toon alles Toon minder

Financiële details

  • Huurprijs: 750 €
  • Huurwaarborg: 750 €

Diensten


Extra informatie

Basisinformatie

Momenteel verhuurd

Nee

Beschikbaarheid

Vanaf 01/01/2026

Beschrijving interieur

Bemeubeld

Ja

Uitrustingen

Airconditioning

Nee

Huisdieren toegelaten

Nee

Buitenkenmerken

Tuin

Nee

Terras

Nee

Balkon

Nee

Stedenbouw en omgeving

Immovlan.be toont de gegevens die door de verkoper werden aangeleverd. Indien belangrijke of verplichte data ontbreken, is dit omdat deze ons niet werden verstrekt.

Ref. Immovlan: VBD35278 Ref. verkoper: 1201934 Meld fraude

Buurtinformatie

Kinderdagverblijven

Les Tifous

577 m 3' 625 m 1' 549 m 7' 549 m 7'

Kleuterscholen

Ecole Primaire D'Enseignement Spécialisé Libre - Castors B

465 m 1' 33'' 638 m 1' 15'' 465 m 6' 465 m 6'

Basisscholen

Ecole Primaire D'Enseignement Spécialisé Libre - Castors B

465 m 1' 33'' 638 m 1' 15'' 465 m 6' 465 m 6'

Middelbare scholen

Athenee Communal Maurice Destenay

36 m 7'' 36 m 5'' 36 m 26'' 36 m 26''

Snelwegen

A25 / E25: Luik - Wezet - (Maastricht, Nederland)

940 m 1' 25''

A602 / E25: A3 <-> A26

2,3 km 3'

Bus

TEC Liège - Verviers - 4 - Léopold - Robermont - Beyne-Heusay - Fléron

175 m 2' 6''

TEC Liège - Verviers - 24 - Léopold - Grivegnée - Malvaux - Les Bruyères

175 m 2' 6''

TEC Liège - Verviers - 6 - Guillemins - Médiacité - Bavière - Coronmeuse

206 m 2' 28''

Trams

TEC Liège - Verviers - T1 - Coronmeuse/Expo - St-Lambert - Guillemins-Standard

628 m 8'

Treinstations

Liège-Saint-Lambert / Lüttich-St.-Lambert / Luik-Sint-Lambertus

1,3 km 7' 1,2 km 1' 37'' 900 m 12' 1,1 km 14'

Luchthavens

Liège Airport

9,9 km 40' 11 km 10' 0 m 0''

Laadstations

Interparking Saint-Georges Car Park

1,2 km 1' 32''

Autodelen

Cambio - Van Beneden

854 m 4' 273 m 3' 273 m 3'

Fietsdeelsysteem

Blue-Bike - Gare De Liège-Guillemins

2,3 km 28'

Winkels

Proxy Delhaize Outremeuse

23 m 4'' 23 m 3'' 23 m 16'' 23 m 16''

Carrefour Express Liege Outremeuse

160 m 32'' 160 m 18'' 146 m 1' 45'' 146 m 1' 45''

Colruyt Liege (Constitution)

491 m 1' 55'' 492 m 41'' 445 m 5' 445 m 5'

Pretparken

Archéoforum

977 m 1' 17''

Musea

Musée Grétry

927 m 1' 39''

Activiteiten

Maison De La Science

950 m 1' 26''

Kajaks

Site De Kayak Les Remous

36,5 km 35'

Kastelen

Fort De Lantin

8,7 km 11'

Golfen

Golf Du Bernalmont

4,4 km 6'

Transporten

Snelweg A25 / E25 (Luik - Wezet - (Maastricht, Nederland)) is in 1 minuut te bereiken en de oprit naar A602 / E25 (A3 <-> A26) is slechts 3 minuten met de auto.In minder dan 2 minuten vind je een oplaadstation ("Interparking Saint-Georges Car Park") voor jouw elektrische auto.Bij het "Blue-Bike - Gare De Liège-Guillemins" station kun je een fiets huren op 28 minuten lopen.Voor jouw vakantie of om professionele redenen kun je Liège Airport in minder dan 10 minuten met de auto bereiken.Bij het "Cambio - Van Beneden" station, kan je een auto huren wanneer je er een nodig hebt, in minder dan 3 minuten lopen.Een SNCB-station ("Liège-Saint-Lambert / Lüttich-St.-Lambert / Luik-Sint-Lambertus") bevindt zich op 7 minuten afstand met de fiets, of 2 minuten met de auto.

Nabijgelegen steden

In 43 minuten kun je Herzogenrath bereiken. Sittard is 39 minuten rijden met de auto. Je hebt ongeveer 41 minuten nodig om Kerkrade te bereiken met de auto. Er zijn slechts 21 minuten nodig om Verviers te bereiken met de auto.

Openbaar vervoer

Je hebt toegang tot de bus TEC Liège - Verviers - 6 - Guillemins - Médiacité - Bavière - Coronmeuse, TEC Liège - Verviers - 24 - Léopold - Grivegnée - Malvaux - Les Bruyères, TEC Liège - Verviers - 4 - Léopold - Robermont - Beyne-Heusay - Fléron met een halte op minder dan 2 minuten lopen.Er is een tramlijn in de omgeving: TEC Liège - Verviers - T1 - Coronmeuse/Expo - St-Lambert - Guillemins-Standard met een halte op 8 minuten loopafstand.

Boodschappen doen

Je hebt de keuze tussen verschillende nabijgelegen supermarkten: Proxy Delhaize Outremeuse (1 minuut lopen of 1 minuut rijden), Carrefour Express Liege Outremeuse (2 minuten lopen of 1 minuut rijden), Colruyt Liege (Constitution) (5 minuten lopen of 1 minuut rijden).

Toerisme

Er is een interessante activiteit te doen in de omgeving: "Maison De La Science", 1 minuut rijden.Het "Fort De Lantin" kasteel is 11 minuten rijden."Golf Du Bernalmont" STRONG]golf is bereikbaar in 6 minuten met de auto.Er is een pretpark 1 minuut afstand met de auto: "Archéoforum".Het "Musée Grétry" museum is vlakbij (2 minuten rijden).Er is een kayakverhuur op 35 minuten rijden: "Site De Kayak Les Remous".

Onderwijs

De dichtstbijzijnde middelbare school is "Athenee Communal Maurice Destenay" en bevindt zich op 1 minuut loopafstand.Je kunt dichtbij een kleuterschool en basisschool vinden: "Ecole Primaire D'Enseignement Spécialisé Libre - Castors B", 1 minuut afstand met de auto.Les Tifous is het meest dichtbij kinderdagverblijf: slechts 7 minuten lopen.

Toon alles Toon minder