Appartement te koop - Zedelgem RBG45620

Sint-Laurentiusstraat 36 2.01 8210 Zedelgem

359 500 €

  • 2 Slaapkamer(s)
  • 98
  • 14 m² Terras
Sint-Laurentiusstraat 36 2.01 8210 Zedelgem

Ben je op zoek naar Appartement te koop - Zedelgem?

Ontvang een e-mail wanneer er een nieuw zoekertje wordt gevonden!

Maak een alert aan

Beschrijving

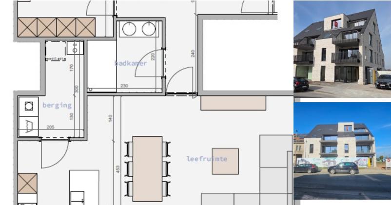
Residentie De KosterIn het centrum van Zedelgem bouwen we binnenkort Residentie De Koster met 7 entiteiten.Het gebouw zal bestaan uit een handelsgelijkvloers met 6 grote appartementen tot maar liefst 173 m².Appartement 2.01 is gelegen op de tweede verdieping en heeft een oppervlakte van 98 m². Er zijn 2 slaapkamers voorzien en badkamer met douche en dubbele lavabo. De leefruimte geniet van veel lichtinval door de raampartijen die uitgeven op het terras van 14m².Centrale ligging en mobiliteitDankzij de ligging in het centrum van Zedelgem zijn winkels en andere faciliteiten in de onmiddellijke omgeving. In de buurt zijn tal van recreatie- en ontspanningsmogelijkheden.Zedelgem is bovendien uitstekend bereikbaar dankzij de vele invalswegen en ligt Brugge op een boogscheut! Er is de mogelijkheid om een garage aan te kopen.In de prijs zijn 2 autostaanplaatsen inbegrepen.Energiezuinig projectResidentie De koster zal naast ruime appartementen ook oog hebben voor het energiezuinig verwarmen en koelen van de appartementen. Er wordt een geothermische installatie voorzien waarbij alle appartementen opgewarmd of gekoeld kunnen worden met de grond als warmtebatterij.Afwerking op maat met de nadruk op kwaliteit.Bij al onze nieuwbouwprojecten staat kwaliteit voorop: kwaliteit in ontwerp en typologie, kwaliteit in materiaalkeuze, kwaliteit in afwerking en kwaliteit in dienstverlening.Elk appartement kan afgewerkt worden naar eigen smaak en wensen. Je persoonlijke klantenbegeleider neemt je mee op sleeptouw doorheen het hele traject en ontzorgt van A tot Z. Toon alles Toon minder

Financiële details

  • Prijs: 359 500 €
  • BTW: Nee

Diensten


Extra informatie

Basisinformatie

Staat van het zoekertje

Nieuw pand

Momenteel verhuurd

Nee

Bouwjaar

2023

Beschrijving interieur

Aantal slaapkamers

2

Bewoonbare opp.

98 m²

Uitrustingen

Lift

Ja

Buitenkenmerken

Verdieping van het appartement

2

Aantal verdiepingen

3

Tuin

Nee

Terras

Ja

Oppervlakte terras

14 m²

Gelijkvormigheidscertificaten en attesten

Certificaat - elektrische installatie

Geen certificaat

Stedenbouw en omgeving

Stedenbouwkundige bestemming

Woongebied (residentieel, stedelijk of landelijk)

Type overstromingsgevoeligheid

(Niet van toepassing)

Afgebakend overstromingsgebied

(Niet van toepassing)

Immovlan.be toont de gegevens die door de verkoper werden aangeleverd. Indien belangrijke of verplichte data ontbreken, is dit omdat deze ons niet werden verstrekt.

Ref. Immovlan: RBG45620 Ref. verkoper: 3400906 Meld fraude

Buurtinformatie

Kinderdagverblijven

Tamara En Danny

429 m 2' 39'' 474 m 52'' 429 m 5' 429 m 5'

Kleuterscholen

Vrije Basisschool Zedelgem Dorp

38 m 7'' 38 m 4'' 38 m 27'' 38 m 27''

Basisscholen

Vrije Basisschool Zedelgem Dorp

38 m 7'' 38 m 4'' 38 m 27'' 38 m 27''

Middelbare scholen

Spes Nostra Instituut

3 km 12' 3,1 km 5' 2,4 km 6' 3 km 36'

Snelwegen

A10 / E40: Brussel - Aalst - Gent - Brugge - Oostende

5,2 km 7'

A17 / E403: Brugge - Kortrijk - Doornik

5,4 km 7'

Bus

De Lijn - 703 - Brugge - Loppem - Zedelgem - Aartrijke - Koekelare - Leke

482 m 6'

De Lijn - 70a - Torhout - Aartrijke - Zedelgem - Loppem - Brugge

476 m 6'

De Lijn - 70b - Torhout - Veldegem - Zedelgem - Loppem - Brugge

476 m 6'

Treinstations

Zedelgem

3,2 km 12' 3,2 km 5' 2,8 km 6' 3,2 km 38'

Luchthavens

Ostend-Bruges International Airport

22,4 km 1º 27' 25,3 km 22' 0 m 0''

Laadstations

Salons Denotter

3,3 km 5'

Autodelen

Cambio - Kerk St Andries

7,9 km 27' 0 m 0'' 7,9 km 1º 35'

Winkels

Colruyt Zedelgem

83 m 16'' 83 m 9'' 83 m 59'' 83 m 59''

Aldi Zedelgem

2,3 km 10' 2,4 km 4' 1,9 km 6' 2,3 km 28'

Delhaize Zedelgem

2,6 km 10' 2,7 km 4' 2,3 km 5' 2,6 km 31'

Golfen

Royal Ostend Golf Club

23,8 km 24'

Boodschappen doen

Dit pand, dicht bij Sint-Laurentiusstraat, profiteert van een goed verbonden woonomgeving met voorzieningen en mobiliteit in de buurt.De buurt biedt een ruime keuze aan supermarkten voor uw dagelijkse behoeften: Colruyt Zedelgem (1 minuut lopen of 1 minuut rijden), Aldi Zedelgem (28 minuten lopen of 4 minuten rijden), Delhaize Zedelgem (4 minuten rijden).

Openbaar vervoer

Gebruikers van het openbaar vervoer zullen de toegang tot de buslijnen De Lijn - 70a - Torhout - Aartrijke - Zedelgem - Loppem - Brugge, De Lijn - 703 - Brugge - Loppem - Zedelgem - Aartrijke - Koekelare - Leke, De Lijn - 70b - Torhout - Veldegem - Zedelgem - Loppem - Brugge met een halte op minder dan 6 minuten lopen waarderen.

Nabijgelegen steden

Moet u naar Roeselare voor werk of vrije tijd? Reken op ongeveer 24 minuten met de auto. Moet u naar Oostende? Het duurt slechts 17 minuten met de auto. Kortrijk blijft vlot bereikbaar met de auto, op 34 minuten rijden.

Onderwijs

Op slechts 1 minuut fietsen brengt "Vrije Basisschool Zedelgem Dorp" een kleuterschool / basisschool samen, ideaal voor gezinsritjes.De rit naar het kinderdagverblijf "Tamara En Danny" past makkelijk in uw dagelijkse routine: reken op 1 minuut met de auto.Op korte rijafstand is "Spes Nostra Instituut" (middelbare school) bereikbaar in 5 minuten.

Toerisme

Wil je golf spelen? U vindt "Royal Ostend Golf Club" op 24 minuten afstand.

Transporten

Regelmatige reizigers, noteer: het dichtstbijzijnde treinstation is "Zedelgem", op 5 minuten met de auto of 6 minuten met het openbaar vervoer.Voor jouw vakantie of om professionele redenen kun je Ostend-Bruges International Airport in minder dan 22 minuten met de auto bereiken.Ideaal voor verplaatsingen met de auto: de A10 / E40 (Brussel - Aalst - Gent - Brugge - Oostende) en A17 / E403 (Brugge - Kortrijk - Doornik) snelwegen liggen beide op 7 minuten.Moet je jouw elektrische auto opladen? Het dichtstbijzijnde laadstation is 5 minuten rijden.De nabijheid van vervoer, winkels en diensten maakt het dagelijks leven in dit gebied gemakkelijker.

Toon alles Toon minder

8 / 10

Openbaar vervoer

Redelijk aanbod

Onderwijs

Redelijk bereikbaar te voet of met de fiets

Winkels & diensten

Zeer goed bereikbaar te voet of met de fiets

Ontspanning, sport & cultuur

Goed bereikbaar te voet of met de fiets

Gezondheid & zorg

Redelijk bereikbaar te voet of met de fiets