Project: Ruime nieuwbouwwoningen Zandvoordsestraat Oudenburg - Oudenburg 1867247-423441db-d74c-4c4c-a01e-2c4771f57a7d

Zandvoordsestraat 125 0 8460 Oudenburg

331 250 €

331 250 €
166 - 166
3 Slaapkamer(s)
2 unit(s)
Zandvoordsestraat 125 0 8460 Oudenburg

Beschrijving

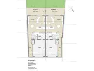
Ruime nieuwbouwwoningen te koop te Oudenburg. Momenteel mogelijkheid tot aankoop van de woning aan 6% BTW ipv 21% ! Grondwaarde wordt belast aan 10% registratierechten Constructie wordt belast aan 6% of 21% BTW* * kopers moeten aan de voorwaarden voldoen voor de 6% regel - minstens 5 jaar hun domicilie houden in de nieuwe woning - enige eigendom (uitzondering bij verkoop huidige woning) Geldig voor alle facturen tem december 2023. Contacteer ons snel voor meer info hieromtrent! De woningen hebben op het gelijkvloers een zeer ruime tuin, met mogelijkheid tot aanleggen terras (goeie oriëntatie). Verder bestaat de benedenverdieping voor elke woning uit een garage (extra bergruimte onder de trap), apart toilet en extra bergruimte die uitgeeft op de keuken. De keuken wordt volledig ingericht, maar kan door de koper nog aan zijn eigen wensen aangepast worden. Daarnaast is nog de open leefruimte met zicht op de tuin. Via de trap komt men uit op de eerste verdieping. Deze bestaat nog eens uit een zeer ruime technische ruimte/berging. De badkamer is voorzien van een wastafel, inloopdouche en opbergruimte. Zoals de keuken kan de koper dit ook volledig naar zijn eigen wens invullen. Een apart toilet mag hier ook zeker niet ontbreken. Daarnaast zijn er nog 3 slaapkamers voorzien die elk op zijn beurt, ruimte bieden voor een dubbel bed en een kast of bureau Toon alles Toon minder

7,2 / 10

Openbaar vervoer

Redelijk aanbod

Onderwijs

Slecht bereikbaar te voet of met de fiets

Winkels & diensten

Redelijk bereikbaar te voet of met de fiets

Ontspanning, sport & cultuur

Redelijk bereikbaar te voet of met de fiets

Gezondheid & zorg

Redelijk bereikbaar te voet of met de fiets


Alle panden in dit project

Huis 3 Slaapkamers

Immovlan.be toont de gegevens die door de verkoper werden aangeleverd. Indien belangrijke of verplichte data ontbreken, is dit omdat deze ons niet werden verstrekt.
Laatste aanpassing 18/08/2025