Bouwgrond te koop - Opwijk RWC38147

Steenweg op Aalst 1745 Opwijk

265 000 € Hebt u een renovatieproject?

  • 3081 m² Oppervlakte terrein
Steenweg op Aalst 1745 Opwijk

Ben je op zoek naar Bouwgrond te koop - Opwijk?

Ontvang een e-mail wanneer er een nieuw zoekertje wordt gevonden!

Maak een alert aan

Beschrijving

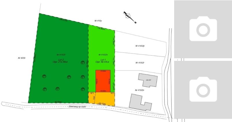
Bouwgrond en boomgaard gelegen te Steenweg op Aalst – Opwijk. Oppervlakte bouwgrond: 9a43ca; oppervlakte boomgaard: 21a38ca. Totale oppervlakte: 30a81ca.
De maximale bouwdiepte bedraagt 15m op het gelijkvloers en 12m op de verdieping.
De vloerpas moet zich bevinden tussen de 30cm en 50cm boven de as van de voorliggende weg of het maaiveld.
Kroonlijsthoogte van het hoofdgebouw bedraagt minimaal 5,50m en maximaal 6m.
De helling van de dakvlakken ligt tussen de 25° en 45° (25% van de dakoppervlakte mag een afwijkende dakhelling hebben).
Bijgebouw is toegestaan met een maximale oppervlakte van 9m² en de kroonlijsthoogte bedraagt maximaal 2,50m.
Het wordt opgericht op 21m van de voorbouwlijn van het hoofdgebouw en op minimaal 2m van de perceelsgrens.
P-score: A.
Gelegen nabij het centrum van Opwijk. Vlotte verbinding naar Aalst – Dendermonde – Lebbeke.

Toon alles Toon minder

Financiële details

  • Prijs: 265 000 €

Diensten


Extra informatie

Buitenkenmerken

Totale grondoppervlakte

3081 m²

Bebouwbare oppervlakte

150 m²

Stedenbouw en omgeving

Type overstromingsgevoeligheid

niet gelegen in een overstromingsgebied

Afgebakend overstromingsgebied

(Niet van toepassing)

Immovlan.be toont de gegevens die door de verkoper werden aangeleverd. Indien belangrijke of verplichte data ontbreken, is dit omdat deze ons niet werden verstrekt.

Ref. Immovlan: RWC38147 Ref. verkoper: 4328 Meld fraude

Buurtinformatie

Kinderdagverblijven

Kinderopvang 'T Circuske

454 m 1' 30'' 454 m 34'' 454 m 5' 454 m 5'

Kleuterscholen

Vrije Basisschool 'T Luikertje

909 m 3' 1,6 km 2' 9'' 734 m 11' 909 m 11'

Basisscholen

Vrije Basisschool 'T Luikertje

909 m 3' 1,6 km 2' 9'' 734 m 11' 909 m 11'

Middelbare scholen

Vrij Katholiek Onderwijs Opwijk - Middenschool

2,1 km 9' 2 km 2' 44'' 1,7 km 16' 2,1 km 25'

Snelwegen

A10 / E40: Brussel - Aalst - Gent - Brugge - Oostende

10,5 km 12'

Bus

De Lijn - 41 - Aalst - Opwijk - Londerzeel

231 m 2' 46''

De Lijn - 340 - Belbus Faluintjes - Opwijk

231 m 2' 46''

De Lijn - 44 - Aalst - Meldert - Opwijk - Londerzeel

230 m 2' 45''

Treinstations

Opwijk

2,7 km 10' 2,7 km 4' 2,3 km 14' 2,7 km 32'

Luchthavens

Brussels Airport

27,8 km 1º 37' 31,5 km 28' 0 m 0''

Laadstations

Battmobiel Dendermondsesteenweg

4,5 km 5'

Autodelen

Cambio - Hof Ten Hemelrijk

2,3 km 8' 2 km 19' 2,3 km 28'

Winkels

Delhaize Opwijk

556 m 1' 51'' 556 m 39'' 467 m 7' 548 m 7'

Carrefour Market Opwijk

1,5 km 5' 1,5 km 1' 58'' 1,4 km 13' 1,5 km 18'

Spar Opwijk

2,5 km 8' 2,5 km 4' 2,3 km 16' 2,5 km 30'

Pretparken

Site Mini-Europe

19,1 km 20'

Musea

Musée Du Design Brussels

18,8 km 20'

Activiteiten

Centre Sortilège.be

24,9 km 25'

Kastelen

Porte De Hal

23,5 km 28'

Golfen

Golfclub Krokkebaas

7,9 km 11'

Boodschappen doen

Er zijn verschillende supermarkten in de buurt: Delhaize Opwijk (7 minuten lopen of 1 minuut rijden), Carrefour Market Opwijk (18 minuten lopen of 2 minuten rijden), Spar Opwijk (30 minuten lopen of 4 minuten rijden).

Transporten

Voor jouw vakantie of om professionele redenen kun je Brussels Airport in minder dan 28 minuten met de auto bereiken.Wil je geen auto bezitten, maar heb je er toch af en toe een nodig? Er is het "Cambio - Hof Ten Hemelrijk" station waar je een gedeeld voertuig kunt huren op slechts 8 minuten fietsen.Het dichtstbijzijnde treinstation is "Opwijk": bereikbaar in 4 minuten met de auto, of 14 minuten met het openbaar vervoer.De A10 / E40 (Brussel - Aalst - Gent - Brugge - Oostende) snelweg is in 12 minuten te bereiken.Moet je jouw elektrische auto opladen? Het dichtstbijzijnde laadstation ("Battmobiel Dendermondsesteenweg") is 5 minuten rijden.

Openbaar vervoer

Dit eigendom wordt bediend door verschillende buslijnen zoals De Lijn - 340 - Belbus Faluintjes - Opwijk, De Lijn - 44 - Aalst - Meldert - Opwijk - Londerzeel, De Lijn - 41 - Aalst - Opwijk - Londerzeel met een station gelegen op 3 minuten loopafstand.

Nabijgelegen steden

Het kost je 30 minuten om naar Dendermonde te fietsen. In 33 minuten kun je Beveren bereiken. Er zijn slechts 27 minuten nodig om Sint-Niklaas te bereiken met de auto. Je hebt ongeveer 36 minuten nodig om Mechelen te bereiken met de auto.

Onderwijs

Je vindt een kinderdagverblijf: "Kinderopvang 'T Circuske", op 1 minuut met de auto.Als je op zoek bent naar een middelbare school, "Vrij Katholiek Onderwijs Opwijk - Middenschool" is 25 minuten te voet.Er is een nabijgelegen kleuterschool en basisschool: "Vrije Basisschool 'T Luikertje", 3 minuten afstand met de fiets.

Toerisme

Het "Musée Du Design Brussels" museum is te bereiken in 20 minuten.Het "Porte De Hal"kasteel is slechts 28 minuten rijden."Golfclub Krokkebaas" STRONG]golf is bereikbaar in 11 minuten met de auto.Er is een interessante activiteit te doen in de omgeving: "Centre Sortilège.be", 25 minuten rijden.U vindt een "Site Mini-Europe" op 20 minuten afstand met de auto.

Toon alles Toon minder

7,5 / 10

Openbaar vervoer

Redelijk aanbod

Onderwijs

Redelijk bereikbaar te voet of met de fiets

Winkels & diensten

Redelijk bereikbaar te voet of met de fiets

Ontspanning, sport & cultuur

Redelijk bereikbaar te voet of met de fiets

Gezondheid & zorg

Slecht bereikbaar te voet of met de fiets