Handelspand te huur - Appelterre-Eichem RBU67985

Neerstraat 103 9400 Appelterre-Eichem

2 416 €

  • 604
Neerstraat 103 9400 Appelterre-Eichem

Ben je op zoek naar Handelspand te huur - Appelterre-Eichem?

Ontvang een e-mail wanneer er een nieuw zoekertje wordt gevonden!

Maak een alert aan

Beschrijving

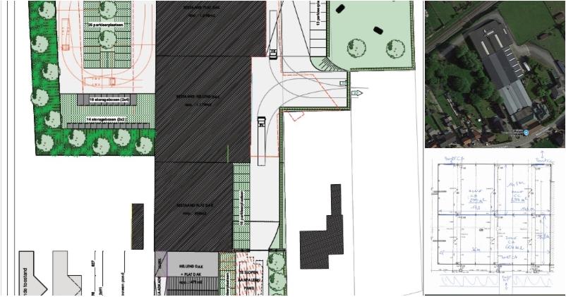
In een binnenkort volledig vernieuwd industriepark/KMO zone bieden wij meerdere magazijnen aan die als loods, opslagruimte, fabricageruimte en/of ateliers kunnen gebruikt worden.

Er is de mogelijkheid om meerdere units tegelijk te huren, van 299m², 604m² en +1.000m². Ook bureauruimte / kantoren van 361m² zijn beschikbaar.
Garageboxen / opslagplaats van 32 en 38m² zijn tevens beschikbaar.
Al deze units zjn ook apart raadpleegbaar op ERA.BE.

Gelegen in Appelterre, vlakbij invalswegen richting Geraardsbergen, Brakel en Ninove,
Op het domein worden nog gemeenschappelijke tuin, parkeerplaatsen en nieuwe bureauruimtes.

Het gebouw is voorzien van allerlei moderne technische installaties.
Toegangscontrole via camerabewaking.
Het is mogelijk om extra parkeerplaatsen te huren. Deze zullen (deels) worden voorzien van laadpalen.
Voor de voormalige tabaksfabriek zijn milieuvergunningen voor klasse 3 verleend. Toon alles Toon minder

Financiële details

  • Huurprijs: 2 416 €

Diensten


Extra informatie

Basisinformatie

Staat van het zoekertje

Normaal

Beschikbaarheid

Onmiddellijk

Beschrijving interieur

Aantal slaapkamers

0

Kelder

Nee

Veranda

Nee

Uitrustingen

Lift

Nee

Toegang voor mindervaliden

Nee

Buitenkenmerken

Totale grondoppervlakte

604 m²

Gelijkvormigheidscertificaten en attesten

Certificaat - elektrische installatie

Niet van toepassing

Stedenbouw en omgeving

Immovlan.be toont de gegevens die door de verkoper werden aangeleverd. Indien belangrijke of verplichte data ontbreken, is dit omdat deze ons niet werden verstrekt.

Ref. Immovlan: RBU67985 Ref. verkoper: 1434355 Meld fraude

Buurtinformatie

Kinderdagverblijven

Lindekindjes

3 km 11' 3,7 km 5' 2,6 km 27' 3 km 36'

Kleuterscholen

Go! Basisschool Klim Op Zandbergen

1 km 3' 1 km 1' 28'' 566 m 12' 1 km 12'

Basisscholen

Go! Basisschool Klim Op Zandbergen

1 km 3' 1 km 1' 28'' 566 m 12' 1 km 12'

Middelbare scholen

Freinetschool Keerpunt

3,7 km 16' 4 km 6' 3,1 km 17' 3,7 km 44'

Bus

De Lijn - 70 - Lessines - Geraardsbergen - Onkerzele - Ninove

347 m 4'

De Lijn - 70 - Ninove - Onkerzele - Geraardsbergen - Lessines

363 m 4'

De Lijn - 395 - Brakel - Lierde - Ophasselt - Voorde - Ninove

1,6 km 19'

Treinstations

Appelterre

1 km 5' 752 m 1' 30'' 621 m 12' 1 km 12'

Laadstations

Renault Valckenier Ninove

3,3 km 5'

Autodelen

Cambio - Bevrijdingslaan

5,1 km 42' 4,6 km 33' 5,1 km 1º 2'

Winkels

Spar Appelterre-Eichem

1,4 km 5' 1,6 km 2' 22'' 1 km 17' 1,4 km 17'

Jumbo Ninove

4,2 km 21' 5,1 km 6' 3,5 km 32' 4,1 km 50'

Lidl Ninove

4,1 km 20' 4,9 km 6' 3,5 km 33' 4,1 km 49'

Pretparken

Maison Des Géants

28,9 km 29'

Musea

Espace Gallo-Romain

28,8 km 29'

Religieuze monumenten

Hôpital Notre-Dame À La Rose

18,5 km 20'

Golfen

Golf Club Enghien

19,5 km 24'

Onderwijs

De dichtstbijzijnde middelbare school heet "Freinetschool Keerpunt" en is 6 op enkele minuten afstand met de auto.Lindekindjes is het dichtstbijzijnde kinderdagverblijf: slechts 11 minuten afstand met de fiets.Er is een nabijgelegen kleuterschool en basisschool: "Go! Basisschool Klim Op Zandbergen", 3 minuten afstand met de fiets.

Nabijgelegen steden

In 35 minuten kun je Dendermonde bereiken. Beveren is 58 minuten rijden met de auto. Je hebt ongeveer 46 minuten nodig om La Louvière te bereiken met de auto. Er zijn slechts 19 minuten nodig om Aalst te bereiken met de auto.

Openbaar vervoer

Er zijn verschillende buslijnen in de buurt van deze eigendom: De Lijn - 70 - Lessines - Geraardsbergen - Onkerzele - Ninove, De Lijn - 70 - Ninove - Onkerzele - Geraardsbergen - Lessines met een station gelegen op 4 minuten loopafstand, De Lijn - 395 - Brakel - Lierde - Ophasselt - Voorde - Ninove met een halte op minder dan 19 minuten lopen.

Transporten

In minder dan 2 minuten, met de auto, kan je aan "Appelterre" treinstation zijn.Rijd je in een elektrisch voertuig of overweeg je dat? Het dichtstbijzijnde laadstation ("Renault Valckenier Ninove") is slechts 5 minuten verwijderd met de auto.Op ongeveer 42 minuten fietsen vind je station "Cambio - Bevrijdingslaan".

Toerisme

Binnen 29 minuten kunt u het "Espace Gallo-Romain" museum bereiken.De "Golf Club Enghien" golf bereikt u in 24 minuten met de auto.Het "Hôpital Notre-Dame À La Rose" ligt op 20 minuten afstand met de auto.Een pretpark is 29 minuten met de auto : "Maison Des Géants".

Boodschappen doen

Je hebt de keuze tussen verschillende nabijgelegen supermarkten: Spar Appelterre-Eichem (17 minuten lopen of 2 minuten rijden), Jumbo Ninove (6 minuten rijden), Lidl Ninove (6 minuten rijden).

Toon alles Toon minder

6,5 / 10

Openbaar vervoer

Redelijk aanbod

Onderwijs

Slecht bereikbaar te voet of met de fiets

Winkels & diensten

Slecht bereikbaar te voet of met de fiets

Ontspanning, sport & cultuur

Redelijk bereikbaar te voet of met de fiets

Gezondheid & zorg

Slecht bereikbaar te voet of met de fiets