Verkavelingsgrond te koop - Dilsen-Stokkem RBU00056

Rijksweg 715 3650 Dilsen-Stokkem

895 000 € Hebt u een renovatieproject?

  • 7673 m² Oppervlakte terrein
Rijksweg 715 3650 Dilsen-Stokkem

Ben je op zoek naar Verkavelingsgrond te koop - Dilsen-Stokkem?

Ontvang een e-mail wanneer er een nieuw zoekertje wordt gevonden!

Maak een alert aan

Beschrijving

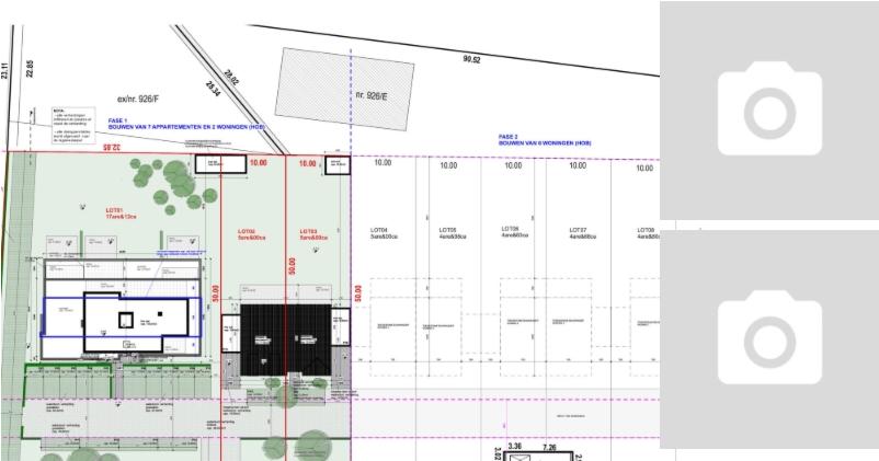
PROJECTGROND VAN 76A73CA MET VERGUNDE PLANNEN GELEGEN TE DILSEN-STOKKEM.

Deze projectgrond is gunstig en vlot bereikbaar gelegen langs de Rijksweg te Dilsen-Stokkem (Rotem).
Het perceel is heden bebouwd met een af te breken woning en bijgebouw.

Volgende vergunningen zijn reeds afgeleverd:

1/ Omgevingsvergunning voor het verkavelen van gronden
Er is een vergunning afgeleverd strekkende tot het verkavelen van gronden welke tevens ook het slopen van een woning + loods en het kappen van bomen omvat.

Deze vergunning voorziet in de verkaveling van een lot bestemd voor appartementsbouw en 8 loten bestemd voor eengezinswoningen (2x4 half open bebouwingen).

De voorwaarden van deze vergunning dienen nog voldaan te worden alvorens de verkavelingsakte verleden kan worden: meer info via ons kantoor.

2/ Omgevingsvergunning voor het bouwen van 7 appartementen en 2 eengezinswoningen
Bovendien is er vergunning afgeleverd voor het bouwen van 7 appartementen en 2 eengezinswoningen.

Deze vergunning is afgeleverd dd. 03/11/2023 en komt te vervallen op 03/11/2025. Meer info en een afschrift van de vermelde vergunningen zijn op aanvraag te bekomen.

---
Bekijkt u deze advertentie via een aanverwante vastgoedsite, surf dan zeker naar onze website www.N78vastgoed.be voor een uitgebreide beschrijving en foto's. Meer info: Tel +32 (0)89 86 18 88 of Contact . Toon alles Toon minder

Financiële details

  • Prijs: 895 000 €

Diensten


Extra informatie

Basisinformatie

Beschikbaarheid

Bij akte

Buitenkenmerken

Totale grondoppervlakte

7673 m²

Stedenbouw en omgeving

Bouwvergunning verleend

Ja

Verkavelingsvergunning verleend

Ja

Voorkooprecht

Nee

P-Score

B

Type overstromingsgevoeligheid

niet gelegen in een overstromingsgebied

Afgebakend overstromingsgebied

(Niet van toepassing)

Watergevoelige openruimtegebieden (WORG)

Nee

Immovlan.be toont de gegevens die door de verkoper werden aangeleverd. Indien belangrijke of verplichte data ontbreken, is dit omdat deze ons niet werden verstrekt.

Ref. Immovlan: RBU00056 Ref. verkoper: 6798158 Meld fraude

Buurtinformatie

Kinderdagverblijven

Kinderdagverblijf Rotem

918 m 5' 2 km 1' 57'' 451 m 5' 451 m 5'

Kleuterscholen

Stedelijke Basisschool - De Horizon

1,1 km 4' 2 km 2' 5'' 495 m 6' 495 m 6'

Basisscholen

Stedelijke Basisschool - De Horizon

1,1 km 4' 2 km 2' 5'' 495 m 6' 495 m 6'

Middelbare scholen

Instituut Maria Koningin

1 km 4' 1,8 km 2' 8'' 607 m 7' 607 m 7'

Bus

De Lijn - 636 - Lanaken - Maaseik

57 m 41''

De Lijn - 63 - Maastricht - Maaseik

57 m 41''

De Lijn - 178 - Brussel - Maaseik

57 m 41''

Laadstations

Peugeot Garage Geebelen A.

7 km 7'

Winkels

Aldi Dilsen-Stokkem

2,3 km 8' 3,3 km 3' 1,6 km 16' 1,7 km 20'

Lidl Dilsen-Stokkem

3 km 11' 4 km 4' 2,3 km 10' 2,4 km 29'

Carrefour Market Dilsen

3,4 km 12' 4,5 km 5' 2,3 km 10' 2,8 km 33'

Golfen

Spiegelven Golfclub

19,9 km 17'

Onderwijs

Er is een nabijgelegen kleuterschool en basisschool: "Stedelijke Basisschool - De Horizon", 4 minuten afstand met de fiets.Kinderdagverblijf Rotem is het meest dichtbij kinderdagverblijf: slechts 5 minuten lopen.Je kunt een nabij middelbare school vinden: "Instituut Maria Koningin", in minder dan 2 minuten met de auto.

Toerisme

De "Spiegelven Golfclub"golfbaanligt op 17 minuten afstand.

Nabijgelegen steden

Roermond is slechts 25 minuten met de auto. Herzogenrath is 39 minuten rijden met de auto. Er zijn slechts 20 minuten nodig om Sittard te bereiken met de auto. In slechts 27 minuten kun je Weert bereiken.

Boodschappen doen

Je hebt de keuze tussen verschillende nabijgelegen supermarkten: Aldi Dilsen-Stokkem (20 minuten lopen of 3 minuten rijden), Lidl Dilsen-Stokkem (29 minuten lopen of 4 minuten rijden), Carrefour Market Dilsen (5 minuten rijden).

Transporten

Rijd je in een elektrisch voertuig of overweeg je dat? Het dichtstbijzijnde laadstation ("Peugeot Garage Geebelen A.") is slechts 7 minuten verwijderd met de auto.

Openbaar vervoer

Deze eigendom bevindt zich in de buurt van verschillende buslijnen : De Lijn - 178 - Brussel - Maaseik, De Lijn - 636 - Lanaken - Maaseik, De Lijn - 63 - Maastricht - Maaseik met een halte op 1 minuut loopafstand.

Toon alles Toon minder

7,5 / 10

Openbaar vervoer

Matig aanbod

Onderwijs

Redelijk bereikbaar te voet of met de fiets

Winkels & diensten

Redelijk bereikbaar te voet of met de fiets

Ontspanning, sport & cultuur

Redelijk bereikbaar te voet of met de fiets

Gezondheid & zorg

Slecht bereikbaar te voet of met de fiets