Grond te koop - Rollingen RBR89091

Rue Gustave Wilhelmy 47 7558 Rollingen

628 000 €

Rue Gustave Wilhelmy 47 7558 Rollingen

Beschrijving

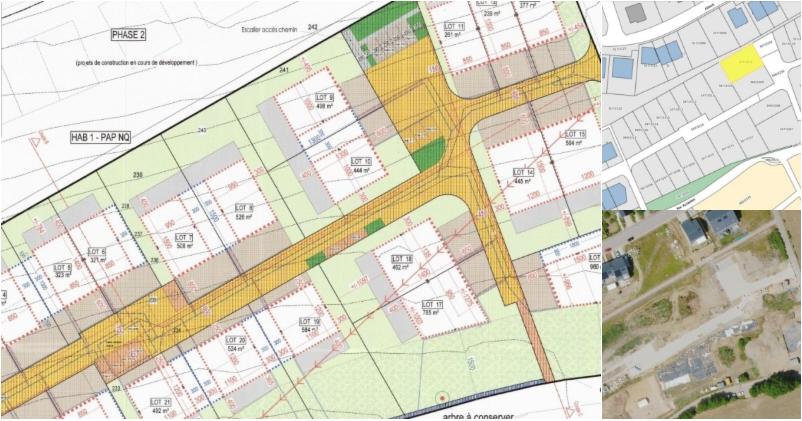
Te koop: Een prachtig bouwperceel gelegen aan de Rue Gustave Wilhelmy 47 in Rollingen, met een oppervlakte van 4a 98ca. Dit perceel bevindt zich in een nieuw ontwikkelde wijk, wat een uitstekende gelegenheid biedt voor het realiseren van uw droomhuis. Het unieke aan dit aanbod is dat er geen verplichte bouwcontracten zijn, waardoor u volledige vrijheid heeft om het ontwerp en de bouw van uw woning naar eigen inzicht te plannen. Het perceel biedt de mogelijkheid om een vrijstaande eengezinswoning te bouwen, die aan alle vier zijden vrij staat. De maximale afmetingen voor de woning bedragen 10m breedte en 13m diepte, wat voldoende ruimte biedt voor een ruime indeling en moderne architectonische ontwerpen. Tevens is er ruimte om een extra garage te bouwen, ideaal voor extra parkeergelegenheid of opslagruimte. Rollingen is onderdeel van de gemeente Mersch en staat bekend om zijn rustige woonomgeving en goede bereikbaarheid. Het biedt een perfecte balans tussen landelijke charme en stedelijke voorzieningen, met nabijgelegen scholen, winkels en openbaar vervoeropties. Met een vraagprijs van 648 000 € is dit perceel een uitstekende investering voor wie op zoek is naar een hoogwaardige bouwlocatie.

* Deze tekst werd gegenereerd door artificiële intelligentie.

Toon alles Toon minder

Financiële details

  • Prijs: 628 000 €

Diensten


Extra informatie

Basisinformatie

Momenteel verhuurd

Nee

Stedenbouw en omgeving

Type overstromingsgevoeligheid

(Niet van toepassing)

Afgebakend overstromingsgebied

(Niet van toepassing)

Immovlan.be toont de gegevens die door de verkoper werden aangeleverd. Indien belangrijke of verplichte data ontbreken, is dit omdat deze ons niet werden verstrekt.

Ref. Immovlan: RBR89091 Ref. verkoper: House Concept S.A. Meld fraude

Buurtinformatie

Treinstations

Mersch

1,5 km 9' 1,9 km 3' 0 m 0'' 1,5 km 18'

Musea

Musée Gaspar

26,1 km 27'

Transporten

Wonen in Mersch biedt een praktische woonomgeving dankzij de nabijheid van scholen, winkels en openbaar vervoer.Een SNCB-station bevindt zich op 9 minuten afstand met de fiets, of 3 minuten met de auto.

Nabijgelegen steden

Luxembourg-Kirchberg is heel dichtbij: slechts 16 minuten met de auto volstaan. Moet u naar Esch-sur-Alzette? Het duurt ongeveer 30 minuten met de auto. Automobilisten bereiken Thionville in 39 minuten, handig voor het dagelijks leven.

Toerisme

Het duurt 27 minuten om het "Musée Gaspar" museum te bereiken.Een goed verbonden omgeving die reizen en het dagelijks leven vereenvoudigt.

Toon alles Toon minder