Beschrijving

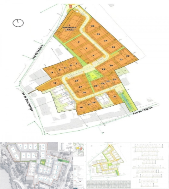
Ontdek dit aantrekkelijke bouwperceel gelegen in het rustige en charmante Hautcharage, een deelgemeente van Käerjeng in het zuidwesten van Luxemburg. Dit stuk grond, genaamd Lot 9, biedt een ideale kans voor wie op zoek is naar een nieuwe woning in een omgeving die rust, natuurlijke schoonheid en praktische voorzieningen combineert. Met een oppervlakte van 4,89 aren (489 m²) biedt het terrein voldoende ruimte voor het realiseren van een vrijstaande woning, waarbij alle vier zijden vrij blijven, wat veel vrijheid geeft in ontwerp en indeling. Het perceel wordt zonder verplichting tot bouwen aangeboden, zodat u de vrijheid heeft om uw eigen bouwplannen volledig naar eigen wens te ontwikkelen of het terrein te behouden als investering. Hautcharage ligt binnen een dynamisch en levendig gebied, gekenmerkt door een rijke geschiedenis en een prachtige natuurlijke omgeving die bekend staat als de 'Redrock Region'. De gemeente zelf bestaat uit meerdere deelgemeenten en heeft alles wat nodig is voor een comfortabel leven: een gezellige dorpskern met een barokke kerk uit de 18e eeuw, diverse restaurants en cafés, en een speelplein 'Um Pääsch' dat ideaal is voor gezinnen met jonge kinderen. Voor meer uitgebreide voorzieningen is Bascharage op slechts 1,5 km afstand, waar u meerdere grote supermarkten, sportfaciliteiten zoals 'Käerjenger Dribbel' en 'Op Acker', en culturele centra zoals 'Käerjenger Treff' vindt. Deze voorzieningen maken het leven hier niet alleen aangenaam, maar ook praktisch en gemakkelijk. De bereikbaarheid van Hautcharage is uitstekend dankzij het uitgebreide netwerk van buslijnen die u verbinden met omliggende steden zoals Esch-sur-Alzette, Luxemburg stad en Mamer. De dichtstbijzijnde treinhalte, Bascharage-Sanem, ligt op slechts 3,5 km afstand en biedt vlotte verbindingen via de CFL naar Luxemburg en België. Op korte rijafstand bevinden zich belangrijke voorzieningen zoals het centrum van Bascharage, winkelcentra zoals 'Belval Plaza' en recreatiemogelijkheden zoals het zwemparadijs 'Aquasud'. Ook beschikken bewoners over diverse scholen voor alle leeftijden, van kleuters tot middelbaar onderwijs, zodat gezinnen hier alles binnen handbereik hebben. Deze unieke bouwgrond wordt aangeboden voor €476.775 en vormt een uitstekende gelegenheid voor wie wil investeren in een rustige maar goed verbonden omgeving met alle nodige voorzieningen in de nabijheid. Wilt u meer informatie of een bezoek plannen? Neem gerust contact op met onze makelaar voor verdere details en begeleiding bij uw aankoopproces.

* Deze tekst werd gegenereerd door artificiële intelligentie.

Toon alles Toon minder

Financiële details

  • Prijs: 476 775 €

Diensten


Extra informatie

Basisinformatie

Momenteel verhuurd

Nee

Stedenbouw en omgeving

Type overstromingsgevoeligheid

(Niet van toepassing)

Afgebakend overstromingsgebied

(Niet van toepassing)

Immovlan.be toont de gegevens die door de verkoper werden aangeleverd. Indien belangrijke of verplichte data ontbreken, is dit omdat deze ons niet werden verstrekt.

Ref. Immovlan: RBU41803 Ref. verkoper: Lot 9 (Terrain G.-D. Jean) SD Meld fraude

Buurtinformatie

Kinderdagverblijven

Les Poussins

6,7 km 22' 6,9 km 8' 0 m 0'' 6,4 km 1º 17'

Kleuterscholen

Ecole Fondamentale Annexée Athus II

6,7 km 45' 7,7 km 9' 0 m 0'' 6,4 km 1º 17'

Basisscholen

Ecole Fondamentale Annexée Athus II

6,7 km 45' 7,7 km 9' 0 m 0'' 6,4 km 1º 17'

Middelbare scholen

Athenee Royal Athus

6,4 km 21' 6,6 km 7' 0 m 0'' 6,3 km 1º 16'

Snelwegen

A28 / E411: Aubange - Athus - (Longwy, Frankrijk)

7,7 km 9'

A4 / E411 - E25: Brussel - Namen - Aarlen - (Luxemburg (stad), Luxemburg)

10,1 km 10'

Bus

TEC Namur - Luxembourg - 722 - Bascharage - Differt

959 m 12'

Treinstations

Bascharage-Sanem

2,7 km 10' 3 km 4' 0 m 0'' 2,7 km 32'

Laadstations

Ikea Arlon

10,1 km 11'

Winkels

Lidl Aubange

6,1 km 20' 6,3 km 7' 0 m 0'' 6 km 1º 12'

Trafic Athus

6,4 km 21' 6,7 km 7' 0 m 0'' 6,3 km 1º 16'

Aldi Athus

6,4 km 22' 6,7 km 7' 0 m 0'' 6,3 km 1º 16'

Musea

Musée Gaspar

20,8 km 20'

Onderwijs

Je kunt dichtbij een kleuterschool en basisschool vinden: "Ecole Fondamentale Annexée Athus II", 9 minuten afstand met de auto.Athenee Royal Athus is de meest dichtstbijzijnde middelbare school: slechts 21 minuten afstand met de fiets.Het dichtstbijzijnde kinderdagverblijf heet "Les Poussins" en is 8 op enkele minuten afstand met de auto.

Transporten

Het kost je slechts 9 minuten om A28 / E411 (Aubange - Athus - (Longwy, Frankrijk)) te bereiken en A4 / E411 - E25 (Brussel - Namen - Aarlen - (Luxemburg (stad), Luxemburg)) is toegankelijk in 10 minuten.In minder dan 11 minuten vind je een oplaadstation ("Ikea Arlon") voor jouw elektrische auto.Een SNCB-station ("Bascharage-Sanem") bevindt zich op 10 minuten afstand met de fiets, of 4 minuten met de auto.

Boodschappen doen

Je hebt de keuze tussen verschillende nabijgelegen supermarkten: Lidl Aubange (7 minuten rijden), Trafic Athus (7 minuten rijden), Aldi Athus (7 minuten rijden).

Toerisme

Het "Musée Gaspar" museum is vlakbij (20 minuten rijden).

Openbaar vervoer

De dichtstbijzijnde buslijn is TEC Namur - Luxembourg - 722 - Bascharage - Differt met een station gelegen op 12 minuten loopafstand.

Toon alles Toon minder