Appartement te koop - Wandre VBD38004

Rue Bastin 48 4020 Wandre

315 560 €

  • 3 Slaapkamer(s)
  • 115
  • 1 Parkeerplaats(en)
  • 1 Badkamer(s)
Rue Bastin 48 4020 Wandre

Ben je op zoek naar Appartement te koop - Wandre?

Ontvang een e-mail wanneer er een nieuw zoekertje wordt gevonden!

Maak een alert aan

Beschrijving

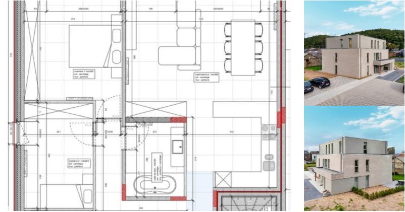
Ontdek dit ruime en moderne appartement gelegen op de eerste verdieping in Wandre, een aantrekkelijke wijk die bekend staat om haar rustige sfeer en goede bereikbaarheid. Dit goed onderhouden vastgoed biedt een woonoppervlakte van ongeveer 115 m² en beschikt over drie comfortabele slaapkamers, ideaal voor gezinnen of investeerders die op zoek zijn naar een rendabele woning. Bij binnenkomst wordt u verwelkomd in een ruime hal, die aansluit op een open keuken en een gezellige woonkamer. De keuken is volledig uitgerust met hoogwaardige apparatuur, waaronder een frigo met tiroirs, een vaatwasser, een inductiekookplaat, een afzuigkap en een oven, waardoor koken hier een plezier wordt. Vanuit de living heeft u direct toegang tot een schitterend terras van circa 20 m², perfect voor buitenleven en ontspanning in de frisse lucht. Het appartement beschikt over een praktische indeling met een aparte nachthal die leidt naar drie slaapkamers en een badkamer met een ligbad en een wastafelmeubel. De woning is voorzien van centrale verwarming op gas met een individuele condensatieketel, dubbele PVC-ramen voor optimale isolatie en eenvoudige ventilatie. Bovendien is er een ruime kelder van ongeveer 6,5 m² en wordt één parkeerplaats buiten meegeleverd, wat extra gemak biedt voor bewoners en bezoekers. De energieprestatiecertificaat (EPC) is gunstig met een score van B, wat aangeeft dat het appartement energiezuinig is met een verbruik van slechts 86 kWh/m² per jaar. Het goed onderhouden gebouw is volledig aangesloten op nutsvoorzieningen en beschikt over gescheiden meters voor gas, water en elektriciteit, wat transparantie en controle vergemakkelijkt. Gelegen in Wandre, combineert dit appartement het comfort van een rustige woonomgeving met de gemakken van nabijheid tot lokale voorzieningen, scholen en openbaar vervoer. De prijs bedraagt €315.560, exclusief bijkomende kosten zoals btw, notariskosten en aansluitingstarieven. Dit eigendom is momenteel verhuurd aan een maandelijkse huur van €1.150 zonder bijkomende kosten, wat het aantrekkelijk maakt voor investeerders die op zoek zijn naar directe inkomsten. Met zijn goede staat van onderhoud, gunstige energieprestatie en centrale ligging vormt dit appartement een uitstekende keuze voor wie op zoek is naar een solide vastgoedbelegging of een comfortabele gezinswoning. Neem contact op voor meer informatie of om een bezichtiging te plannen; wij begeleiden u graag bij elke stap van uw aankoopproces.

* Deze tekst werd gegenereerd door artificiële intelligentie.

Toon alles Toon minder

Financiële details

  • Prijs: 315 560 €
  • BTW: Nee

Diensten


Extra informatie

Basisinformatie

Momenteel verhuurd

Nee

Beschrijving interieur

Aantal slaapkamers

3

Bewoonbare opp.

115 m²

Keuken en sanitair

Aantal badkamers

1

Verwarming en energie

Type verwarming

Gas

Buitenkenmerken

Verdieping van het appartement

1

Aantal gevels

3

Aantal parkeerplaatsen (buiten)

1

Tuin

Nee

Terras

Ja

Oppervlakte terras

20 m²

Gelijkvormigheidscertificaten en attesten

Specifiek primair energieverbruik

86 kWh/m²/jaar

EPC-referentie

20241125501634

CO2-uitstoot

16

Stedenbouw en omgeving

Type overstromingsgevoeligheid

(Niet van toepassing)

Afgebakend overstromingsgebied

(Niet van toepassing)

Immovlan.be toont de gegevens die door de verkoper werden aangeleverd. Indien belangrijke of verplichte data ontbreken, is dit omdat deze ons niet werden verstrekt.

Ref. Immovlan: VBD38004 Ref. verkoper: W7251 - C 1.2 Meld fraude

Buurtinformatie

Kinderdagverblijven

Wandre

1,6 km 7' 3,4 km 5' 0 m 0'' 1,5 km 18'

Kleuterscholen

Ecole Libre Fondamentale Saint-Etienne

536 m 3' 887 m 1' 38'' 526 m 6' 526 m 6'

Basisscholen

Ecole Libre Fondamentale Saint-Etienne

536 m 3' 887 m 1' 38'' 526 m 6' 526 m 6'

Middelbare scholen

Ecole Polytechnique De Herstal - Enseignement De La Province De Liege

2,3 km 8' 2,9 km 4' 0 m 0'' 2,2 km 27'

Snelwegen

A25 / E25: Luik - Wezet - (Maastricht, Nederland)

740 m 1' 26''

A3 / E25 - E40 - E42: Brussel - Leuven - Luik - Eupen - (Aken, Duitsland)

2,9 km 4'

Bus

TEC Liège - Verviers - 36 - Coronmeuse - Herstal - Wandre - Cheratte

326 m 4'

TEC Liège - Verviers - 61 - Liège - Wandre - Visé

607 m 7'

TEC Liège - Verviers - 61 - Liège - Wandre - Visé

607 m 7'

Treinstations

Herstal

4,3 km 20' 4,8 km 7' 0 m 0'' 4 km 48'

Luchthavens

Liège Airport

17,1 km 1º 2' 19,3 km 14' 0 m 0''

Laadstations

Nissan Konen Lemaire Liege

5,3 km 7'

Autodelen

Cambio - Chafnay

3,9 km 13' 0 m 0'' 3,9 km 46'

Winkels

Aldi Wandre

1 km 4' 1,1 km 1' 56'' 0 m 0'' 1 km 12'

Shop & Go Delhaize Crucifix (Herstal)

1,7 km 6' 1,7 km 2' 47'' 0 m 0'' 1,7 km 21'

Hypermarché Carrefour Herstal

3,1 km 10' 3,1 km 4' 0 m 0'' 3,1 km 37'

Pretparken

Archéoforum

8,4 km 8'

Musea

Site Blegny-Mine

10 km 11'

Activiteiten

Maison De La Science

8,7 km 8'

Kastelen

Domaine De Wégimont

15,4 km 13'

Golfen

Golf Du Bernalmont

6,7 km 9'

Onderwijs

Wandre is het meest dichtbij kinderdagverblijf: slechts 18 minuten lopen.Als je op zoek bent naar een middelbare school, "Ecole Polytechnique De Herstal - Enseignement De La Province De Liege" is 27 minuten te voet.Je kunt dichtbij een kleuterschool en basisschool vinden: "Ecole Libre Fondamentale Saint-Etienne", 2 minuten afstand met de auto.

Transporten

Moet je jouw elektrische auto opladen? Het dichtstbijzijnde laadstation ("Nissan Konen Lemaire Liege") is 7 minuten rijden.In minder dan 7 minuten, met de auto, kan je aan "Herstal" treinstation zijn.Voor jouw vakantie of om professionele redenen kun je Liège Airport in minder dan 14 minuten met de auto bereiken.Snelweg A25 / E25 (Luik - Wezet - (Maastricht, Nederland)) is binnen 1 minuut bereikbaar en het bereiken van snelweg A3 / E25 - E40 - E42 (Brussel - Leuven - Luik - Eupen - (Aken, Duitsland)) duurt 4 minuten.Wil je geen auto bezitten, maar heb je er toch af en toe een nodig? Er is het "Cambio - Chafnay" station waar je een gedeeld voertuig kunt huren op slechts 13 minuten fietsen.

Nabijgelegen steden

Sittard is 35 minuten rijden met de auto. Je hebt ongeveer 38 minuten nodig om Kerkrade te bereiken met de auto. Verviers is slechts 17 minuten met de auto. Er zijn slechts 21 minuten nodig om Seraing te bereiken met de auto.

Openbaar vervoer

Deze eigendom bevindt zich in de buurt van verschillende buslijnen : TEC Liège - Verviers - 36 - Coronmeuse - Herstal - Wandre - Cheratte met een station gelegen op 4 minuten loopafstand, TEC Liège - Verviers - 61 - Liège - Wandre - Visé met een halte op minder dan 7 minuten lopen.

Toerisme

Het "Site Blegny-Mine" museum is vlakbij (11 minuten rijden).Op zoek naar een activiteit? "Maison De La Science" bevindt zich op 8 minuten met de auto.Een pretpark is 8 minuten met de auto : "Archéoforum".Wilt u het "Domaine De Wégimont" kasteel ontdekken? Het ligt op 13 minuten rijden.De "Golf Du Bernalmont"golfbaanligt op 9 minuten afstand.

Boodschappen doen

Je hebt de keuze tussen verschillende nabijgelegen supermarkten: Aldi Wandre (12 minuten lopen of 2 minuten rijden), Shop & Go Delhaize Crucifix (Herstal) (21 minuten lopen of 3 minuten rijden), Hypermarché Carrefour Herstal (4 minuten rijden).

Toon alles Toon minder