Appartement à vendre - Howald (Luxembourg) (page 2)

44 résultats (21 - 40)
729 000 €

2112 Howald

Collini Welter Immobilière a le plaisir de vous présenter ce superbe appartement lumineux d'une surface habitable de 107,09 m², offrant une vue dégagée et un cadre de vie agréable. Cet appartement se compose de : Un hall d’entrée accueillant, Un spacieux living avec accès à un balcon à l’avant, Une cuisine équipée séparée avec accès à un balcon latéral, Un débarras pratique, Un WC séparé, Deux chambres à coucher confortables, Une salle de bains moderne avec douche et baignoire, Une cave privative, Un garage box fermé avec branchement pour machine à laver. La résidence bénéficie d’un emplacement privilégié, à proximité immédiate de toutes les commodités : commerces, restaurants, écoles, transports en commun et pistes cyclables. Pour plus d'informations ou pour organiser une visite, contactez-nous au ### ou par email à ### . Découvrez également l'ensemble de nos biens immobiliers sur notre site : ### Vous souhaitez vendre ou louer votre bien ? Profitez de notre service d’estimation gratuit et professionnel, sans engagement. En savoir plus ?

2 Chambre(s) 107 1 Salle(s) de bain
Contacter
Détails
E-mail
Appeler
1 214 557 €

1423 Howald

Votre agence immobilière Living & More vous propose, à la vente : Situé, dans le quartier de Luxembourg-Howald, le nouveau projet «SKILL», composé de 2 commerces, 4 bureaux et 14 appartements haut de gamme à l'architecture moderne. Au troisième étage vous retrouverez: Un lumineux appartement (05) d'une superficie habitable de +/- 108,02 m2 et d'un balcon de +/- 32,58 m2, avec trois chambres à coucher. L'appartement se compose comme suit: - Un hall d'entrée - WC séparé - Un salon séjour avec accès vers le balcon - Une cuisine entièrement équipée - 3 spacieuses chambres à coucher (+/- 13,53m2; +/-10,98m2 et +/-10,98m2) - Une salle de bain - Une salle de douche - Débarras Classe énergétique AAA+ L’immeuble sera équipé d’une installation de Géothermie/Géocooling. Un champ de sondes géothermiques sera installé sous l’immeuble. Ce champ de sondes géothermiques accouplé à une pompe à chaleur permettra d’assurer les besoins en chaud et froide pour le chauffage et le rafraichissement. Cette technologie permettra de réduire les frais de chauffage par 3 ou 4. La résidence SKILL se situe à Howald, quartier de la commune de Hespérange, à proximité de la ville de Luxembourg (300m) et notamment du nouveau quartier de la Cloche d’or. Idéalement desservi par le tram, le projet se trouve dans un quartier en plein essor et transformation urbanistique. Les prix indiqués comprennent la TVA à 3% (sous réserve d'acceptation de l'Administration de l'Enregistrement et des Domaines) et ne sont pas inclus le parking et cave. Plans et cahier des charges disponibles sur demande. De nombreuses possibilités de personnalisation sont possibles pour le choix des finitions privatives. Possibilité d'acquérir des emplacements intérieures ainsi que des caves privatives. Pour de plus amples informations, contactez-nous : Tél. : ### ### ### En savoir plus ?

3 Chambre(s) 120 1 Salle(s) de bain
Contacter
Détails
E-mail
Appeler
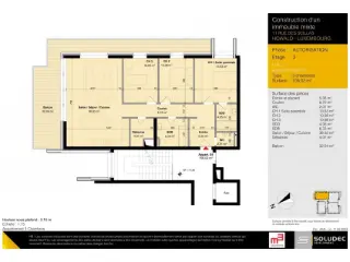
2 335 704 €

1423 Howald

Votre agence immobilière Living & More vous propose, à la vente : Situé, dans le quartier de Luxembourg-Howald, le nouveau projet «SKILL», composé de 2 commerces, 4 bureaux et 14 appartements haut de gamme à l'architecture moderne. Au cinquième et dernière étage vous retrouverez: Un penthouse lumineux (14) d'une superficie habitable de +/- 173,72 m2 et d'une terrasse en deux parties de +/- 139,18 m2, avec trois chambres à coucher. L'appartement se compose comme suit: - Un hall d'entrée - Un placard - WC séparé - Un salon séjour avec accès vers la terrasse - Une cuisine entièrement équipée - 3 spacieuses chambres à coucher (une suite parentale de +/- 23,83m2 et deux chambres de +/-16,71m2 et +/-16,71m2, toutes avec accès vers la terrasse) - Une salle de bain - Deux salles de douches - Débarras Classe énergétique AAA+ L’immeuble sera équipé d’une installation de Géothermie/Géocooling. Un champ de sondes géothermiques sera installé sous l’immeuble. Ce champ de sondes géothermiques accouplé à une pompe à chaleur permettra d’assurer les besoins en chaud et froide pour le chauffage et le rafraichissement. Cette technologie permettra de réduire les frais de chauffage par 3 ou 4. La résidence SKILL se situe à Howald, quartier de la commune de Hespérange, à proximité de la ville de Luxembourg (300m) et notamment du nouveau quartier de la Cloche d’or. Idéalement desservi par le tram, le projet se trouve dans un quartier en plein essor et transformation urbanistique. Les prix indiqués comprennent la TVA à 3% (sous réserve d'acceptation de l'Administration de l'Enregistrement et des Domaines) et ne sont pas inclus le parking et cave. Plans et cahier des charges disponibles sur demande. De nombreuses possibilités de personnalisation sont possibles pour le choix des finitions privatives. Possibilité d'acquérir des emplacements intérieures ainsi que des caves privatives. Pour de plus amples informations, contactez-nous : Tél. : ### ### ### En savoir plus ?

3 Chambre(s) 217 1 Salle(s) de bain
Contacter
Détails
E-mail
Appeler
1 138 050 €

1423 Howald

Votre agence immobilière Living & More vous propose, à la vente : Situé, dans le quartier de Luxembourg-Howald, le nouveau projet «SKILL», composé de 2 commerces, 4 bureaux et 14 appartements haut de gamme à l'architecture moderne. Au quatrième étage vous retrouverez: Un lumineux appartement (12) d'une superficie habitable de +/- 98,26 m2 et d'un balcon de +/- 33,74 m2, deux trois chambres à coucher. L'appartement se compose comme suit: - Un hall d'entrée - WC séparé - Un salon séjour avec accès vers le balcon - Une cuisine entièrement équipée - 2 spacieuses chambres à coucher (+/- 13,51m2; +/-12,98m2) - Une salle de bain - Une salle de douche - Débarras Classe énergétique AAA+ L’immeuble sera équipé d’une installation de Géothermie/Géocooling. Un champ de sondes géothermiques sera installé sous l’immeuble. Ce champ de sondes géothermiques accouplé à une pompe à chaleur permettra d’assurer les besoins en chaud et froide pour le chauffage et le rafraichissement. Cette technologie permettra de réduire les frais de chauffage par 3 ou 4. La résidence SKILL se situe à Howald, quartier de la commune de Hespérange, à proximité de la ville de Luxembourg (300m) et notamment du nouveau quartier de la Cloche d’or. Idéalement desservi par le tram, le projet se trouve dans un quartier en plein essor et transformation urbanistique. Les prix indiqués comprennent la TVA à 3% (sous réserve d'acceptation de l'Administration de l'Enregistrement et des Domaines) et ne sont pas inclus le parking et cave. Plans et cahier des charges disponibles sur demande. De nombreuses possibilités de personnalisation sont possibles pour le choix des finitions privatives. Possibilité d'acquérir des emplacements intérieures ainsi que des caves privatives. Pour de plus amples informations, contactez-nous : Tél. : ### ### ### En savoir plus ?

2 Chambre(s) 110 1 Salle(s) de bain
Contacter
Détails
E-mail
Appeler
2 335 704 €

2529 Howald

HEKTAR vous propose le projet SKILL, idéalement situé dans le quartier dynamique de Howald, à seulement quelques minutes du centre-ville de Luxembourg, de la Cloche d'Or et du quartier de Gasperich. Ce magnifique penthouse, situé au 5e étage et dernier étage de la résidence, offre une surface habitable de 173,7 m², à laquelle s'ajoutent 139,18 m² de terrasses exposées au nord, sud et ouest. Accessible directement par ascenseur, le penthouse se compose de 3 chambres, dont deux chambres avec salles de douche privatives et une chambre parentale avec salle de bains et dressing. Il dispose également d'un séjour/cuisine de 69,63 m², d'un espace débarras, ainsi que d'un WC séparé. Le véritable atout de cet appartement est sans aucun doute sa superbe terrasse, offrant des vues dégagées et un espace extérieur d'exception. Une cave ainsi que des emplacements de parking sont disponibles à l'acquisition en supplément. Prix TVA Mixte 3%*: 2.335.704,08 € (*Sous réserve d'apporbation par l'autorité compétente) Prix TVAC 17%: 2.385.704,08 € Le Bureau immobilier HEKTAR vous propose des objets sélectionnés et adaptés à vos besoins. N'hésitez pas à consulter notre site hektar.lu pour découvrir nos autres biens ou de nous contacter directement au : (+352) 27 85 80 40 En savoir plus ?

3 Chambre(s) 174 1 Salle(s) de bain
Contacter
Détails
E-mail
Appeler
1 138 051 €

2529 Howald

HEKTAR vous propose le projet SKILL, idéalement situé dans le quartier dynamique de Howald, à quelques minutes du centre-ville de Luxembourg, de la Cloche d'Or et du quartier de Gasperich. L'appartement 12, situé au 4e étage, d'une surface de 98,20 m2 , offre 2 chambres, dont une suite parentale avec salle de douche privative. Il comprend également un espace séjour/cuisine de 38,78 m2, une salle de bains et un WC séparé, ainsi qu'un balcon de 33,74 m2 qui longe l'appartement et offre un espace extérieur agréable. Une cave et des emplacements de parking sont disponibles à l'acquisition en supplément. Prix TVA Mixte 3%*: 1.138.050,67 € (*Sous réserve d'apporbation par l'autorité compétente) Prix TVAC 17%: 1.188.050,67 € Le Bureau immobilier HEKTAR vous propose des objets sélectionnés et adaptés à vos besoins. N'hésitez pas à consulter notre site hektar.lu pour découvrir nos autres biens ou de nous contacter directement au : (+352) 27 85 80 40 Si vous avez un bien à vendre ou à louer, le Bureau immobilier HEKTAR est à votre disposition et vous offre des annonces professionnelles ainsi qu'un service hors du commun afin de présenter votre objet immobilier aussi bien qu'il le mérite. En savoir plus ?

2 Chambre(s) 98 1 Salle(s) de bain
Contacter
Détails
E-mail
Appeler
850 000 €

2446 Howald

A vendre spacieux appartement deux chambres à Howald. Ce bel appartement de 116 m² est situé au premier étage d’une résidence calme comprenant seulement deux unités. Il se compose d’un hall d’entrée. d’un séjour lumineux et d’une cuisine séparée entièrement équipée. tous deux donnant accès à une terrasse bénéficiant d’une agréable exposition sud-est. L’appartement dispose également de deux chambres. d’une salle de douche entièrement rénovée ainsi que d’un WC séparé. Le bien est complété par un garage fermé. une cave de 18 m² avec branchements pour la machine à laver. un emplacement de parking extérieur et un jardin à usage privatif situé à l’arrière de la résidence. La résidence profite d’un emplacement idéal. à proximité immédiate de toutes les commodités. Disponibilité : immédiate Les frais d'agence sont à charge du vendeur. Pour l'estimation et la mise en vente/en location de votre bien. notre agence s'appliquera à le mettre en valeur et à vous apporter les services et le suivi que vous méritez. N'hésitez pas à consulter nos autres biens sur le site ### Nous sommes à votre disposition. au ### ou par email à l'adresse ### . pour vous aider dans votre recherche et vous proposer des biens adaptés à vos besoins. En savoir plus ?

2 Chambre(s) 120 1 Salle(s) de bain
Contacter
Détails
E-mail
Appeler
1 150 000 €

1274 Howald

Vivre moderne et design éco-responsable à Howald RE/MAX Real Estate Solutions, votre expert immobilier à Howald, et Jonathan PACE (+352 661 391 623, ### ) sont heureux de vous présenter à la vente une nouvelle façon de vivre au cœur de Howald avec ce projet résidentiel exceptionnel rue des Bruyères. Cet appartement neuf de deux chambres, prêt à emménager, allie architecture moderne, matériaux durables et confort au quotidien pour un style de vie unique. Élégance écologique Conçu principalement en bois et complété par de l'acier et du béton, le bâtiment privilégie le développement durable sans compromis sur le style. Cet appartement dispose de sa propre entrée privée, offrant intimité et indépendance. Points forts de l'intérieur - Plafonds hauts pour une sensation d'espace et de luminosité - Climatisation et système de ventilation performant - Grandes fenêtres baignant l'espace de lumière naturelle - Buanderie dédiée - Finitions chaleureuses et naturelles pour une ambiance cosy - Inclus : cave spacieuse - En option : place de parking souterrain pour 60 000 € supplémentaires Plusieurs appartements d'une chambre sont également disponibles aux étages 1 à 4, d'une superficie de 50 à 52 m², avec balcon de 13 m², cave et agencement ouvert ? à partir de 650 000 €. Emplacement idéal À seulement 10 minutes à pied du tramway et du train reliant Luxembourg-Ville, et à seulement 5 minutes en bus de la Cloche d'Or. Profitez d'un accès facile à l'autoroute, aux commerces, restaurants et sentiers forestiers à proximité. Intéressé(e) ? Contactez-nous dès aujourd'hui pour plus d'informations ou pour organiser une visite. Votre nouveau chez-vous à Howald vous attend ! Contactez Jonathan PACE (+352 661 391 623, ### ) pour prendre rendez-vous. En savoir plus ?

2 Chambre(s) 105
Contacter
Détails
E-mail
Appeler
1 138 051 €

2529 Howald

SKILL - Appartement 12 - 2 chambres Engel & Völkers a le plaisir de vous présenter la future Résidence SKILL située à Howald, sur la nouvelle ligne de Tram reliant la Cloche d’Or à Luxembourg-Ville. Le cabinet d’architecture M3 a imaginé et conçu un parfait équilibre entre esthétique et confort de vie. Soludec, acteur majeur de la promotion immobilière et de la construction au Luxembourg, est chargée de l'exécution du projet. Répartie sur 6 niveaux et 2 niveaux de sous-sol, la Résidence accueillera 2 surfaces commerciales, 4 espaces de bureaux et 14 appartements de 2 et 3 chambres. Tous les appartements bénéficient de généreux volumes avec une impressionnante hauteur sous plafond de 3,15m et de grandes terrasses d’au moins 30m². Sur le plan technique: un système de domotique avec écran tactile, un circuit de chauffage et de refroidissement par le sol permettant un contrôle optimal de la température toute l’année, des fenêtres triple vitrage et d’un système de ventilation mécanique double flux. Le chauffage et le refroidissement de la Résidence ainsi que l’apport en eau chaude seront assurés par un système de géothermie/ géo-cooling avec pompe à chaleur, permettant d’obtenir la certification énergétique AAA+. La livraison est prévue pour mars 2027 et les travaux ont commencé. La construction est couverte par une garantie d’achèvement et bénéficiera des garanties décennale et biennale. L’appartement 12 d’une surface de 98,26m² + 33,74m² de terrasse se situe au 4ème étage et se compose de la façon suivante: Hall d’entrée avec espace vestiaire et WC séparé, séjour/ salle à manger avec cuisine ouverte de 37,78m² ouvrant sur une terrasse de 33,74m², 1 chambres parentale de 13,51m² avec salle de douche en suite, 1 chambre de 12,98m² et 1 salle de bain ainsi qu'un débarras de 3,47m². La terrasse est accessible depuis le salon et les 2 chambres. Les prix sont fixes et non révisables pour quelque raison que ce soit, sauf en ce qui concerne les variations du taux de TVA. Prix TVAC 3% (résidence principale): 1.138.050,67 euros Prix TVAC 17% (investissement): 1.188.050,67 euros Parking intérieur: à partir de 65.000 euros TVAC Cave: à partir de 31.615,20 euros TVAC La future Résidence SKILL sera bâtie au 11, Rue des Scillas à Howald, sur le nouveau tracé du Tram reliant Luxembourg-Ville à la Cloche d’Or et à proximité immédiate de la future gare ferroviaire d’Howald. Ce quartier en pleine mutation, aux portes de Luxembourg-Ville, offrira une connexion particulièrement aisée et rapide au quartier de la Cloche d’Or, à la gare, au centre ville, au Kirchberg et bientôt à l’aéroport. La forêt située à l’arrière de la résidence offre de belles possibilités pour la marche ou le jogging avec notamment un itinéraire balisé de 4,8km. Distances: Cloche d’Or: 1 km Lycée Vauban: 1 km Futur arrêt de Tram Scillas: environ 200 m Gare ferroviaire Howald: environ 300 m Accès autoroutes A3 et A1: 1 km Kirchberg: 11 km - 10 minutes en voiture Cactus Howald: 500 m Ecole Howald: 450 m Tennis club Howald: 20 m Référence agence: W-02TFL7 En savoir plus ?

2 Chambre(s) 98 2 Salle(s) de bain
Contacter
Détails
E-mail
Appeler
2 335 704 €

2529 Howald

SKILL - Appartement 14 - 3 chambres Engel & Völkers a le plaisir de vous présenter la future Résidence SKILL située à Howald, sur la nouvelle ligne de Tram reliant la Cloche d’Or à Luxembourg-Ville. Le cabinet d’architecture M3 a imaginé et conçu un parfait équilibre entre esthétique et confort de vie. Soludec, acteur majeur de la promotion immobilière et de la construction au Luxembourg, est chargée de l'exécution du projet. Répartie sur 6 niveaux et 2 niveaux de sous-sol, la Résidence accueillera 2 surfaces commerciales, 4 espaces de bureaux et 14 appartements de 2 et 3 chambres. Tous les appartements bénéficient de généreux volumes avec une impressionnante hauteur sous plafond de 3,15m et de grandes terrasses d’au moins 30m². Sur le plan technique: un système de domotique avec écran tactile, un circuit de chauffage et de refroidissement par le sol permettant un contrôle optimal de la température toute l’année, des fenêtres triple vitrage et d’un système de ventilation mécanique double flux. Le chauffage et le refroidissement de la Résidence ainsi que l’apport en eau chaude seront assurés par un système de géothermie/ géo-cooling avec pompe à chaleur, permettant d’obtenir la certification énergétique AAA+. La livraison est prévue pour mars 2027 et les travaux ont commencé. La construction est couverte par une garantie d’achèvement et bénéficiera des garanties décennale et biennale. Le penthouse 14 d’une surface de 173,72m² + 139,18m² de terrasse se situe au 5ème et dernier étage et se compose de la façon suivante: Hall d’entrée avec espace vestiaire, WC séparé et débarras de 3,44m², spacieux séjour/ salle à manger avec cuisine ouverte de 69,63m² ouvrant sur une première terrasse de 63,95m², 1 chambres parentale de 23,83m² avec dressing et salle de douche en suite et 2 chambres de 16,71m² avec salles de douche en suite. Une deuxième terrasse de 75,23m² est accessible depuis les 3 chambres. Les prix sont fixes et non révisables pour quelque raison que ce soit, sauf en ce qui concerne les variations du taux de TVA. Prix TVAC 3% (résidence principale): 2.335.704,08 euros Prix TVAC 17% (investissement): 2.385.704,08 euros Parking intérieur: à partir de 65.000 euros TVAC Cave: à partir de 31.615,20 euros TVAC La future Résidence SKILL sera bâtie au 11, Rue des Scillas à Howald, sur le nouveau tracé du Tram reliant Luxembourg-Ville à la Cloche d’Or et à proximité immédiate de la future gare ferroviaire d’Howald. Ce quartier en pleine mutation, aux portes de Luxembourg-Ville, offrira une connexion particulièrement aisée et rapide au quartier de la Cloche d’Or, à la gare, au centre ville, au Kirchberg et bientôt à l’aéroport. La forêt située à l’arrière de la résidence offre de belles possibilités pour la marche ou le jogging avec notamment un itinéraire balisé de 4,8km. Distances: Cloche d’Or: 1 km Lycée Vauban: 1 km Futur arrêt de Tram Scillas: environ 200 m Gare ferroviaire Howald: environ 300 m Accès autoroutes A3 et A1: 1 km Kirchberg: 11 km - 10 minutes en voiture Cactus Howald: 500 m Ecole Howald: 450 m Tennis club Howald: 20 m Référence agence: W-02TFLJ En savoir plus ?

3 Chambre(s) 174 2 Salle(s) de bain
Contacter
Détails
E-mail
Appeler
622 000 €

2412 Howald

LIVING IMMO vous propose un excellent appartement d'une superficie approximative de 74m2, offrant de vastes espaces lumineux, au Rez-de-Chaussée d'un immeuble de 3 étages, situé dans un quartier résidentiel et très calme, à Howald. comprenant: - Hall d'entrée, - Grand living-salle à manger, - Cuisine équipée donnant sur un balcon, - 2 chambres à coucher, - Salle de douche, - WC séparé, - Balcon, - Cave, - Jardin privatif, De plus: - Emplacement sous-terrain, - Chaudière à gaz récente, Proche de toutes commodités, idéale pour une famille avec enfants, il est situé à toutes proximités des commerces, banque, école, crèches, pharmacie, autoroutes, transports en commun, le prochain arrêt de bus est à +/- 500m, la gare centrale ferroviaire à +/- 3km, la piscine de Bonnevoie à 2 km, Accès vers le centre de la Ville de Luxembourg ; et la Cloche d'Or. L'accès vers le réseau autoroutier est à 1,7km (Collectrice du Sud et la A3 vers la France et la Ville de Luxembourg), Luxembourg Centre-Ville: 3,4 km, Luxembourg - Gare: 2,8km, Kirchberg: 6,5 km Luxembourg - Cloche d'Or: 2,2km? État : des travaux de la personnalisation & de rafraîchissement à faire Bien exceptionnel, très rare. Disponibilité : Immédiatement A VOIR ABSOLUMENT ! A DÉCOUVRIR SANS TARDER ! Pour plus de photos ainsi que d'autres biens similaires à Luxembourg-ville, Cents, Strassen, Berchem, Esch-sur-Alzette, Rood Sure, Clémency, Bettembourg, ... etc, Contactez Monsieur Driton GUMNISHTA par : tel. au ### mail : ### ### En savoir plus ?

2 Chambre(s) 78
Contacter
Détails
E-mail
Appeler
2 335 704 €

2529 Howald

SKILL - Appartement 14 - 3 chambres Engel & Völkers a le plaisir de vous présenter la future Résidence SKILL située à Howald, sur la nouvelle ligne de Tram reliant la Cloche d’Or à Luxembourg-Ville. Le cabinet d’architecture M3 a imaginé et conçu un parfait équilibre entre esthétique et confort de vie. Soludec, acteur majeur de la promotion immobilière et de la construction au Luxembourg, est chargée de l'exécution du projet. Répartie sur 6 niveaux et 2 niveaux de sous-sol, la Résidence accueillera 2 surfaces commerciales, 4 espaces de bureaux et 14 appartements de 2 et 3 chambres. Tous les appartements bénéficient de généreux volumes avec une impressionnante hauteur sous plafond de 3,15m et de grandes terrasses d’au moins 30m². Sur le plan technique: un système de domotique avec écran tactile, un circuit de chauffage et de refroidissement par le sol permettant un contrôle optimal de la température toute l’année, des fenêtres triple vitrage et d’un système de ventilation mécanique double flux. Le chauffage et le refroidissement de la Résidence ainsi que l’apport en eau chaude seront assurés par un système de géothermie/ géo-cooling avec pompe à chaleur, permettant d’obtenir la certification énergétique AAA+. La livraison aura lieu au plus tard 27 mois après le début des travaux. La construction sera couverte par une garantie d’achèvement et bénéficiera des garanties décennale et biennale. Le penthouse 14 d’une surface de 173,72m² + 139,18m² de terrasse se situe au 5ème et dernier étage et se compose de la façon suivante: Hall d’entrée avec espace vestiaire, WC séparé et débarras de 3,44m², spacieux séjour/ salle à manger avec cuisine ouverte de 69,63m² ouvrant sur une première terrasse de 63,95m², 1 chambres parentale de 23,83m² avec dressing et salle de douche en suite et 2 chambres de 16,71m² avec salles de douche en suite. Une deuxième terrasse de 75,23m² est accessible depuis les 3 chambres. Les prix sont fixes et non révisables pour quelque raison que ce soit, sauf en ce qui concerne les variations du taux de TVA. Prix TVAC 3% (résidence principale): 2.335.704,08 euros Prix TVAC 17% (investissement): 2.385.704,08 euros Parking intérieur: à partir de 65.000 euros TVAC Cave: à partir de 31.615,20 euros TVAC La future Résidence SKILL sera bâtie au 11, Rue des Scillas à Howald, sur le nouveau tracé du Tram reliant Luxembourg-Ville à la Cloche d’Or et à proximité immédiate de la future gare ferroviaire d’Howald. Ce quartier en pleine mutation, aux portes de Luxembourg-Ville, offrira une connexion particulièrement aisée et rapide au quartier de la Cloche d’Or, à la gare, au centre ville, au Kirchberg et bientôt à l’aéroport. La forêt située à l’arrière de la résidence offre de belles possibilités pour la marche ou le jogging avec notamment un itinéraire balisé de 4,8km. Distances: Cloche d’Or: 1 km Lycée Vauban: 1 km Futur arrêt de Tram Scillas: environ 200 m Gare ferroviaire Howald: environ 300 m Accès autoroutes A3 et A1: 1 km Kirchberg: 11 km - 10 minutes en voiture Cactus Howald: 500 m Ecole Howald: 450 m Tennis club Howald: 20 m En savoir plus ?

3 Chambre(s) 174 2 Salle(s) de bain
Contacter
Détails
E-mail
Appeler
1 138 051 €

2529 Howald

SKILL - Appartement 12 - 2 chambres Engel & Völkers a le plaisir de vous présenter la future Résidence SKILL située à Howald, sur la nouvelle ligne de Tram reliant la Cloche d’Or à Luxembourg-Ville. Le cabinet d’architecture M3 a imaginé et conçu un parfait équilibre entre esthétique et confort de vie. Soludec, acteur majeur de la promotion immobilière et de la construction au Luxembourg, est chargée de l'exécution du projet. Répartie sur 6 niveaux et 2 niveaux de sous-sol, la Résidence accueillera 2 surfaces commerciales, 4 espaces de bureaux et 14 appartements de 2 et 3 chambres. Tous les appartements bénéficient de généreux volumes avec une impressionnante hauteur sous plafond de 3,15m et de grandes terrasses d’au moins 30m². Sur le plan technique: un système de domotique avec écran tactile, un circuit de chauffage et de refroidissement par le sol permettant un contrôle optimal de la température toute l’année, des fenêtres triple vitrage et d’un système de ventilation mécanique double flux. Le chauffage et le refroidissement de la Résidence ainsi que l’apport en eau chaude seront assurés par un système de géothermie/ géo-cooling avec pompe à chaleur, permettant d’obtenir la certification énergétique AAA+. La livraison aura lieu au plus tard 27 mois après le début des travaux. La construction sera couverte par une garantie d’achèvement et bénéficiera des garanties décennale et biennale. L’appartement 12 d’une surface de 98,26m² + 33,74m² de terrasse se situe au 4ème étage et se compose de la façon suivante: Hall d’entrée avec espace vestiaire et WC séparé, séjour/ salle à manger avec cuisine ouverte de 37,78m² ouvrant sur une terrasse de 33,74m², 1 chambres parentale de 13,51m² avec salle de douche en suite, 1 chambre de 12,98m² et 1 salle de bain ainsi qu'un débarras de 3,47m². La terrasse est accessible depuis le salon et les 2 chambres. Les prix sont fixes et non révisables pour quelque raison que ce soit, sauf en ce qui concerne les variations du taux de TVA. Prix TVAC 3% (résidence principale): 1.138.050,67 euros Prix TVAC 17% (investissement): 1.188.050,67 euros Parking intérieur: à partir de 65.000 euros TVAC Cave: à partir de 31.615,20 euros TVAC La future Résidence SKILL sera bâtie au 11, Rue des Scillas à Howald, sur le nouveau tracé du Tram reliant Luxembourg-Ville à la Cloche d’Or et à proximité immédiate de la future gare ferroviaire d’Howald. Ce quartier en pleine mutation, aux portes de Luxembourg-Ville, offrira une connexion particulièrement aisée et rapide au quartier de la Cloche d’Or, à la gare, au centre ville, au Kirchberg et bientôt à l’aéroport. La forêt située à l’arrière de la résidence offre de belles possibilités pour la marche ou le jogging avec notamment un itinéraire balisé de 4,8km. Distances: Cloche d’Or: 1 km Lycée Vauban: 1 km Futur arrêt de Tram Scillas: environ 200 m Gare ferroviaire Howald: environ 300 m Accès autoroutes A3 et A1: 1 km Kirchberg: 11 km - 10 minutes en voiture Cactus Howald: 500 m Ecole Howald: 450 m Tennis club Howald: 20 m En savoir plus ?

2 Chambre(s) 98 2 Salle(s) de bain
Contacter
Détails
E-mail
Appeler
775 000 €

1842 Howald

Votre agence immobilière Meier Muckensturm vous présente cet appartement récemment rénové au cœur de Howald, situé au 41 avenue Grand Duc Jean. Ce charmant appartement au premier étage (sans ascenseur) est en excellent état et se compose d'une cuisine séparée et équipée, de deux chambres, d'un salon-séjour lumineux et d'une salle de douche moderne. Il bénéficie également d'un emplacement extérieur. L'ambiance chaleureuse de cet appartement en fait un lieu de vie confortable et accueillant. Sa situation centrale vous permet d'accéder facilement aux transports en commun, aux commerces, aux restaurants et à toutes les commodités dont vous avez besoin au quotidien. N'hésitez pas à contacter notre agent immobilier, Marc, au 661 811 994 pour plus d'informations ou pour organiser une visite. Nous sommes ravis de répondre à toutes vos questions et de vous aider à réaliser votre projet immobilier En savoir plus ?

2 Chambre(s) 89
Contacter
Détails
E-mail
Appeler
2 335 704 €

2529 Howald

*** SKILL - LE NOUVEAU PROJET MIXTE AU HOWALD 11 RUE DE SCILLAS*** PASS ENERGIE TRIPLE A+ DISPONIBLE A LA VENTE LE LOT 14-109 UN PENTHOUSE 3 CHAMBRES ETAGE 5 SURFACE HABITABLE NETTE 173.72 M2 SURFACE DE VENTE 217.47 M2 LE PRIX INDIQUE EST LE PRIX MIXTE TVA 3%+17% POUR ACQUEREURS-RESIDENTS LE PRIX POUR INVESTISSEURS EST DE 2.385.704.-€ TVA 17% CE PRIX INDIQUE EST CELUI HORS EMPLACEMENTS, GARAGES ET CAVES PLANS DISPONIBILITE PRIX DE CES LOTS SUR DEMANDE *** SKILL - LE NOUVEAU PROJET MIXTE AU HOWALD 11 RUE DE SCILLAS*** PASS ENERGIE TRIPLE A+ Avec des APPARTEMENTS LUMINEUX de 2 à 3 chambres et 2 SOMPTUEUX PENTHOUSES à 3 chambres, SKILL redéfinit la notion de confort et de commodité urbaine au coeur de Howald. Chaque appartement de SKILL est une pièce d'architecture raffinée, Des finitions de qualité vous entourent, créant un environnement acceuillant avec une HAUTEUR SOUS PLAFOND de 3,15 mètres et des TERRASSES de minimum 30 m² La Résidence SKILL est fière d'utiliser la GEOTHERMIE, une source d'énergie renouvelable, pour chauffer et rafraichir vos espaces tout en étant très respectueux de l'ENVIRONNEMENT. Entrez dans une nouvelle ère de gestion avec la DOMOTIQUE intégrée dans chaque appartement. SKILL est fière d'utiliser la GEOTHERMIE, une source d'énergie renouvelable, pour chauffer et rafraichir vos espaces tout en étant respectueux de l'environnement. SKILL est idéalement située à proximité du quartier de la CLOCHE D'OR avec une Connexion Fluide grâce au TRAM devant la porte et tout proche de la GARE de Howald. En savoir plus ?

3 Chambre(s) 217 1 Salle(s) de bain
Contacter
Détails
E-mail
Appeler
1 138 050 €

2529 Howald

*** SKILL - LE NOUVEAU PROJET MIXTE AU HOWALD 11 RUE DE SCILLAS*** PASS ENERGIE TRIPLE A+ DISPONIBLE A LA VENTE LE LOT 12-107 UN APPARTEMENT 2 CHAMBRES ETAGE 4 SURFACE HABITABLE NETTE 98.26 M2 SURFACE DE VENTE 110.38 M2 LE PRIX INDIQUE EST LE PRIX MIXTE TVA 3%+17% POUR ACQUEREURS-RESIDENTS LE PRIX POUR INVESTISSEURS EST DE 1.188.050-€ TVA 17% CE PRIX INDIQUE EST CELUI HORS EMPLACEMENTS, GARAGES ET CAVES PLANS DISPONIBILITE PRIX DE CES LOTS SUR DEMANDE *** SKILL - LE NOUVEAU PROJET MIXTE AU HOWALD 11 RUE DE SCILLAS*** PASS ENERGIE TRIPLE A+ Avec des APPARTEMENTS LUMINEUX de 2 à 3 chambres et 2 SOMPTUEUX PENTHOUSES à 3 chambres, SKILL redéfinit la notion de confort et de commodité urbaine au coeur de Howald. Chaque appartement de SKILL est une pièce d'architecture raffinée, Des finitions de qualité vous entourent, créant un environnement acceuillant avec une HAUTEUR SOUS PLAFOND de 3,15 mètres et des TERRASSES de minimum 30 m² La Résidence SKILL est fière d'utiliser la GEOTHERMIE, une source d'énergie renouvelable, pour chauffer et rafraichir vos espaces tout en étant très respectueux de l'ENVIRONNEMENT. Entrez dans une nouvelle ère de gestion avec la DOMOTIQUE intégrée dans chaque appartement. SKILL est fière d'utiliser la GEOTHERMIE, une source d'énergie renouvelable, pour chauffer et rafraichir vos espaces tout en étant respectueux de l'environnement. SKILL est idéalement située à proximité du quartier de la CLOCHE D'OR avec une Connexion Fluide grâce au TRAM devant la porte et tout proche de la GARE de Howald. En savoir plus ?

2 Chambre(s) 110 1 Salle(s) de bain
Contacter
Détails
E-mail
Appeler
695 000 €

2272 Howald

Adresse du bien : 14 Rue Edouard Oster L-2272 Howald Mandat Exclusif Nexvia Notre annonce complète avec les plans et la visite virtuelle visible sur notre site ### Disponibilité : Immédiate Bel appartement 2 chambres, entièrement rénové de 2022 à 2025, situé en rez-de-chaussée d'une résidence à taille humaine, au sein d'une rue calme et résidentielle de Howald. Distribution : salle à manger (30 m²) - chambre (13,6 m²) - chambre (9 m²) - cuisine (10,5 m²) - salle de bain (5 m²) - hall (7,6 m²) Extérieur : balcon (6,7 m²) Inclus : 1 cave (8 m²) - 1 grenier (9,5 m²) Complément d'informations Confort : appartement accessible aux personnes à mobilité réduite - salle de bain rénovée avec douche à l'italienne - superbes nouveaux sols en bambou, en bois et en travertin - éclairage LED encastré - cuisine équipée et partiellement rénovée - balcon Installations : fenêtres double vitrage - système de climatisation optimisé - chauffage au gas - fibre internet Rénovations : système électrique dans son ensemble - remplacement des radiateurs - façade et toiture de la résidence rénovées en 2024 - isolation des box des volets, radiateurs et de la cave - remise en peinture de l'appartement Environnement Situé dans le quartier résidentiel de Howald, à la lisière de Luxembourg-Ville, cet appartement bénéficie d'un emplacement stratégique offrant un parfait équilibre entre vie urbaine et tranquillité. Howald se distingue par sa proximité immédiate avec les quartiers de Gasperich, Cloche d'Or et Bonnevoie, tout en étant très bien desservi par les transports en commun (tramway en cours d'extension, bus, gare CFL à proximité). Le quartier offre un accès rapide à l'autoroute ainsi qu'à toutes les commodités du quotidien : écoles, crèches, supermarchés, restaurants, centres médicaux et installations sportives. Les nombreux espaces verts et pistes cyclables à proximité contribuent également à une excellente qualité de vie. Toute offre sur ce bien restera conditionnée à l'acceptation expresse par le(s) propriétaire(s). - ENGLISH VERSION - Property address: 14 Rue Edouard Oster L-2272 Howald Nexvia Exclusive Mandate Our full listing including floorplans and a virtual visit available on our platform ### Availability: Immediate Attractive 2-bedroom apartment, fully renovated between 2022 and 2025, located on the ground floor of a human-sized residence located within a quiet, residential street in Howald. Distribution: dining room (30 sqm) - bedroom (13.6 sqm) - bedroom (9 sqm) - kitchen (10.5 sqm) - bathroom (5 sqm) - hall (7.6 sqm) Outside: balcony (6.7 sqm) Included: 1 cellar (8 sqm) - 1 attic (9.5 sqm) Additional information Comfort: flat accessible to people with reduced mobility - renovated bathroom with italian shower - superb new bamboo, wooden and travertine flooring - fitted-in LED lighting - fully equipped and partially renovated kitchen - balcony Equipment: double-glazing windows - heating-optimised air-conditioning system - gas heating - internet fibre Renovations: electrical system in its entirety - replacement of radiators - facade and roof of residence renovated in 2024 - insulation of shutter boxes, radiators and cellar - flat repainted Environment Located in the residential district of Howald, on the edge of Luxembourg City, this flat enjoys a strategic location offering a perfect balance between urban life and tranquillity. Howald boasts close proximity to the Gasperich, Cloche d'Or and Bonnevoie districts, as well as excellent public transport links (tramway currently being extended, bus, nearby CFL station). The area offers quick access to the motorway and all the amenities of daily life: schools, crèches, supermarkets, restaurants, medical centres and sports facilities. There are plenty of green spaces and cycle paths nearby. Any offer on this property will remain subject to the express acceptance by the owner(s). En savoir plus ?

2 Chambre(s) 77 1 Salle(s) de bain
Contacter
Détails
E-mail
Appeler
1 480 000 €

1353 Howald

NOUVEAU PRIX HOWALD - PLATEAU - RÉSIDENCE "CHARME" - PENTHOUSE D'EXCEPTION Niché à la lisière du Bois, dans un environnement paisible et serein, nous vous présentons une OPPORTUNITÉ RARE ET EXCLUSIVE. Au sein d'une PETITE RÉSIDENCE PRIVÉE de seulement 3 APPARTEMENTS DE TAILLES EXCEPTIONNELLES, découvrez ce FANTASTIQUE PENTHOUSE de 138 m2, agrémenté d'une SUPERBE LOGGIA de 30 m2. Ce Penthouse se distingue par ses FINITIONS HAUT DE GAMME et son efficacité énergétique A/B, complétée par des panneaux solaires thermiques. Il se compose comme suit : - Un hall d'entrée accueillant avec vestiaire, WC séparé et débarras séparé devant l'entrée, - Un espace de vie ouvert et lumineux de 51 m2, doté d'une belle hauteur sous toit (4,50 m) et de grandes baies vitrées, comprenant le salon, la salle à manger et une cuisine ouverte avec remise-buanderie, - Deux suites spacieuses de 24 m2 et 22 m2, équipées de leurs propres dressings et salles de bains, - Possibilité d'aménager 3 chambres à coucher - Une loggia exceptionnelle de 30 m2, orientée sud-ouest, offrant un espace extérieur privilégié. Un emplacement de parking intérieur en sous-sol est compris dans le prix de vente. Arrêt de Tram à proximité Ce bien est vendu en état de futur achèvement (VEFA), offrant la possibilité de personnaliser l'agencement intérieur selon vos goûts et vos besoins. Profitez d'une TVA au taux réduit de 3% si le logement est affecté à l'habitation principale (sous réserve de l'acceptation du dossier par l'Administration de l'enregistrement). De plus, le crédit d'impôt ("Bëllegen Akt") limité à 40.000 euros par acquéreur peut être accordé sous condition d'occupation effective et personnelle de l'appartement (80.000 euros par couple). Ne manquez pas cette opportunité unique de vivre dans un cadre de vie luxueux et serein, au coeur de la nature. En savoir plus ?

2 Chambre(s) 139 1 Salle(s) de bain
Contacter
Détails
E-mail
Appeler
1 755 000 €

1353 Howald

NOUVEAU PRIX HOWALD - PLATEAU - RÉSIDENCE "CHARME" - APPARTEMENT SPACIEUX AU 1ER ÉTAGE Situé à la lisière du Bois, dans un environnement paisible et serein, nous vous proposons une OPPORTUNITÉ RARE ET EXCLUSIVE. Au sein d'une PETITE RÉSIDENCE PRIVÉE de seulement 3 APPARTEMENTS DE TAILLES EXCEPTIONNELLES, découvrez ce MAGNIFIQUE APPARTEMENT de 164 m2, complété par une GRANDE LOGGIA DE 15 m2 ET UN BALCON de 11 m2. Ce bien d'exception se distingue par ses FINITIONS HAUT DE GAMME et son efficacité énergétique A/B, complétée par des panneaux solaires thermiques. Il se compose comme suit : - Un hall d'entrée accueillant avec vestiaire, WC séparé et débarras séparé devant l'entrée, - Un espace de vie ouvert et lumineux de 70 m2, doté de grandes baies vitrées, comprenant le salon, la salle à manger et une cuisine ouverte avec remise-buanderie, - Accès à une grande loggia orientée sud-ouest et un balcon orienté ouest, offrant des espaces extérieurs privilégiés - Deux suites spacieuses de 30 m2 et 21 m2, équipées de leurs propres dressings et salles de bains, - Une troisième chambre, pouvant être modifiée en bureau selon vos besoins. Un emplacement de parking intérieur en sous-sol est compris dans le prix de vente. Arrêt de Tram à proximité Ce bien est vendu en état de futur achèvement (VEFA), offrant la possibilité de personnaliser l'agencement intérieur selon vos goûts et vos besoins. Profitez d'une TVA au taux réduit de 3% si le logement est affecté à l'habitation principale (sous réserve de l'acceptation du dossier par l'Administration de l'enregistrement). De plus, le crédit d'impôt ("Bëllegen Akt") limité à 40.000 euros par acquéreur peut être accordé sous condition d'occupation effective et personnelle de l'appartement (80.000 euros par couple). Ne manquez pas cette occasion unique de vivre dans un cadre de vie luxueux et paisible, au coeur de la nature. En savoir plus ?

3 Chambre(s) 164 1 Salle(s) de bain
Contacter
Détails
E-mail
Appeler
1 820 000 €

1353 Howald

NOUVEAU PRIX HOWALD - PLATEAU - RÉSIDENCE "CHARME" - APPARTEMENT REZ-DE-JARDIN D'EXCEPTION Situé à la lisière du Bois, dans un environnement paisible et serein, nous vous présentons une OPPORTUNITÉ RARE ET EXCLUSIVE. Au sein d'une PETITE RÉSIDENCE PRIVÉE de seulement 3 APPARTEMENTS DE TAILLES EXCEPTIONNELLES, découvrez ce SPLENDIDE APPARTEMENT REZ-DE-JARDIN de 170 m2, bénéficiant d'un ACCÈS DIRECT à son GRAND JARDIN PRIVATIF DE 126 m2 AVEC 2 TERRASSES d'une surface totale de 50 m2. Ce bien d'exception se distingue par ses FINITIONS HAUT DE GAMME et son efficacité énergétique A/B, complétée par des panneaux solaires thermiques. Il se compose comme suit : - Un hall d'entrée accueillant avec vestiaire, WC séparé et débarras séparé devant l'entrée, - Un espace de vie ouvert et lumineux de 68 m2, doté de grandes baies vitrées, comprenant le salon, la salle à manger et une cuisine ouverte avec remise-buanderie - Trois suites spacieuses, de 21 m2, 22 m2 et 28 m2, équipées de leurs propres dressings et salles de bains Des accès directs mènent aux terrasses et au jardin, offrant des espaces extérieurs privilégiés pour profiter de la nature environnante. Un emplacement de parking intérieur en sous-sol est compris dans le prix de vente. Arrêt de Tram à proximité Ce bien est vendu en état de futur achèvement (VEFA), offrant la possibilité de personnaliser l'agencement intérieur selon vos goûts et vos besoins. Profitez d'une TVA au taux réduit de 3% si le logement est affecté à l'habitation principale (sous réserve de l'acceptation du dossier par l'Administration de l'enregistrement). De plus, le crédit d'impôt ("Bëllegen Akt") limité à 40.000 euros par acquéreur peut être accordé sous condition d'occupation effective et personnelle de l'appartement (80.000 euros par couple). Ne manquez pas cette occasion unique de vivre dans un cadre de vie luxueux et paisible, au coeur de la nature. En savoir plus ?

3 Chambre(s) 170 1 Salle(s) de bain
Contacter
Détails
E-mail
Appeler