Appartement te koop - Steinfort (Luxemburg) (pagina 3)

87 zoekertjes (41 - 60)
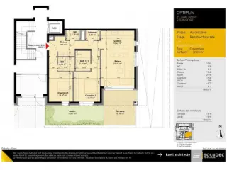
988 829 €

8410 Steinfort

Ontdek dit prachtige appartement te Steinfort, een unieke kans voor wie zoekt naar comfort en luxe in een strategische locatie. Gelegen op Route d'Arlon 44, biedt dit eigentijdse vastgoed een woonoppervlakte van maar liefst 104,84 m² en combineert moderne architectuur met hoogwaardige afwerking. Het appartement is onderdeel van een klein, exclusief project van slechts tien appartementen, ontworpen door Kaell Architects en ontwikkeld door SOLUDEC Development, een toonaangevende speler in Luxemburg. De woning straalt elegantie uit dankzij de duurzame en energiezuinige voorzieningen, waaronder een energielabel AAA, geothermische systemen en drievoudige beglazing in hout/aluminium. Het interieur kenmerkt zich door een ruimtelijk gevoel met grote raampartijen die veel natuurlijk licht binnenlaten, en brengt een verlengde buitenruimte met een loggia van 10 m². De slimme indeling omvat drie comfortabele slaapkamers, een lichte woonkamer met open keuken en toegang tot de buitenruimte, een praktische achterkeuken, een royale badkamer met toilet, een inkomhal met apart gastentoilet en een garderobe. Extra troeven zijn onder andere een privé kelderruimte, een parkeerplaats binnen, een lift die alle verdiepingen bedient, evenals een gemeenschappelijke tuin en gedeelde ruimtes die zorgen voor een aangename woonomgeving. De locatie van dit vastgoed in Steinfort is ideaal voor wie de rust van de natuur wil combineren met goede bereikbaarheid en faciliteiten. Steinfort is een dynamische en gezellige gemeente die bekend staat om haar hoge levenskwaliteit, met talrijke wandel- en fietspaden, culturele en sportieve verenigingen, en een uitstekende mobiliteit via de snelweg A6, het Kleinbettingen treinstation en de directe verbindingen naar Luxemburg-stad en Brussel. Dit alles maakt het appartement bijzonder geschikt voor gezinnen, professionals of investeerders die willen profiteren van een kwalitatief hoogwaardige woonplek dicht bij belangrijke steden en natuurgebieden. Met de vraagprijs van €988.829, inclusief 3% btw, presenteert deze woning niet alleen comfort en luxe, maar ook een uitstekende investering voor de toekomst. Neem vandaag nog contact op met Bricksquare voor meer informatie of om een bezichtiging te plannen. Dit eigendom combineert classe, comfort en strategische ligging – een echte aanrader voor wie wil wonen of investeren in deze toplocatie. Meer weten?

3 Slaapkamer(s) 101 1 Badkamer(s)
contacteer
details
E-mail
Bellen
919 674 €

8410 Steinfort

Ontdek deze prachtige moderne appartement te Steinfort, een bruisende gemeenschap tussen natuur en stedelijkheid, waar comfort en duurzaamheid hand in hand gaan. Gelegen aan de Route d'Arlon, biedt dit vastgoed een uitstekende ligging met gemakkelijke toegang tot winkels, restaurants, scholen, sportfaciliteiten en openbaar vervoer. Het complex bestaat uit slechts tien luxe appartementen, ontworpen door Kaell Architects en ontwikkeld door SOLUDEC Development, wat zorgt voor een exclusieve en intieme woonervaring. Met energieklasse AAA, geavanceerde geothermische systemen, drievoudige beglazing en hoogwaardige afwerkingen belichaamt dit project een harmonieuze combinatie van elegantie en milieuvriendelijkheid. Het appartement zelf heeft een woonoppervlakte van 92,29 m² en biedt alles wat u van een modern thuis mag verwachten. De indeling omvat twee ruime slaapkamers, een lichte woonkamer met open keuken die naadloos aansluit op het buitenleven, twee verfijnde badkamers waarvan één voorzien van een toilet, en een inkomhal met aparte toiletruimte en voldoende opbergmogelijkheden. Daarnaast beschikt het appartement over een terras en een tuin van 39 m², ideaal voor ontspanning en buitenactiviteiten. Het interieur kenmerkt zich door grote raampartijen, een open en ruime opzet en gebruik van kwalitatieve materialen zoals Duravit, Hansgrohe en Berloni. Extra voordelen zijn onder meer een private kelder, een ondergrondse parkeerplaats, een lift die alle verdiepingen bedient, een wasruimte en talloze ingebouwde opbergoplossingen. Het geheel wordt omringd door een onderhoudsvriendelijke gemeenschappelijke tuin en gedeelde ruimtes die bijdragen aan een aangename leefomgeving. De prijs van dit prestigieuze vastgoed bedraagt €919.674 inclusief btw (3%), wat het zich onderscheidt als een luxe investering in een rustige maar goed verbonden locatie. Steinfort biedt niet alleen rust en natuur, maar ook vlotte verbindingen via de A6-weg, het Kleinbettingen treinstation en directe routes naar Luxemburg Stad en Brussel. Dit maakt het appartement zeer aantrekkelijk voor wie op zoek is naar een modern en energiezuinig thuis in een levendige gemeenschap met alle voorzieningen binnen handbereik. Neem vandaag nog contact op met Bricksquare voor meer informatie of om een bezoek te plannen. Dit unieke aanbod wacht op diegene die wil genieten van comfortabel wonen in een exclusief project dat duurzaamheid combineert met stijl. Meer weten?

2 Slaapkamer(s) 88
contacteer
details
E-mail
Bellen
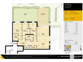
995 309 €

8410 Steinfort

Deze uitzonderlijke appartementen gelegen in Steinfort bieden een unieke combinatie van modern comfort en een rustige, natuurlijke omgeving. Gevestigd aan de Route d'Arlon nummer 44, bevinden deze hoogwaardige woningen zich op een strategische locatie die zowel de rust van de natuur als gemakkelijke toegang tot voorzieningen garandeert. Het betreft een exclusief project van slechts tien appartementen, ontwikkeld door SOLUDEC Development en ontworpen door Kaell Architects, dat zich onderscheidt door zijn innovatieve architectuur en duurzame technieken. De totale vraagprijs bedraagt €995.309, inclusief BTW van 3%, waarbij de appartementen voorzien zijn van geavanceerde energiebesparende systemen en high-end afwerkingen. Deze woning heeft een woonoppervlakte van 107,47 m² en beschikt over drie ruime slaapkamers, wat het ideaal maakt voor gezinnen of kopers die ruimte zoeken zonder in te boeten op stijl of comfort. De indeling en de voorzieningen van dit appartement benadrukken luxe en functionaliteit. Bij binnenkomst wordt u verwelkomd door een ruime hal met een apart gastentoilet en meerdere opbergmogelijkheden. De grote, lichte woonkamer met open keuken geeft toegang tot een terras en een privégracht van 69 m², perfect voor buitenleven en ontspanning. De woning beschikt over twee stijlvolle badkamers met douchecabines, een praktische wasruimte en hoogwaardige afwerkingen zoals Duravit, Hansgrohe en Berloni. De vloerverwarming, triple beglazing in hout/aluminium, en de geothermische systemen zorgen voor een uiterst energie-efficiënte en comfortabele leefomgeving. Bovendien zijn er voorzieningen voor elektrische laadpalen en fietsenstallingen, wat de woning toekomstbestendig maakt. Elke appartement wordt bovendien aangevuld met een private kelder en een ondergrondse parkeerplaats, waardoor het wooncomfort compleet is. De ligging in Steinfort biedt tal van voordelen voor wie op zoek is naar een evenwicht tussen rust en bereikbaarheid. De gemeente is bekend om haar levendige gemeenschap, met tal van wandelpaden, fietsroutes en culturele verenigingen. Dankzij de nabijheid van de A6 snelweg, het Kleinbettingen treinstation en directe verbindingen naar Luxemburg-stad en Brussel, geniet u van uitstekende mobiliteit. De omgeving combineert een landelijke sfeer met stedelijke gemakken, waardoor het aantrekkelijk is voor zowel pendelaars als gezinnen die willen genieten van een mooie woonomgeving met alle voorzieningen binnen handbereik. Neem vandaag nog contact op met Bricksquare voor meer informatie of om een bezoek te plannen aan dit exclusieve project. Deze woning vertegenwoordigt een unieke kans voor kopers die zoeken naar luxe, duurzaamheid en comfort in het hart van Steinfort. Meer weten?

3 Slaapkamer(s) 103
contacteer
details
E-mail
Bellen
1 058 202 €

8410 Steinfort

Deze prachtige appartementen gelegen aan de Route d'Arlon 44 in Steinfort bieden een unieke combinatie van modern comfort en natuurlijke rust. Gelegen in de prestigieuze residentie Optimum, een exclusief project van slechts 10 units ontworpen door Kaell Architectes en ontwikkeld door SOLUDEC Development, vormen deze woonruimtes een perfect voorbeeld van duurzame luxe. Met een verkoopprijs van 1.058.202 euro (inclusief 3% BTW) biedt deze woning een hoogwaardige afwerking en innovatieve technologieën die inspelen op moderne levensstandaarden. Het appartement beslaat een oppervlak van 117,40 m² en beschikt over drie ruime slaapkamers, ideaal voor gezinnen of mensen die extra ruimte waarderen. De grote living met open keuken zorgt voor een lichte en uitnodigende sfeer, ideaal voor zowel dagelijks gebruik als entertainment. Vanuit de woonkamer heeft u toegang tot een terras en een tuin van 74 m², wat extra buitenruimte biedt voor ontspanning en tuinieren. Het appartement is voorzien van twee luxe douches en een apart gastentoilet, evenals een praktische inkomhal met extra opbergruimte. De woning is uitgerust met vloerverwarming, dubbele beglazing in hout/alu, en is voorbereid voor elektrische laadpalen en fietsenstallingen. Inclusief private kelder en ondergrondse parkeerplaats, gecombineerd met liftinstallatie die alle verdiepingen bedient, garandeert dit vastgoed optimaal comfort en gebruiksgemak. De locatie van Steinfort combineert het beste van rust en bereikbaarheid. Gelegen nabij de grens met Luxemburg en België, geniet deze gemeente van een uitstekende levenskwaliteit dankzij talloze wandel- en fietspaden, sport- en cultuurverenigingen, en een uitstekende mobiliteit dankzij de nabijheid van de A6 snelweg en het Kleinbettingen treinstation. Deze strategische ligging maakt het makkelijk om snel naar Luxemburg-stad, Brussel of andere belangrijke steden te reizen. Of u nu op zoek bent naar een rustig toevluchtsoord met alle comfort of naar een investering in een gewilde regio, dit project biedt alles wat u wenst. Neem vandaag nog contact op met Bricksquare via ### of bezoek hun website voor meer informatie of om een bezichtiging te plannen. Dit is zonder twijfel een unieke kans om te investeren in een moderne, duurzame woning op een toplocatie in Steinfort. Meer weten?

3 Slaapkamer(s) 112
contacteer
details
E-mail
Bellen
835 997 €

8410 Steinfort

Ontdek dit prachtige appartement te koop in Steinfort, een unieke kans om te wonen in een rustig en groen gebied dat toch dicht bij alle voorzieningen ligt. Gelegen op Route d'Arlon, bevindt dit eigendom zich op een strategische locatie waar natuur en modern comfort samenkomen. Het appartement, met een woonoppervlakte van 81,78 m², biedt een uitgebalanceerd ontwerp dat zowel functionaliteit als luxe uitstraalt. De woning beschikt over een ruime slaapkamer, een lichte woonkamer met open keuken en toegang tot de buitenruimte, een verfijnde badkamer met douche en toilet, en een praktische inkomhal met opbergruimte. Bovendien beschikt u over een terras van 35 m² en een tuin van 8 m², ideaal voor ontspanning of buitenactiviteiten. De afwerking is van hoog niveau, inclusief vloerverwarming en dubbel glas in houten/aluminium raamkaders. Een privé kelderruimte, parkeerplaats en een lift maken het comfort compleet. Dit alles wordt aangeboden voor een verkoopprijs van 835.997 euro, inclusief BTW van 3%, waardoor u profiteert van een energieklasse AAA-certificaat dat garant staat voor duurzaamheid en energie-efficiëntie. Steinfort is bekend om zijn uitstekende levenskwaliteit en biedt tal van recreatieve mogelijkheden zoals wandel- en fietspaden, sportverenigingen en culturele activiteiten. De ligging zorgt voor een vlotte verbinding via de A6-autosnelweg, de Kleinbettingense treinverbinding en directe routes naar Luxemburg-Stad en Brussel. Dit maakt het niet alleen een ideale plek voor wie rust zoekt, maar ook voor forenzen die snel willen reizen naar nabijgelegen grote steden. Daarnaast is de locatie voorzien van alle nodige voorzieningen zoals winkels, restaurants en scholen binnen handbereik, waardoor dagelijks gemak verzekerd is. Het project, ontworpen door Kaell Architectes en ontwikkeld door SOLUDEC Development, staat garant voor hoogwaardige afwerking en duurzaam wonen, met onder andere geothermische verwarming, geothermische koeling en duurzame isolatie. Dit exclusieve appartement is slechts één van tien ontworpen units in dit kleinschalige complex dat gericht is op comfort en energiezuinigheid. Het biedt de perfecte combinatie van modern wooncomfort en een idyllische omgeving, ideaal voor wie op zoek is naar een kwaliteitsvolle investering of eigen woonst in een rustige maar goed verbonden omgeving. Neem vandaag nog contact op met Bricksquare via ### of bezoek ### voor meer informatie of om een bezichtiging te plannen. Dit eigendom combineert luxe, functionaliteit en locatie op een uitzonderlijke wijze en biedt u de kans om te wonen in een modern appartement dat volledig aansluit bij uw wensen en levensstijl. Meer weten?

1 Slaapkamer(s) 80
contacteer
details
E-mail
Bellen
750 000 €

8416 Steinfort

Ontdek dit stijlvolle appartement te Steinfort, gelegen in het hart van een moderne en goed onderhouden residentie. Met een verkoopprijs van 750.000 euro biedt dit vastgoed comfortabele woonruimte met een totale woonoppervlakte van 75,02 m². Het appartement beschikt over twee slaapkamers en een eigentijdse badkamer, perfect voor gezinnen of professionals die zoeken naar een praktische en gezellige woonomgeving. Bij binnenkomst wordt u verwelkomd door een ruime hal die leidt naar het lichtrijke salon met open keuken en toegang tot het balkon. De open indeling zorgt voor een gezellige sfeer en maakt optimaal gebruik van de beschikbare ruimte. Dankzij de grote raampartijen geniet u hier van natuurlijk licht, terwijl het balkon een ideale plek biedt om buiten te ontspannen of te genieten van de rustige omgeving. Het appartement ligt op de derde verdieping van een gebouw met in totaal drie verdiepingen, en wordt gekenmerkt door moderne afwerkingen en doordachte voorzieningen. Naast de praktische indeling, beschikt u over twee ondergrondse parkeerplaatsen in de garage, waardoor parkeren geen enkel probleem vormt. Daarnaast is er een privé kelderruimte aanwezig voor extra opbergruimte. De locatie in Steinfort combineert het comfort van nabijheid tot belangrijke infrastructuur met een rustige, groene omgeving. Binnen enkele minuten bereikt u snelwegen, openbaar vervoer, basisvoorzieningen zoals winkels en gezondheidszorg, en onderwijsinstellingen. Alles is ontworpen om uw dagelijks leven zo comfortabel mogelijk te maken, met de voordelen van een aangename en veilige buurt. Verhuizen naar dit prachtige appartement betekent genieten van een ideale balans tussen rust en bereikbaarheid. De omgeving biedt een ontspannen leefklimaat met veel groene zones en recreatiemogelijkheden, terwijl alle nodige voorzieningen binnen handbereik liggen. Of u nu op zoek bent naar een comfortabel thuis of een slimme investering, dit vastgoed combineert functionaliteit met een uitstekende ligging. Neem contact op voor meer informatie of om een virtuele rondleiding te plannen. Elke bod wordt zorgvuldig besproken en moet worden goedgekeurd door de verkoper. Een unieke kans om te investeren in een kwaliteitsvol project in Steinfort – aarzel niet om vandaag nog uw interesse kenbaar te maken! Meer weten?

2 Slaapkamer(s) 80
contacteer
details
E-mail
Bellen
930 000 €

8435 Steinfort

Dit indrukwekkende vastgoed in Steinfort biedt een unieke kans om te wonen in een ruim en comfortabel appartement met vier slaapkamers, ideaal voor gezinnen of wie op zoek is naar voldoende ruimte. Gelegen op de begane grond van een kleinschalige residentie met slechts elf eenheden, beschikt dit appartement over een private tuin en buitenruimtes zonder inkijk, waardoor rust en privacy gegarandeerd zijn. De woning straalt modern comfort uit, met recent gerenoveerde houten vloeren in de slaapkamers (renovatie in 2023), PVC-dubbelglasramen, elektrische rolluiken en een automatische poort voor extra gebruiksgemak. De indeling geeft toegang tot een ruime, open leefruimte van 55,4 m² die de keuken, woonkamer en eethoek omvat, allemaal perfect verbonden met de buitenruimtes via grote schuifdeuren. De keuken is volledig uitgerust, waardoor koken een plezier wordt, terwijl de grote leefruimte uitnodigt tot gezellige bijeenkomsten. De woning beschikt verder over een functionele badkamer van 6,7 m² met een douche, bad en toilet, evenals een separate WC en een handige bergruimte van 2,9 m². Voor extra opslag is er een ruime, goed verlichte zolder van 35 m² op de tweede verdieping, die meerdere opslagmogelijkheden biedt en toegankelijk is via de woning. De tuin van 61 m² en het noordgericht terras van 20,6 m² bieden volop gelegenheid om buiten te genieten, te tuinieren of te entertainen. Inclusief bij het appartement komen ook twee parkeerplaatsen: één ondergrondse en één privé buiten, wat bijzonder handig is in deze rustige woonwijk. Het complex beschikt over een lift en een gemeenschappelijke wasruimte, wat het wooncomfort verder verhoogt. De ligging van dit vastgoed in Steinfort biedt tal van voordelen. In een rustige residentiële buurt met een 30 km/u zone en een doodlopende straat geniet u van maximale rust en veiligheid. Alle voorzieningen zoals winkels, bakkers, apotheken, dokters en cafés bevinden zich op loopafstand, terwijl de nabijheid van de Windhof-zone met zijn Ecopark en handelscentrum slechts vijf minuten met de auto is verwijderd. Ook scholen voor alle leeftijden liggen binnen handbereik: van crèches tot Europese scholen in Mamer. Op slechts 18 km van Luxemburg-stad en 11 km van de Europese School in Mamer biedt deze locatie het beste van zowel rust als bereikbaarheid. De vraagprijs voor deze moderne woning bedraagt €930.000, zonder btw. Geïnteresseerd? Neem contact op voor meer informatie of om een bezichtiging te plannen en ontdek zelf de vele troeven van dit prachtige appartement in Steinfort. Meer weten?

4 Slaapkamer(s) 127 1 Badkamer(s)
contacteer
details
E-mail
Bellen
950 000 €

8437 Steinfort

Gelegen in Steinfort biedt dit moderne appartement een comfortabele woonruimte op de tweede verdieping van een kleinschalige en goed onderhouden copropriété. De woning is recent gebouwd tussen 2020 en 2022 en voldoet aan energieprestatiecertificaat B. Het appartement bevindt zich op een gunstige locatie, dichtbij belangrijke verbindingen zoals snelwegen, openbaar vervoer, winkels, restaurants en basisscholen. Het appartement heeft een woonoppervlakte van circa 111,21 m² en beschikt over drie slaapkamers, elk voorzien van ingebouwde kasten. De inkomhal geeft toegang tot een lichte living en eetruimte die openslaat op een balkon, ideaal voor ontspanning of buitenactiviteiten. De open keuken is van hoge kwaliteit en volledig ingericht, waardoor koken en bijeenkomsten gemakkelijk georganiseerd kunnen worden. Verder bevat de woning een hoofdsuite met dressing en privébadkamer, een tweede badkamer met douche, een apart toilet, een praktische wasruimte en een garageplaats. Buiten zijn er bovendien twee balkons en een terras aanwezig. Bij het appartement hoort ook een private kelder, wat extra opslagruimte biedt. De woning wordt aangeboden zonder BTW en is onmiddellijk beschikbaar. Meer weten?

3 Slaapkamer(s) 111
contacteer
details
E-mail
Bellen
650 000 €

8421 Steinfort

Dit moderne appartement van circa 93,54 m² is gelegen aan de Rue de Hagen in het centrum van Steinfort. Het appartement bevindt zich op de eerste verdieping en is bereikbaar met een lift. Het beschikt over twee ruime en lichte slaapkamers, die zorgen voor een comfortabel woonklimaat. De indeling is zorgvuldig doordacht, met veel natuurlijk lichtinval en een praktische opzet. Binnen vindt u een volledig uitgeruste badkamer die voldoet aan moderne eisen, evenals een goed ingerichte keuken en voorzieningen die comfort en functionaliteit bieden. Het appartement is voorzien van een balkon, ideaal voor ontspanning of het genieten van het buitenleven. Daarnaast beschikt het over een eigen garage met extra berging, een afgesloten bergruimte en parkeergelegenheid voor de deur. De centrale ligging van dit appartement in Steinfort biedt gemakkelijke toegang tot lokale voorzieningen zoals winkels, scholen en openbaar vervoer. De nabijheid van belangrijke verbindingswegen maakt het ook geschikt voor commuters. Dit eigendom is zowel geschikt voor wie op zoek is naar een gezinswoning als voor beleggers die willen investeren in een aantrekkelijke locatie. Meer weten?

2 Slaapkamer(s) 94 1 Badkamer(s)
contacteer
details
E-mail
Bellen
530 000 €

8440 Steinfort

Dit appartement is gelegen in de rustige gemeente Steinfort en biedt een woonoppervlakte van 71 m². Het beschikt over twee ruime slaapkamers, die ideaal zijn voor een koppel of kleine familie. De indeling bestaat uit een lichte woonkamer van 24,70 m², een separate keuken van 8,32 m² met toegang tot een praktische berging, een badkamer met toilet en de twee slaapkamers van respectievelijk 15,25 m² en 10,35 m². Het appartement bevindt zich op de tweede verdieping van een gebouw met in totaal twee verdiepingen. Het wordt geleverd met een eigen garage met elektrische poort en een grote kelderruimte voor extra opbergruimte. Buiten is er ook een gereserveerde parkeerplaats voor de bewoners. De verwarming gebeurt op gas en het EPC-rendement is vastgesteld op E. De locatie in Steinfort biedt gemakkelijke toegang tot scholen, winkels en openbaar vervoer, waardoor het een praktische keuze is voor wie comfort en bereikbaarheid waardeert. Het appartement is momenteel niet verhuurd en dat maakt het ideaal voor directe bewoning of investering. Neem contact met ons op om een bezichtiging te plannen. Meer weten?

2 Slaapkamer(s) 71 1 Badkamer(s)
contacteer
details
E-mail
Bellen
1 058 202 €

8410 Steinfort

Dit nieuwbouwappartement in Steinfort biedt een uitstekende gelegenheid voor wie op zoek is naar moderne en comfortabele leefruimte. Gelegen op de begane grond, beschikt het appartement over een bewoonbare oppervlakte van 30 m² en omvat het drie slaapkamers, ideaal voor gezinnen of voor wie extra ruimte nodig heeft. Het pand is uitgerust met twee douchecabines en een apart toilet, wat bijdraagt aan het dagdagelijks gemak. De keuken is nog niet uitgerust, wat de nieuwe eigenaar de kans geeft om deze naar eigen smaak en behoeften in te richten. Bovendien biedt het appartement een eigen wasruimte en een kelder voor extra opslagmogelijkheden. De aanwezigheid van een lift en toegang voor mindervaliden maakt het appartement toegankelijk voor iedereen. Een garage is inbegrepen in de prijs, met de mogelijkheid om een extra binnenparkeerplaats aan te schaffen voor 33.300€ inclusief BTW. Steinfort biedt een rustige woonomgeving met alle nodige faciliteiten in de buurt, terwijl het toch goed bereikbaar is. Dit maakt het appartement tot een aantrekkelijke optie voor wie wil wonen in een gebied dat zowel stedelijke verbindingen als een vredige omgeving biedt. Met een verkoopprijs van 1.058.202€ is dit pand een investering in luxe en comfort. Meer weten?

3 Slaapkamer(s) 112
contacteer
details
E-mail
Bellen
1 623 075 €

8410 Steinfort

Dit moderne appartement, gelegen in het charmante stadje Steinfort, staat te koop voor een prijs van 1.623.075 €. Het pand is nieuw en bevindt zich op de tweede verdieping van een gebouw met twee verdiepingen. Met een woonoppervlakte van 19 m² biedt het appartement vier slaapkamers, wat het ideaal maakt voor gezinnen of mensen die extra ruimte nodig hebben. De aanwezigheid van een lift en toegang voor mindervaliden draagt bij aan het comfort en de toegankelijkheid van de woning. De keuken is niet uitgerust, wat toekomstige eigenaren de mogelijkheid biedt om deze naar eigen smaak in te richten. Het appartement beschikt over een badkamer met twee douchecabines en één toilet, wat zorgt voor voldoende voorzieningen voor de bewoners. Verder is er een wasruimte beschikbaar, wat praktisch is voor het gezinshuishouden. Bij de prijs zijn een parkeerplaats en een kelder inbegrepen, wat extra gemak biedt voor opslag en parkeren. Er is ook de optie om tegen een meerprijs van 33.300 € een extra binnenparkeerplaats te verkrijgen. Het pand beschikt over één garage. De ligging in Steinfort biedt een rustige leefomgeving, terwijl het toch goed bereikbaar is voor dagelijkse voorzieningen en openbaar vervoer. Meer weten?

4 Slaapkamer(s) 179 1 Badkamer(s)
contacteer
details
E-mail
Bellen
951 645 €

8410 Steinfort

Dit moderne appartement in Steinfort, met een verkoopprijs van 951.645 €, biedt een uitstekende kans voor wie op zoek is naar een nieuw pand. Gelegen op de eerste verdieping van een recent gebouw, beschikt het appartement over een functionele indeling die comfort en gebruiksgemak combineert. Met een totale bewoonbare oppervlakte van 27 m², is het ideaal voor kleinere huishoudens of als pied-à-terre. Het appartement omvat twee slaapkamers en twee douchecabines, wat zorgt voor voldoende persoonlijke ruimte en comfort. Er is ook een aparte wasruimte aanwezig. De woning is voorzien van een kelder, wat extra opslagmogelijkheden biedt. De aanwezigheid van een lift en toegang voor mindervaliden maakt dit appartement toegankelijk voor iedereen. Hoewel de keuken niet uitgerust is, biedt dit de mogelijkheid om deze geheel naar eigen smaak in te richten. Parkeren is geen probleem, aangezien er een garage inbegrepen is in de prijs. Tevens is er de mogelijkheid om een extra binnenparkeerplaats aan te schaffen voor 33.300 € (inclusief BTW). Gelegen in het postcodegebied 8410 van Steinfort, biedt dit appartement zowel rust als toegang tot nabijgelegen voorzieningen. Met zijn nieuwe staat en moderne faciliteiten is dit pand een aantrekkelijke optie voor kopers die op zoek zijn naar een eigentijdse en praktische woonruimte. Meer weten?

2 Slaapkamer(s) 97
contacteer
details
E-mail
Bellen
1 087 587 €

8410 Steinfort

Dit prachtige nieuwbouwappartement, gelegen in het hart van Steinfort, biedt u een moderne en comfortabele leefruimte. Met een woonoppervlakte van 30 m² beschikt dit appartement over drie ruime slaapkamers, ideaal voor gezinnen of als investering. De aanwezigheid van een lift en toegang voor mindervaliden maakt deze woning toegankelijk voor iedereen. Op de eerste verdieping van een gebouw met één verdieping, geniet u van extra privacy en rust. De indeling van het appartement biedt twee douchecabines en één toilet, wat bijdraagt aan het gebruiksgemak. Ook is er een wasruimte aanwezig, wat een praktische toevoeging is aan het dagelijkse comfort. Voor uw gemak is er een parkeerplaats en een kelder inbegrepen in de prijs. Voor wie meer parkeerruimte nodig heeft, bestaat de mogelijkheid om een extra binnenplaats aan te schaffen. De omgeving van Steinfort is rustig en biedt alle nodige voorzieningen binnen handbereik. Ondanks het compacte formaat van de woonoppervlakte, biedt dit appartement alle nodige functies voor een comfortabel leven. De vraagprijs van €1 087 587 inclusief BTW weerspiegelt de kwaliteit en de locatie van de woning. Een uitstekende kans voor wie op zoek is naar een nieuwbouwappartement in een aangename omgeving. Meer weten?

3 Slaapkamer(s) 112
contacteer
details
E-mail
Bellen
1 094 898 €

8410 Steinfort

Dit nieuwbouw appartement in Steinfort, met een vraagprijs van €1.094.898, biedt een moderne woonervaring op de eerste verdieping. Met een bewoonbare oppervlakte van 30 m² is het pand compact, maar efficiënt ingericht met drie slaapkamers. De aanwezigheid van twee douchecabines en één toilet zorgt voor voldoende comfort bij dagelijks gebruik. Er is een wasruimte aanwezig en het appartement beschikt over een lift, wat het extra toegankelijk maakt voor iedereen. De woning wordt aangeboden inclusief een kelder en een garage. Er is ook een extra mogelijkheid om een extra binnenparkeerplaats aan te schaffen voor €33.300, inclusief 17% BTW. Dit biedt flexibiliteit voor gezinnen met meerdere voertuigen of voor diegenen die behoefte hebben aan extra opslagruimte. Het appartement bevindt zich in een rustige omgeving in Steinfort, postcode 8410. Het pand is ontworpen met toegankelijkheid in gedachten, inclusief toegang voor mindervaliden. Hoewel de keuken niet is uitgerust, biedt dit nieuwe pand een kans om de ruimte naar eigen smaak en wens in te richten. Dit maakt het een perfecte keuze voor kopers die hun ideale woonplek willen personaliseren. Meer weten?

3 Slaapkamer(s) 112
contacteer
details
E-mail
Bellen
988 829 €

8410 Steinfort

Dit nieuwbouwappartement in Steinfort, postcode 8410, biedt een moderne woonervaring met drie slaapkamers, ideaal voor gezinnen of professionals. Het pand heeft een bewoonbare oppervlakte van 26 m² en is gelegen op de eerste verdieping van een gebouw met één verdieping. Ondanks de compacte oppervlakte, biedt de woonruimte efficiëntie en comfort, versterkt door de aanwezigheid van een lift en toegang voor mindervaliden, waardoor het appartement toegankelijk is voor iedereen. Het appartement beschikt over een badkamer en één toilet. Voor extra gemak is er een wasruimte beschikbaar. De keuken is nog niet uitgerust, wat toekomstige eigenaren de vrijheid geeft om deze naar eigen wens en stijl in te richten. Naast de functionele ruimtes binnen biedt het appartement ook een kelder, wat extra opslagmogelijkheden biedt. Bij aankoop van het appartement is een parkeerplaats en kelder inbegrepen in de prijs van €988.829. Er is ook de mogelijkheid om een extra binnenparkeerplaats aan te schaffen voor €33.300 inclusief BTW van 17%. Steinfort biedt een rustige woonomgeving met gemakkelijke toegang tot voorzieningen en het omliggende platteland, wat het perfect maakt voor diegenen die op zoek zijn naar een evenwicht tussen stedelijk en landelijk leven. Meer weten?

3 Slaapkamer(s) 101 1 Badkamer(s)
contacteer
details
E-mail
Bellen
919 674 €

8410 Steinfort

Gelegen in het charmante Steinfort, biedt dit nieuwbouwappartement een uitstekende kans voor wie op zoek is naar een hedendaags en comfortabel woonverblijf. Het appartement bevindt zich op de begane grond en omvat een woonoppervlakte van 21 m² met twee slaapkamers. Voor uw gemak is er een lift aanwezig, evenals toegang voor mindervaliden. De indeling van het appartement is zorgvuldig ontworpen met aandacht voor functionaliteit. De keukenruimte dient nog uitgerust te worden, wat u de mogelijkheid geeft om deze geheel naar eigen smaak in te richten. Verder beschikt de woning over twee douchecabines en een toilet, met voldoende sanitaire voorzieningen. Een wasruimte en kelder zijn aanwezig voor extra opslag en functionaliteit. Met een prijs van 919.674 € is er in de prijs een parkeerplaats en een kelder inbegrepen. Optioneel kunt u een extra binnenparkeerplaats aanschaffen voor 33.300 € inclusief BTW van 17%. Dit moderne appartement biedt niet alleen een veilige en comfortabele woonomgeving, maar ook gemakkelijke toegang tot nabijgelegen voorzieningen in het aantrekkelijke Steinfort. Meer weten?

2 Slaapkamer(s) 80
contacteer
details
E-mail
Bellen
995 309 €

8410 Steinfort

Dit nieuwbouw appartement, gelegen in Steinfort met postcode 8410, biedt een moderne woonervaring op de begane grond. Met een totaal van drie slaapkamers en een woonoppervlakte van 23 m², is deze woning ideaal voor gezinnen of koppels die op zoek zijn naar comfort en functionaliteit. De woning beschikt over een wasruimte en een garage, wat extra gemak biedt. Er is één garage inbegrepen in de prijs, en er is de mogelijkheid om een extra parkeerplaats binnen aan te schaffen voor 33.300 € inclusief btw. De keuken van het appartement is nog niet uitgerust, wat u de vrijheid geeft om deze naar eigen smaak in te richten en te personaliseren. Voor uw comfort beschikt het appartement over twee douchecabines en één toilet. De aanwezigheid van een lift en toegang voor mindervaliden maakt het appartement toegankelijk voor iedereen, ongeacht hun mobiliteitsbehoeften. Steinfort biedt een rustige woonomgeving, terwijl het appartement zelf is ontworpen om aan de moderne eisen te voldoen. De prijs van 995.309 €, inclusief parkeerplaats en kelder, maakt het een aantrekkelijke optie in de huidige vastgoedmarkt. Het pand heeft momenteel geen energiereferentiecertificaat beschikbaar, maar met de nieuwbouwstatus kunt u rekenen op moderne energieprestaties en bouwkwaliteit. Meer weten?

3 Slaapkamer(s) 103
contacteer
details
E-mail
Bellen
835 997 €

8410 Steinfort

Dit nieuwbouwappartement, gelegen op de begane grond in Steinfort, biedt een moderne leefomgeving met één ruime slaapkamer. Het pand beschikt over een badkamer met een douchecabine en een aparte wasruimte, wat zorgt voor extra gemak en functionaliteit. Voor degenen die waarde hechten aan gemakkelijk en veilig parkeren, is er een garage inbegrepen bij het appartement, evenals een kelder voor extra opslagruimte. Het gebouw is voorzien van een lift en is toegankelijk voor mindervaliden, wat de toegang vergemakkelijkt voor iedereen. Hoewel de keuken nog niet uitgerust is, biedt dit de nieuwe eigenaar de kans om deze naar eigen smaak en behoeften in te richten. De mogelijkheid bestaat om een extra parkeerplaats binnen aan te schaffen voor €33.300 inclusief BTW. Gelegen in de rustige omgeving van Steinfort, geniet dit appartement van een strategische locatie die zowel rust als bereikbaarheid biedt. De combinatie van moderne voorzieningen en de nabijheid van lokale voorzieningen maakt dit appartement ideaal voor zowel jonge professionals als senioren die op zoek zijn naar comfort en toegankelijkheid in hun nieuwe woning. Meer weten?

1 Slaapkamer(s) 80
contacteer
details
E-mail
Bellen
645 000 €

8410 Steinfort

Dit prachtige appartement in Steinfort, met een vraagprijs van € 615.000, bevindt zich op de eerste verdieping van de moderne residentie "Beim Rousebierg II". Het appartement beslaat een totale woonoppervlakte van 76 m² en beschikt over een ruime woonkamer met keuken van 46 m², die toegang biedt tot een terras van 10 m². Verder heeft het appartement één slaapkamer en een badkamer. Voor extra opslagruimte is er een kelder aanwezig en een binnenparkeerplaats is inbegrepen. De residentie "Beim Rousebierg II" biedt diverse voorzieningen zoals een lift en comfortabele binnenparkeerplaatsen. De bouwkwaliteit is hoogstaand dankzij de gerenommeerde Luxemburgse bouwonderneming die bekend staat om haar excellentie en kwaliteit. Dit project bevindt zich in een gewilde buurt, perfect voor wie op zoek is naar een toekomstgerichte investering. De ligging in Steinfort biedt vele voordelen, waaronder nabijheid van supermarkten, restaurants, medische faciliteiten en sportmogelijkheden zoals fietspaden, tennis, voetbal, volleybal, een zwembad en een klimpark. De gemeente is goed verbonden met het openbaar vervoer en heeft directe toegang tot de snelweg A6. Bovendien zijn er goede scholingsmogelijkheden voor kinderen met zowel kleuterscholen als basisscholen in de buurt. Dit alles maakt het appartement tot de ideale plek voor uw toekomstige verblijfplaats. Meer weten?

1 Slaapkamer(s) 76
contacteer
details
E-mail
Bellen